티스토리 뷰
목차
구로구 신도림 수학학원인테리어 디자인과 공간활용을
모두 잡은 30평 현장 깔끔하고 미니멀한 컨셉
안녕하세요 916디자인입니다.
오늘은 구로구 신도림 수학학원인테리어
디자인과 공간활용을 모두 잡은 30평 현장
소개를 준비했습니다.
시공 진행 현장

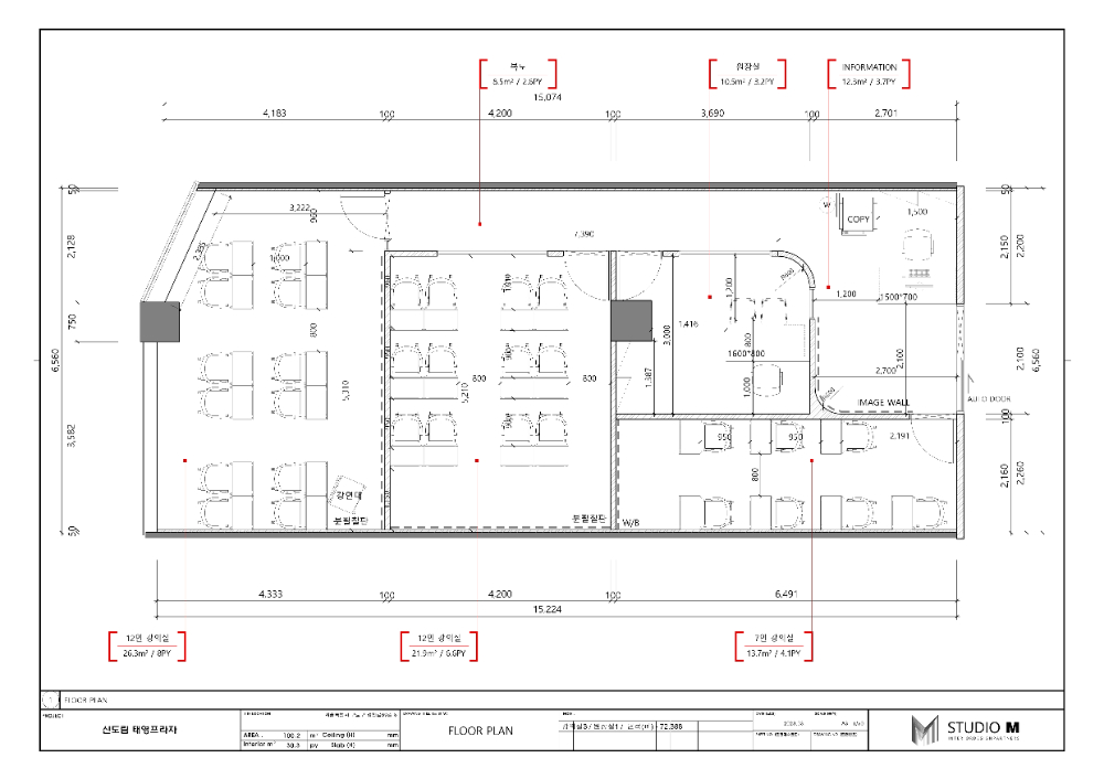
기본 구조는 가로로 긴 형태로 3개의 강의실과
원장실, 복도 공간으로 구성을 했습니다.
30평형 공간을 최대한 활용할 수 있도록
신경써 설계를 했습니다.
인테리어 컨셉은 학생들이 편안함을 느낄 수
있는 화이트&우드로 설정하였으며 불필요한
요소들은 빼고 심플한 디자인으로
제안을 드렸습니다.



최종 시안 확정 후 일정에 따라 구로구 신도림
수학학원인테리어가 시작 되었습니다.
먼저 공간을 구분해줄 수 있도록 벽을 세우고
있는 모습입니다. 보통 사무실이나 상가 시공
시에는 목공 작업으로만 진행 하는데요.
이번 현장은 학원이기 때문에 최대한 방음이
될 수 있도록 세심한 작업이 진행 되었습니다.

벽체 작업과 함께 전기 및 조명 공사가 함께
진행되었습니다.
어디에 어떤 조명을 사용 하는지에 따라서
분위기가 달라질 수 있는만큼 조명 위치에
신경을 많이 썼는데요.
다수의 시공 경험과 916디자인만의 노하우로
눈의 피로는 줄여주고 밝은 분위기를 연출
할 수 있도록 위치를 잡아주었습니다.




916디자인의 시공 경험과 노하우는 조명뿐만
아니라 복도 라운드 벽체나 창 등에서도
돋보입니다.
디테일을 살린 전문가의 시공으로 클라이언트분의
만족도가 매우 높았던 현장입니다.
그럼 지금부터 디자인과 공간 활용을 모두 잡은
30평 구로구 신도림 수학학원인테리어 시공 후
모습을 함께 확인해보겠습니다.
시공 마감 현장




출입문은 편리하게 이동할 수 있도록
자동문으로 설치를 해주었고 투명유리로
개방감 있게 완성이 되었습니다.
보통 학원 인테리어에서 내부를 가리기
위해 답답해도 출입문 전체에 시트
작업을 하는 경우가 많은데요.
이번 현장은 복도 타입 설계로 개방감을
살릴 수 있었습니다.


수학학원 내부로 들어오면 좌측에는
원장실, 우측에는 리센셥이 위치해 있습니다.
강의실은 외부 소음으로부터 최대한
방해를 받지 않도록 복도를 따라 안쪽으로
배치 하였는데요.


리센션은 복도 벽면 우드 템바보드 디자인과
동일한 디자인을 적용 했으며, 측면과 안쪽은
우드 시트지로 가성비 좋게 제작을 했습니다.
리센션 하단에는 간접등을 넣어 포인트를
주었습니다.
공간 사이즈에 맞춰 목공 작업으로 제작을
했는데요. 수납장 일체형 디자인이라 공간
활용도도 높습니다.

시공 현장 소개에서 봤던 라운드 타입의
복도 공간입니다.
라운드 타입의 디자인으로 편안하고
부드러운 이미지가 되었고 여기에 조명으로
포인트도 주었습니다.



학원과 같은 교육 기관은 학업을 목적으로
하는 공간이기 때문에 심플한 인테리어를
선호 하시는데요.
화이트&우드로만 진행 하기에는 다소
밋밋한 느낌을 줄 수 있어서 조명을
적극적으로 활용 했습니다.
덕분에 부담 없이 포인트를 줄 수 있었고
밝은 분위기로 공간이 더 넓어보이는
효과까지 생겼습니다.

추가로 복도가 안쪽으로 길게 이어지는
구조라 답답함이 느껴질 수 있어서 이렇게
중간에 글라스월을 넣어 창문처럼
만들어주었습니다.
창 프레임도 우드로 시공해 전체적으로
이질감 없이 자연스럽게 연출 된 것
같습니다.


강의실 내부는 평수의 차이만 있고 전체적인
인테리어는 동일하게 시공하여 통일감을
주었습니다.
그리고 깔끔한 화이트 인테리어에
바닥 테두리만 우드로
포인트를 주면서 아늑한 분위기의
심플한 디자인을 연출했는데요.
출입문에도 새로로 글라스월을 삽입해
개방감까지 살렸습니다.



두번째 강의실에는 벽면에 화이트보드를
설치 했습니다. 그린 컬러의 하단 선반으로
심플하게 포인트를 주었습니다.
천장은 2라인의 LED조명으로 밝은
분위기가 연출 되었습니다.



마지막으로 소개해드릴 구로구 신도림
수학학원인테리어는 가장 큰 메인
강의실입니다.
먼저 확인했던 강의실과 동일한 디자인을
적용 했으며, 화이트보드 대신 대형 칠판을
설치 하면서 대형 강의실의 느낌을 주었는데요.
칠판이 벽면을 가득 채우는 사이즈라 다소
답답한 느낌을 줄 수 있어서 개방감을 위해
벽을 뚫어주었고 큰 창을 그대로 살려
개방감 있게 완성 시켰습니다.
또한, 칠판 상단으로는 긴 바 조명을 설치해
밝게 연출시켜 가시성을 높였고 각 벽면에
콘센트가 설치될 수 있도록 전기 공사를
해서 공간 활용도도 높여주었습니다.

여기까지 디자인과 공간활용을 모두 잡은
30평 구로구 신도림 수학학원인테리어
시공 현장이었습니다.
교육 기관이 추구하는 방향성과 이미지에
맞춰 완성도 높게 시공이 되었습니다.
홈페이지와 블로그를 참고 하시면 학원
인테리어 외에도 사무실, 카페, 헬스장 등
다양한 시공 사례를 확인하실 수 있습니다.
학원인테리어 전문 업체를 찾으신다면
지금 바로 916디자인으로 연락 주세요.
공사문의 010-3235-8427
포트폴리오 바로가기▶916er.com
2023.04.15 - [사무실인테리어] - 스튜디오를 겸비한 깔끔한 80평 공간이 돋보이는 화성사무실인테리어 감성적인 디자인에 합리적인 비용 견적
스튜디오를 겸비한 깔끔한 80평 공간이 돋보이는 화성사무실인테리어 감성적인 디자인에 합리적
스튜디오를 겸비한 깔끔한 80평 공간이 돋보이는 화성사무실인테리어 감성적인 디자인에 합리적인 비용 견적 안녕하세요 916디자인입니다. 일반적으로 상업 시설은 설계를 할 때 업종의 특성이
dopamine7.com
2023.04.14 - [사무실인테리어] - 고양 덕양구 덕은리버워크 지식산업센터인테리어 차별화된 디자인의 가벽 아트월 디자인 75평 시공현장 비용 견적
고양 덕양구 덕은리버워크 지식산업센터인테리어 차별화된 디자인의 가벽 아트월 디자인 75평
고양 덕양구 덕은리버워크 지식산업센터인테리어 차별화된 디자인의 가벽 아트월 디자인 75평 시공현장 비용 견적 안녕하세요 916디자인입니다. 인테리어는 단순한듯 하면서도 알면 알수록 매
dopamine7.com
2023.04.10 - [사무실인테리어] - 대전 청주 지식산업센터 사무실인테리어 원목 디자인 럭셔리한 컨셉 비용 견적 문의
대전 청주 지식산업센터 사무실인테리어 원목 디자인 럭셔리한 컨셉 비용 견적 문의
대전 청주 지식산업센터 사무실인테리어 원목 디자인 럭셔리한 컨셉 비용 견적 문의 안녕하세요 916디자인입니다. 아직은 쌀쌀한 날씨가 계속되고 있지만, 곳곳에 꽃이 피는걸 보니 봄이 왔다는
dopamine7.com
2023.04.08 - [사무실인테리어] - 고양 덕은지구 덕은리버파크 지식산업센터인테리어 모던한 디자인 연출 비용 견적
고양 덕은지구 덕은리버파크 지식산업센터인테리어 모던한 디자인 연출 비용 견적
고양 덕은지구 덕은리버파크 지식산업센터인테리어 모던한 디자인 연출 비용 견적 안녕하세요 916디자인입니다. 오늘은 모던하고 깔끔하면서도 웅장한 분위기를 자랑하는 고양 덕은지구 덕은
dopamine7.com
2023.04.03 - [사무실인테리어] - 수원 광교 플렉스데시앙 지식산업센터인테리어 센스있는 디자인과 합리적인 견적비용
수원 광교 플렉스데시앙 지식산업센터인테리어 센스있는 디자인과 합리적인 견적비용
수원 광교 플렉스데시앙 지식산업센터인테리어 센스있는 디자인과 합리적인 견적비용 안녕하세요 사무실인테리어 전문 업체 916디자인입니다. 오늘은 사무실인테리어 중 시공 문의가 가장 많
dopamine7.com
'학원인테리어' 카테고리의 다른 글
| 김포 영어교습소인테리어 30평대 공간을 가득채운 화사한 컬러감 (0) | 2023.11.19 |
|---|---|
| 합리적인 학원인테리어견적 만족도 높은 시공결과 디자인 비용 (0) | 2023.08.19 |
| 수학학원인테리어 신뢰감이 나타나는 실내디자인 남양주 42평 학원공사 (0) | 2023.08.14 |
| 어린이 워터룸 키즈풀 카페인테리어 아이들이 좋아하는 디자인 합리적인 시공견적 (0) | 2023.07.02 |
| 파주 운정 초등수학학원 소형 25평 인테리어 디자인 세련된 감각과 합리적인 견적 비용 (1) | 2022.12.20 |
| 포천 동두천 양주 학원인테리어 예쁜 디자인으로 눈길을 사로잡는 50평 100평 (0) | 2022.11.12 |
| 대구 수학 과학 학원인테리어 창의력을 높여주고 집중할 수 있게 만들어주는 미니멀한 연출 (0) | 2022.09.01 |
| 광주 전주 순천 학원인테리어 소형 평수도 쾌적하고 트렌디한 미니멀 스타일로 (0) | 2022.08.26 |
- Total
- Today
- Yesterday
- 헬스장인테리어
- 사무실디자인
- 사무실리모델링
- 학원인테리어디자인
- 사무실인테리어디자인
- 916디자인
- 인테리어디자인
- 인천사무실인테리어
- 피티샵인테리어
- 사무실인테리어
- 사무실인테리어업체
- 사무실인테리어추천
- 병원인테리어
- 학원인테리어
- 지식산업센터인테리어
- 사무실인테리어잘하는곳
- 사무실인테리어견적
- 3D디자인
- 회사인테리어
- 인테리어
- 사무실인테리어비용
- 사무실인테리어전문
- 상가인테리어
- 오피스인테리어
- 사무실인테리어공사
- 헤어샵인테리어
- interior
- 미용실인테리어
- 사무실인테리어후기
- 3D사무실인테리어
| 일 | 월 | 화 | 수 | 목 | 금 | 토 |
|---|---|---|---|---|---|---|
| 1 | ||||||
| 2 | 3 | 4 | 5 | 6 | 7 | 8 |
| 9 | 10 | 11 | 12 | 13 | 14 | 15 |
| 16 | 17 | 18 | 19 | 20 | 21 | 22 |
| 23 | 24 | 25 | 26 | 27 | 28 | 29 |
| 30 |
