티스토리 뷰
목차
성동구 성수동 에이원센터 하우스디 세종타워 사무실인테리어 가벽으로 효율적으로 분리하고 실용적으로 꾸미세요
3D


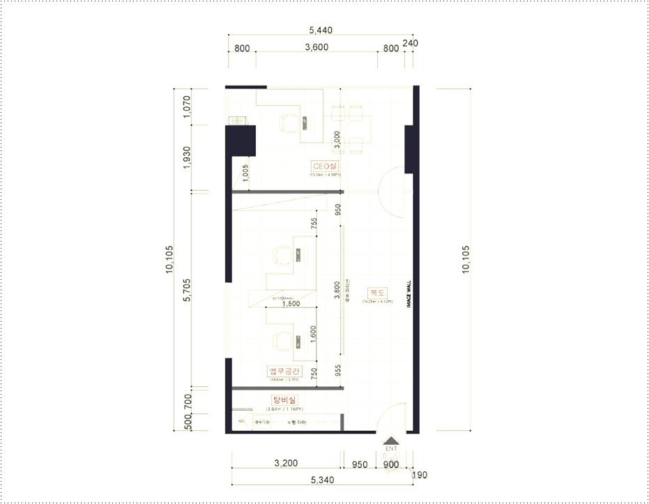
성동구 성수동 에이원센터 하우스디 세종타워 사무실인테리어 인테리어 의뢰가 많아지면서 이에 적용할만한 사례를 찾아봤습니다. 그래서 오늘은 약 17평 정도의 직사각형 사무실에 대표실, 업무공간, 탕비실을 구성한 사례를 시공현장까지 소개해드리려고 합니다. 직사각형의 기다란 평면이란 점을 고려해 가장 안 쪽에 대표실을 배치했고 창가가 있는 벽면에 사무실을 두었으며 파티션형 가벽을 활용해 복도를 만들어 방문객과 직원 동선을 분리했습니다.


파티션형 가벽은 간살 디자인을 적용해 공간을 분리하면서 개방감을 느낄 수 있도록 했고 맞은편 벽면은 로고를 활용한 디자인을 적용해 멋진 공간이 되도록 계획했습니다. 916디자인은 디자인설계 과정에서 평면설계와 함께 3D 이미지를 제공해 디자인 및 공간의 분위기를 확인하실 수 있도록 도와드리고 있습니다.


대표실은 가벽으로 분리해 독립형으로 개별 사무실로 사용할 수 있도록 했고 직원이 있는 공간에는 목공 가벽을 복도쪽에는 유리 도어를 적용해 공간을 완벽하게 나누면서 개방감을 느낄 수 있도록 제안드렸답니다. 내부는 화이트로 마감해 밝고 넓어 보이도록 함으로써 쾌적한 환경이 되도록 했고 매입형 천장조명을 적용해 깔끔하고 높은 층고를 확보하도록 했으며 자연채광과 어울려 충분한 조도를 유지할 수 있도록 계획했습니다.
공사진행


최종 시안을 확정한 후 평면설계와 3D 이미지를 토대로 효율적인 시공을 진행하기 위해 배선, 배관, 공조, 소방 등의 설비를 정리한 후 본격적인 공사를 시작합니다. 목공 작업을 통해 구조를 나누고 레이아웃을 정리한 후 몰딩, 벽면 디자인, 맞춤가구 제작 등의 치장 작업을 진행하게 됩니다.
목공사는 인테리어의 80%를 차지할 정도로 중요한 공정인데요, 916디자인은 모든 공정을 철저히 준수하면서 베테랑 전문인력과 함께 완벽하게 작업면서 퀄리티 높은 사무실 인테리어를 완성해드리고 있습니다. 성동구 성수동 에이원센터 하우스디 세종타워 사무실인테리어를 계획 중이시라면 디자인력과 시행력을 갖춘 전문업체를 통해 효율적이고 실용적인 공간을 꾸미시길 바랍니다.



특히, 벽면이나 외부 파사드 등에 디자인을 적용할 경우에는 밑그림에 해당하는 알판작업을 진행하고 그 위해 자재를 붙이고 페인트나 필름지로 도장 작업을 진행합니다. 디자인을 깔끔하게 구현하기 위해서는 홈이나 틈을 메우는 퍼팅작업을 하고 울퉁불퉁한 표면을 편평하게 만드는 샌딩작업을 거쳐 매끈한 표면을 만들어준 후 마감해줍니다.
공사완료

직원들이 사용하는 사무공간은 간살 디자인의 파티션형 가벽으로 분리했고 가장 안쪽의 대표실은 목공 가벽으로 나누고 유리도어를 시공해 개방감을 주었습니다. 입구에서 들어와 복도를 통해 들어가보면 공용 사무공간은 완벽하게 분리되면서 대표실 공간까지 길이가 길어 보이는 효과가 있어 공간이 넓어 보이죠.


공용 사무실은 간살 파티션으로 분리했지만 창가에 배치해 답답하지 않게 사용할 수 있도록 했답니다. 화이트 벽면과 연 그레이톤 바닥으로 차분하면서 깔끔한 공간이 되도록 했고 창가에 화이트 컬러의 블라인드를 시공해 공간이 연장돼보이게 하면서 빛조절이 가능하도록 했습니다.
대표실도 화이트와 연 그레이톤 바닥으로 시공해 통일성을 주었고 공용 사무실과 마찬가지로 천장에 매입형 조명을 시공해 높은 층고를 확보하면서 공가니 넓어 보이도록 했죠. 기둥과 벽 사이에 수납장을 맞춤제작해 데드 스페이스를 살리면서 수납력을 높였고 간접조명을 시공해 은은한 분위기를 조성할 수 있도록 해드렸습니다.

입구측에 목공 가벽으로 완벽하게 분리한 탕비실입니다. 가벽으로 지저분해보일 수 있는 모습은 가렸지만 도어대신 공틀로 시공해 편의성과 사용성을 높였답니다. 성동구 성수동 에이원센터 하우스디 세종타워 사무실인테리어를 계획 중이시라면 저희 916디자인으로 문의해 주세요. 소형에서 대형까지 모든 면적과 형태의 사무실을 효율적으로 분리하고 실용적으로 사용할 수 있도록 만들어드리겠습니다.
#성동구 성수동 에이원센터 하우스디 세종타워 사무실인테리어 #사무실인테리어
공사문의 010-3235-8427
포트폴리오 바로가기▶916er.com
전화주시면 간단한 비용견적 상담부터 현장방문 미팅까지 진행하고 있습니다. 연락주세요.
2022.03.21 - [사무실인테리어] - 부천 신중동 더퍼스트 지식산업센터 우성테크노파크 사무실인테리어 유리가벽으로 세련되게 나누고 싶다면
부천 신중동 더퍼스트 지식산업센터 우성테크노파크 사무실인테리어 유리가벽으로 세련되게 나
부천 신중동 더퍼스트 지식산업센터 우성테크노파크 사무실인테리어 유리가벽으로 세련되게 나누고 싶다면 공사진행 부천 신중동 더퍼스트 지식산업센터 우성테크노파크 사무실인테리어를
dopamine7.com
2022.03.20 - [사무실인테리어] - 고양 더퍼스트타워 대방트리플라온비즈니스타워 사무실인테리어 웨인스코팅으로 고급스럽고 모던하게~
고양 더퍼스트타워 대방트리플라온비즈니스타워 사무실인테리어 웨인스코팅으로 고급스럽고
고양 더퍼스트타워 대방트리플라온비즈니스타워 사무실인테리어 웨인스코팅으로 고급스럽고 모던하게~ 공사완료 오늘은 고양 더퍼스트타워 대방트리플라온비즈니스타워 사무실인테리어에
dopamine7.com
2022.03.19 - [사무실인테리어] - 가양 아벨테크노 강서 한화비즈메트로 사무실인테리어 복층으로 넓게 활용하세요
가양 아벨테크노 강서 한화비즈메트로 사무실인테리어 복층으로 넓게 활용하세요
가양 아벨테크노 강서 한화비즈메트로 사무실인테리어 복층으로 넓게 활용하세요 공사완료 가양 아벨테크노 강서 한화비즈메트로 사무실인테리어를 구상하실 때 복층으로 시공하시면 같은 면
dopamine7.com
2022.03.18 - [사무실인테리어] - 다산 한강프리미어갤러리 별내 현대그러너리캠퍼스 별가람역 사무실인테리어 심플하면서 실용적으로 만들고 싶다면
다산 한강프리미어갤러리 별내 현대그러너리캠퍼스 별가람역 사무실인테리어 심플하면서 실용
다산 한강프리미어갤러리 별내 현대그러너리캠퍼스 별가람역 사무실인테리어 심플하면서 실용적으로 만들고 싶다면 3D 따뜻한 봄날이 이어지는 가운데 주춤했던 경제도 슬슬 살아났으면 하는
dopamine7.com
2022.03.17 - [사무실인테리어] - 독창적인 광명 테크노타운 테크노파크 사무실인테리어로 회사와 브랜드 이미지를 높일 수 있습니다
독창적인 광명 테크노타운 테크노파크 사무실인테리어로 회사와 브랜드 이미지를 높일 수 있습
독창적인 광명 테크노타운 테크노파크 사무실인테리어로 회사와 브랜드 이미지를 높일 수 있습니다 공사진행 안녕하세요, 916디자인입니다. 광명 테크노타운 테크노파크 사무실인테리어를 예
dopamine7.com
'사무실인테리어' 카테고리의 다른 글
| 성동구 성수동 생각공장데시앙플렉스 사무실인테리어 효율적이고 실용적으로 진행하세요~ (0) | 2022.03.31 |
|---|---|
| 강서IT밸리 가양 제1공단 사무실인테리어 영역별로 명확하게 연출하기 (0) | 2022.03.30 |
| 부천 아이에스인터내셔날 BK테크노밸리 사무실인테리어 3D 이미지로 미리 확인하세요~ (0) | 2022.03.29 |
| 한강미사 현대클러스터 아이에스비즈타워 사무실인테리어 클래식 모던으로 꾸미고 싶다면~ (0) | 2022.03.28 |
| 성남 분당 판교 영원패션클러스터 성우메디텍 사무실인테리어 시크하고 빈티지하게 연출하려면 (0) | 2022.03.26 |
| 평택 스마트큐브 더퍼스트타워 부드러운 디자인과 컬러로 쾌적하게~ (0) | 2022.03.25 |
| 인천 송도 스마트밸리 NIC지식산업센터 사무실인테리어 럭셔리하면서 모던하게 시공하세요 (0) | 2022.03.24 |
| 안산 타원타크라3차 안양 평촌k비즈리움 사무실인테리어 유리가벽으로 넓고 쾌적하게 시공하고 싶으시다면 (0) | 2022.03.23 |
- Total
- Today
- Yesterday
- 사무실인테리어견적
- 피티샵인테리어
- 사무실인테리어공사
- 지식산업센터인테리어
- 미용실인테리어
- 오피스인테리어
- 학원인테리어디자인
- 사무실리모델링
- 사무실디자인
- 916디자인
- 헤어샵인테리어
- 사무실인테리어추천
- 사무실인테리어
- 회사인테리어
- 인테리어디자인
- 사무실인테리어후기
- 사무실인테리어업체
- 사무실인테리어전문
- 헬스장인테리어
- 사무실인테리어잘하는곳
- 3D디자인
- 병원인테리어
- interior
- 사무실인테리어디자인
- 학원인테리어
- 3D사무실인테리어
- 인천사무실인테리어
- 상가인테리어
- 사무실인테리어비용
- 인테리어
| 일 | 월 | 화 | 수 | 목 | 금 | 토 |
|---|---|---|---|---|---|---|
| 1 | ||||||
| 2 | 3 | 4 | 5 | 6 | 7 | 8 |
| 9 | 10 | 11 | 12 | 13 | 14 | 15 |
| 16 | 17 | 18 | 19 | 20 | 21 | 22 |
| 23 | 24 | 25 | 26 | 27 | 28 | 29 |
| 30 |
