티스토리 뷰
목차
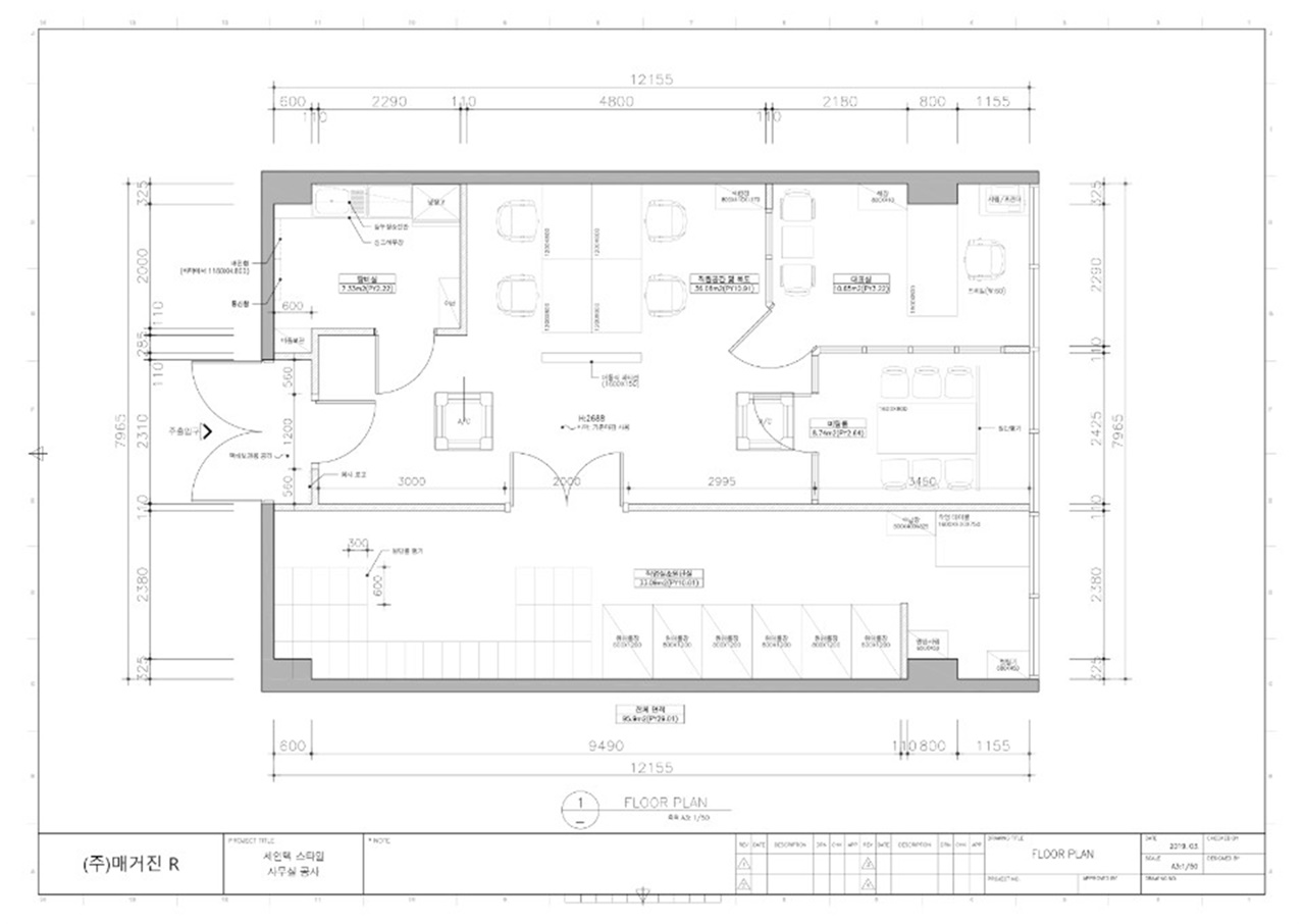
세종 청주 대전 IT 사무실인테리어, 10평 20평대 업무공간 분리 디자인 연출
- 3D


안녕하세요, 916디자인입니다. 이번에 세종 청주 대전 IT 사무실인테리어를 진행했는데요, 이번 현장은 10평 20평대의 좁은 공간을 알차게 사용할 수 있도록 업무공간을 분리하는데 포인트를 둔 디자인 연출입니다. 목적에 맞게 대표실, 업무실, 회의공간, 공용공간 등으로 다양하게 공간을 계획한 이번 인테리어는 트렌디한 스타일을 반영하기 위해 클라이언트와 상담을 통해 고객의 니즈를 반영한 맞춤형 공간으로 계획했습니다.



개인 공간은 따뜻하고 아늑한 원목을 적용하고 회의실은 따뜻하면서도 차분한 분위기를 조성할 수 있는 베이지와 그레이톤을 믹스앤매치했으며 철제 프레임이 세련된 긴 테이블을 배치해 모던한 분위기를 더했습니다. 업무 공간은 군더더기 없이 컴팩트하게 계획해 낭비되는 공간이 없도록 디자인해 10평 20평대의 좁은 공간을 효율적으로 사용할 수 있도록 최대한 고려했습니다.
- 공사진행





사무실 입구로 들어가보면 좌측으로는 탕비실이 위치해있고 오른편에는 대표실이 있는 구성으로 한 눈에 사무실 전체 모습이 들어올 정도로 좁은 공간이지만 최대한 넓어보일 수 있게 공간을 나누고 효율적으로 배치해 업무 능률과 작업 효율을 높일 수 있도록 답답해보이지 않으면서 업무공간을 분리할 수 있는 세종 청주 대전 IT 사무실인테리어로 시공했습니다.


사무실을 들어섰을 때 전체 분위기를 결정하는 것은 바닥과 벽 마감이지만 회사 분위기를 판가름하는 것은 문인테리어라고 해도 과언이 아닐 정도로 문은 실내 분위기는 물론 그 회사의 이미지에도 영향을 주는데요, 첨단을 주도하는 IT 사무실이지만 세종, 청주 대전이라는 행정 도시의 분위기를 반영해 차분한 컬러에 고급스러운 웨인스코팅을 디자인했습니다.
- 공사완료



웨인스코팅 문짝은 대표실뿐만 아니라 전체적으로 컬러와 디자인을 통일해 적용했습니다. 문 인테리어를 통일하는 것은 수직 관계가 아닌 수평 관계를 부여하기도 하는데요, 언제든지 서슴없이 열고 들어가 직원과 임원 혹은 선배와 후배가 소통할 수 있는 회사가 되기를 바라는 마음에 저희 916디자인에서 제안했고 클라이언트가 흔쾌히 받아들여 최종적으로 시공하게 됐습니다.


대표실 앞에서 본 입구 문 디자인과 입구 옆 탕비실 문 디자인입니다.



회사의 입구는 컬러와 웨인스코팅을 적용했지만 상부 웨인스코팅을 뚫어 반투명 망입유리를 시공했는데요, 반투명 망입유리는 외부로부터 시선을 차단해 프라이버시를 보호할 수 있고 안에 철사가 구성돼 있어 지진, 해일 등의 자연재해에도 안전하고 화재, 파손 등의 위험한 상황이 발생하더라도 연소를 방지하는 효과가 있으며 파편이 크게 흩어지지 않는 장점이 있어 안전하게 사용할 수 있습니다.
반투명 망입유리를 벽면을 따라 통일감있게 배치함으로써 공간의 답답함을 해소하고 조명이 비춰 공간이 더욱 밝아보여 넓어보이는 효과를 주었습니다.




사무실 전체 바닥 마감은 원목을 적용하고 유럽에서 유행하다 최근 국내에서도 인기를 끌고 있는 헤링본 패턴을 적용해 전체적으로 따뜩하고 아늑하며 부드러운 분위기를 연출하되 다양한 색감을 줘 지루하지 않게 스타일링했습니다. 대각선형 배치의 헤링본 패턴은 선형이 아름다운 구조로 독특하면서도 세련된 모습을 자랑하는데요,
심미적 기능뿐 아니라 소재 사이의 간격이 작고 기밀하기 때문에 수분이 침투하기 힘들어 내구성이 좋고 충격을 흡수하는 능력이 뛰어나 시공 후에도 유지관리가 수월한 편에 속합니다.




세종 청주 대전 IT 사무실인테리어 바닥은 헤링본 패턴의 원목 바닥으로 마감해 전체적으로 길어보이는 효과가 있어 공간이 넓어보이면서 세련된 인상을 연출하고 10평 20평대 업무공간 분리를 위해 유리 가벽과 문을 설치해 시각적으로 단절되지 않게 연결되도록 개방성 및 확장성을 부여했으며 블랙의 철제 프레임이 공간 분리는 물론 인테리어적 효과를 낼 수 있도록 디자인했습니다.



각 공간의 가구는 공간별로 디자인을 적용했는데요, 회의실에는 빌트인 수납 책장을 배치하고 공용공간인 탕비실에는 청결하고 위생적인 화이트 상부장과 하부장을 설치해 역할과 기능에 충실하도록 인테리어했습니다.
#세종 청주 대전 IT 사무실인테리어 #사무실인테리어
공사문의 010-3235-8427
- 포트폴리오 바로가기▶916er.com
전화주시면 간단한 비용견적 상담부터 현장방문 미팅까지 진행하고 있습니다. 연락주세요.
2021.05.14 - [사무실인테리어] - 광교 오산 평택 모던 사무실인테리어, 고급스러운 복층 3d 디자인 설계 및 무료견적
광교 오산 평택 모던 사무실인테리어, 고급스러운 복층 3d 디자인 설계 및 무료견적
광교 오산 평택 모던 사무실인테리어, 고급스러운 복층 3d 디자인 설계 및 무료견적 안녕하세요. 916디자인입니다. 오늘은 광교 오산 평택 모던 사무실인테리어 공사 현장으로 고급스러운 복층
dopamine7.com
2021.05.13 - [사무실인테리어] - 안산 안양 의왕 30평 40평 사무실인테리어 디자인 설계 금액
안산 안양 의왕 30평 40평 사무실인테리어 디자인 설계 금액
안산 안양 의왕 30평 40평 사무실인테리어 디자인 설계 금액 안녕하세요, 916디자인입니다. 이번에 저희 구일육디자인에서는 안산 안양 의왕에 30평 40평 사무실인테리어를 의뢰받고 디자인연출을
dopamine7.com
2021.05.12 - [사무실인테리어] - 동탄 광교 성수동 소규모 사무실인테리어 독특한 공간분리 레이아웃
동탄 광교 성수동 소규모 사무실인테리어 독특한 공간분리 레이아웃
동탄 광교 성수동 소규모 사무실인테리어 독특한 공간분리 레이아웃 안녕하세요 916디자인입니다. 오늘 저희는 동탄 광교 성수동 소규모 사무실인테리어에 대해서 소개를 해드리겠습니다. 사무
dopamine7.com
2021.05.11 - [사무실인테리어] - 송도 배곧 잠실 사무실인테리어, 작은평수 12평 14평 작업실 리모델
송도 배곧 잠실 사무실인테리어, 작은평수 12평 14평 작업실 리모델
송도 배곧 잠실 사무실인테리어, 작은평수 12평 14평 작업실 리모델링 안녕하세요 916디자인입니다. 이번에 소개해드릴 것은 작은평수에서 시도하는 송도 배곧 잠실 사무실인테리어입니다. 저희
dopamine7.com
2021.05.09 - [사무실인테리어] - 하남 미사 분당 사무실공사 비용, 10평 12평 14평 소형 공사비 싸게하기
하남 미사 분당 사무실공사 비용, 10평 12평 14평 소형 공사비 싸게하기
하남 미사 분당 사무실공사 비용, 10평 12평 14평 소형 공사비 싸게하기 안녕하세요 916디자인입니다. 이번에 소개해드릴 곳은 10평 12평 14평 하남 미사 분당 사무실공사입니다. 저희 916 디자인은
dopamine7.com
'사무실인테리어' 카테고리의 다른 글
| 강남 하남 미사 럭셔리 사무실인테리어, 고급스러운 우드스타일 3d레이아웃 설계 (0) | 2021.05.20 |
|---|---|
| 아산 이천 용인 쇼핑몰 사무실인테리어, 카페같은 복층사무실 (0) | 2021.05.19 |
| 수지 과천 성남 사무실인테리어, 공사진행 전 3d 디자인 설계 후 비용견적 (0) | 2021.05.18 |
| 신도림 청라 위례 소규모 사무실인테리어, 9평 15평 시공회사 견적서 (0) | 2021.05.17 |
| 화성 동탄 수원 영통 사무실인테리어, 클래식 우드 스타일링 복층사무실공사 시공사례 (0) | 2021.05.15 |
| 광교 오산 평택 모던 사무실인테리어, 고급스러운 복층 3d 디자인 설계 및 무료견적 (0) | 2021.05.14 |
| 안산 안양 의왕 30평 40평 사무실인테리어 디자인 설계 금액 (0) | 2021.05.13 |
| 동탄 광교 성수동 소규모 사무실인테리어 독특한 공간분리 레이아웃 (0) | 2021.05.12 |
- Total
- Today
- Yesterday
- 3D디자인
- 사무실디자인
- 인천사무실인테리어
- 회사인테리어
- 사무실인테리어비용
- 헬스장인테리어
- interior
- 사무실인테리어잘하는곳
- 사무실인테리어추천
- 헤어샵인테리어
- 사무실인테리어후기
- 사무실인테리어업체
- 3D사무실인테리어
- 상가인테리어
- 사무실리모델링
- 미용실인테리어
- 인테리어
- 피티샵인테리어
- 인테리어디자인
- 사무실인테리어
- 학원인테리어
- 사무실인테리어견적
- 병원인테리어
- 사무실인테리어전문
- 학원인테리어디자인
- 916디자인
- 오피스인테리어
- 지식산업센터인테리어
- 사무실인테리어디자인
- 사무실인테리어공사
| 일 | 월 | 화 | 수 | 목 | 금 | 토 |
|---|---|---|---|---|---|---|
| 1 | 2 | 3 | 4 | 5 | 6 | 7 |
| 8 | 9 | 10 | 11 | 12 | 13 | 14 |
| 15 | 16 | 17 | 18 | 19 | 20 | 21 |
| 22 | 23 | 24 | 25 | 26 | 27 | 28 |
| 29 | 30 | 31 |
