티스토리 뷰
목차
부평 신림 관악 소형 사무실인테리어, 좁은공간 3d 디자인
안녕하세요. 916디자인입니다. 오늘은 부평 신림 관악 소형 사무실인테리어, 좁은공간 3d 디자인을 소개해 드리려고 합니다. 작은 소형 평수의 회사 사무실 공간으로 10평 20평 정도되는 규모로 만나 보실 수 있습니다. 최대한 공간이 넓어 보일 수 있도록 화사하고 깔끔하게 디자인된 모습 만나 보실 수 있으며 기본적인 사무공간으로만 설계된 부분 확인해 보실 수 있습니다. 그럼 지금부터 자세한 인테리어 디자인 함께 살펴보시겠습니다.
- 3D


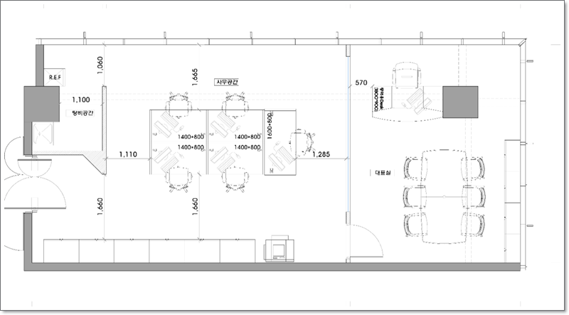
가장 먼저 부평 신림 관악 소형 사무실인테리어, 좁은공간 3d 디자인 전체 도면을 보여드리도록 하겠습니다. 회사 사무실 출입구에서 바로 공용 사무공간을 만나 볼 수 있으며 그다음으로 이어지는 공간이 개별 사무 공간으로 이루어져 있습니다. 좁은 공간이다 보니 최대한 공간이 넓어 보이면서 개방감이 느껴지도록 하기 위해 밝은 컬러로만 디자인하였으며 불필요한 부분 없이 깔끔하게 설계하였습니다.

회사 사무실 입구 외부 디자인 모습입니다. 네이비 컬러로 도어와 프레임을 채웠으며 그 옆쪽으로 우드 컬러에 간살 무늬가 들어간 디자인을 넣었으며 중간에 네이비 프레임을 더하여 포인트를 주었습니다. 깔끔하면서 세련된 분위기를 보여주는 멋진 디자인을 만나 보실 수 있으며 회사 분위기와 잘 어우리는 모습 만나 보실 수 있습니다. 밋밋해 보일 수 있는 디자인에 컬러감을 다르게 하고 디자인적으로 심플하지만 다르게 표현해 주면 멋진 공간으로 만들어 볼 수 있습니다.

부평 신림 관악 소형 사무실인테리어, 좁은공간 3d 디자인 회사 안쪽으로 들어오면 보실 수 있는 뷰입니다. 공용 사무실이 바로 보이지는 않고 대각선으로 살짝 가린 벽이 깔끔한 공간으로 만들어 주고 있습니다. 거기에 회사 출입구 디자인에서 사용된 네이비 컬러까지 더해져 입구에서 부터 이어지는 느낌을 주고 있습니다. 또한 전체적으로 밝은 컬러를 사용하여 공간이 화사해 보이며 넓어 보이는 효과까지 보여주고 있습니다.

부평 신림 관악 소형 사무실인테리어, 좁은공간 3d 디자인 공용 사무공간입니다. 전체 모두 화이트 컬러로 디자인하였으며 한쪽 벽면에는 길게 수납장을 설계하여 실용성을 높였습니다. 공간과 어울리는 화이트 컬러로 깔끔하게 디자인하여 좁은 공간에 수납장이 들어갔음에도 답답해 보이지 않습니다. 거기에 앞쪽에 벽면 또한 화이트 컬러로 진행하여 깔끔한 분위기를 보여줍니다.

공용공간 안쪽에는 개별 사무공간이 위치해 있는데 불투명 유리로 설계하여 안쪽 공간이 보이지 않아 더욱더 깔끔해 보이며 프라이버시도 존중되고 있어 모두가 만족도가 높은 인테리어로 만나 보실 수 있습니다. 개별 사무공간 벽면에는 그레이 컬러 프레임을 더하여 모던한 분위기를 강조해 주었으며 사무공간 출입구는 화이트 컬러로 진행하여 깔끔하게 완성하였습니다.

부평 신림 관악 소형 사무실인테리어, 좁은공간 3d 디자인 마지막 공간으로 개별 사무공간입니다. 개별 사무공간의 경우 대표나 임원실로 사용될 가능성이 높기 때문에 무게감 있고 멋진 분위기를 강조해 주기 위해 신경 써서 디자인하였습니다.
역시 군더더기 없이 깔끔하게 진행된 디자인으로 만나 보실 수 있으며 창문이 공간 전체를 감싸고 있어 매우 넓어 보이는 느낌입니다. 벽기둥도 역시 화이트 컬러로 진행하였으며 거기에 회사 이름을 더하여 공간에 포인트를 주었습니다. 밝은 컬러로만 진행하여 자칫 공간이 가벼워 보일 수 있어 짙은 그레이 컬러의 수납장을 배치하여 무게감을 더하였습니다.
지금까지 좁은 공간이지만 깔끔하고 세련되게 완성한 인테리어 디자인을 모두 보여 드렸습니다. 916디자인은 인테리어 전문 업체로 다년간의 노하우와 경험이 풍부한 베테랑 실력자들로만 구성되어 있습니다. 그로 인해 원하시는 공간으로 만나 보실 수 있으며 니즈가 충족된 만족도 높은 인테리어로 경험해 보실 수 있습니다.
거기에 합리적인 비용과 견적을 제공해 드리고 있어 더욱더 만족도가 높은 인테리어 전문 업체로 많은 분들이 인정해 주시고 찾아 주시고 있습니다. 사무실 인테리어는 물론 매장 인테리어를 전문적으로 하는 업체로 특별한 공간을 만들고 싶으시다면 916디자인을 찾아 주시기 바랍니다.
#부평 신림 관악 소형 사무실인테리어 #소형 사무실인테리어
공사문의 010-3235-8427
- 포트폴리오 바로가기▶916er.com
전화주시면 간단한 비용견적 상담부터 현장방문 미팅까지 진행하고 있습니다. 연락주세요.
2021.05.20 - [사무실인테리어] - 강남 하남 미사 럭셔리 사무실인테리어, 고급스러운 우드스타일 3d레이아웃 설계
강남 하남 미사 럭셔리 사무실인테리어, 고급스러운 우드스타일 3d레이아웃 설계
강남 하남 미사 럭셔리 사무실인테리어, 고급스러운 우드스타일 3d레이아웃 설계 - 3D 안녕하세요, 916디자인입니다. 오늘은 강남 하남 미사 럭셔리 사무실인테리어를 소개해드리려고 합니다. 고
dopamine7.com
2021.05.19 - [사무실인테리어] - 아산 이천 용인 쇼핑몰 사무실인테리어, 카페같은 복층사무실
아산 이천 용인 쇼핑몰 사무실인테리어, 카페같은 복층사무실
아산 이천 용인 쇼핑몰 사무실인테리어, 카페같은 복층사무실 안녕하세요. 916디자인입니다. 오늘은 아산 이천 용인 쇼핑몰 사무실인테리어, 카페같은 복층사무실 인테리어 디자인을 소개해 드
dopamine7.com
2021.05.18 - [사무실인테리어] - 수지 과천 성남 사무실인테리어, 공사진행 전 3d 디자인 설계 후 비용견적
수지 과천 성남 사무실인테리어, 공사진행 전 3d 디자인 설계 후 비용견적
수지 과천 성남 사무실인테리어, 공사진행 전 3d 디자인 설계 후 비용견적 안녕하세요, 916디자인입니다. 오늘은 수지 과천 성남 사무실인테리어, 공사진행 전 3d 디자인 설계 후 비용견적을 알아
dopamine7.com
2021.05.17 - [사무실인테리어] - 신도림 청라 위례 소규모 사무실인테리어, 9평 15평 시공회사 견적서
신도림 청라 위례 소규모 사무실인테리어, 9평 15평 시공회사 견적서
신도림 청라 위례 소규모 사무실인테리어, 9평 15평 시공회사 견적서 안녕하세요. 916디자인입니다. 오늘은 신도림 청라 위례 소규모 사무실인테리어 9평 15평 현장으로 인테리어 시공회사 전문 91
dopamine7.com
2021.05.16 - [사무실인테리어] - 세종 청주 대전 IT 사무실인테리어, 10평 20평대 업무공간 분리 디자인 연출
세종 청주 대전 IT 사무실인테리어, 10평 20평대 업무공간 분리 디자인 연출
세종 청주 대전 IT 사무실인테리어, 10평 20평대 업무공간 분리 디자인 연출 - 3D 안녕하세요, 916디자인입니다. 이번에 세종 청주 대전 IT 사무실인테리어를 진행했는데요, 이번 현장은 10평
dopamine7.com
'사무실인테리어' 카테고리의 다른 글
| 강북 광진구 강동구 빈티지 사무실인테리어, 쇼핑몰 IT 사무공간 디자인 (0) | 2021.05.26 |
|---|---|
| 남양주 별내 문정동 사무실인테리어, 가벽 시공으로 내부 공간분리 (0) | 2021.05.25 |
| 분당 판교 구리 칸막이공사 사무실인테리어, 업무공간 활용 3d 사례 (0) | 2021.05.23 |
| 여의도 운정 고천 고급스러운 사무실인테리어 리모델링 시공사례 (0) | 2021.05.22 |
| 강남 하남 미사 럭셔리 사무실인테리어, 고급스러운 우드스타일 3d레이아웃 설계 (0) | 2021.05.20 |
| 아산 이천 용인 쇼핑몰 사무실인테리어, 카페같은 복층사무실 (0) | 2021.05.19 |
| 수지 과천 성남 사무실인테리어, 공사진행 전 3d 디자인 설계 후 비용견적 (0) | 2021.05.18 |
| 신도림 청라 위례 소규모 사무실인테리어, 9평 15평 시공회사 견적서 (0) | 2021.05.17 |
- Total
- Today
- Yesterday
- 사무실인테리어추천
- 병원인테리어
- 3D디자인
- 학원인테리어디자인
- 헤어샵인테리어
- 피티샵인테리어
- 오피스인테리어
- 인테리어디자인
- 사무실인테리어디자인
- 사무실인테리어잘하는곳
- 인테리어
- 3D사무실인테리어
- 사무실인테리어비용
- 회사인테리어
- 사무실리모델링
- 사무실인테리어업체
- interior
- 인천사무실인테리어
- 사무실인테리어견적
- 학원인테리어
- 사무실인테리어후기
- 헬스장인테리어
- 미용실인테리어
- 916디자인
- 지식산업센터인테리어
- 사무실디자인
- 상가인테리어
- 사무실인테리어공사
- 사무실인테리어전문
- 사무실인테리어
| 일 | 월 | 화 | 수 | 목 | 금 | 토 |
|---|---|---|---|---|---|---|
| 1 | 2 | 3 | ||||
| 4 | 5 | 6 | 7 | 8 | 9 | 10 |
| 11 | 12 | 13 | 14 | 15 | 16 | 17 |
| 18 | 19 | 20 | 21 | 22 | 23 | 24 |
| 25 | 26 | 27 | 28 | 29 | 30 | 31 |
