티스토리 뷰
목차
새로운 시작을 준비하는 학생들에게 학원은 지식을 습득하는 장소이자, 자신의 미래를 설계하는 중요한 베이스캠프가 되죠!
특히 유학 준비 어학원이나 유학 전문 센터의 경우, 학부모님과 학생들에게 주는 첫인상이 곧 그곳의 전문성과 신뢰도로 직결되기 마련인데요.
이번에 저희가 진행한 강동구학원인테리어 현장은 기존의 딱딱한 학원 분위기에서 탈피하여 고급스러운 프리미엄 오피스 무드를 담아내는 데 주력했답니다.
평범한 시공이 아닌, 방문객의 동선과 심리적 안정감까지 고려한 구일육디자인만의 학원인테리어 솔루션을 지금부터 자세히 소개해 드리겠습니다.
강동구학원인테리어 맞춤형 레이아웃

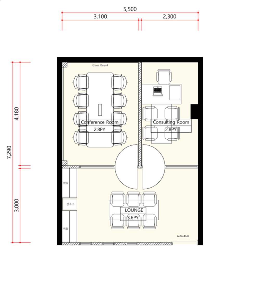
성공적인 공사의 시작은 현장 상황에 최적화된 설계와 클라이언트의 니즈를 정확히 반영한 시각화 작업에서 시작된답니다.
강동구학원인테리어의 핵심은 한정된 복도형 구조 안에서 어떻게 하면 개방감을 확보하면서도 각 상담실과 강의실의 독립성을 유지하느냐에 있었는데요.


저희는 본 공사에 들어가기 전, 실제 현장과 1:1 비율로 정밀하게 설계된 3D 시뮬레이션을 통해 공간의 동선 효율성을 철저히 검증하였답니다.
특히 딥우드 포인트와 라인 조명이 만나는 지점의 마감 수치까지 미리 계산하여 실제 시공 시 발생할 수 있는 변수를 사전에 차단했는데요.

단순히 예쁜 그림을 그리는 것을 넘어, 실제 가구가 배치되었을 때의 여유 공간과 조명 아래에서 느껴지는 마감재의 반사율까지 고려한 프리미엄 솔루션을 제안해 드렸답니다.
상담실 내부의 가구 배치 또한 3D 디자인 단계에서 여러 번의 수정을 거쳐 최적의 심리적 거리감을 찾아냈는데요.


이러한 치밀한 기획 과정이 있었기에 클라이언트께서도 완성될 공간에 대해 확신을 가지실 수 있었고, 이는 곧 공사 기간 단축과 퀄리티 향상이라는 결과로 이어졌답니다.
강동구학원인테리어의 디자인은 곧 사업의 성공을 위한 가장 기초적이면서도 강력한 무기가 된다는 점을 저희는 늘 잊지 않고 작업에 임한답니다.
강동구학원인테리어 꼼꼼한 기본 공사



디자인이 아무리 훌륭해도 그것을 뒷받침하는 시공 능력이 없다면 결과물은 결코 견고할 수 없답니다.
강동구학원인테리어 공사 진행 과정에서는 소음 차단을 위한 방음 공사와 쾌적한 학습 환경을 위한 공조 시설 확충에 큰 비중을 두었는데요.


특히 이번 현장에서 가장 중요한 포인트였던 매립형 라인 조명의 경우, 천장 속 배관과의 간섭을 피하면서도 빛의 선이 끊어지지 않도록 목공 단계부터 등박스를 정교하게 제작하였답니다.
천장 높이를 최대한 확보하기 위해 슬라브 층의 상태를 꼼꼼히 체크하며 단 1cm의 오차도 허용하지 않는 수평 작업을 거쳐야만 비로소 완벽한 직선의 미학이 완성되는 법이죠.


또한, 유리 파티션이 설치될 자리는 금속 프레임의 고정력을 높이기 위해 바닥과 천장 보강 작업을 선행하였고, 전기 배선 작업 시에도 각 상담실의 개별 냉난방 및 전열 부하를 계산하여 안전성을 최우선으로 고려했답니다.
벽면의 딥우드 마감재를 부착할 때에도 이음새가 보이지 않도록 '졸리컷' 기법과 정밀한 재단을 반복하며 장인 정신으로 시공에 임했는데요.

공사 현장의 청결 유지와 폐기물 처리까지 원칙대로 진행하며 인근 상가에 민원이 발생하지 않도록 세심하게 관리하는 것 역시 강동구학원인테리어 전문 업체인 저희만의 프리미엄 운영 방식이랍니다.
보이지 않는 가벽 내부와 천장 안쪽까지 정직하게 시공했기에 시간이 흘러도 변함없는 견고함을 약속드릴 수 있죠.
강동구학원인테리어 하이엔드 어학 공간 구현


이제 드디어 모든 공정이 마무리된 강동구학원인테리어의 완공 모습을 아주 상세하게 살펴볼 차례인데요.
이번 현장의 하이라이트인 입구 파사드부터 말씀드리지 않을 수 없답니다.
묵직한 딥우드 톤의 아트월 위에 화이트로 발광하는 'BP' 심볼 로고는 마치 명품관에 들어서는 듯한 압도적인 첫인상을 선사하는데요.




조명을 아트월 상단 끝까지 밀착시켜 은은하게 퍼지는 빛이 나무의 결을 살려주도록 설계했답니다.
복도 전체 뷰를 보시면 이 우드 아트월이 화이트 벽면과 대비를 이루며 공간의 중심을 잡아주고, 천장의 라인 조명이 복도 끝까지 시원하게 뻗어 나가며 공간감을 극대화하는 것을 알 수 있죠.






복도를 지나 내부로 들어오면 보이는 유리 가벽은 강동구학원인테리어의 투명성과 전문성을 동시에 보여주는데요.
화이트 프레임으로 깔끔하게 마감된 유리창 너머로 내부 상담실의 차분한 분위기가 살짝 비치며, 가로형 알루미늄 블라인드를 통해 세련된 직선미를 더했답니다.



라운지 공간은 방문객들이 잠시 대기하며 긴장을 풀 수 있는 휴게 스팟인데요.
베이지 톤의 코너형 소파와 부드러운 패브릭 질감의 체어, 그리고 벽면에 새겨진 타이포그래피 포인트가 조화를 이뤄 마치 북카페 같은 편안함을 자아낸답니다.
특히 뒤편 탕비실 공간은 샌드베이지 컬러의 상하부장으로 마감하여 깔끔한 수납 솔루션을 제안해 드렸죠.






원장님과의 심도 있는 대화가 오가는 개인 상담실은 이번 강동구학원인테리어의 핵심적인 오피스 무드를 담고 있는데요.
뒷벽에는 입구와 동일한 'BP' 로고를 부착하되, 입체적인 스카시 형태로 제작하여 신뢰감을 강조했답니다.



중후한 다크 우드 데스크와 고급스러운 가죽 체어의 조합은 유학원 특유의 전문적인 상담 분위기를 완성하는데요.
데스크 위에 놓인 소품 하나까지 공간의 톤앤매너를 해치지 않도록 배치했답니다.
특히 클로즈업 컷을 보시면 벽면 코너에 매립된 간접 등박스가 은은한 후광 효과를 주어 상담자의 얼굴을 더욱 신뢰감 있게 비춰준다는 사실을 알 수 있죠.



단체 상담이나 세미나가 진행되는 회의실 역시 강동구학원인테리어의 프리미엄 감성이 잘 녹아있는데요.
전면 통유리창에 블라인드를 설치하여 개방감과 프라이버시를 동시에 챙겼고, 한쪽 벽면은 대형 유리 보드를 매립 시공하여 판서의 편리함까지 확보했답니다.




또한 각 공간의 용도에 맞춰 조명의 온도와 밝기를 미세하게 다르게 설정한 것은 강동구학원인테리어 전문 업체인 저희만의 세심한 노하우라고 자부할 수 있죠.
바닥 마감재 역시 보행 소음이 적고 관리가 용이한 연한 그레이 톤의 고강도 타일을 선택하여 실용성과 심미성을 모두 잡으며 '프리미엄 오피스'라는 테마를 완벽하게 구현했답니다.


이 공간의 천장에는 무영등 효과를 주는 직사각형 라인 조명을 설치하여 눈의 피로를 최소화했는데요.
세부적인 사진들을 더 살펴보면, 복도의 도어 손잡이 하나부터 천장의 매립형 디퓨저, 바닥의 포세린 타일 마감까지 어느 하나 정성이 닿지 않은 곳이 없음을 확인하실 수 있답니다.
공간은 그곳을 이용하는 사람의 태도와 마음가짐을 바꾼다고 하는데요.
이번 강동구학원인테리어 프로젝트는 학생들에게는 최고의 집중력을, 학부모님께는 확고한 믿음을 줄 수 있는 프리미엄 공간을 만드는 것에 중점을 두었답니다.
유학 준비라는 긴 여정의 첫걸음을 떼는 이 소중한 공간이 원장님의 열정과 저희의 감각적인 시공으로 더욱 빛나길 진심으로 응원하는데요.
학원 및 어학원 시공에 있어 차별화된 솔루션이 필요하시다면 언제든 저희 구일육디자인의 문을 두드려 주시기 바랍니다.
☎️ 공사문의 ☎️
010 -3235- 8427
📷 포트폴리오 더보기 📷
https://916er.com/
사무실인테리어 디자인 공사 비용견적 플랫폼 - 사무실인테리어 916
사무실인테리어 916
916er.com
2026.02.23 - [학원인테리어] - 고양인테리어업체 헤링본 마루와 맞춤 가구로 완성한 영어 학원 1:1 밀착 학습 공간
고양인테리어업체 헤링본 마루와 맞춤 가구로 완성한 영어 학원 1:1 밀착 학습 공간
오늘은 고양 지역에서 영어 학원 창업이나 리모델링을 고민하시는 분들께 영감을 드릴 수 있는 특별한 시공 사례를 소개합니다. 학원이라는 공간은 지식을 전달하는 곳이기도 하지만, 무엇보다
dopamine7.com
2026.01.29 - [학원인테리어] - 프랜차이즈학원창업 인테리어 본사도 감탄한 퀄리티! 브랜드 정체성을 200% 녹여낸 영어학원
프랜차이즈학원창업 인테리어 본사도 감탄한 퀄리티! 브랜드 정체성을 200% 녹여낸 영어학원
프랜차이즈학원창업 인테리어는 해당 브랜드가 추구하는 교육 철학과 시스템을 완벽하게 시각화해야 하는 작업입니다. 이번에 저희 구일육디자인이 진행한 삼성영어 셀레나 현장은 브랜드 본
dopamine7.com
2025.12.10 - [학원인테리어] - 오산학원인테리어 유아전문 수학 교습소 설계 및 디자인 요소
오산학원인테리어 유아전문 수학 교습소 설계 및 디자인 요소
아이들이 가장 많은 시간을 보내는 공간 중 하나인 '학원'. 특히, 유아전문 교습소는 아이들의 첫 학습 경험을 제공하는 곳이자, 지적 호기심과 정서적 안정감을 동시에 길러주는 중요한 공간인
dopamine7.com
2025.11.25 - [학원인테리어] - 방음 공사는 기본! 스터디카페인테리어 개인룸 및 스터디룸 디자인 노하우
방음 공사는 기본! 스터디카페인테리어 개인룸 및 스터디룸 디자인 노하우
근래 몇 년간 스터디카페 창업이 인기를 끌면서 많은 분들이 인테리어 문의를 주고 계십니다. 그 중에서도 가장 신경써야 할 부분이 바로 방음 공사인데요. 다른 손님들에게 피해를 주지 않기
dopamine7.com
'학원인테리어' 카테고리의 다른 글
| 피아노교습소인테리어 10평 견적 비교, 합리적인 비용으로 프리미엄 방음실 만들기 (0) | 2026.04.10 |
|---|---|
| 수원상가인테리어 프리미엄 영어 학원 완공 후기, 마감재 하나로 달라지는 공간의 품격 (0) | 2026.03.18 |
| 대구상가인테리어 | 요즘 뜨는 수학학원은 다르다! 빈티지 모던으로 완성한 교습소 시공 포트폴리오 (0) | 2026.03.09 |
| 대전학원인테리어, 비용 대비 고효율 가성비 미니멀리즘 설계로 완성한 수학교습소 브랜딩 (0) | 2026.03.06 |
| 고양인테리어업체 헤링본 마루와 맞춤 가구로 완성한 영어 학원 1:1 밀착 학습 공간 (0) | 2026.02.23 |
| 포천상가인테리어 학원 시공 사례로 살펴본 디자인 기본 구성 (1) | 2026.02.09 |
| 인천학원인테리어 실용적이고 세련된 수학 교습소 디자인 가이드 (0) | 2026.02.05 |
| 프랜차이즈학원창업 인테리어 본사도 감탄한 퀄리티! 브랜드 정체성을 200% 녹여낸 영어학원 (0) | 2026.01.29 |
- Total
- Today
- Yesterday
- 사무실인테리어업체
- 학원인테리어디자인
- 사무실인테리어비용
- 사무실리모델링
- interior
- 사무실인테리어
- 오피스인테리어
- 사무실인테리어잘하는곳
- 상가인테리어
- 지식산업센터인테리어
- 인테리어디자인
- 사무실인테리어전문
- 미용실인테리어
- 3D사무실인테리어
- 인테리어
- 사무실디자인
- 사무실인테리어후기
- 916디자인
- 사무실인테리어추천
- 인천사무실인테리어
- 헤어샵인테리어
- 병원인테리어
- 피티샵인테리어
- 회사인테리어
- 3D디자인
- 사무실인테리어공사
- 사무실인테리어디자인
- 학원인테리어
- 헬스장인테리어
- 사무실인테리어견적
| 일 | 월 | 화 | 수 | 목 | 금 | 토 |
|---|---|---|---|---|---|---|
| 1 | 2 | 3 | 4 | |||
| 5 | 6 | 7 | 8 | 9 | 10 | 11 |
| 12 | 13 | 14 | 15 | 16 | 17 | 18 |
| 19 | 20 | 21 | 22 | 23 | 24 | 25 |
| 26 | 27 | 28 | 29 | 30 |


