티스토리 뷰
목차
상가인테리어는 고객의 첫인상을 좌우하는 중요한 요소입니다.
특히 미용실처럼 방문 시간이 길고 분위기와 감성이 큰 영향을 주는 공간에서는 디자인 선택이 더욱 중요하죠.
오늘은 최근 완성된 광주상가인테리어 사례 중,
우드톤을 활용해 따뜻하면서도 세련된 느낌을 완성한 미용실 디자인을 소개해보겠습니다.


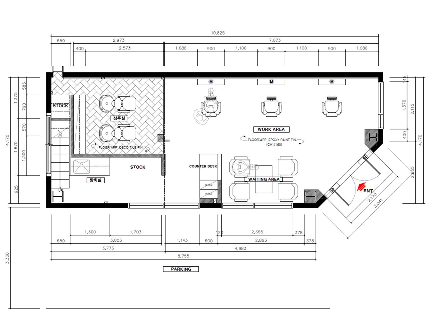
광주상가인테리어 공간 분위기
미용실은 고객이 머무는 시간이 길기 때문에 편안한 분위기를 주는 것이 핵심입니다.



이번 광주상가인테리어에서는 전체적 베이스 컬러로 은은한 우드톤을 활용해 자연스러운 편안함을 강조했습니다.




밝은 오크 계열의 톤을 사용해 공간이 넓어 보이면서도 부드러운 온기를 느낄 수 있도록 구성했습니다.



심플한 목재 질감 덕분에 어떤 스타일의 고객이 방문해도 자연스럽게 어울리는 분위기가 연출됩니다.




광주상가인테리어 동선 배치
미용실 디자인에서 가장 중요한 요소 중 하나가 바로 동선입니다.



고객의 동선, 디자이너의 작업 동선, 그리고 샴푸 공간이동까지 모두 고려해야 불편함이 없습니다.



이번 디자인에서는 카운터, 커트존, 샴푸존이 자연스럽게 이어지도록 배치해 운영효율을 높였습니다.



샴푸대 주변에는 방음과 프라이버시를 고려해 파티션을 설치해 고객 만족도를 높였고,


각 자리 간의공간도 넉넉하게 배치해 답답하지 않도록 구성했습니다.




광주상가인테리어 포인트 조명
우드톤 인테리어는 조명 선택에 따라 분위기가 크게 달라집니다.



기본적으로 따뜻한 색감의 조명을 사용해 목재의 질감을 더욱 살렸고,
거울 주변에는 밝고 선명한 화이트 조명을 배치해 작업 정확도를 높였습니다.



천장에서는 라인조명을 활용해 공간 깊이를 확보했고, 샴푸실은 밝기를 낮춰 안정감을 주는 방식으로 조도를 조절했습니다.


이런 작은 조명 변화만으로도 미용실 전체 분위기가 훨씬 고급스럽게 살아납니다.




광주상가인테리어 실용적인 구성
상가인테리어는 예쁜 것만큼 실용성이 중요합니다.


이번 광주상가인테리어에서는 수납공간을 벽면 중심으로 배치해 작업 도구가 깔끔하게 정리되도록 설계했습니다.


또한 내구성이 강한 마감재를 선택해 물, 열, 염색약 등에 쉽게 손상되지 않도록 했고, 청소가 편한 동선과 소재를 적용해 관리 부담을 줄인 것도 중요한 포인트입니다.

운영자가 실제로 사용하며 느끼는 불편함을 해소하는 방향으로 구성해 기능성과 디자인을 모두 잡을 수 있었습니다.
우드톤으로 완성한 이번 광주상가인테리어 미용실은 자연스러운 따뜻함과 현대적인 감각이 조화된 공간으로 완성되었습니다.
감성적인 분위기와 실용적 설계가 잘 어우러져 고객과 디자이너 모두 만족할 만한 공간이 되었습니다.
저희는 고객님의 니즈와 예산에 맞는 디자인을 제안드리고, 꼼꼼한 시공으로 만족을 드리고 있습니다.
궁금한 내용 있으면 언제든지 문의주세요.
친절하게 상담해 드리겠습니다.
☎️ 공 사 문 의 ☎️
010 - 3235 - 8427
🔽 포트폴리오 더 보기 🔽
사무실인테리어 디자인 공사 비용견적 플랫폼 - 사무실인테리어 916
사무실인테리어 916
916er.com
2025.11.26 - [미용실인테리어] - 은평구미용실인테리어 효율적인 레이아웃 세련된 디자인으로 고객 감동!
은평구미용실인테리어 효율적인 레이아웃 세련된 디자인으로 고객 감동!
최근에 진행했던 은평구미용실인테리어 현장을 소개해드리겠습니다. 클라이언트분께서 워낙 감각이 뛰어나셔서 그 어느때보다 열정적으로 진행했던 현장이었는데요. 경대 위치부터 샴푸실 배
dopamine7.com
2025.11.25 - [미용실인테리어] - 고급스러운 디자인의 가성비까지 챙긴 양재미용실인테리어 시공기
고급스러운 디자인의 가성비까지 챙긴 양재미용실인테리어 시공기
미용실은 단순히 헤어스타일을 바꾸는 곳이 아니라 고객의 경험을 만들어가는 공간입니다. 이번에 시공한 양재미용실인테리어는 고급스러운 디자인과 합리적인 비용의 균형을 잡아 가성비까
dopamine7.com
2025.11.19 - [미용실인테리어] - 부천미용실인테리어 깔끔해서 세련미가 돋보이는 디자인 추천
부천미용실인테리어 깔끔해서 세련미가 돋보이는 디자인 추천
최근 지인이 미용실을 오픈하게 되어 부천미용실인테리어를 함께 고민하여 진행하게 되었는데요. 그 과정에서 알게 된 깔끔하고 세련된 미용실 인테리어 디자인을 추천해 드리려고 합니다. 미
dopamine7.com
'미용실인테리어' 카테고리의 다른 글
| 오산상가인테리어 헤어샵 디자인 감성적인 컬러 활용법 (0) | 2025.12.23 |
|---|---|
| 은평구미용실인테리어 효율적인 레이아웃 세련된 디자인으로 고객 감동! (0) | 2025.11.26 |
| 고급스러운 디자인의 가성비까지 챙긴 양재미용실인테리어 시공기 (0) | 2025.11.25 |
| 애견미용실인테리어업체가 공개하는 트렌디한 애견샵 시공 3가지 모음 (0) | 2025.11.21 |
| 부천미용실인테리어 깔끔해서 세련미가 돋보이는 디자인 추천 (0) | 2025.11.19 |
| 원주미용실인테리어 조명 활용이 돋보이는 감각적인 헤어샵 소개 (0) | 2025.11.17 |
| 용인상가인테리어 따로 또 같이! 공간활용 너무 잘한 네일샵과 미용실 샵인샵 디자인 (0) | 2025.11.04 |
| 1인미용실인테리어 소형 10평 공간을 최대한 활용한 헤어샵디자인 시공 사례 모음 (0) | 2025.10.31 |
- Total
- Today
- Yesterday
- 사무실인테리어후기
- 상가인테리어
- 사무실인테리어디자인
- 병원인테리어
- 헤어샵인테리어
- 오피스인테리어
- 미용실인테리어
- 3D사무실인테리어
- 사무실인테리어전문
- 사무실디자인
- 회사인테리어
- 인테리어
- 916디자인
- 피티샵인테리어
- 사무실인테리어추천
- 사무실인테리어업체
- 사무실인테리어잘하는곳
- 사무실인테리어비용
- 사무실인테리어공사
- 헬스장인테리어
- 인테리어디자인
- 사무실인테리어
- 학원인테리어디자인
- 사무실리모델링
- interior
- 학원인테리어
- 사무실인테리어견적
- 지식산업센터인테리어
- 인천사무실인테리어
- 3D디자인
| 일 | 월 | 화 | 수 | 목 | 금 | 토 |
|---|---|---|---|---|---|---|
| 1 | 2 | 3 | ||||
| 4 | 5 | 6 | 7 | 8 | 9 | 10 |
| 11 | 12 | 13 | 14 | 15 | 16 | 17 |
| 18 | 19 | 20 | 21 | 22 | 23 | 24 |
| 25 | 26 | 27 | 28 | 29 | 30 | 31 |
