티스토리 뷰
목차
구로병원인테리어는 환자들에게 고급스러움과 편안함을
동시에 제공하는 특별한 경험을 선사하고 있습니다.
피부과 의원이라는 특성상, 환자들은 치료뿐만 아니라 그 공간에서 느끼는 감정도 매우 중요하죠.
고급스러운 인테리어는 심리적으로 안정감을 주고, 전문성을 느끼게 하여
더 나은 치료 효과를 기대할 수 있게 해줍니다.
오늘은 고급스러운 피부과 의원의 구로병원인테리어를 살펴보겠습니다.
구로병원인테리어 공간을 구성하는 디자인

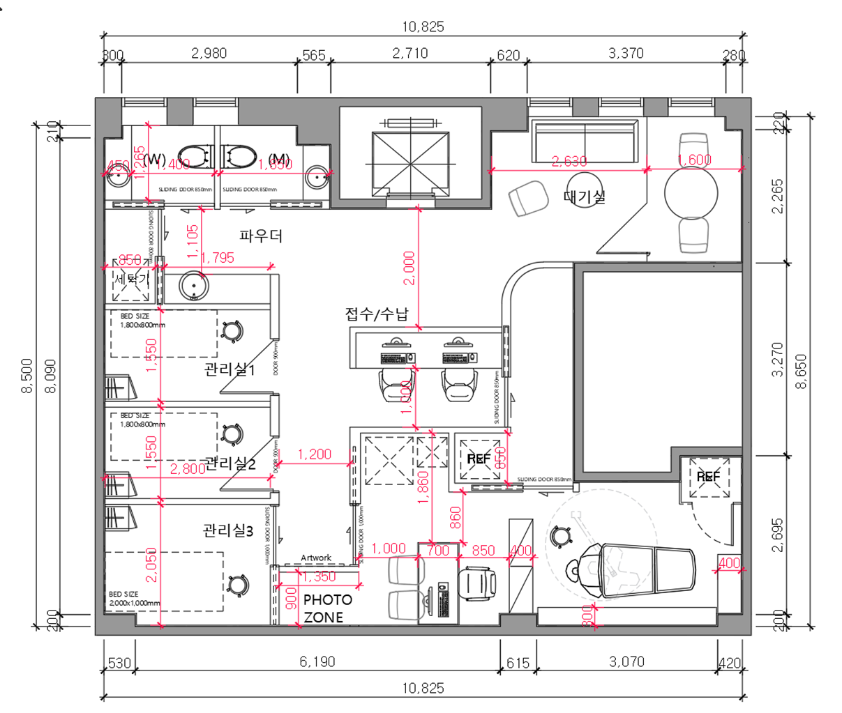
먼저 구로병원인테리어의 2D 도면입니다.
2D 디자인은 공가을 시각적으로 어떻게 배치할 것인가에 대한 구상입니다.
피부과의원의 2D 디자인은 전체적인 공간 흐름과 기능성을 고려한 레이아웃으로 구성되었습니다.
각 공간은 고객과 직원의 동선, 효율성, 편안함을 중심으로 설계되었습니다.
전체적인 흐름은 고객이 처음 입장하여 안내 데스크에서 상담을 받고,
대기실에서 대기 후 진료를 받을 수 있도록, 각 공간의 흐름을 명확하게 배치했습니다.
또한 진료 후 고객이 대기실로 돌아오는 동선도 최소화하여 효율적인 공간 사용이 가능하도록 설계되었습니다.
구로병원인테리어 단계별 프로세스



공사 시공 과정은 디자인을 실제 건축물로 변환하는 중요한 단계입니다.
각 단계마다 어떤 과정을 거쳤는지 상세하게 설명드리겠습니다.
먼저 기존 공간에 대한 철거 작업을 시작합니다.
기존의 벽, 바닥, 천장 등을 철거한 후 공간의 기본 구조를 준비합니다.
기존 병원의 레이아웃이 변경되는 부분은 미리 설계도를 바탕으로 철거 및 보강 작업을 진행합니다.




철거 후에는 기본적인 기초 작업이 이루어집니다.
여기서 중요한 것은 전기 배선과 배수 시스템을 준비하는 작업입니다.
이 단계에서는 필요한 배관, 전선, 통신선 등을 적절히 배치하여
후속 작업을 원활하게 진행할 수 있도록 합니다.
벽체는 기본 골조가 완성된 후 우드 패널이나 타일을 덧대기 전에 건식벽을 설치하여 기본적인 벽면을 만듭니다.
벽체의 구조적 안정성을 고려하여, 우드 포인트 벽면과 타일 마감 벽면을 추가하는 방식으로 공사를 진행합니다.


바닥과 천장 작업이 마감된 후에는 세무 마감 및 최종 점검 작업이 이루어집니다.
대리석 데스크와 타일 벽면을 세심하게 시공되며, 마감 재료의 색상과 질감이
디자인과 일치하도록 꼼꼼히 조정합니다.
또한 공간을 고급스럽게 연출하기 위해, 각 공간에 맞는 조명도 설치합니다.
이후 공사가 완료되면, 공간의 설계도에 맞게 제대로 시공되었는지 최종 점검을 하고 시공을 마갑합니다.
구로병원인테리어 고급스러움이 돋보이는 공간




입구에서 바로 보이는 안내 데스크는 화이트 색상으로 마감하여
깔끔하고 세련된 느낌을 주었습니다.
상판은 대리석 질감이 느껴지는 고급스러운 화이트 컬러로 처리하여,
병원에서 느낄 수 있는 청결하고 현대적인 이미지를 강조했습니다.



안내 데스크 디자인은 곡선과 직선을 사용하여 간결하면서도, 고객이 편안하게
상담할 수 있도록 적당한 크기와 배치를 고려하여 설계되었습니다.
고객과 직원간의 소통을 원활하게 할 수 있는 공간을 제공하며,
데스크 앞의 공간 또한 심플하면서도 고급스럽게 연출하였습니다.











다음은 구로병원인테리어 피부과에서는 필수적인 파우더룸과 화장실 공간입니다.
세면대 공간에서는 고급스러운 대리석을 사용하여 세련된 분위기를 강조했습니다.
세면대의 상판은 고급스러운 대리석 소재로 처리하여 자연스럽고 세련된 느낌을 주며,
벽면 역시동일한 색상의 타일로 마감해 고급스러움과 청결함을 동시에 만족시켰습니다.









구로병원인테리어는 공간 활용이 뛰어난 디자인으로 완성되었습니다.
각 치료실은 독립적인 공간으로 설계되어 환자 개인의 프라이버시를 보장하며,
동시에 의료진과의 원활한 소통이 이루어질수 있도록 배치하였습니다.
이러한 공간 배치는 환자들의 불편함을 최소화하고, 치료의 효율성을 높이는데 큰 역할을 하죠.






병원의 로비와 대기실은 바다과 벽면에 고급 타일을 활용하여
전체적인 공간의 품격을 한층 높였습니다.
바닥에도 브라운계열의 연한 마블링 타일을 사용하여 고급스러움을 강조하고,
벽면에도 매트한 질감의 타일을 사용하여 세련된 분위기를 연출하였습니다.




화단 공간에서는 자연을 느낄 수 있는 요소를 도입했습니다.
타일 벽면과 함께 배치된 화분은 고급스러운 디자인의 화분에 식물을 배치해
고객들이 편안하게 대기할 수 있도록 했습니다.
이러한 작은 요소 하나하나가 고급스러운 디자인의 병원인테리어입니다.






구로병원 실내 디자인에 자연 요소를 적극적으로 통합하여 디자인하였습니다.
실내 식물과 함께 고급스러운 유리 가벽은 공간에 생동감을 더해주고,
환자들에게 편안함을 느끼게 해줍니다.




진료실은 환자들이 가장 많은 시간을 보내는 공간으로,
깔끔하고 현대적인 디자인을 중점적으로 고려했습니다.
진료실은 화이트 톤을 바탕으로 한 인테리어로, 차분하고 깨끗한 느낌을 줍니다.
구로병원인테리어 피부과 의원은 환자들에게 특별한 경험을 위해
세련된 인테리어와 편안한 분위기, 그리고 고급스러운 디자인을 통해
환자들에게 신뢰감을 심어주었습니다.
이러한 요소들이 결합되어 환자들에게 더욱 사랑받는 공간으로 자리잡을 것입니다.
병원인테리어를 고민하시는 분들은 주저하지 마시고 저희에게 문의바랍니다.
📞 상담 문의 📞
010-3235-8427
🔽 포트폴리오 더 보기 🔽
2025.01.21 - [병원인테리어] - 대형병원인테리어 업체추천 믿음이 가는 디자인부터 완공까지
대형병원인테리어 업체추천 믿음이 가는 디자인부터 완공까지
대형병원인테리어 최신 트렌드 반영 최근 다양한 병원들이 개원을 하면서 병원인테리어에 대한 관심도 높아지고 있습니다.특히 대형 병원의 경우, 많은 환자들이 이용하기 때문에 안전하고
dopamine7.com
2024.12.26 - [병원인테리어] - 성형외과인테리어 및 피부과 병원 디자인 모던 럭셔리 컨셉 시공 사례
성형외과인테리어 및 피부과 병원 디자인 모던 럭셔리 컨셉 시공 사례
모던 럭셔리 컨셉의 성형외과인테리어는 최근 성형외과의 새로운 트렌드로 떠오르고 있어요. 사람들이 외모에 대한 관심이 높아지면서, 더욱 정교하고 세련된 공간에서 치료받고 싶어 하는 욕
dopamine7.com
2024.12.16 - [병원인테리어] - 개포동병원인테리어 심신의 안정을 치유할 수 있는 정신의학과 포트폴리오
개포동병원인테리어 심신의 안정을 치유할 수 있는 정신의학과 포트폴리오
개포동병원인테리어 정신의학과 디자인 설정 현대 사회에서 정신적 건강이 중요한 이슈로 떠오르고 있는 것은 이미 잘 알려진 사실입니다.특히 스트레스와 불안으로 인해 많은 사람들이
dopamine7.com
'병원인테리어' 카테고리의 다른 글
| 비뇨기과인테리어 편안한 진료 환경 조성 병원 디자인 (0) | 2025.04.22 |
|---|---|
| 영상의학과인테리어 병원 공간 연출도 전문업체에게 맡겨야 하는 이유 (0) | 2025.04.22 |
| 송파상가인테리어 화려한 색채로 눈에 띄는 약국 디자인 공사 후기 (0) | 2025.04.11 |
| 정형외과인테리어 병원 진료공간 최적화 맞춤 디자인 설계 (1) | 2025.03.25 |
| 경주병원인테리어 신뢰가 느껴지는 깔끔한 치과 개원 후기 (1) | 2025.03.20 |
| 포항병원인테리어 럭셔리한 무드의 디자인으로 여성의원 개원 성공적 (0) | 2025.03.20 |
| 강동구병원인테리어 전문업체가 차질없이 진행한 치과 리모델링 완공 현장 (0) | 2025.03.05 |
| 문정병원인테리어 문정동 피부과 리모델링 공사로 공간에 고급스러움을 더하다 (0) | 2025.02.05 |
- Total
- Today
- Yesterday
- 사무실인테리어견적
- 사무실인테리어비용
- 3D디자인
- 인테리어
- 916디자인
- 사무실인테리어업체
- 인테리어디자인
- 상가인테리어
- 사무실인테리어잘하는곳
- 사무실인테리어공사
- 사무실인테리어디자인
- 병원인테리어
- 헤어샵인테리어
- 학원인테리어
- interior
- 피티샵인테리어
- 사무실인테리어후기
- 미용실인테리어
- 헬스장인테리어
- 사무실인테리어
- 사무실리모델링
- 인천사무실인테리어
- 지식산업센터인테리어
- 오피스인테리어
- 3D사무실인테리어
- 사무실인테리어추천
- 회사인테리어
- 사무실인테리어전문
- 학원인테리어디자인
- 사무실디자인
| 일 | 월 | 화 | 수 | 목 | 금 | 토 |
|---|---|---|---|---|---|---|
| 1 | 2 | 3 | 4 | |||
| 5 | 6 | 7 | 8 | 9 | 10 | 11 |
| 12 | 13 | 14 | 15 | 16 | 17 | 18 |
| 19 | 20 | 21 | 22 | 23 | 24 | 25 |
| 26 | 27 | 28 | 29 | 30 |



