티스토리 뷰
목차
최근 병원 인테리어 디자인에서는 미니멀리즘과 모던한 스타일이 인기를 끌고 있습니다.
이러한 트렌드는 공간을 깔끔하고 넓어 보이게 만들어 주며,
환자들에게 편안하고 안정감 있는 분위기를 제공하기 때문에 더욱 인기를 끌고 있는데요.
특히나 구리병원인테리어는 자연 친화적인 소재와 컬러를 활용하여
따뜻하고 아늑한 느낌을 주는 '내추럴 모던' 스타일도 선호되고 있습니다.
이런 흐름에 맞춰 저희 916디자인이 설계와 시공을 진행한
구리병원인테리어 피부과 포트폴리오를 살펴보려고 합니다.
구리 지역 내 많은 피부과 중에서도 단연 눈에 띄는 공간으로 완성시켰으니
구리병원인테리어에 관심이 있다면 눈여겨 보시기 바랍니다.
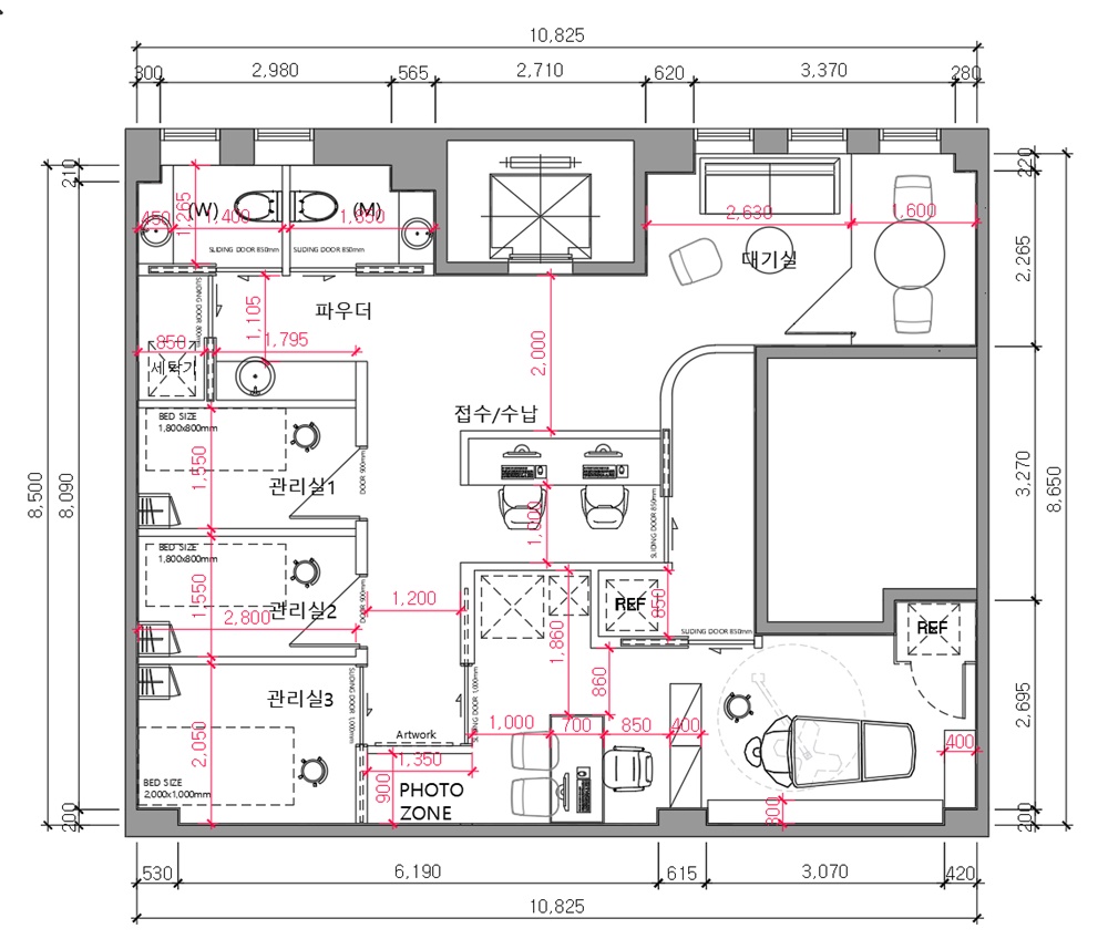
구리병원인테리어 트렌드를 더한 피부과 2D 디자인

먼저 이번 구리병원인테리어 피부과 시공의 2D 디자인을 보여드리겠습니다.
최근 피부과는 단순한 치료의 공간을 넘어, 고객이 편안하게 머무를 수 있는 힐링의 장소로 변모하고 있으며
이렇게 변하는 모습은 피부과 인테리어 트렌드에 큰 영향을 미치고 있는데요.
소비자들의 요구와 취향이 변화함에 따라 살롱과 같은 편안한 감성을 선호하게 되었고,
이에 맞춰 인테리어도 더욱 세련되고 고급스러워지는 방향으로 나아가고 있답니다.
그래서 다양한 색감, 재료, 조명 등을 활용하여 시각적으로나 감정적으로
안정감을 줄 수 있는 공간으로 탈바꿈할 수 있도록 디자인을 해보았는데요.
귀한 피부를 다루는 곳인 만큼, 고객들의 신뢰를 이끌어내는 멋진 공간을 만들기 위한 디자인이
과연 어떤 모습으로 구현되었을지 아래에서 살펴보시기 바랍니다.
구리병원인테리어 기능성과 미니멀리즘을 결합한 시공

다음으로는 구리병원인테리어 피부과 시공 현장입니다.
현대판 피부과의 인테리어에서는 기능성과 미니멀리즘이 중요한 요소로 자리 잡고 있습니다.
복잡한 디자인보다는 깔끔하고 정돈된 공간을 선호하는 경향이 강하죠.
따라서 선택된 가구와 장식이 모두 목적에 맞게 사용될 수 있도록 했으며
불필요한 요소를 없애 보다 집중된 환경을 제공할 수 있도록 했습니다.









기능성과 미니멀리즘을 결합한 시공 접근 방식을 통하여
환자들에게 효율성과 편안함을 동시에 제공할 수 있도록 했고,
의료진에게는 업무 집중력 향상에도 큰 역할을 할 수 있도록 했는데요.
이처럼 실용적이면서도 세련된 병원인테리어는 현대적인 피부과의 특징 중 하나로 자리잡고 있으며
많은 클라이언트들께서 선호하는 컨셉이기도 합니다.
구리병원인테리어 트렌드에 현대적인 감각을 더하여 완성한 피부과



앞서 보여드린 2D 디자인을 따라 시공을 마친 구리병원인테리어 피부과의 결과물입니다.
이번 구리 피부과 포트폴리오는 고급스럽고 세련된 분위기를 강조하기 위해
대리석, 골드, 메탈릭 소재 등을 적극 활용하며, 조명과 가구 선택에도 심혈을 기울였습니다.
이렇게 완성된 공간은 마치 프리미엄 뷰티 살롱에 온 듯한 느낌을 주는데요.
아래에서 더욱 자세한 디테일을 보여드리겠습니다.
피부과는 여성 환자들이 많이 찾는 곳이기 때문에, 인테리어 디자인이 매우 중요합니다.
아름답고 세련된 공간은 환자들에게 심리적 안정감을 주고, 신뢰감을 높여줍니다.
또 차별화된 이미지를 구축하는데 큰 역할을 하기도 합니다.
따라서 단순히 시각적으로 아름다운 공간을 만드는 것이 아니라,
환자들의 니즈와 원츠를 충족시키는 공간을 창조하는 것에 집중했는데요.
환자들의 편의와 안전을 고려하면서도, 동시에 미적인 측면에서도 만족스러운 공간을 제공할 수 있도록 했습니다.





진료 과목의 특성상 대기 시간이 길어질 수 있기 때문에,
별도의 대기 공간을 마련하여 환자들이 편안하게 휴식을 취할 수 있도록 배려했습니다.
또 진료실과 치료실 내부는 프라이버시를 보호하면서도 밝고 쾌적한 분위기를 유지해야 하며,
의료진과 환자 간의 원활한 소통을 위해 동선과 구조를 세심하게 설계했습니다.




피부과 인테리어는 청결하고 위생적인 환경을 유지해야 하므로,
청소와 관리가 용이한 디자인을 적용했습니다.
감염 예방을 위한 대책도 철저히 마련하여 환자들의 안전을 최우선으로 고려했습니다.





전체적으로 현대적 감각을 반영한 색상과 소재를 선택하여 인테리어했습니다.
색상은 피부과 인테리어에서 가장 중요한 요소 중 하나이므로
주로 화이트, 그레이, 베이지 등 중립적인 색상을 사용했습니다.
이러한 색상으로 인해 편안하고 안정감 있는 분위기를 연출했으며,
환자들의 스트레스를 완화 시켜줄 수 있도록 했습니다.







소재 역시 신중하게 선택해야 하는데, 주로 고급스럽고 부드러운 소재를 사용하여 우아한 분위기를 연출했으며
대리석, 우드, 패브릭 등 다양한 소재를 활용하여 공간에 개성을 더하기도 했습니다.
조명 역시 중요한 역할을 하며, 자연광과 인공조명을 적절히 조화시켜 밝고 쾌적한 분위기를 조성하고
거울과 유리를 활용하여 공간을 넓어 보이게 하는 효과를 얻을 수 있도록 했습니다.








피부과 인테리어에서는 환자와 의료진 모두를 고려한 공간 배치가 필요한데,
대기실과 진료실은 환자들이 편안하게 머무를 수 있도록 설계되어야 하고,
시술실과 레이저 룸은 의료진이 시술에 집중할 수 있도록 구성되어야 합니다.
대기실은 환자들이 기다리는 동안 편안하게 휴식을 취할 수 있도록
소파와 테이블, 잡지 등을 비치하고, 내부에 식물을 배치하여 자연스러운 분위기를 연출 했습니다.
또, 간단한 음료와 간식을 제공하는 서비스를 제공한다면 환자들의 만족도를 높일 수 있을 것 입니다.






진료실은 환자와 의료진 간의 원활한 소통과 프라이버시를 보장할 수 있도록 설계되어야 하기 때문에,
적당한 크기의 공간과 독립된 구조를 갖추고 있어야 합니다.
또, 밝은 조명과 깨끗한 실내 환경을 유지하여 환자들의 신뢰도를 높여야 합니다.




조명은 병원 인테리어에서 매우 중요한 역할을 하는데, 공간의 분위기를 조성하고,
환자들의 심리적 안정감을 높여주는 효과가 있습니다.
피부과에서는 주로 밝은 조명을 사용하는데, 이는 시술 부위를 정확하게 파악하고,
환자들의 피부 상태를 정확하게 진단하기 위해서 입니다.







수납공간이 충분한 서랍장이나, 의자와 테이블이 하나로 이루어진 일체형 가구 등을 활용하는 등
기능성 가구를 활용하여 공간의 활용도를 높이고, 환자들의 편의성을 증진시킬 수 있도록 했습니다.
이렇게 해서 공간을 보다 효율적으로 활용할 수 있고, 환자들이 편리하게 이용할 수 있도록 했습니다.









피부과를 찾는 환자들은 종종 대기 시간이 길어질 수밖에 없는데요.
이때 편안한 대기 공간이 마련되어 있으면 역시 큰 차이를 만날 수 있습니다.
따라서 모던한 디자인과 따뜻한 색상의 구성된 대기 공간으로 하여금
환자들이 처한 긴장감을 줄여줄 수 있도록 했으며 화장실 또한 통일감있게 연출했습니다.


피부과 인테리어 트렌드는 고객의 편안함과 신뢰를 이끌어내는 핵심 요소가 되었습니다.
자연 소재의 활용, 컬러의 조화, 적절한 조명, 편안한 가구 배치 등 다양한 요소들이 결합하여
브랜드 이미지 향상에 크게 기여하고 있는데요.
이러한 변화를 통해 피부과는 단순한 치료 공간이 아닌,
고객에게 힐링과 안정을 제공하는 장소로 자리 잡을 수 있고,
이는 고객의 신뢰를 높이는 중요한 불씨가 되어줄 것입니다.
트렌드에 현대적인 감각을 더한 멋진 피부과를 완성시키고 싶다면
구리병원인테리어 전문 916디자인으로 연락바랍니다.
☎ 공사문의 ☎
010 -3235- 8427
▼ 포트폴리오 더보기 ▼
https://916er.com/
사무실인테리어 디자인 공사 비용견적 플랫폼 - 사무실인테리어 916
사무실인테리어 916
916er.com
2024.10.08 - [병원인테리어] - 분당병원인테리어 요즘은 필수
분당병원인테리어 요즘은 필수
분당병원인테리어 요즘은 필수 안녕하세요, 요즘은 필수로 분당병원인테리어를 꼭 진행을 하시는 추세라고 합니다. 왜냐하면 환자와 보호자분들이 의료의 질은 대부분 뛰어나기
dopamine7.com
2024.09.27 - [병원인테리어] - 파주병원인테리어 보다 쾌적하고 편안한 공간으로
파주병원인테리어 보다 쾌적하고 편안한 공간으로
안녕하세요, 파주병원인테리어 진행 건에 대해 많은 수요가 계속해서 급증하고 있습니다. 환자분들께 보다 쾌적하고 편안한 공간을 제공하는 것에 대한 니즈가 늘어나는 것이죠.
dopamine7.com
2024.09.30 - [병원인테리어] - 천안병원인테리어, 공간의 특색이 잘 드러나는 인테리어
천안병원인테리어, 공간의 특색이 잘 드러나는 인테리어
천안병원인테리어, 공간의 특색이 잘 드러나는 인테리어 안녕하세요:) 천안병원인테리어 솜씨 좋게 잘 해드리는 곳, 916디자인입니다! 잘 꾸며진 업무 공간은 업무의 효율성을 올
dopamine7.com
2024.04.25 - [병원인테리어] - 부천 인천병원인테리어 디테일에 집중하다
부천 인천병원인테리어 디테일에 집중하다
부천 인천병원인테리어 디테일에 집중하다 안녕하세요! 916디자인 인사드립니다. 우리 주변을 볼 때굉장히 많은 치과가 있는 것을 알 수 있는데요. 최근에는 치과도 환자들에게 편안함
dopamine7.com
'병원인테리어' 카테고리의 다른 글
| 병원전문인테리어 환자와 의료진이 원하는 의료환경디자인을 시공한 사례 (0) | 2024.12.11 |
|---|---|
| 의원인테리어 고객들에게 인기있는 뷰티공간으로 거듭나려면 이렇게 시공해보는건 어떨까요 (0) | 2024.12.11 |
| 소아과인테리어 따뜻한 색감으로 안정감을 주는 병원 디자인 (1) | 2024.12.10 |
| 치과인테리어 디자인 진료과목 특성 맞춤설계 리모델링 (0) | 2024.12.10 |
| 미사병원인테리어 20평대 에스테틱샵 시공 현장을 소개합니다 (0) | 2024.12.04 |
| 압구정병원인테리어 밝은분위기의 치과 대기실,진료실 포트폴리오 (1) | 2024.12.04 |
| 양재병원인테리어 편안함을 제공하는 정신건강의학과 디자인추천 (0) | 2024.12.04 |
| 논현동병원인테리어 논현동 고급스러운 피부과 참조할 만한 디자인 (0) | 2024.12.04 |
- Total
- Today
- Yesterday
- 인테리어
- 3D사무실인테리어
- 상가인테리어
- 헬스장인테리어
- 학원인테리어
- 916디자인
- 사무실인테리어비용
- 사무실인테리어업체
- 사무실인테리어후기
- 3D디자인
- 피티샵인테리어
- 사무실인테리어잘하는곳
- 지식산업센터인테리어
- interior
- 병원인테리어
- 인천사무실인테리어
- 오피스인테리어
- 사무실인테리어추천
- 사무실디자인
- 사무실인테리어
- 사무실인테리어전문
- 사무실인테리어공사
- 인테리어디자인
- 학원인테리어디자인
- 헤어샵인테리어
- 사무실리모델링
- 미용실인테리어
- 사무실인테리어견적
- 사무실인테리어디자인
- 회사인테리어
| 일 | 월 | 화 | 수 | 목 | 금 | 토 |
|---|---|---|---|---|---|---|
| 1 | 2 | 3 | ||||
| 4 | 5 | 6 | 7 | 8 | 9 | 10 |
| 11 | 12 | 13 | 14 | 15 | 16 | 17 |
| 18 | 19 | 20 | 21 | 22 | 23 | 24 |
| 25 | 26 | 27 | 28 | 29 | 30 | 31 |






