티스토리 뷰
목차
기흥인테리어 디테일의 날을 세우다
안녕하세요,
최근 사무실을 새롭게 디자인하기
위해서 고민하시는 분들이 굉장히
많다는 것을 알 수 있습니다.
사무실 공간을 새롭게 만든다면 직원들의
입장에서 업무 만족도가 높아지게 되고,
기업을 운영하시는 분 또한 하루하루 행복한
마음으로 업무를 수행할 수 있을텐데요.
인테리어를 진행할 때에는 원하는
니즈를 정확하게 반영할 수 있는 곳을
선택해야하는 만큼, 오늘은 저희가
직접 진행해드린 기흥인테리어 시공
사례를 자세하게 살펴보도록 하겠습니다.
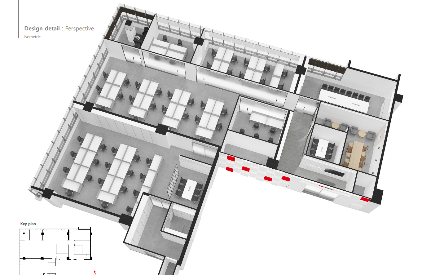
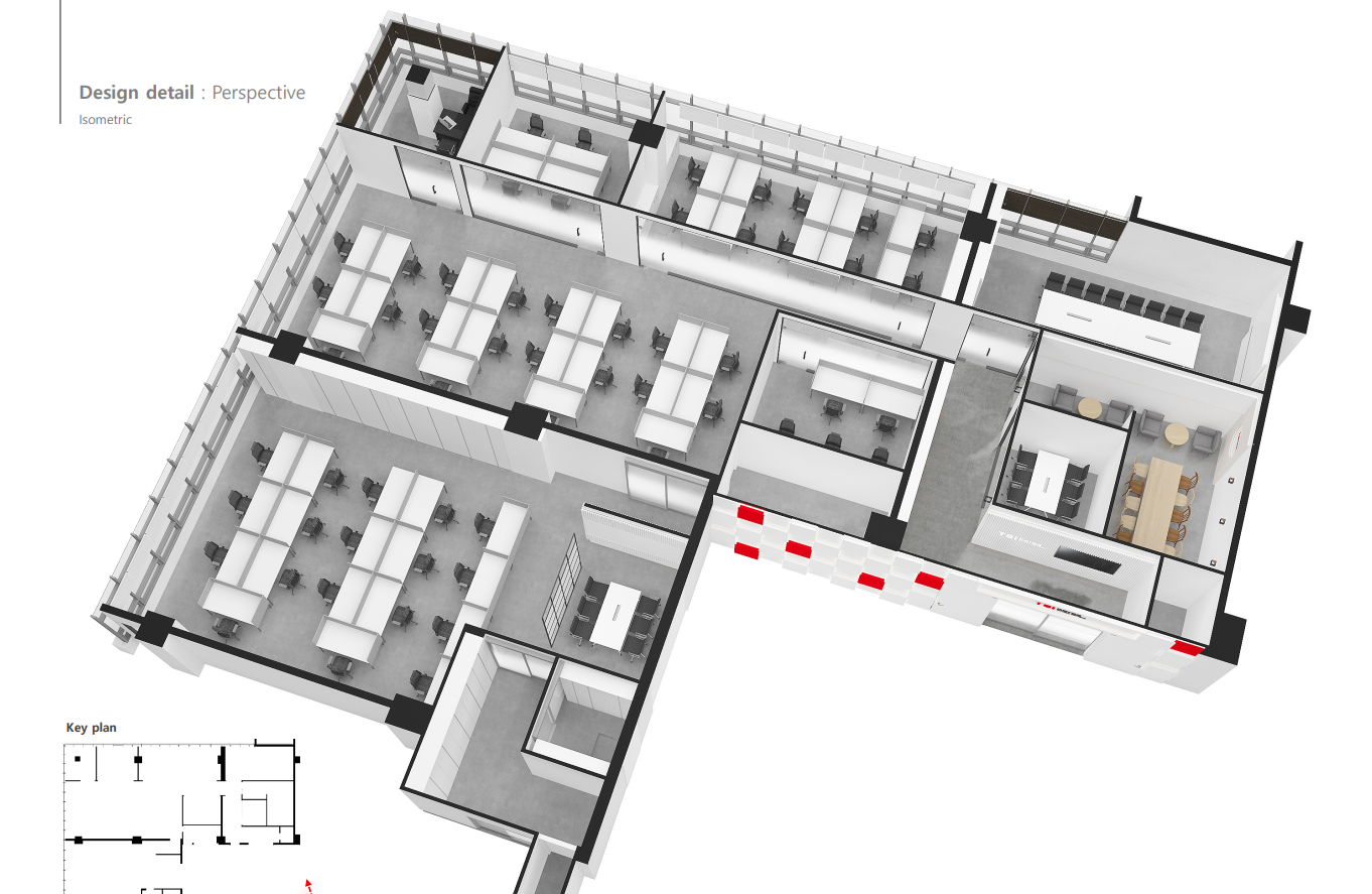
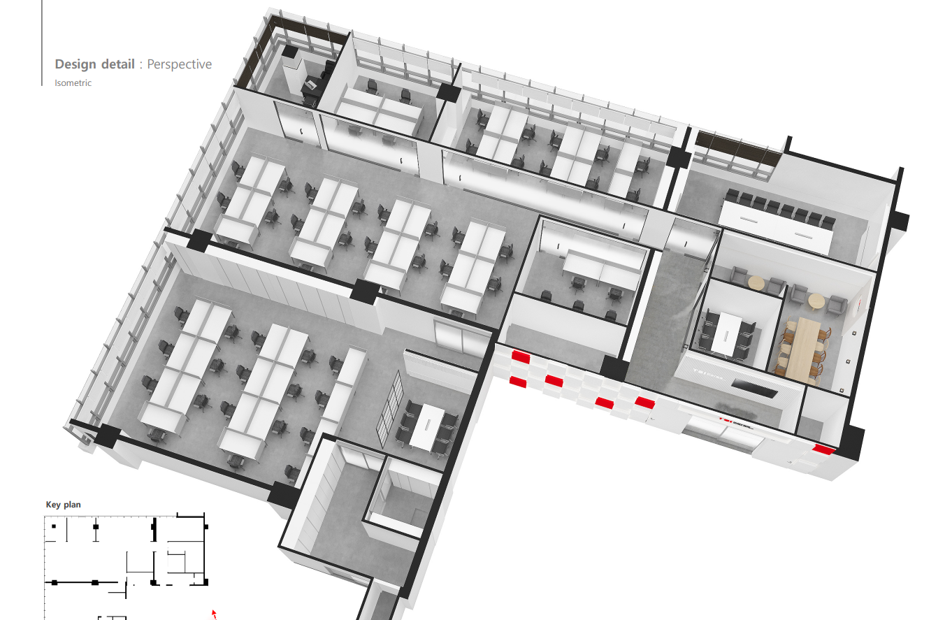
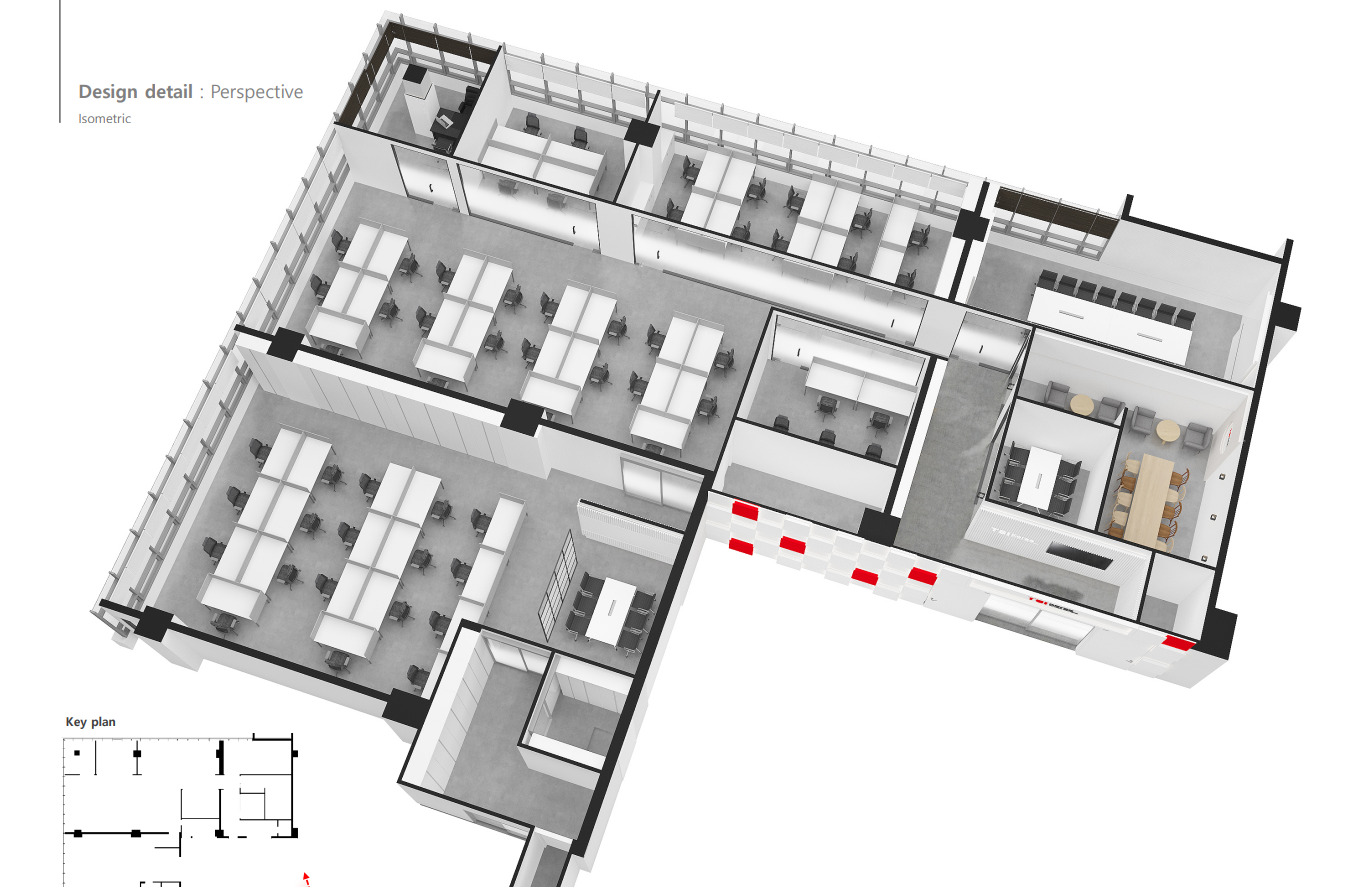
기흥인테리어 3D 디자인











기흥인테리어 시공을 의뢰해주셨던
고객님께서는 이번에 사무실을 이사하시게
되면서 저희에게 문의를 주셨습니다.
저희 또한 고객님과 함께 상담을
진행하면서 깔끔하고 효율적인 공간을
만들어드리기 위해서 고민했는데요.
실측된 크기에 적합한 3D 디자인
작업을 진행했으며, 고객님의
니즈를 정확하게 찾아나갔습니다.
기흥인테리어 시공 진행 현장





처음 시공 당시 현장의
평수가 굉장히 넓었는데요.
주요 업무 공간과 로비를
구분하며 시공을 진행했습니다.
입구로 이어지는 로비의 경우 따로 조명을
달기 위해서 각 파이프로 구조를 잡았으며,
공간을 여러개로 나누어야 했던 만큼
각파이프와 석고보드, 목재 등을 활용하여
전체적인 인테리어 구조물을 작업해드렸습니다.





오늘과 같이 평수가 넓은
공간에서는 사소한 실수가 굉장히
큰 문제로 이어질 수 있었습니다.
그렇기 때문에, 저희 또한 팀원들과
함께 꼼꼼하게 작업을 진행해나갔으며,
세심하게 각 공간들을 채워나갔습니다.
공간 작업 당시 파사드도
동시에 작업해드렸습니다.
파사드 작업 이후에는 조명이 들어갈 수
있도록 배선작업을 하였고, 전체적인
구조를 완성한 이후에는 마감작업과
도장작업을 진행할 수 있었습니다.
마지막 작업 과정에서는
3D 디자인과 동일하게 공간이
만들어졌다는 것을 알 수 있습니다.
기흥인테리어 시공 완료 현장





전체적인 시공이 완료된 현장입니다.
입구에서 들어온다면 업무공간으로
향하는 복도를 마주할 수 있습니다.
입구가 없는 벽에는 벽선반을
제작함으로써 효율적으로 사용할 수
있도록 만들어드렸으며, 전체적인 복도
인테리어를 플랜테이어로 디자인했습니다.
이러한 공간을 구성하게 될 경우
산뜻한 느낌을 받을 수 있고, 직원들의
입장에서도 딱딱한 업무 공간이 아닌
유연한 업무 공간으로 인식하게 됩니다.





넓은 로비의 경우 각 팀별
근무 공간에서 나오면 보이는
공간으로 만들어드렸습니다.
레일 등과 라인사각레일 등을 활용하여 공간
전체를 모던하게 바꾸어드렸고, 로비에서
넘어오면 다른 공간을 만나볼 수 있습니다.
미팅룸을 글라스월로 구분함으로써
활용성을 높였고, 중앙에는 불투명시트지를
부착하여 프라이빗하게 완성시켰습니다.






전체적인 평수가 넓은 공간이다보니
감각적인 분위기와 깔끔한 분위기로
시공할 수 있었습니다.
마무리 된 공간들은 전체적으로
다시한번 점검을 해드렸습니다.
점검 과정에서 미흡한 부분들이
발견된다면 저희가 즉시 해결해드릴 수
있으며, 추가적으로 보완해야하는
공간 없이 모두 완벽하게 마무리
되어서 고객님에게도 최종적인
시공 완료를 말씀드릴 수 있었습니다.







오늘은 저희가 진행해드린
기흥인테리어 시공 사례를
자세하게 살펴보았습니다.
오늘 현장과 같이 사무실을 새롭게
인테리어하기 위해서 고민하신다면
저희를 통해서 해결해주시는 것이 좋습니다.
저희는 다년간의 경험을 보유하고 있으며,
좋은 결과를 제공해드릴 수 있는만큼
언제든지 편하게 문의주시기 바랍니다.
공사문의 010-3235-8427
▼▼▼▼포트폴리오 더보기▼▼▼▼
사무실인테리어 디자인 공사 비용견적 플랫폼 - 사무실인테리어 916
사무실인테리어 916
916er.com
2024.06.13 - [사무실인테리어] - 용인인테리어 업체의 선정이 디자인을 말하다
용인인테리어 업체의 선정이 디자인을 말하다
용인인테리어 업체의 선정이 디자인을 말하다 안녕하세요, 우리 주변을 볼 때 굉장히 개성있는 사무실들이 많다는 것을 알 수 있습니다. 각각의 사무실마다 기업의 특성을보유하고 있으며
dopamine7.com
2024.06.12 - [사무실인테리어] - 부천인테리어 마감의 섬세함
부천인테리어 마감의 섬세함
부천인테리어 마감의 섬세함 안녕하세요, 우리 주변을 볼 때 굉장히 다양한 공간들이 예쁘게 디자인 되어있다는 것을 알 수 있습니다. 각각의 공간들을 인테리어하게된다면 방문하는 사람
dopamine7.com
2024.06.11 - [사무실인테리어] - 일산인테리어업체 경쟁력을 갖다
일산인테리어업체 경쟁력을 갖다
일산인테리어업체 경쟁력을 갖다 안녕하세요, 우리 주변을 볼 때 사무실을 새롭게 디자인하기 위해서 인테리어를 고민하시는 분들이 많으리라 생각됩니다. 인테리어를 하기 위해서는 각각
dopamine7.com
2024.06.10 - [사무실인테리어] - 용산인테리어 퀄리티의 차이
용산인테리어 퀄리티의 차이
용산인테리어 퀄리티의 차이 안녕하세요, 우리 주변을 볼 때 각종 다양한 디자인을 구성하고 있는 사무실들이 많다는 것을 알 수 있습니다. 사무실별로 기업의 특성을 잘 갖추고
dopamine7.com
2024.06.07 - [사무실인테리어] - 동탄인테리어 업체 어떻게 선정해야
동탄인테리어 업체 어떻게 선정해야
동탄인테리어 업체 어떻게 선정해야 안녕하세요, 최근 우리 주변을 볼 때 사무실을 새롭게 만들기 위해서 인테리어를 결정하시는 분들이 많은데요. 인테리어를 통해서 사무실
dopamine7.com
'사무실인테리어' 카테고리의 다른 글
| 가산사무실인테리어 놓치지 않는 섬세함 (0) | 2024.06.16 |
|---|---|
| 광교인테리어 행복한 공간으로 (0) | 2024.06.16 |
| 개포동 사무실인테리어 최적의 능률을 위한 (0) | 2024.06.15 |
| 수원인테리어 추천업체의 경쟁력 (0) | 2024.06.15 |
| 부천학원인테리어 합리적인 비용에 따른 확실한 공사 (0) | 2024.06.13 |
| 용인인테리어 업체의 선정이 디자인을 말하다 (0) | 2024.06.13 |
| 부천인테리어 마감의 섬세함 (0) | 2024.06.12 |
| 일산인테리어업체 경쟁력을 갖다 (0) | 2024.06.11 |
- Total
- Today
- Yesterday
- 미용실인테리어
- 사무실인테리어공사
- 인천사무실인테리어
- 병원인테리어
- 학원인테리어
- 상가인테리어
- 회사인테리어
- 사무실인테리어견적
- 인테리어
- 사무실리모델링
- 사무실인테리어
- 사무실인테리어비용
- 3D디자인
- 사무실인테리어후기
- 916디자인
- 헬스장인테리어
- 사무실인테리어전문
- 학원인테리어디자인
- 사무실인테리어업체
- 피티샵인테리어
- 사무실인테리어잘하는곳
- 헤어샵인테리어
- 사무실디자인
- 3D사무실인테리어
- 사무실인테리어추천
- 인테리어디자인
- 지식산업센터인테리어
- 오피스인테리어
- interior
- 사무실인테리어디자인
| 일 | 월 | 화 | 수 | 목 | 금 | 토 |
|---|---|---|---|---|---|---|
| 1 | ||||||
| 2 | 3 | 4 | 5 | 6 | 7 | 8 |
| 9 | 10 | 11 | 12 | 13 | 14 | 15 |
| 16 | 17 | 18 | 19 | 20 | 21 | 22 |
| 23 | 24 | 25 | 26 | 27 | 28 | 29 |
| 30 |
