티스토리 뷰
목차
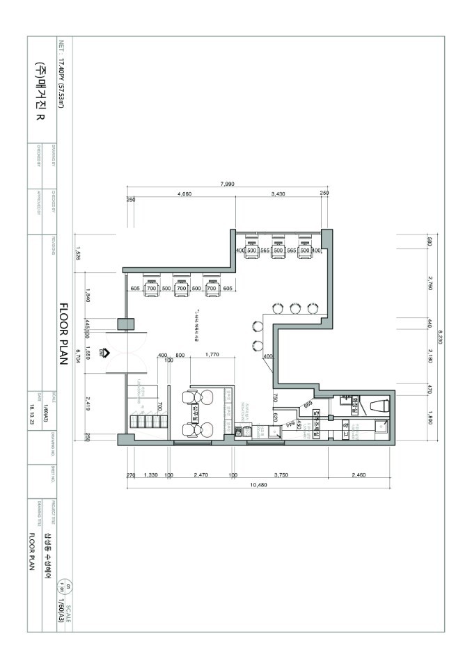
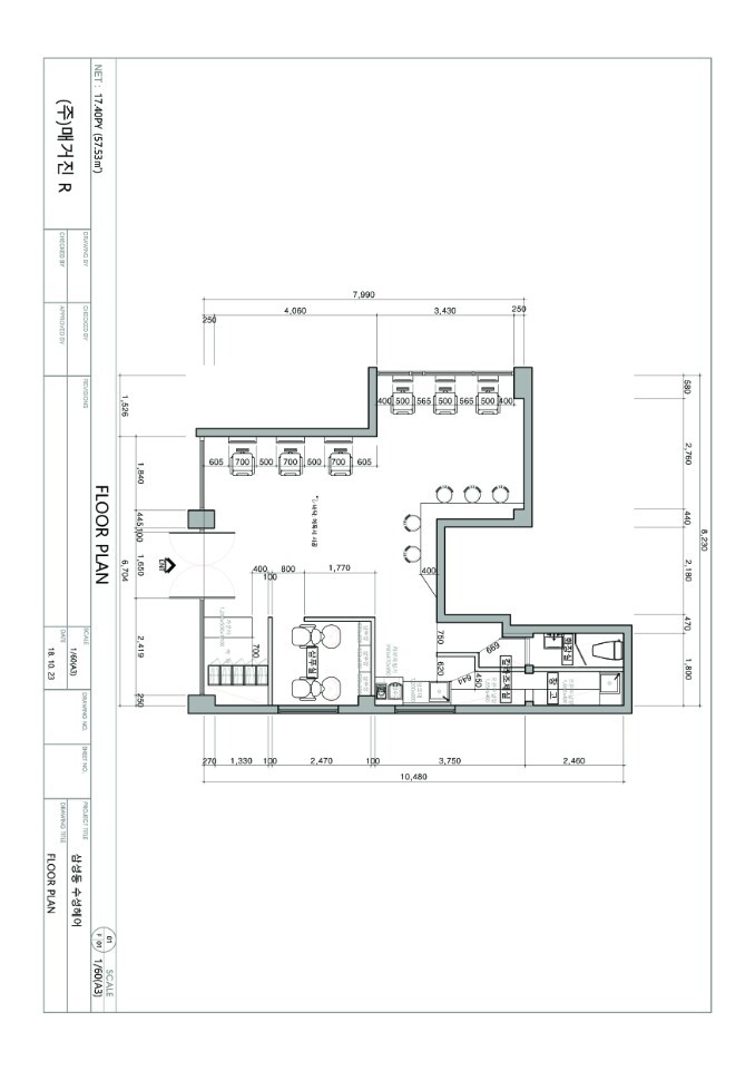
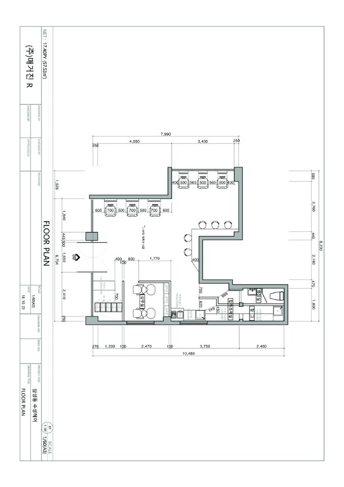
기흥 용인미용실인테리어 3D 디자인



안녕하세요!
916디자인입니다.
오늘은 저희가 진행해드렸던
기흥 용인미용실인테리어
시공 사례를 살펴볼텐데요!
처음부터 끝까지 고객님과
함께 실시간으로 소통하면서
더욱 예쁜 미용실을 만들어드리기
위해서 노력했던 현장이었답니다.
처음 저희에게 문의주셨을 때
이번에 미용실을 새롭게 개업한다고
하셔서 일반적인 인테리어를
생각했지만, 완성해놓고보니 너무
예쁜 미용실 공간으로 만들어져서
저희도 인상깊었던 시공이었는데요.
오늘은 이 현장을 자세히 살펴보도록 할게요!



시공 전에는 고객님과 소통하면서
3D 디자인을 제작했어요.
모던하면서도 예쁘게 만들고
싶었는데 머릿속에서 잘 그려지지
않는다고하여 저희가 직접
디자인을 제작해드렸는데요.
최근 유행하는 스타일의
미용실에서 색감만 조금 바꾸어
보여드렸고, 고객님께서도 너무나도
흡족해하셔서 빠른 시간 내
디자인 작업을 마무리하고
시공에 들어갈 수 있었답니다.
기흥 용인미용실인테리어 시공 중 현장





디자인 제작이 끝났다면 고객님과
논의되었던 내용을 바탕으로
시공에 들어갔어요.
가장 먼저 웨인스코팅 목공작업을
진행했고, 각 공간들을 구분시켜준
이후 다른 구조물 작업에 들어갔어요.
벽동 조명의 포인트가 잘 어우러지는
디자인으로 시공하는만큼
더욱 생동적인 미용실이 만들어
질 수 있을거라 생각했어요.




목공 작업 이후에는 몰딩작업까지
모두 마무리하고 페인트 작업을
앞두고 있었어요.
시공 과정에서 고객님과 실시간으로
소통하며 추가적으로 조율해야하는
부분들은 없는지 세세하게 살펴보았어요.
저희는 작업 시 3D디자인을
우선적으로 확인하면서 진행하지만
고객님과의 조율이 필요할 때에는
즉시 말씀드리면서 더욱
완벽하게 공간이 완성되어질 수
있도록 도와드린답니다.
처음 작업 시에는 일반적인 건물의
공실이었는데, 작업이 점점
완성되어 갈 수록 고객님께서 원하는
디자인으로 만들어진다는
것을 확인할 수 있었어요.
기흥 용인미용실인테리어 시공 완료





전체적인 시공이 완성된 현장이에요.
처음 볼때보다 더욱
아름다워진 공간을
느낄 수 있는데요!
상부에는 간접조명을 설치해서
따뜻한 분위기를 줄 수 있고, 전체적인
공간 디자인이 굉장히 모던하게
바뀌었다는 것을 확인할 수 있었어요.
마감을 할 때 다른 문제는
없는지 지속적으로 점검하면서
진행하다보니 완벽하게 마무리
할 수 있었는데요.
처음 문을 열고 들어오면 미용실
리셉션이 마주하고있고,
이후 안으로 입장하면서 헤어시술을
받을 수 있도록 구성했어요.





이번 현장에서는 최대한 모던
하지만 따뜻하게 만드는 것이 가장
핵심이었어요.
처음보다 더욱 완벽하게
마무리된 모습에 저희도
굉장히 만족스러웠는데요.
손님들이 앉을 자리에는 부담스럽지
않도록 거울에도 조명을
둘러서 설치해드렸어요.





헤어 시술 이후 머리를 감는
공간이나 각 공간들에 파티션을
설치해서 동선을 최소화시켜드렸어요.
미용실은 뻥 뚫려있는
곳이라는 인식이 강한데, 이제는
개인의 디자인을 가장 중요시하고
미용실의 인테리어도 예쁘게
꾸며야지만 손님에게 신뢰감을
줄 수 있다고 하더라고요.
저희도 그에 맞게 고객님이 원하시는
조건들을 세세하게 맞추어
나가면서 시공하다보니 아름다운
공간으로 완성시킬 수 있었답니다.






이번 기흥 용인미용실인테리어
시공은 굉장히 특별하다는 느낌을
많이 받았어요.
무엇보다 고객님께서도 완성된
미용실을 보시면서 굉장히
만족해 하셨던 만큼 뿌듯함을
느낄 수 있었답니다.
만약 오늘 현장처럼 미용실을
아름답게 만들고 싶으시다면 저희에게
편하게 문의주시기 바래요!
공사문의 010-3235-8427
▼▼▼▼포트폴리오 더보기▼▼▼▼
미용실인테리어 - 미용실인테리어 전문 플랫폼
미용실인테리어 전문 플랫폼
salon916.com
2024.04.22 - [미용실인테리어] - 옥정 양주미용실인테리어 트랜드를 찾아서
옥정 양주미용실인테리어 트랜드를 찾아서
옥정 양주미용실인테리어 트랜드를 찾아서 3D 디자인 안녕하세요, 916디자인 인사드려요! 이번에는 옥정 양주미용실인테리어 시공 사례를 살펴볼 예정이에요. 정말 오랜만에 뿌듯함을 느낄 수
dopamine7.com
2024.04.22 - [미용실인테리어] - 포천 의정부미용실인테리어 지금바로 공사를
포천 의정부미용실인테리어 지금바로 공사를
포천 의정부미용실인테리어 3D 디자인 안녕하세요! 916디자인이에요. 오늘은 저희가 진행해드린 포천 의정부미용실인테리어 사례를 살펴볼텐데요. 미용실이 이제는 너무나 고급스럽게 변하는
dopamine7.com
2024.04.17 - [미용실인테리어] - 헤어샵 미용실인테리어 비용견적 가성비 있는 가격대로
헤어샵 미용실인테리어 비용견적 가성비 있는 가격대로
헤어샵인테리어 비용견적 가성비 있는 가격대로 안녕하세요:) 916 디자인입니다. 오늘은 상큼한 디자인의 초록색 헤어샵인테리어 현장을 보여 드리도록 하겠습니다. 최근 미용실은 단순하게 헤
dopamine7.com
2024.04.18 - [미용실인테리어] - 상업공간디자인 예쁜 뷰티샵공간 인테리어부터
상업공간디자인 예쁜 뷰티샵공간 인테리어부터
상업공간 디자인 예쁜 뷰티샵공간 현장 미용실 인테리어 계획은 고객층 운영방식에 따라 자신에게 맞는 디자인으로 계획하여 진행하여야하는데요. 내가 원하는 분위기가 있거나 브랜딩 요소가
dopamine7.com
2024.04.18 - [미용실인테리어] - 헤어샵인테리어 미용실디자인 예쁜마감
헤어샵인테리어 미용실디자인 예쁜마감
헤어샵인테리어 3D 안녕하세요 916디자인에요. 헤어샵인테리어 이야기를 진행하도록 하겠습니다. 오늘의 고객님께서는 모던한 컨셉으로 전체적인 분위기는 그레이톤의 색상으로 컨셉을 잡아 디
dopamine7.com
'미용실인테리어' 카테고리의 다른 글
| 영통 수원미용실인테리어 현장도면과 연출 (0) | 2024.04.28 |
|---|---|
| 화성 동탄미용실인테리어 정확한 레이아웃 (0) | 2024.04.27 |
| 7평 8평 9평 10평 미용실인테리어 작은평수 공사디자인 (0) | 2024.04.26 |
| 과천 서초미용실인테리어 안정된 공사 (0) | 2024.04.25 |
| 영통 수원미용실인테리어 지속가능한 디자인 (0) | 2024.04.24 |
| 안산 인천미용실인테리어 빠른디자인 (0) | 2024.04.24 |
| 서울미용실인테리어 아름다운 공간을 (0) | 2024.04.23 |
| 인천 김포미용실인테리어 스타일있게 (0) | 2024.04.23 |
- Total
- Today
- Yesterday
- interior
- 사무실인테리어견적
- 사무실인테리어
- 사무실리모델링
- 사무실인테리어후기
- 병원인테리어
- 3D디자인
- 오피스인테리어
- 사무실인테리어공사
- 회사인테리어
- 사무실인테리어업체
- 인테리어
- 지식산업센터인테리어
- 사무실디자인
- 916디자인
- 사무실인테리어비용
- 상가인테리어
- 인천사무실인테리어
- 3D사무실인테리어
- 사무실인테리어디자인
- 사무실인테리어잘하는곳
- 사무실인테리어전문
- 헬스장인테리어
- 학원인테리어
- 인테리어디자인
- 헤어샵인테리어
- 미용실인테리어
- 피티샵인테리어
- 학원인테리어디자인
- 사무실인테리어추천
| 일 | 월 | 화 | 수 | 목 | 금 | 토 |
|---|---|---|---|---|---|---|
| 1 | ||||||
| 2 | 3 | 4 | 5 | 6 | 7 | 8 |
| 9 | 10 | 11 | 12 | 13 | 14 | 15 |
| 16 | 17 | 18 | 19 | 20 | 21 | 22 |
| 23 | 24 | 25 | 26 | 27 | 28 | 29 |
| 30 |
