티스토리 뷰
목차
올화이트 사무실 디자인의 인테리어는 요즘 많은 사람들의 관심을 끌고 있는 트렌드 중 하나에요.
흰색으로 물들인 공간은 깔끔하면서도 세련된 느낌으로, 직원들이 일하기에 쾌적한 환경을 만들어준답니다.
일반적으로 사무실인테리어는 직원들의 업무 효율성을 높이고, 회사의 이미지를 좌우하는 중요한 요소로 간주되죠.
그래서 올화이트 색상이 가지는 결백함과 진정성은 현대 사무실에서 더욱 큰 비중을 차지하고 있어요.
또한, 올화이트 인테리어는 다양한 디자인 요소와 조화를 이뤄 다양한 분위기를 연출할 수 있기 때문에 고객과 방문객에게 긍정적인 인상을 준답니다.
특히 흰색의 조화로운 배치는 공간을 넓어 보이게 하고, 그에 따른 심리적 안정감을 제공하기도 해요.
오늘은 남양주인테리어업체가 제안하는 올화이트 컨셉의 IT기업 사무실 디자인의 인테리어 시공 사례를 통해 깊이 있게 알아보려고 해요. 궁금하시죠? 그러면 본론으로 들어가 볼까요?
남양주인테리어업체 올화이트 사무실 디자인 특징


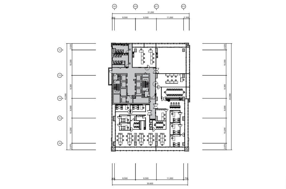
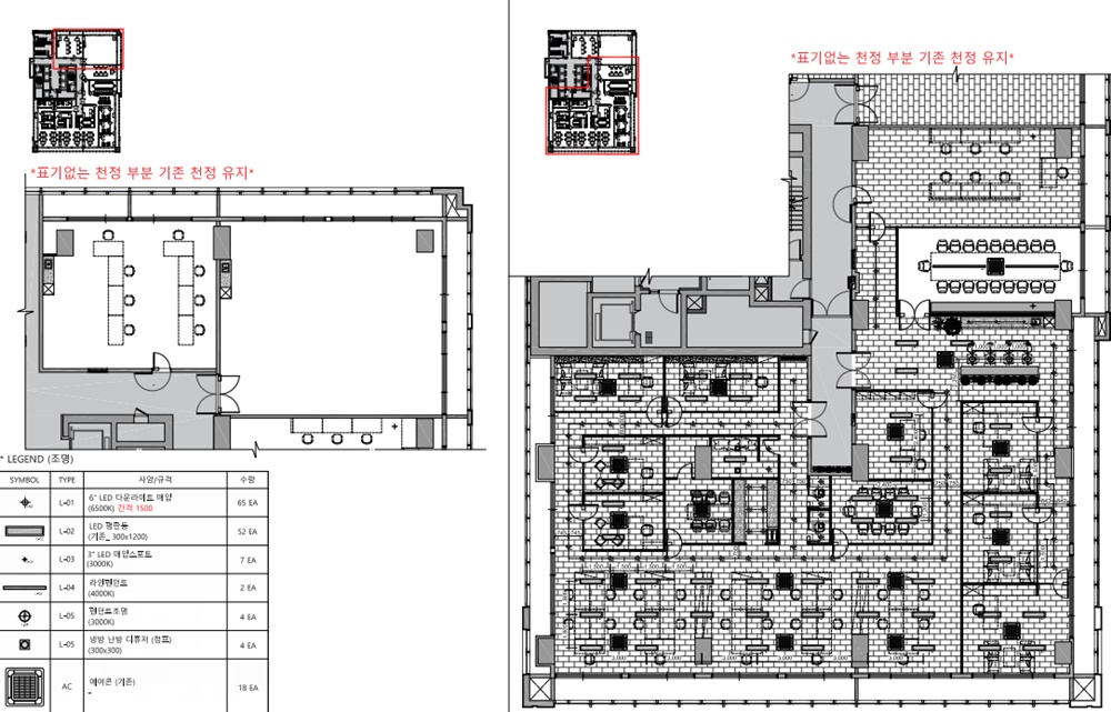
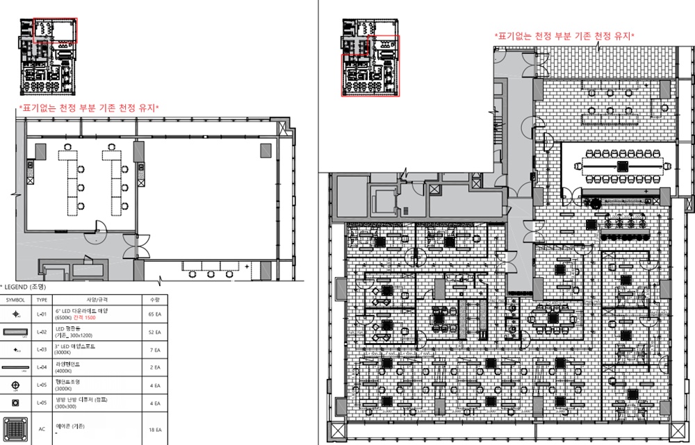
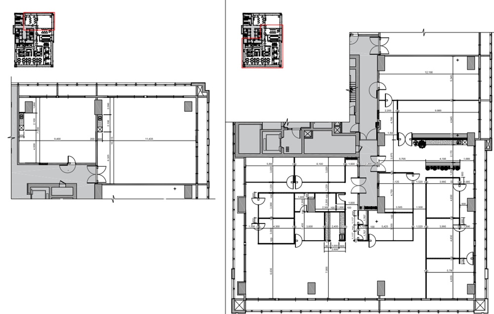
먼저 보여드릴 사진은 남양주인테리어업체가 직접 제작한 2D 디자인이에요.
올화이트 인테리어는 주로 흰색, 크림색 등의 색감을 활용하여 청결하고 정돈된 이미지를 제공합니다.
이렇게 색상이 단순하기 때문에, 다양한 스타일의 가구나 소품과 조화를 이루기 용이해요.
예를 들어, 색상이 유명한 디자인 가구들을 배치하거나, 식물과 같은 천연 요소를 더하면 더욱 생동감 있는 공간으로 변신할 수 있답니다.
흰색은 빛을 잘 반사하기 때문에, 공간이 자연스럽게 밝아 보일 수 있어요.
이를 통해 직원들은 매일매일 활기차고 긍정적인 느낌으로 일할 수 있는 환경이 조성되지요.




또한, 통일감을 줄 수 있는 점이 큰 매력이에요.
다양한 색깔의 가구를 사용할 경우, 오히려 복잡하고 혼란스러운 느낌을 줄 수 있는데, 올화이트 인테리어는 그렇지 않답니다.
시각적으로 통일감을 가져온다는 점에서 불필요한 시각적 어지러움을 줄이고, 업무에 집중하게 만드는 효과가 있어요.
그 결과로, 직원들은 더 효율적으로 일할 수 있게 됩니다.
아래에서 남양주인테리어업체의 시공 과정 역시 살펴보도록 할게요.
남양주인테리어업체 직원을 위한 공간 활용 설계




올화이트 사무실에서 직원들이 쾌적하게 시간을 보낼 수 있도록 공간을 어떻게 활용할 것이냐도 중요한 요소에요.
업무 효율성을 높이기 위해 개인 작업 공간과 공동 작업 공간을 적절히 분리하는 것이 필요하죠.
개인 공간은 최소한의 간섭으로 집중할 수 있도록 하고, 팀워크가 필요한 경우에는 열린 공간에서 소통할 수 있게 배치하는 것이 효과적이에요.




또한, 휴게 공간을 별도로 설계하는 것도 좋답니다.
직원들이 잠시 쉴 수 있는 공간이 있으면 스트레스를 해소하고, 재충전할 수 있어요.
이때 올화이트의 분위기를 유지하면서도 아늑한 느낌을 내기 위해 밝은 색상의 가구나 소품을 추가하는 것이 좋겠어요.
직원들의 심리적 안정이 업무 효율성을 높이는 비결이니까요.


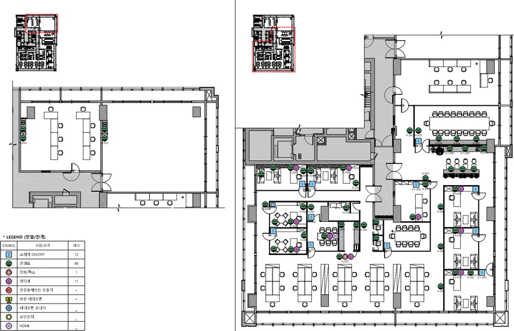
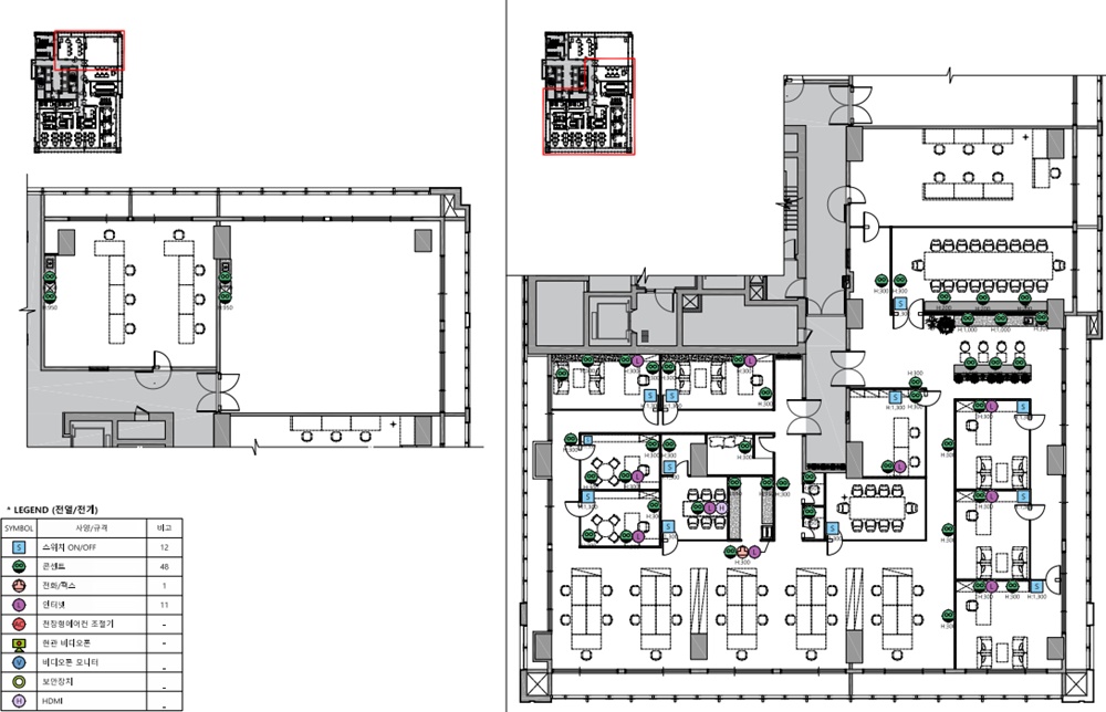
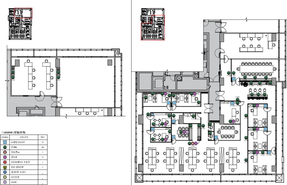
올화이트 인테리어에서 조명은 매우 중요한 역할을 해요.
조명이 어떻게 배치되느냐에 따라 공간의 느낌이 크게 달라질 수 있기 때문이죠.
자연광을 최대한 활용하는 것이 좋지만, 사무실 구조에 따라 인공적인 조명도 적절히 설치해야 해요.
부드러운 톤의 조명을 통해 따뜻한 느낌을 줄 수 있고, 업무 도중의 부정적 에너지를 차단하는 데 도움이 돼요.


기본적으로 천장 조명 외에도 스탠드 조명이나 벽 조명을 활용하면 소프트한 분위기로 공간을 더 매력적으로 만들 수 있습니다.
이때도 올화이트 색상의 조명을 통해 통일된 느낌을 주는 것이 좋답니다.
다양한 조명 선택으로 올화이트 사무실을 더욱 특별한 공간으로 만들 수 있어요.
남양주인테리어업체 올화이트 사무실 디자인의 경제성





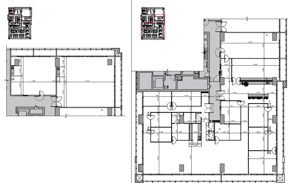
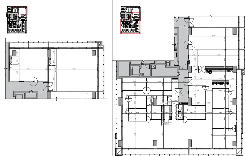
마지막으로 남양주인테리어업체가 완성시킨 공사 완료 사진들을 보여드릴게요.
올화이트 인테리어의 경제적인 측면도 빼놓을 수 없는 장점이에요.
재료나 가구 선택 시 흰색이 다양한 색상보다 상대적으로 저렴한 경우가 많아서 가성비가 좋답니다.
또한, 다양한 소품과 조화를 이루기 용이하기 때문에 일일이 맞춤형 가구를 제작할 필요성이 줄어들게 됩니다.
이렇게 경제적인 요소를 강조하면, 회사 예산을 보다 유연하게 운용할 수 있어요.





그렇다고 해서 영구적인 효과를 원하는 경우, 저렴한 재료보다는 내구성이 떨어지는 저가 재료를 피하는 것이 좋겠어요.
장기적으로 사용 가능한 고품질 자재를 선택하면 유지보수 비용을 줄이는 데 도움이 되니까요.
사무실 인테리어는 처음 투자 비용만 고려할 것이 아니라, 장기적으로 생각해야 더 좋은 선택이 될 수 있어요.






IT회사에서는 팀워크와 협업이 특히 중요한 만큼, 사무실 내 협업 공간이 필요해요.
기존의 고정된 자리에서 벗어나 다양한 팀원과의 상호작용이 가능한 수평적인 배치가 주효합니다.
예를 들어, 소규모 회의실이나 벽면에 온전히 신경 쓴 화이트보드 등은 아이디어를 자유롭게 공유하는 데 도움이 되죠.
이동이 편리한 가구를 활용해 팀당 맞춤형으로 공간을 구성하는 것도 좋은 방법이고요.















또한, 인포멀한 협업 공간을 제공하는 것도 필수적이에요.
카페 스타일의 쉬는 공간은 직원들이 자유롭게 이야기 나누고, 비공식적인 아이디어 개발이 이뤄지는 플랫폼 역할을 할 수 있어요.
직원들이 서로 소통할 수 있는 다양한 장소를 만들어 주면, 자연스럽게 협업의 기회가 늘어날 거예요.







올화이트 사무실 디자인 인테리어는 공간을 넓어 보이게 하는 효과가 있어요.
작은 사무실이라도 잘 구성하면 더욱 넓고 쾌적하게 느낄 수 있죠.
예를 들어 창가에 큰 창문을 두어 자연광이 들어오게 하거나, 미러를 활용해 공간을 확장하는 효과를 줄 수 있어요.
이러한 선택은 시각적으로 공간을 개방적으로 만들어줘요.





올화이트 사무실 디자인 인테리어의 매력을 제대로 살리려면 소품 활용이 중요하죠.
흰색 공간에 포인트가 되는 소품으로는 식물이나 캔버스 아트가 있어요.
이는 공간을 더욱 생동감 있게 만들어주고, 자연과의 연결감을 느낄 수 있어요.
식물은 공기를 정화해 주는 효과도 있으니 일석이조랍니다.





사무실 디자인에서 공간 활용성은 매우 중요한 요소예요.
우선, 열린 공간과 개인 작업 공간의 적절한 배치가 필요하죠.
열린 공간은 동료들과의 즉각적인 소통을 가능하게 하여 협업이 원활하게 진행되도록 도와줍니다.
반면 개인 작업 공간은 집중력을 높여주기 때문에 팀 내에서 균형 있게 조화를 이루는 것이 중요해요.
예를 들어, 사용자가 필요에 따라 공간을 조정할 수 있는 가변형 가구나, 소음 차단을 위한 칸막이 등이 좋은 선택이 될 수 있어요.






IT 기업은 직원들이 자율적으로 일하길 바라지만, 동시에 소속감을 느끼게 하는 것도 중요해요.
개별 작업 공간은 개인의 업무 스타일을 존중해줄 필요가 있지만, 반면에 팀워크를 위한 공간도 마련되어야 하니까요.
서로의 아이디어를 교류할 수 있는 분위기를 조성하되 각자의 독립성을 해치지 않는 것이 관건이에요.


일을 하다 보면 잠깐의 휴식이 필요한 경우가 많죠.
직원들이 스트레스를 해소할 수 있는 공간을 충분히 제공하는 것이 중요합니다.
이럴 때 간단하게 음료를 마실 수 있는 카페 공간이나, 산책할 수 있는 테라스를 마련하면 좋겠어요.
이러한 휴식 공간은 자연과 접할 수 있는 경험을 제공하면서도 직원들이 소통할 수 있는 장이 되어줍니다.



또한, 이완과 재충전을 위한 다양한 시설을 제공하는 것도 고려해 볼 만해요.
게임 룸, 요가 공간, 혹은 간단한 운동 기구가 구비된 공간 등이 있다면, 직원들이 지친 몸과 마음을 회복할 수 있는 기회를 얻게 됩니다.
이렇게 신경 쓴 휴식 공간은 궁극적으로 직원의 만족도를 높여줄 거예요.







회의 공간과 개별 작업 공간 간의 조화로운 배치를 통해 직원들이 서로 소통할 수 있는 환경을 조성해야 해요.
예를 들어, 개별 공간에 개인의 성향을 반영해 주거나, 팀 단위로 작업할 수 있는 코너를 마련하면 더욱 긍정적인 효과를 불러일으킬 수 있습니다.
이렇게 직원들이 서로를 소중히 여기는 분위기를 조성해야 하죠.


















직원들이 자신의 개성을 발휘할 수 있는 공간이 마련되는 것도 중요해요.
개별 작업 공간에 각자의 스타일을 반영할 수 있도록 도와주는 것이죠.
예를 들어, 개인의 취향에 맞춘 장식물이나 사진을 올릴 수 있도록 하면 직원들이 더욱 애착을 느끼게 돼요.
이렇게 개인화된 환경은 직원들의 자존감과 생산성에 긍정적인 영향을 미칠 수 있어요.







또한, 협업 공간도 다양한 테마로 꾸며서 직원들이 원하는 분위기를 선택하게 해보세요.
비공식 모임 장소나 팀 미팅 공간을 각기 다른 스타일로 설정하면 직원들이 자발적으로 아이디어를 공유하고 소통할 수 있는 기회를 크게 늘릴 수 있어요.
개인의 욕구와 팀의 요구를 잘 조화시키는 것이 필요합니다.
텍스처와 패턴이 없는 올화이트 공간은 직원들에게 편안함과 안정감을 줘요.
흰색은 전통적으로 순결함과 단순함을 상징하므로, 스트레스를 감소시키는 데 기여하죠.
특히 까다로운 업무 환경에서는 이런 심리적 안정이 정말 중요한 요소인데요, 이를테면 발표와 회의 등 긴장감이 필요한 자리에 적합한 분위기를 연출할 수 있어요.
또한 올화이트 사무실은 대화를 시각적으로 방해하지 않기 때문에, 소통에 적극적으로 참여하는 데 도움이 된답니다.





그리고 올화이트 사무실은 고객과의 미팅이나 세미나 때 긍정적인 첫인상을 남길 수 있는 매력도 가집니다.
사무실 디자인에서 오는 전문성은 신뢰를 구축하는 데 유리하죠.
예를 들어, 의료, 법률, 컨설팅 업계처럼 전문성이 요구되는 분야에서는 올화이트의 깔끔함이 업무의 신뢰성을 더욱 높여줘요.
따라서 이러한 요소를 통해 고객들에게 안정감과 신뢰를 줄 수 있답니다.



친환경 요소를 고려하며 사무실 디자인을 할 때, 직원들에게도 그 가치를 전달해야 해요.
예를 들어, 식물이나 녹색 공간을 배치하면 직원들이 환경을 소중히 여기는 마음을 더욱 느끼게 될 수 있습니다.
이러한 변화는 직무 만족도를 높여주고 기업의 지속 가능성을 증진시킬 수 있는 기회가 될 거예요.


IT 기업의 사무실 디자인은 단순히 공간을 세련되게 꾸미는 것이 아닌, 직원들의 만족도와 기업의 경쟁력을 높이는 중요한 요소입니다.
공간 활용성, 색채의 조화, 협업 촉진, 그리고 기술적 요소를 통합하는 것이 모두 연결되어 함께 동작할 때, 직원들이 진정으로 행복하고 생산적으로 일할 수 있는 환경이 조성됩니다.
또한, 휴식 공간, 환경 친화적인 요소, 개인화된 공간 등 다양한 요소를 갖춘다면 IT 기업은 더욱 지속 가능한 발전을 이룰 수 있죠.
올화이트 사무실 디자인은 직원들과 고객 모두에게 쾌적하고 영감을 주는 환경을 조성하기 위해 최적의 선택이 될 수 있으므로 남양주인테리어업체가 적극적으로 제안드립니다. 올화이트 사무실의 장점으로 가득 채우고 싶다면 언제든지 연락바랍니다.
☎ 공사문의 ☎
010 -3235- 8427
▼ 포트폴리오 더보기 ▼
https://916er.com/
사무실인테리어 디자인 공사 비용견적 플랫폼 - 사무실인테리어 916
사무실인테리어 916
916er.com
2025.01.09 - [사무실인테리어] - 분당인테리어업체에서 진행한 공간활용이 돋보이는 공유오피스 사무실 디자인
분당인테리어업체에서 진행한 공간활용이 돋보이는 공유오피스 사무실 디자인
분당인테리어업체 공유오피스 디자인 최근 1인 기업이나 소규모 스타트업이 증가하면서 공유오피스에 대한 수요도 함께 늘어나고 있습니다. 작은 규모의 사무실이지만, 효율적인 공간 활용과
dopamine7.com
2024.12.31 - [사무실인테리어] - 회사인테리어 기업 이미지를 살린 사무실 맞춤디자인 설계
회사인테리어 기업 이미지를 살린 사무실 맞춤디자인 설계
오늘날 기업들은 단순히 사무 공간을 제공하는 것을 넘어, 브랜드의 정체성을 드러내고 이끌어내는 인테리어 디자인에 큰 관심을 기울이고 있습니다.회사인테리어는 직원들의 생산성뿐만 아니
dopamine7.com
2024.12.26 - [사무실인테리어] - 서초인테리어업체 군더더기 없이 깔끔한 사무실 리모델링을 원하신다면
서초인테리어업체 군더더기 없이 깔끔한 사무실 리모델링을 원하신다면
안녕하세요. 916디자인 입니다. 최근 창업붐이 일면서 많은 분들이 새롭게 사무실을 오픈하시거나기존 공간을 리모델링 하시는 경우가 많습니다. 이때 가장 중요하게 고려해야 할 부분 중 하나
dopamine7.com
2024.12.17 - [사무실인테리어] - 서울사무실인테리어 질리지않는 오피스 디자인을 원하신다면 주목하세요
서울사무실인테리어 질리지않는 오피스 디자인을 원하신다면 주목하세요
서울사무실인테리어 최신 오피스 디자인 반영 최근 창업붐이 일면서 많은 분들이 자신만의 사업장을 꾸리고 있습니다. 이때 중요한 것 중 하나가 바로 사무실인테리어 인데요. 같은 공간이라
dopamine7.com
2024.12.10 - [사무실인테리어] - 30평사무실인테리어 내집같은 분위기의 아늑한 사무공간 연출 디자인
30평사무실인테리어 내집같은 분위기의 아늑한 사무공간 연출 디자인
30평사무실인테리어 사무공간 연출 원칙 최근 창업붐이 일면서 많은 분들이 자신만의 사업장을 꾸리고 있습니다. 이때 중요한 것 중 하나가 바로 사무실인테리어 입니다. 단순히 업무를 보
dopamine7.com
'사무실인테리어' 카테고리의 다른 글
| 판교인테리어 사무실 전문업체 색채가 남다른 오피스 디자인 공사 (0) | 2025.01.20 |
|---|---|
| 사무실원상복구 철거 정리 후 트렌드를 반영한 오피스 디자인까지 완벽 시공 업체 (0) | 2025.01.17 |
| 성수동병원인테리어 성수 정신의학과 디자인 심미성과 실용성을 모두 담은 포트폴리오 (0) | 2025.01.15 |
| 화성인테리어업체 기업문화에 맞춘 디자인을 생각하신다면 이렇게 진행해보면 어떨까요? (0) | 2025.01.13 |
| 분당인테리어업체에서 진행한 공간활용이 돋보이는 공유오피스 사무실 디자인 (0) | 2025.01.09 |
| 동작구인테리어 트렌드와 연구원사무실 맞춤 디자인 아이디어 제안 (0) | 2025.01.08 |
| 서초구인테리어 감각적인 플랜테리어 디자인 사무실 공간연출 (0) | 2025.01.07 |
| 분당인테리어 사무실 리모델링 시공업체 현명하게 선택하세요 (1) | 2025.01.07 |
- Total
- Today
- Yesterday
- 헤어샵인테리어
- 오피스인테리어
- 피티샵인테리어
- 사무실인테리어전문
- 916디자인
- 사무실인테리어잘하는곳
- 학원인테리어디자인
- 인천사무실인테리어
- 미용실인테리어
- 사무실인테리어디자인
- 사무실인테리어후기
- 사무실인테리어
- 상가인테리어
- 인테리어
- 회사인테리어
- 사무실디자인
- 사무실인테리어추천
- 지식산업센터인테리어
- 사무실리모델링
- 헬스장인테리어
- 3D디자인
- 사무실인테리어비용
- 사무실인테리어견적
- 사무실인테리어업체
- 학원인테리어
- 병원인테리어
- 인테리어디자인
- interior
- 사무실인테리어공사
- 3D사무실인테리어
| 일 | 월 | 화 | 수 | 목 | 금 | 토 |
|---|---|---|---|---|---|---|
| 1 | 2 | 3 | ||||
| 4 | 5 | 6 | 7 | 8 | 9 | 10 |
| 11 | 12 | 13 | 14 | 15 | 16 | 17 |
| 18 | 19 | 20 | 21 | 22 | 23 | 24 |
| 25 | 26 | 27 | 28 | 29 | 30 | 31 |













