티스토리 뷰
목차
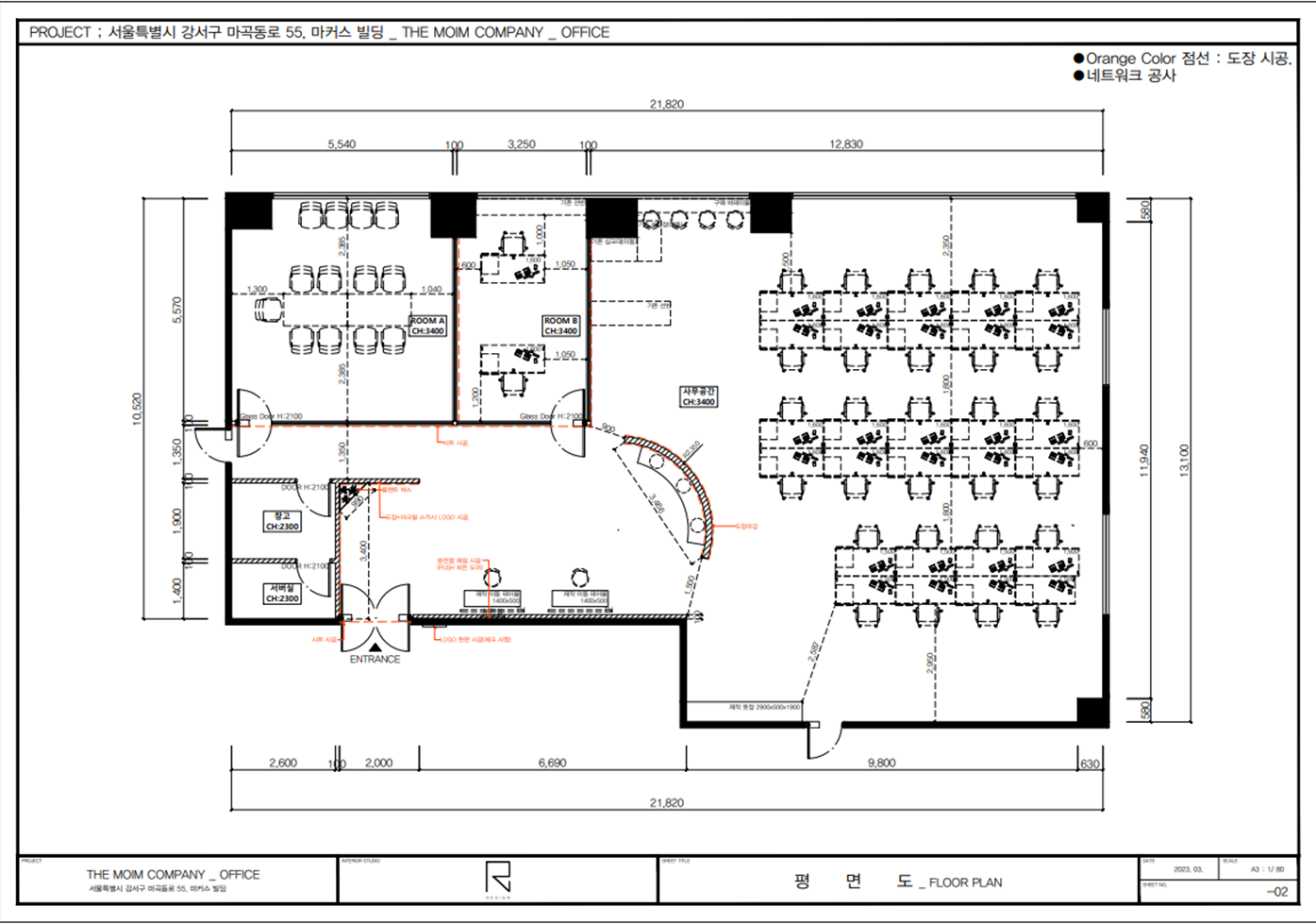
대치동사무실인테리어 오피스 공간 연출
현대의 사무실은 단순한 업무 공간이 아닌, 창의성과 협업을 촉진하는 환경으로 변화하고 있습니다.
특히 대치동 같이 업무 밀집 지역에서는 사무공간을 효율적으로 사용하는 것이 더욱 중요한데요.
고객과의 첫 인상이 중요한 만큼, 사무실 디자인은 기업의 정체성을 드러내는 중요한 요소로 작용합니다.
오늘은 저희 916디자인에서 진행한 대치동사무실인테리어의 가벽을 활용한
오피스 사무공간 연출방법에 대해 살펴보고,
효과적으로 공간을 활용할 수 있는지에 대해 이야기해보려 합니다.
여러분도 사무실인테리어를 고민하고 계시다면,
대치동사무실인테리어를 통해 유용한 정보를 얻어가시길 바랍니다.

대치동사무실인테리어에 있어서 최신 트렌드를 반영하는 것은 매우 중요합니다.
최근에는 오픈형 사무실이나 유연한 작업 공간이 인기를 끌고 있는데,
이는 팀워크와 협업을 촉진하기 위한 노력의 일환입니다.
또한, 자연을 느낄 수 있는 요소를 포함한 바이오필릭 디자인도 주목받고 있는데요.
식물이나 자연광을 최대한 활용하는 디자인은 직원들에게 긍정적인 영향을 미친답니다.

이런 트렌드를 반영하기 위해서는 전문가의 도움을 받는 것이 좋습니다.
저희처럼 사무실인테리어전문업체와의 상담을 통해 공간을 어떻게 활용할지,
어떤 스타일이 적합할지를 논의하면 더 효과적인 결과를 얻을 수 있답니다.
대치동사무실인테리어 가벽 공간 활용


최근 대치동사무실인테리어 디자인에서는 공간 분할과 활용에 대한 관심이 높아지고 있습니다.
그 중에서도 가벽은 가장 인기 있는 아이템 중 하나입니다. 간단한 설치만으로도
다양한 목적에 맞게 공간을 재구성할 수 있어 실용적이면서도 세련된 분위기를 연출할 수 있습니다.





일반적으로 석고보드나 목재로 만들어지는 가벽은 다양한 형태와 크기로 제작됩니다.
직선 형태뿐만 아니라 곡선 형태로도 제작이 가능하며, 투명 유리나 불투명 유리를 사용하여
개방감과 프라이버시를 동시에 확보할 수도 있습니다.



이렇게 만들어진 가벽은 회의실, 휴게실, 업무 공간 등 다양한 용도로 활용 될 수 있습니다.
예를 들어, 직원들 간의 소통과 협업을 증진시키기 위해 오픈 라운지 형태의 업무 공간을 만들 수도 있고,
독립적인 업무 공간을 원하는 직원들을 위해 개인 사무실을 만들 수도 있습니다.


이러한 대치동사무실 가벽인테리어는 단순히 공간을 나누는 것 이상의 의미를 가지고 있습니다.
\공간의 성격과 목적에 따라 다양한 디자인 요소를 추가하여 개성 있는 분위기를 연출할 수 있으며,
이를 통해 직원들의 업무 효율과 만족도를 높일 수 있습니다.
대치동사무실인테리어 창의적인 사무공간
대치동사무실인테리어는 사무공간이 제한적이기 때문에, 효율적인 공간 활용이 필수적인데요.
각 공간의 용도를 명확하게 정의하고, 필요한 가구와 장비를 적절히 배치하는 것이 중요합니다.
따라서 회의실과 개인 작업 공간을 적절히 배치하면 직원들이 필요할 때 쉽게 이동할 수 있습니다.





또한, 다목적 공간을 만들어 다양한 용도로 활용하는 것도 좋은 방법 중 하나입니다.
휴게실을 회의 공간으로 변환할 수 있는 가구를 활용하면 공간을 더욱 효율적으로 사용할 수 있답니다.
이런 작은 변화가 전체적인 업무 환경을 개선하는 데 큰 도움이 될 수 있습니다.






사무실인테리어 가벽에는 여러 종류가 있습니다.
대표적으로 이동식 가벽, 고정식 가벽, 그리고 소음 차단 기능이 있는 방음 가벽 등이 있죠.
이동식 가벽은 공간의 필요에 따라 쉽게 재배치할 수 있어 유연한 환경을 제공합니다.
고정식 가벽은 안정감이 뛰어나고, 디자인에 따라 다양한 분위기를 연출할 수 있습니다.
방음 가벽은 소음 문제를 해결해 주기 때문에, 집중이 필요한 업무 환경에 적합하답니다.
각 가벽의 특징을 잘 이해하면, 어떤 공간에 어떤 가벽이 적합할지 선택하는 데 큰 도움이 될 것입니다.








대치동사무실인테리어 오피스공간은 한정되어 있기 때문에 효율적으로 활용하는 것이 중요합니다.
가벽을 활용하면 공간을 구획화하여 팀별로 독립적인 업무 환경을 조성할 수 있습니다.
이렇게 하면 직원들이 서로 방해받지 않고 집중할 수 있는 환경을 만들 수 있죠.
또한, 가벽을 통해 회의실, 휴게 공간, 개인 작업 공간 등을 효과적으로 나누면, 사무실의 전체적인 흐름이 좋아집니다.
공간 최적화는 직원들의 생산성을 높이고, 조직의 효율성을 극대화하는 데 큰 역할을 하기 때문이죠.









사무실 가벽은 단순한 분리 기능을 넘어 디자인적인 요소로도 큰 역할을 합니다.
다양한 색상과 질감의 가벽을 통해 사무실의 분위기를 변화시킬 수 있죠.
밝고 경쾌한 색상의 가벽은 직원들의 기분을 좋게 하고, 차분한 색상은 집중력을 높여줄 수 있습니다.
또한, 유리 가벽을 사용하면 개방감을 유지하면서도 시각적인 분리를 할 수 있습니다.
디자인 요소를 잘 활용하면 사무실이 더욱 매력적이고 편안한 공간으로 탈바꿈할 수 있답니다.










요즘 많은 기업들이 협업을 강조하고 있는데 가벽을 활용하면 팀 단위의 협업 공간을 조성할 수 있습니다.
서로의 의견을 쉽게 나누고, 아이디어를 공유할 수 있는 환경이 마련되기 때문이죠.
이러한 협업 공간은 직원들이 자연스럽게 소통할 수 있도록 도와주며,
창의적인 결과물을 만들어내는 데 기여할 수 있습니다.
가벽을 활용한 협업 공간은 직원들의 유대감을 높이고, 업무의 효율성을 증가시키는 데 큰 도움이 될 것입니다.




오피스 사무공간 연출은 비용이 많이 드는 작업입니다.
하지만 가벽 인테리어는 상대적으로 저렴한 비용으로 공간을 변신시킬 수 있는 좋은 방법이죠.
기존의 벽을 허물거나 새로 짓는 것보다 가벽을 설치하는 것이 훨씬 경제적입니다.
또한, 이동식 가벽은 필요에 따라 언제든지 재배치할 수 있어, 장기적으로 봤을 때 비용 효율성이 높죠.
예산이 한정된 기업이라면 사무실가벽인테리어를 고려해보는 것이 좋습니다.



지금까지 가벽을 활용한 오피스 사무공간 연출이 돋보이는
대치동사무실인테리어에 대해 살펴보았는데요.
사무실가벽인테리어는 단순한 공간 분리를 넘어,
직원들의 업무 환경을 개선하고,
기업의 생산성을 높이는 데 중요한 역할을 합니다.
오늘 저희가 시공했던 사무실인테리어 사례를 통해
어떻게 하면 효율적인 공간으로 꾸밀 수 있는지 참고바라며,
문의사항은 언제든 편하게 연락바랍니다.
📞문의전화
010-3235-8427
🔽 포트폴리오 더 보기🔽
사무실인테리어 디자인 공사 비용견적 플랫폼 - 사무실인테리어 916
사무실인테리어 916
916er.com
2024.11.05 - [사무실인테리어] - 역삼인테리어 포인트 색상으로 분위기를 살린 법률사무소 시공 과정
역삼인테리어 포인트 색상으로 분위기를 살린 법률사무소 시공 과정
역삼인테리어 공간활용안녕하세요 오늘은 포인트 색상으로 활기찬 분위기가 연출된 역삼인테리어 시공 현장을 소개드리겠습니다. 역삼동은 다양한 기업과 법률 사무소가 밀집해 있는 곳이지
dopamine7.com
2024.11.04 - [사무실인테리어] - 서울사무실인테리어 눈에 띄는 사무공간 연출을 원하신다면
서울사무실인테리어 눈에 띄는 사무공간 연출을 원하신다면
서울사무실인테리어 컬러 디자인 선택 서울사무실인테리어는 단순한 공간의 꾸밈을 넘어, 직원들의 생산성과 창의성에 큰 영향을 미칩니다. 특히 마젠타컬러는 현대적인 감각을 제공하면서도
dopamine7.com
2024.10.13 - [사무실인테리어] - 종로사무실인테리어 편리한 업무 효율성의 공간
종로사무실인테리어 편리한 업무 효율성의 공간
종로사무실인테리어 편리한 업무 효율성의 공간 안녕하세요? 저희는 종로사무실인테리어를 포함해서 다양한 공간들을 새롭게 재탄생 시키고 있습니다. 요즘은 많은 고용주분들께
dopamine7.com
2024.06.24 - [사무실인테리어] - 여의도사무실인테리어 업무공간의 레이아웃
여의도사무실인테리어 업무공간의 레이아웃
여의도사무실인테리어 업무공간의 레이아웃 우리가 업무를 하는 사무실은 하루 중대부분의 시간을 보내고 있다고 해도과언이 아니라고 볼 수 있습니다.그렇기 때문에 사무실의
dopamine7.com
2024.06.26 - [사무실인테리어] - 강남구인테리어 포트폴리오가 말하다
강남구인테리어 포트폴리오가 말하다
강남구인테리어 포트폴리오가 말하다 안녕하세요, 최근 우리 주변을 볼 때 사무실을 새롭게 디자인하기 위해서 고민하시는 분들이 많다는 것을 알 수 있습니다. 본격적인 여름이 다가오는
dopamine7.com
'사무실인테리어' 카테고리의 다른 글
| 인천사무실인테리어 시공품질과 가성비를 모두 잡은 오피스 (0) | 2024.11.06 |
|---|---|
| 100평사무실인테리어 브랜드이미지가 잘 접목된 대형오피스 레이아웃 (0) | 2024.11.06 |
| 송도인테리어 전문성이 느껴지는 오피스 디자인의 정석 (2) | 2024.11.06 |
| 반포인테리어 조명을 활용한 오피스 시공 후기 (2) | 2024.11.05 |
| 파주인테리어 공사업체가 진행한 세무회계 사무실 (1) | 2024.11.05 |
| 역삼인테리어 포인트 색상으로 분위기를 살린 법률사무소 시공 과정 (3) | 2024.11.05 |
| 사무실리모델링 회사 이미지 변화를 위한 오피스 디자인 시공 (0) | 2024.11.05 |
| 서울사무실인테리어 눈에 띄는 사무공간 연출을 원하신다면 (1) | 2024.11.04 |
- Total
- Today
- Yesterday
- 사무실디자인
- 사무실인테리어전문
- 피티샵인테리어
- 상가인테리어
- 학원인테리어
- 사무실인테리어디자인
- 헬스장인테리어
- 사무실인테리어추천
- 사무실인테리어견적
- 사무실리모델링
- 사무실인테리어업체
- 병원인테리어
- 학원인테리어디자인
- interior
- 회사인테리어
- 인천사무실인테리어
- 사무실인테리어비용
- 3D사무실인테리어
- 지식산업센터인테리어
- 인테리어
- 사무실인테리어후기
- 인테리어디자인
- 916디자인
- 사무실인테리어
- 오피스인테리어
- 미용실인테리어
- 사무실인테리어잘하는곳
- 3D디자인
- 헤어샵인테리어
- 사무실인테리어공사
| 일 | 월 | 화 | 수 | 목 | 금 | 토 |
|---|---|---|---|---|---|---|
| 1 | 2 | |||||
| 3 | 4 | 5 | 6 | 7 | 8 | 9 |
| 10 | 11 | 12 | 13 | 14 | 15 | 16 |
| 17 | 18 | 19 | 20 | 21 | 22 | 23 |
| 24 | 25 | 26 | 27 | 28 | 29 | 30 |
| 31 |





