티스토리 뷰
목차
마포병원인테리어 피부과병원 디자인의 중요성
최근 다양한 병원들이 생겨남에 따라 병원인테리어 또한 중요시 여겨지고 있습니다.
그 중에서도 많은 사람들이 이용하는 피부과 같은 경우엔 더욱 신경써야 하는데요.
오늘은 그런 의미로 마포병원인테리어 피부과병원 포트폴리오를 보며
어떻게 진행되었는지 알아보는 시간을 가져보도록 하겠습니다.

피부과병원 인테리어에서 고급스러운 디자인은 매우 중요한 요소 중 하나 입니다.
그 이유는 피부과 병원을 찾는 고객들은 자신의 피부와 건강에 대한 관심이 높기 때문에,
병원의 분위기와 시설에 대한 기대감도 크기 때문입니다.
이런이유로 이번에 소개할 마포병원인테리어피부과병원 포트폴리오는
고급스러운 디자인 요소를 적극적으로 활용하여 디자인 되었습니다.
마포병원인테리어 피부과병원 공사 진행




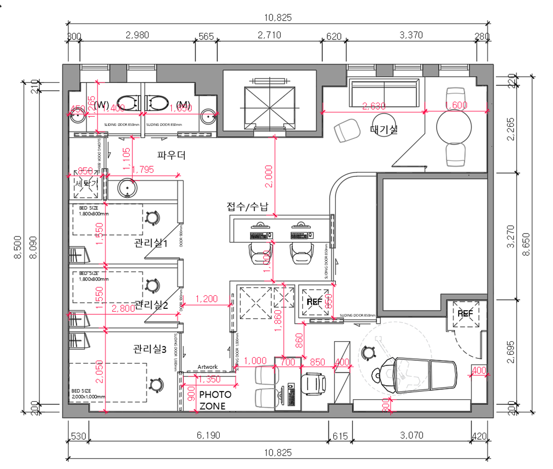
디자인 컨셉이 수립된 후, 전문가들과 함께 세부 사항을 논의하며 구체적인 레이아웃을 결정합니다.
대기실, 진료실, 치료실 각각의 공간이 어떻게 연결될지, 환자 동선은 어떻게 최적화할지를 고민했죠.
이러한 과정에서 환자와 의료진 모두가 편리하게 이용할 수 있는 공간이 만들어집니다.




병원의 공간은 제한적이기 때문에, 효율적인 공간 활용이 필수적입니다.
마포병원인테리어 피부과병원에서는 각 공간의 기능에 맞춰 설계를 진행했습니다.
예를 들어, 대기실은 환자들이 편안하게 쉴 수 있는 공간으로 꾸미고,
진료실은 의료진이 원활하게 진료를 진행할 수 있도록 설계했죠.
또한, 치료실은 최신 장비를 배치할 수 있도록 공간을 최적화했습니다.
이러한 공간 활용은 환자들의 편의성을 높이는 데 크게 기여하죠.


인테리어에서 마감재는 전체적인 분위기를 좌우하는 중요한 요소입니다.
이번 피부과병원에서는 고급스러운 느낌을 주기 위해 자연 소재를 많이 활용했습니다.
예를 들어, 나무와 대리석을 조화롭게 사용하여 따뜻하면서도 세련된 느낌을 주죠.
이러한 마감재는 시각적인 아름다움뿐만 아니라, 청결함과 내구성에서도 장점을 가지고 있습니다.
그럼 어떻게 마포병원인테리어 피부과 시공이 완료되었는지 완공 모습 함께 보시죠.
마포병원인테리어 고급스러움을 담은 피부과 완공 모습
피부과병원의 얼굴이라고 할 수 있는 로비는 방문객들을 처음 맞이하는 공간이기 때문에,
특별한 디자인과 구성이 필요합니다. 이번에 소개할 피부과병원 포트폴리오에서는
넓은 공간을 최대한 활용하여 방문객들을 매료시키는 로비 공간을 구성하였습니다.


인포메이션 데스크는 로비 중앙에 배치하여 방문객들의 시선을 끌도록 하였으며,
데스크 옆쪽에는 곡선형 벽면을 설치하여 부드러운 느낌을 주었습니다.
또 접수와 수납 업무를 처리할 수 있는 공간을 별도로 마련하여 업무 효율성을 높였습니다.
이렇게 완성된 로비 공간은 방문객들에게 쾌적하고 편안한 분위기를 제공하며,
병원의 이미지를 높이는 데 큰 역할을 하고 있습니다.




피부과병원에서는 색채와 조명을 활용하여 분위기를 조성하는 것이 중요합니다.
이번에 소개할 포트폴리오에서는 화이트 컬러를 메인으로 사용하여 깔끔하고 세련된 분위기를 연출하였습니다.
또, 포인트 컬러로 우드 컬러를 사용하여 고급스러움을 더했습니다.







마포병원인테리어 피부과병원에서는 단순히 진료를 받는 공간이 아니라,
휴식과 치유가 공존하는 공간이어야 합니다.
이번에 소개할 포트폴리오는 이러한 공간 연출법을 잘 보여주고 있습니다.




먼저, 대기실에서는 넓은 소파와 테이블을 배치하여 환자들이 편안하게 휴식을 취할 수 있도록 하였습니다.
또, 한쪽에는 미니 정원을 조성하여 자연 친화적인 분위기를 연출하였으며,
이를 통해 환자들의 스트레스를 해소하고 마음을 안정시킬 수 있도록 하였습니다.








고급스러운 디자인의 피부과 병원을 만들기 위해서는 소재 선택이 매우 중요합니다.
이번 포트폴리오에서는 대리석과 우드 소재를 적극 활용하여 고급스럽고 세련된 분위기를 연출하였습니다.







대리석은 특유의 광택과 무늬로 인해 고급스러운 분위기를 연출하는 데에 적합한 소재입니다.
또 내구성이 높아 오랜 시간 사용해도 변형이나 변색이 일어나지 않기 때문에 병원 인테리어에 많이 사용됩니다.
다만 가격이 비싸다는 단점이 있어 예산을 고려하여 적절한 범위 내에서 사용해야 합니다.





화장실에는 조명 거울을 설치하여 화사한 분위기를 연출하였으며,
고급스러운 디자인으로 완성하여 환자들이 편리하게 이용할 수 있도록 하였습니다.
지금까지 마포병원인테리어 피부과 시공 사례를 보며
어떤 식으로 진행되었는지 확인해보는 시간을 가져보았습니다.
저희는 이 외에도 다양한 상업 공간들을 시공해드리고 있으니 언제든지 문의 주시기 바랍니다.
📞상담 문의
010-3235-8427
🔽포트폴리오 더 보기🔽
사무실인테리어 디자인 공사 비용견적 플랫폼 - 사무실인테리어 916
사무실인테리어 916
916er.com
2025.01.03 - [병원인테리어] - 종로병원인테리어 전문업체가 추천하는 깔끔한 피부과 시공사례를 소개합니다
종로병원인테리어 전문업체가 추천하는 깔끔한 피부과 시공사례를 소개합니다
종로는 서울의 중심부에 위치한 역사적인 지역으로, 많은 사람들이 이곳을 찾습니다. 특히 피부과는 현대인들에게 필수적인 의료 서비스 중 하나로 자리 잡고 있죠. 건강한 피
dopamine7.com
2024.12.26 - [병원인테리어] - 성형외과인테리어 및 피부과 병원 디자인 모던 럭셔리 컨셉 시공 사례
성형외과인테리어 및 피부과 병원 디자인 모던 럭셔리 컨셉 시공 사례
모던 럭셔리 컨셉의 성형외과인테리어는 최근 성형외과의 새로운 트렌드로 떠오르고 있어요. 사람들이 외모에 대한 관심이 높아지면서, 더욱 정교하고 세련된 공간에서 치료받고 싶어 하는 욕
dopamine7.com
2024.12.13 - [병원인테리어] - 상암병원인테리어 환자에게 안정감을 주는 산부인과 디자인 추천
상암병원인테리어 환자에게 안정감을 주는 산부인과 디자인 추천
상암병원인테리어 중요성과 환자 경험산부인과 병원에서는 환자들의 심리적 안정과 편안한 분위기가 매우 중요합니다. 이는 여성들이 자신의 신체적 변화와 출산에 대한 불안감
dopamine7.com
2024.12.11 - [병원인테리어] - 병원인테리어전문 업체가 추천하는 치과 시공 디자인 포트폴리오
병원인테리어전문 업체가 추천하는 치과 시공 디자인 포트폴리오
치과를 방문하는 것은 대부분 사람들에게 부담스러운 경험으로 여겨지기 쉽죠.이럴 때 치과의 인테리어 디자인은 환자들이 편안함을 느끼는 데 중요한 역할을 하게 됩니다. 현대의 치과
dopamine7.com
'병원인테리어' 카테고리의 다른 글
| 양평병원인테리어 고객에게 주목받고 있는 피부과 클리닉의 이유는 디자인컨셉에 있습니다 (0) | 2025.01.08 |
|---|---|
| 부평병원인테리어 환자중심 정신건강의학과 레이아웃 디자인 공사현장 (0) | 2025.01.06 |
| 동작병원인테리어 치과전문 맞춤시공 화이트 디자인 포트폴리오 (0) | 2025.01.06 |
| 관악병원인테리어 깨끗한 이미지를 심어주는 맞춤형 치과 시공 이렇게 진행해보세요 (0) | 2025.01.06 |
| 잠실병원인테리어 밝고 따뜻하게 완성한 아동 친화적 소아과 디자인 제안 (2) | 2025.01.03 |
| 종로병원인테리어 전문업체가 추천하는 깔끔한 피부과 시공사례를 소개합니다 (0) | 2025.01.03 |
| 성형외과인테리어 및 피부과 병원 디자인 모던 럭셔리 컨셉 시공 사례 (1) | 2024.12.26 |
| 한의원인테리어 재개원을 위한 병원 리모델링 부분공사 (1) | 2024.12.24 |
- Total
- Today
- Yesterday
- 지식산업센터인테리어
- 사무실인테리어비용
- 피티샵인테리어
- 헤어샵인테리어
- 사무실인테리어
- 사무실인테리어추천
- 3D디자인
- 사무실인테리어견적
- 학원인테리어
- 사무실인테리어공사
- 3D사무실인테리어
- 인테리어
- 인테리어디자인
- 사무실디자인
- interior
- 916디자인
- 사무실인테리어전문
- 인천사무실인테리어
- 미용실인테리어
- 사무실인테리어잘하는곳
- 회사인테리어
- 병원인테리어
- 상가인테리어
- 사무실인테리어후기
- 헬스장인테리어
- 사무실인테리어디자인
- 사무실리모델링
- 오피스인테리어
- 학원인테리어디자인
- 사무실인테리어업체
| 일 | 월 | 화 | 수 | 목 | 금 | 토 |
|---|---|---|---|---|---|---|
| 1 | 2 | 3 | ||||
| 4 | 5 | 6 | 7 | 8 | 9 | 10 |
| 11 | 12 | 13 | 14 | 15 | 16 | 17 |
| 18 | 19 | 20 | 21 | 22 | 23 | 24 |
| 25 | 26 | 27 | 28 | 29 | 30 | 31 |




