티스토리 뷰
목차
병원리모델링 공사 현명한시공을
안녕하세요, 동네 한바퀴만 돌아보아도 다양한
병의원들이 근처에 많이 있다는 것을 볼 수 있는데요.
한 곳에서 계속 운영하다보면 더 나은 사무실로
이사하는 것이 더 낫지 않을까 하는 생각이 드실 수도
있지만, 아무래도 환자분들의 입장에서는 위치를
옮기지 않는 것이 혼란을 더는 방법입니다.
그럴 때 병원리모델링 공사를 하게 되는데요.


잠시동안 더 나은 모습으로 돌아오기 위해 일정 기간
공사를 하는 만큼 확실한 아웃풋을 원하시는 것이
당연합니다. 그렇기 때문에 시공을 제대로 하는
업체와 진행할 필요가 있습니다.
그러기 위해선 다양한 업체들의 병원리모델링 완공
사진을 많이 참고하면서 참고 자료들을 모을 필요가
있는데요. 그래서 이번 포스팅에서는 하나의 예시로
완공 결과 사진을 함께 보기 위해 들고와 보았습니다.


우선 하얀 색보다는 밝은 노란빛에 가까운 컬러를
메인 컬러로 선정하게 되었는데요. 너무 하얀 것보다
분위기있고 그윽한 느낌을 내기 위해서는 많이들
고르시는 편입니다.


이번 시공에서는 포인트를 우드로 지정했는데요,
균일한 메인 컬러로 쭉 가기보다는 살짝 다양한
색상이 섞인 듯한 느낌을 주는 타일이나 그림 등을
이용해서 단조로움을 해소해주었습니다.
재질이 거친 것도 일종의 포인트가 되기도 하니
참고해두시면 좋을 팁입니다.


또한 창문이 많지 않은 건이었는데, 개방감을 주기
위해 한 쪽 방벽을 유리문으로 두어서 창문이 있는
공간과 연결해주었습니다.
또한 조명과 간단한 조형물을 함께 배치함으로써
중간마다 공간 무게감을 덜어주었습니다.
병원리모델링 공사 현장 사진

전체적으로 간접조명이 많이 사용되었는데,
겉으로 보기에는 전선이 많이 없을 것 같지만,
실제 시공 장면에서는 서로 선의 간섭 없이
전선을 고정하기 위한 천장 세팅 작업이 많이
있었습니다.


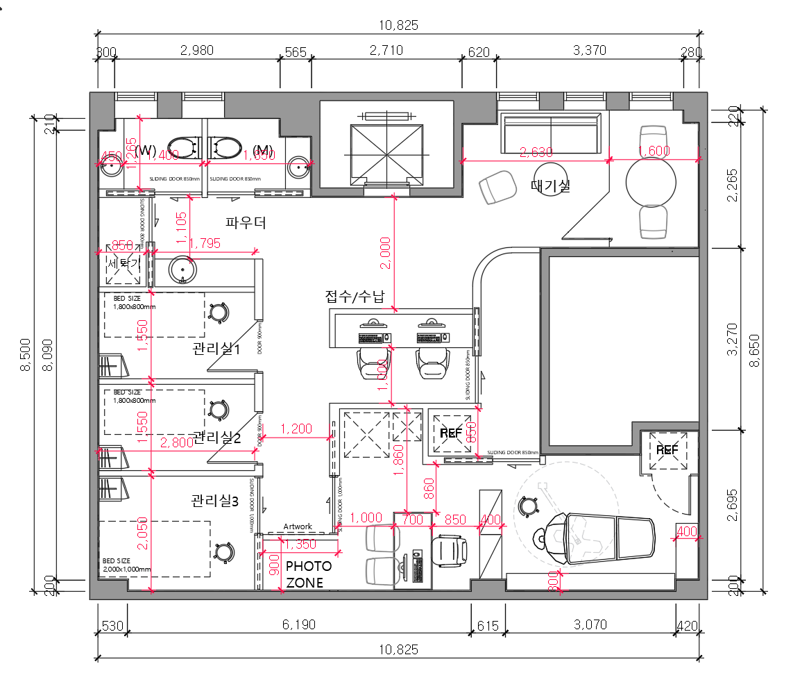
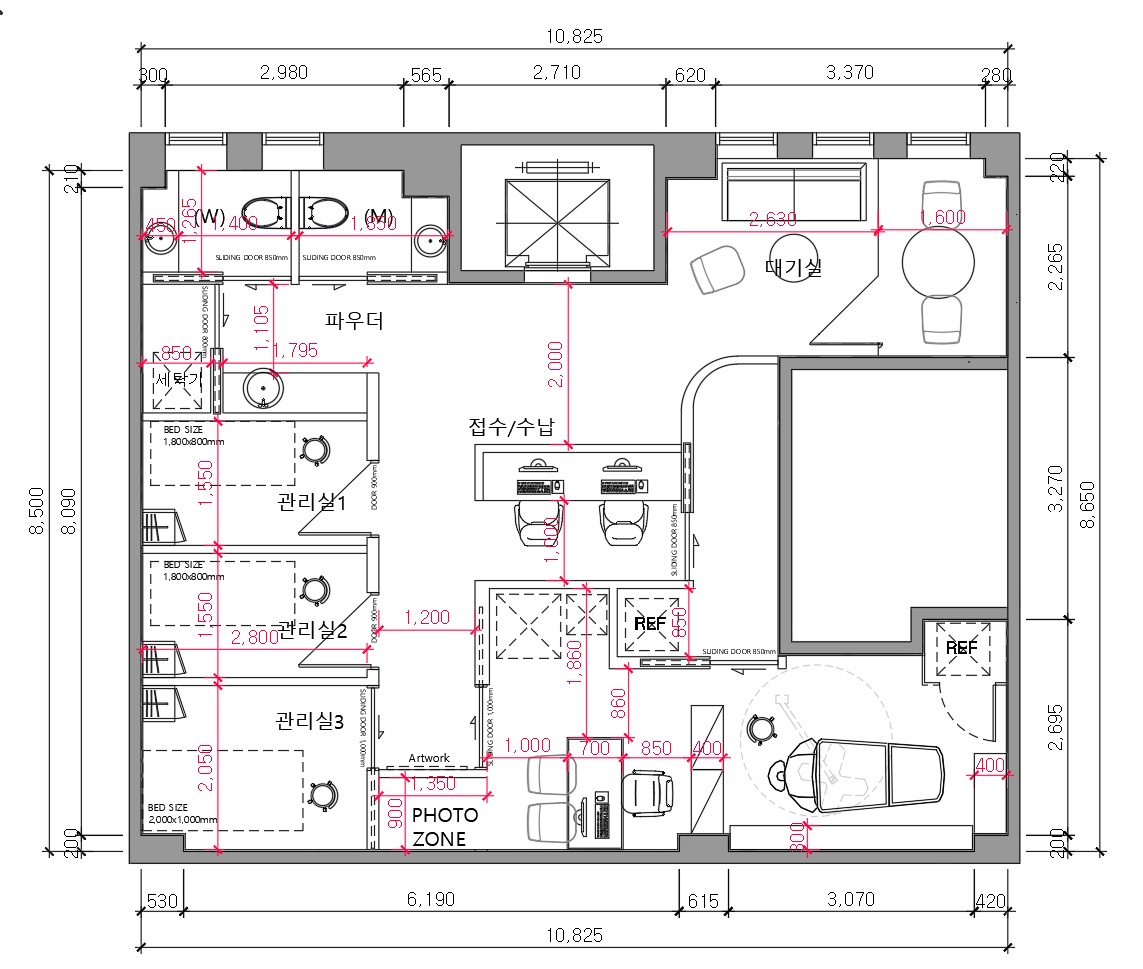
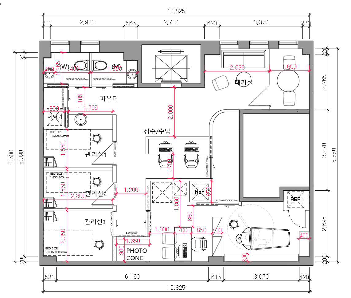
디자인 작업이 진행되기 전에 2d설계도 작성을
통해 전반적인 면적과 공간의 분리가 확실하게
진행되기 때문에 서로 간섭되지 않는 동선에서
각 공간의 기능이 잘 작동하는지 확인이 이루어져야
실질적인 공간 디자인이 진행되게 됩니다.


이렇게 병원리모델링이 완성되기 전까지는 수많은
작업자의 손길과 꼼꼼한 설계, 그리고 클라이언트와
원활한 피드백 3종 세트가 모두 필요합니다.
이 세가지가 원활히 진행되는 곳일수록 경험이 많은
시공 업체라고 볼 수 있겠죠.


또한 비용적인 부분에서도 업체별로 차이가 있는데요
기본적인 소방 및 전선 작업을 제외하고
인테리어 자재별 책정 단가에 따라서도 금액 차이가
있을 수 있습니다. 업체별로 견적을 받아보실때
품목과 진행사항을 동일하게 맞춰보셔도 좋고,
툭별히 추천하는 품목이 어떤 내용인지 차이를
비교해보면 각 업체별 중점으로 생각하는 포인트가
어떤지 느끼실 수 있습니다.
병원리모델링 공사 완성


병원리모델링을 알아보시는 분들이 계시다면
시공업체에서 진행한 분들의 후기글을 상세히
살펴보시고 피드백이 원활히 반영되는지를 보시면
좋습니다. 또한 각 공간의 기능이 분리되어 있으면서
하나의 전체 공간으로의 통일성이 잘 유지되는지
함께 보시기를 추천드립니다.


병원인테리어 공사문의
010 3235 8427
현장방문미팅 신청하기
무료 현장방문 견적신청서
네이버 폼 설문에 바로 참여해 보세요.
form.naver.com
2024.04.25 - [병원인테리어] - 대구병원인테리어 내일의 행복을 위해
대구병원인테리어 내일의 행복을 위해
대구병원인테리어 3d 디자인 시안 안녕하세요, 최근 저희 블로그를 보시고 다양한업종의 시공 요청이 들어오고 있는데요, 그중에서도병의원에서도 많이 찾아주고 계십니다.최근
dopamine7.com
2024.04.25 - [병원인테리어] - 건강검진센터인테리어 다양한 옵션을 생각하세요
건강검진센터인테리어 다양한 옵션을 생각하세요
건강검진센터인테리어 3D 디자인 시안 안녕하세요! 인테리어를 전문적으로 진행하고 있는 916디자인입니다. 새로운 운영 공간을 위해서 저희를 찾아주시는 분들이 점점 더 많아지고
dopamine7.com
2024.04.24 - [병원인테리어] - 분당 성남병원인테리어 동선의 레이아웃을 생각하다
분당 성남병원인테리어 동선의 레이아웃을 생각하다
분당 성남병원인테리어 3D디자인 시안 안녕하세요, 강남인테리어업체 916디자인입니다. 인테리어는 공간에 들어갈 때 첫인상을 결정짓기에 업종에 맞는 디자인을 통해 인테리어를
dopamine7.com
'병원인테리어' 카테고리의 다른 글
| 경기도 고양병원인테리어 공사 전문업체의 현장미팅 (0) | 2024.04.27 |
|---|---|
| 화성 동탄병원인테리어 활기찬 에너지를 (0) | 2024.04.26 |
| 광주병원인테리어 신속빠른 공사와 견적 (0) | 2024.04.26 |
| 병의원 내과인테리어 거품없는 공사로 (1) | 2024.04.26 |
| 성형외과인테리어 다양한 병원공사의 경험으로 (0) | 2024.04.25 |
| 건강검진센터인테리어 다양한 옵션을 생각하세요 (0) | 2024.04.25 |
| 대구병원인테리어 내일의 행복을 위해 (0) | 2024.04.25 |
| 분당 성남병원인테리어 동선의 레이아웃을 생각하다 (0) | 2024.04.24 |
- Total
- Today
- Yesterday
- 회사인테리어
- interior
- 3D사무실인테리어
- 인테리어디자인
- 피티샵인테리어
- 병원인테리어
- 지식산업센터인테리어
- 학원인테리어
- 916디자인
- 사무실인테리어추천
- 3D디자인
- 헤어샵인테리어
- 사무실인테리어디자인
- 헬스장인테리어
- 사무실리모델링
- 인천사무실인테리어
- 미용실인테리어
- 상가인테리어
- 사무실인테리어잘하는곳
- 오피스인테리어
- 사무실인테리어후기
- 인테리어
- 사무실인테리어업체
- 학원인테리어디자인
- 사무실인테리어
- 사무실인테리어전문
- 사무실인테리어비용
- 사무실인테리어견적
- 사무실인테리어공사
- 사무실디자인
| 일 | 월 | 화 | 수 | 목 | 금 | 토 |
|---|---|---|---|---|---|---|
| 1 | ||||||
| 2 | 3 | 4 | 5 | 6 | 7 | 8 |
| 9 | 10 | 11 | 12 | 13 | 14 | 15 |
| 16 | 17 | 18 | 19 | 20 | 21 | 22 |
| 23 | 24 | 25 | 26 | 27 | 28 | 29 |
| 30 |
