티스토리 뷰
목차
부산학원인테리어 통해 학습 능률까지 쑥쑥
안녕하세요.
이번 여름은 정말 찜통 더위라는 말이 아깝지 않게
매일매일이 습도와의 전쟁이었습니다.
물론 에어컨을 트는 것도 좋지만
인테리어 자체가 확 트여 있다면
그 자체만으로 쾌적함을 느낄 수 있는데요.
특히나 학원처럼 공부에 열중해야 하는 곳은
그 환경이 정말 중요하죠.


학원 인테리어는 개성을 추구하기도 애매하고
그렇다고 해서 남다른 특성 없이 완성하는
것도 어려운 까다로운 작업입니다.
공간에 개성을 과도하게 반영한다면
학부모분들이나 학생들이 오히려 거부감을
느낄 수도 있기 때문인데요.
그렇다고 해서 특성 없는 공간으로 완성한다면
어필할 수 있는 매력을 충분히 보여주기가
어렵기도 합니다.
그래서 저희는 항상 학습 공간이라는 주요 목적을
공간 내에 완벽하게 구상해 드리고자 합니다.


공부를 위해 필요한 공간을 만드는 작업이라는 점을
잊지 않고 적당히 개성과 특성을 반영한다면
이질감을 보다 최소화할 수 있을 텐데요.
오늘 소개해 드릴 부산학원인테리어 현장은
이처럼 실용적으로 학습할 수 있는 공간을 마련하면서
학원 공간의 개성까지 담아냈습니다.
어떤 방식으로 시공 계획을 세워 보았는지
3D 디자인으로 먼저 확인해 보시겠습니다.
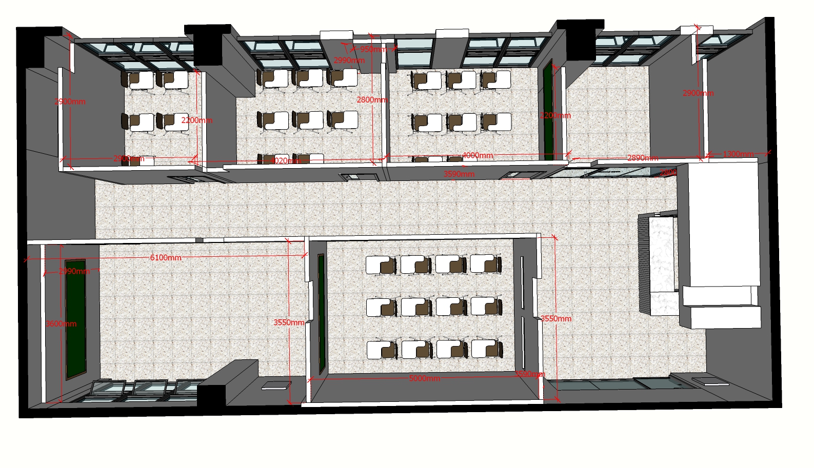
부산학원인테리어 3D디자인 시안


공간이 널찍하게 마련되어 있는 곳이었는데요.
많은 요소를 배치하지 않고 전반적으로
화이트 색감을 통해 깔끔한 인테리어를
하고자 했습니다.


그러면서도 너무 차가운 느낌이 들지는 않게
따뜻한 색상의 조명과 책상으로
포인트를 주고자 했습니다.
또 심심하지 않게끔 벽면에 수학 과학 학원의
개성을 돋보이게 해줄 수 있는 사인물을
부착하기로 계획했죠.
수학 과학 학원인 만큼 입구에서는
깔끔함을 보다 살렸는데요.
그러면서도 너무 심심하지 않게 벽면에
학원 정보와 장식을 부착하여
심미성과 실용성을 동시에 살렸습니다.
부산학원인테리어 시공 공사 현장 사진


흔히 학원이라고 하면 아이들에게는
가기 싫은 곳이라는 인식이 박혀 있기 마련인데요.
그래서 부산학원인테리어에서도
유독 신경을 쓴 곳이 바로 입구입니다.

유리로 된 입구의 문과 주변의 풍경이
조화롭게 어울리게끔 배치했습니다.
수학 과학 학원이라는 점이 잘 드러나면서도
선뜻 들어오고 싶은 분위기를 의도했습니다.
부산학원인테리어 시공 완성 현장



학원에서 가장 중요한 공간이라고 하면
바로 수업을 듣고 공부를 하는 강의실이죠.
이곳에서도 전반적으로 화이트 색상을 사용해
산뜻한 느낌을 주고자 했는데요.


밝은 색상을 통해서 공부의 능률을 올리고
보다 더 집중할 수 있는 공간을 추구했습니다.
많은 인원을 수용하게 되는 강의실인 만큼
실용성을 생각해 편안한 분위기를 살렸습니다.
3D 디자인을 보여드리니 고객님이 크게
만족하시는 모습을 보여 주셨는데요.
구조에 별다른 이견이 없으셔서 곧바로
작업에 착수하였습니다.

보통 부산학원인테리어는 학원을 개원하는
날짜까지 정해져 있는 경우가 많습니다.
그 사이에 학원 홍보까지 이루어지기 때문에
계획에 차질이 생기지 않으시게끔
저희가 최선을 다해 시공을 진행해 드립니다.

물론 일정만을 중시하는 곳들과는 다르게
공간의 세세한 디테일을 중시하며
퀄리티를 높게 유지해 완공까지 책임져 드리죠.
아무래도 학원은 방음이 중요한 곳이라
저희는 차음 단열재와 차음 석고 칸막이를
함께 사용하면서 혹시나 발생할 수 있는 소음을
철저하게 차단하는 작업까지 진행했습니다.

공사를 마친 부산학원인테리어 모습
상세하게 확인시켜 드리겠습니다.
화이트 색상의 벽면 위에 검은 색상으로
사인물을 제작하여 부착함으로써
보다 집중도를 높였습니다.

시트지를 통해서 내부를 보다 개성있는 공간으로
꾸몄는데요.
학원의 체계적인 브랜딩에 도움이 될 수 있게끔
공간에 맞는 사인물을 마련해 과정 진행했습니다.


내부 구조의 디자인 또한 수정 없이 그대로
진행해 드렸습니다.
유리에 프라이빗한 시트지를 부착해 개인 업무도
부담감 없이 소화 가능한 공간으로 마련했습니다.
전문성과 고급스러움을 둘 다 강조할 수 있는
공간 마련을 통해서 개성을 창조해 냈습니다.


평범하고 심심하게 보일 수 있는 복도도 디테일하게
디자인을 넣어 개성을 나타냈습니다.
로비와 복도가 분리 없이 자연스럽게 이어지는
구조라서 아이들이 무리 없이 적응 가능한
부산학원인테리어였습니다.

이처럼 개성이 부담스럽지 않게 녹아들면서도
학습 공간을 실용적으로 살려낼 수 있었던 공간
소개해 드렸는데요.
브랜드 특성에 따라 다른 인테리어 제안도 가능하니
얼마든지 문의해 주시기를 바랍니다.
공사문의 010 3235 8427
▼▼▼포트폴리오 더보기 ▼▼▼
https://916er.com/category/academy/
Academy - 사무실인테리어 디자인 공사 비용견적 플랫폼
제1조 [목적] 이 약관은 “916디자인”이 온라인으로 제공하는 “콘텐츠” 및 “916디자인” 과 업무계약을 맺은 인테리어 디자인 제휴업체의 “인테리어견적서비스” 이용과 관련한 “9
916er.com
2024.06.23 - [학원인테리어] - 잠실학원인테리어 빠른 미팅부터
잠실학원인테리어 빠른 미팅부터
잠실학원인테리어 3D 디자인 시안 안녕하세요! 학생들의 두뇌를 자극하고 창의력을 쑥쑥 키워주는 학원 인테리어는 아이들의 눈높이에 맞춤은 물론 근로자인 선생님들의 의욕
dopamine7.com
2024.06.23 - [학원인테리어] - 송파 위례학원인테리어 학습의 진심
송파 위례학원인테리어 학습의 진심
송파 위례학원인테리어 학습의 진심 안녕하세요. 916디자인입니다. 학원인테리어 공간을 디자인할 때는 일반적으로 원장실 및 상담실과 강의실, 휴게실 등 학원 규모와 운영 방
dopamine7.com
2024.03.28 - [학원인테리어] - 강남 서초동인테리어 행복공간 아이들을 위한 학원 교습소 디자인
강남 서초동인테리어 행복공간 아이들을 위한 학원 교습소 디자인
강남 서초동인테리어 행복공간 아이들을 위한 학원 교습소 디자인 안녕하세요, 916디자인입니다. 이제는 뗄레야 뗄 수 없는 존재인 학원 학교에서의 교육을 보충해주는 역할을 하는 동시에 또
dopamine7.com
'학원인테리어' 카테고리의 다른 글
| 서울학원인테리어 비용견적 걱정 없이 편안하게 (0) | 2024.09.19 |
|---|---|
| 역삼동학원인테리어 감각이 돋보이는 최적의 공부존 (0) | 2024.09.19 |
| 송파학원인테리어 예쁘고 세련된 공부 분위기 만들기 (0) | 2024.09.18 |
| 송도학원인테리어 편안하면서도 안정적인 공부환경 연출 (1) | 2024.09.18 |
| 예쁜학원인테리어 학습효과 좋은 공간 변신 (1) | 2024.09.06 |
| 인천학원인테리어 임팩트 있게 하는 곳 소개 (1) | 2024.09.05 |
| 30평학원인테리어 효율적인 작업에 합리적인 가격! (0) | 2024.09.05 |
| 수원학원인테리어 효율적인 공간활용과 집중력 향상을 위한 디자인 (3) | 2024.09.05 |
- Total
- Today
- Yesterday
- 학원인테리어
- 학원인테리어디자인
- interior
- 사무실인테리어전문
- 사무실인테리어
- 사무실인테리어견적
- 사무실인테리어공사
- 3D디자인
- 인천사무실인테리어
- 사무실인테리어후기
- 오피스인테리어
- 헤어샵인테리어
- 병원인테리어
- 사무실디자인
- 사무실인테리어디자인
- 916디자인
- 회사인테리어
- 피티샵인테리어
- 사무실리모델링
- 상가인테리어
- 인테리어
- 3D사무실인테리어
- 사무실인테리어잘하는곳
- 사무실인테리어업체
- 지식산업센터인테리어
- 인테리어디자인
- 미용실인테리어
- 사무실인테리어추천
- 사무실인테리어비용
- 헬스장인테리어
| 일 | 월 | 화 | 수 | 목 | 금 | 토 |
|---|---|---|---|---|---|---|
| 1 | 2 | 3 | ||||
| 4 | 5 | 6 | 7 | 8 | 9 | 10 |
| 11 | 12 | 13 | 14 | 15 | 16 | 17 |
| 18 | 19 | 20 | 21 | 22 | 23 | 24 |
| 25 | 26 | 27 | 28 | 29 | 30 | 31 |
