티스토리 뷰
목차
현대 사회에서 건물 디자인은 단순한 외관을 넘어서, 기업의 이미지를 형성하는 중요한 요소로 자리잡고 있습니다.
특히, 사옥은 그 기업의 정체성과 가치를 반영하는 공간으로, 효율성과 아름다움을 동시에 갖춘 인테리어가 필수적이에요.
빌딩인테리어 회사의 사옥 공사는 이러한 요구를 충족시키기 위해 다양한 디자인 요소와 혁신적인 접근을 통해 이루어져야 합니다.
오늘은 빌딩인테리어 건물디자인 회사 사옥 공사의 포트폴리오를 통해 회사들이 어떻게 독창적인 디자인을 통해 사옥을 완성하는지를 살펴보겠습니다.
빌딩인테리어 디자인컨셉의 중요성




빌딩인테리어 사옥 디자인에서 가장 중요한 요소 중 하나는 바로 디자인 컨셉입니다.
각 기업의 비전과 미션에 맞춘 디자인 컨셉이 필요하죠. 이번 빌딩인테리어 건물디자인은 현대적이고 혁신적인 이미지를 강조할 수 있는 디자인으로 연출하였습니다.





디자인 컨셉이 정해진 후에는 이를 기반으로 공간 배치, 색상, 재료 선택 등이 이루어집니다.
이 과정에서 건축가와 디자이너는 고객과의 긴밀한 소통을 통해 최적의 결과물을 도출해냅니다. 각 요소가 어떻게 조화를 이루는지가 사옥 전체의 분위기를 결정짓기 때문에, 이 단계는 정말 중요하답니다.





효율적인 공간 활용도 사옥 디자인에서 빼놓을 수 없는 요소 중 하나입니다.
현대의 사무실 환경은 단순히 책상과 의자만 있는 것이 아니라, 다양한 형태의 협업 공간과 휴식 공간이 필요한데요. 이를 위해서는 직원들의 업무 패턴과 요구를 면밀히 분석해야 합니다.






지속 가능성은 현대 건축 디자인에서 중요한 트렌드로 자리잡고 있습니다. 에너지 효율적인 시스템을 도입하고, 재활용이 가능한 재료를 사용하는 것이 그 예죠. 이러한 요소들은 단순히 환경을 보호하는 것뿐만 아니라, 기업의 이미지에도 긍정적인 영향을 미칩니다. 이러한 요소들을 충분히 반영하여 빌딩인테리어 디자인을 최종 완성하였습니다.
빌딩인테리어 사옥 공사 진행




빌딩인테리어 사옥 공사 진행 과정을 자세하게 살펴보겠습니다.
기초 공사는 건물의 안정성을 좌우하는 매우 중요한 과정입니다. 이 단계에서는 기초를 세우는 작업이 이루어지는데요.
기초가 튼튼해야 이후의 구조물도 안전하게 세울수 있으니까요.



기초 공사가 완료되면 본격적으로 구조물 시공에 들어갑니다. 벽체, 지붕, 바닥 등을 세우는작업이 진행되는데요.
이 과정에서도 안전과 품질이 최우선으로 고려되어야 합니다.


구조물이 완공되면, 이제 인테리어 공사로 넘어가게 됩니다. 이 단계에서는 내부 공간을 어떻게 활용할지에 대한
세부적인 계획이 필요합니다. 색상, 재질, 가구 배치 등을 고려하여 최적의 공간을 만들어야 하죠.


공사가 완료되면 마지막으로 최종 점검을 진행해야 합니다. 이 과저에서는 모든 시설이 제대로 작동하는지, 안전 기준을 충족하는지 등을 확인하고 최종 점검 후 공사를 마무리합니다.
빌딩인테리어 건물디자인 완공 모습

이번 프로젝트는 5층 규모의 빌딩인테리어 회사 사옥 공사로, 각 층별로 다양한 기능과 디자인 컨셉을 적용해 완성된 공간입니다. 사무공간, 회의실, 대표실, 이사실, 로비, 휴게실, 강의실 등을 포함해 회사 업무 효율성과 임직원 복지, 그리고 방문객에게 신뢰를 줄 수 있는 고급스러운 분위기를 구현했습니다.





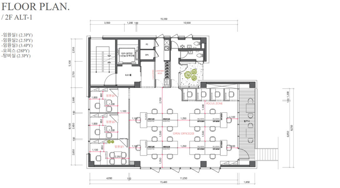
먼저 2층은 메인 사무공간과 회의실이 배치된 층으로, 깔끔하고 넓은 오픈형 사무실로 구성하였습니다.
화이트 톤 바탕에 조명으로 세련된 분위기를 연출했으며, 효율적인 업무 동선을 고려해 책상 배치와 수납 공간도 적절하게 구성했습니다.







각 직원의 개인 공간은 낮은 파티션으로 구분하여 집중도를 높이면서도 동료들과의 소통이 자연스럽게 이뤄질 수 있도록 설계하였으며, 창가 쪽은 대형 유리창으로 자연광이 들어오는 구조로 업무 환경을 최대한 살려주었습니다.



조명은 주 백색 간접조명과 라인등을 적절하게 배치해 눈부심을 줄이면서도 충분한 밝기를 확보했으며, 사무공간외의 공간은 유리가벽을 활용하여 개방감 있게 연출하였습니다.






빌딩인테리어 회사 사옥의 다른 층도 살펴보겠습니다.
이번 층은 주요 미팅룸과 라운지가 마련된 층입니다.




먼저 소회의실을 살펴보겠습니다. 유리 가벽으로 시각적 개방감있게 표현하였습니다. 테이블은 4인용 원목 테이블로 고급스럽고 안정감 있는 분위기를 조성했으며, 벽면은 TV 모니터를 설치해 회의와 발표가 원활하게 진행될 수 있도록 했습니다.





다음은 컨퍼런스룸입니다. 이 공간은 12인용 대형 테이블과 대형 스크린, 빔프로젝터를 설치하여 외부 고객과의 중요한 미팅이나 발표, 세미나 등을 진행할 수 있도록 구성하였습니다.



대표실은 우드 톤 가구와 포근한 색감을 배치하여 편안하면서도 중후한 분위기를 조성하였습니다.
개인 업무공간 외에 작은 미팅 테이블과 책장, 아트월을 설치해 업무와 휴식을 동시에 고려한 공간으로 완성했습니다.



휴게공간은 직원들이 자유롭게 쉴 수 있는 공간으로, 우드 색상으로 연출하고 자연광이 가득 들어오는 창가 공간에는 바 테이블과 스툴을 배치해 아늑한 분위기를 연출하였습니다. 간단한 커피와 음료를 즐길 수 있는 미니 키친 공간도 마련하여 복지 기능을 강화했습니다.


교육장은 20인 이상 수용 가능한 공간으로, 책상과 의자를 강의장 형태로 배치하고 빔프로젝터를 설치하였습니다.
천장에는 라인 조명으로 공간을 좀 더 세려되게 연출해 주었답니다.







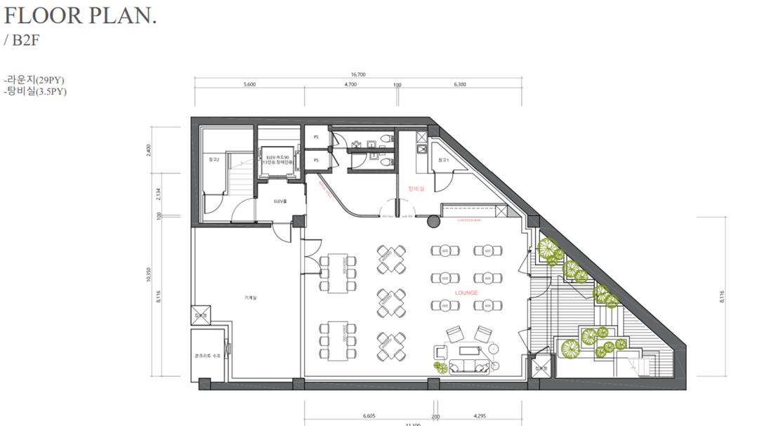
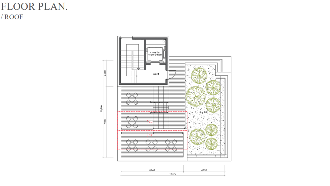
빌딩인테리어 사옥 디자인의 5층은 사옥의 가장 상층부로, 대표이사 전용 공간과 라운지가 함께 구성되어 있습니다.
라운지 공간은 회의 전후 간단한 티타임이나 대기 공간으로 활용할 수 있도록 꾸며진 공간으로 사옥인테리어에서 빼 놓을 수 없는 공간입니다.


이번 빌딩인테리어 건물디자인 사옥 인테리어 프로젝트는 각 층별 기능에 최적화된 공간 배치와 세련된 디자인을 통해 업무 효율성과 임직원의 만족도를 모두 충족시킨 완성도 높은 사례입니다.
완공된 공간의 모습을 사진으로 직접 확인해보시면 더욱 만족스러운 결과를 느끼실 수 있습니다.
빌딩형 사옥 인테리어, 기업 사무실 인테리어를 고민 중이라면 이번 사례를 참고해보세요.
📞 공사 문의 📞
010-3235-8427
🔽 포트폴리오 더 보기 🔽
사무실인테리어 디자인 공사 비용견적 플랫폼 - 사무실인테리어 916
사무실인테리어 916
916er.com
2025.05.28 - [사무실인테리어] - 강동구인테리어업체 사무실 디자인 공사 실력을 아낌없이 보여드립니다
강동구인테리어업체 사무실 디자인 공사 실력을 아낌없이 보여드립니다
사업을 시작할 때 가장 중요한 것 중 하나가 바로 사무실 인테리어입니다. 사무실 인테리어는 회사의 이미지와 분위기를 결정하고, 직원들의 업무 효율성에도 영향을 미치기 때문입니다. 하지
dopamine7.com
2025.05.27 - [인테리어이야기] - 영등포인테리어업체 최신 트렌드 접목 사무실 디자인 연출 기법
영등포인테리어업체 최신 트렌드 접목 사무실 디자인 연출 기법
요즘 사무실 디자인은 직원들의 생산성과 창의성에 큰 영향을 미친다는 사실이 점점 더 주목받고 있습니다. 특히 최신 인테리어 트랜드를 반영한 사무실 디자인이 인기를 끌고 있는데요. 그중
dopamine7.com
2025.02.14 - [사무실인테리어] - 강남인테리어 직원들 만족도 높은 일하고 싶은 오피스 공간을 완성하다
강남인테리어 직원들 만족도 높은 일하고 싶은 오피스 공간을 완성하다
안녕하세요, 916디자인입니다. 많은 기업과 사무실들이 모여있는 '강남'아무래도 경쟁도 치열한 환경에서 오피스를 새로이 변신시키는 일이란 쉽지 않은데요. 기업의 브랜드 이미지와 직원의
dopamine7.com
'사무실인테리어' 카테고리의 다른 글
| 서초동인테리어 오피스공간의 패러다임의 변화 (1) | 2025.06.18 |
|---|---|
| 강서인테리어업체 감각적인 디자인의 소형 사무실 공간 연출 (2) | 2025.06.12 |
| 서초동인테리어 후기 좋은 오피스리모델링 전문시공 업체 실패 없이 찾는 방법 (0) | 2025.06.12 |
| 하남인테리어업체 직원들에게 환영받는 예쁘고 편리한 사무실 디자인 제안 (2) | 2025.06.04 |
| 강동구인테리어업체 사무실 디자인 공사 실력을 아낌없이 보여드립니다 (0) | 2025.05.28 |
| 은평구인테리어업체 추천 특색 있는 사무실 디자인을 원한다면 여기 (0) | 2025.05.28 |
| 의왕인테리어업체 전문가가 알려주는 소형 사무실 설계 시공 노하우 (0) | 2025.05.27 |
| 이천인테리어업체 사무실 디자인 구성부터 완공까지 한번에 해결 (0) | 2025.05.26 |
- Total
- Today
- Yesterday
- 인테리어
- 사무실인테리어전문
- 사무실인테리어공사
- 916디자인
- 3D사무실인테리어
- 헬스장인테리어
- 인천사무실인테리어
- 지식산업센터인테리어
- 사무실인테리어디자인
- 학원인테리어
- 사무실인테리어잘하는곳
- 사무실인테리어업체
- 사무실인테리어견적
- 미용실인테리어
- 사무실인테리어추천
- 회사인테리어
- 학원인테리어디자인
- 인테리어디자인
- 사무실인테리어후기
- 헤어샵인테리어
- interior
- 사무실인테리어비용
- 3D디자인
- 사무실디자인
- 사무실인테리어
- 피티샵인테리어
- 병원인테리어
- 상가인테리어
- 사무실리모델링
- 오피스인테리어
| 일 | 월 | 화 | 수 | 목 | 금 | 토 |
|---|---|---|---|---|---|---|
| 1 | 2 | 3 | 4 | 5 | 6 | 7 |
| 8 | 9 | 10 | 11 | 12 | 13 | 14 |
| 15 | 16 | 17 | 18 | 19 | 20 | 21 |
| 22 | 23 | 24 | 25 | 26 | 27 | 28 |
| 29 | 30 | 31 |
