티스토리 뷰
목차
안녕하세요 916디자인입니다. 최근 스타트업 , IT회사 등 다양한 회사들이 생겨 나면서 업무 공간의 중요성이
커지고 있습니다. 그 중에서도 사무실칸막이는 직원들의 업무 효율성과 프라이버시를 보호하는데 큰 역할을 하는데요.
과거에는 단순히 공간을 분리하는 용도로만 사용되었지만, 최근에는 디자인과 기능성을
모두 고려하여 제작되고 있습니다. 특히 유리 가벽은 세련된 느낌을 주면서도 공간을 넓어 보이게 하는 효과가 있어
많은 회사에서 선호하는 스타일 인데요. 이에 따라 저희도 회사의 오피스 공간에 유리 칸막이를 활용한
인테리어 시공을 진행하게 되었습니다. 과연 어떻게 바뀌었을지 지금부터 함께 살펴보시죠!








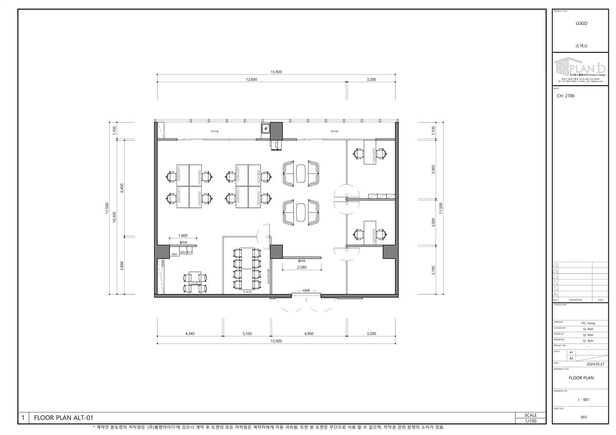
사무실칸막이 공간 재탄생의 시작, 가벽의 매력







회사 오피스 인테리어에서 최근 가장 인기 있는 아이템 중 하나는 유리 가벽입니다.
기존의 답답한 벽 대신 투명한 유리를 사용하여 공간을 나누면서도 개방감을 유지할 수 있어
많은 회사들이 선호하고 있습니다.






유리 가벽의 장점은 시각적으로 공간을 넓어 보이게 한다는 것입니다.
일반적인 벽과는 달리 유리를 통해 반대편 공간이 보이기 때문에 공간이 확장되어 보이는 효과가 있습니다.
이로 인해 사무실 내부 공간이 더욱 쾌적하고 넓어 보여 직원들의 업무 효율성을 높일 수 있습니다.







공간을 유연하게 활용할 수도 있습니다. 회의실이나 미팅룸처럼 일시적으로 사용하는 공간을 만들 때
별도의 공사 없이 유리 가벽을 이용하여 쉽게 만들 수 있습니다. 필요에 따라 이동하거나 제거할 수도 있어
공간 활용도가 높습니다.






사무실칸막이 현대적 사무공간 디자인의 기본






오피스 리모델링 프로젝트에서 유리 칸막이는 현대적이고 세련된 사무환경을
조성하기 위한 핵심 요소 중 하나로 자리 잡았습니다. 그 이유는 무엇일까요?
유리 칸막이는 공간을 시각적으로 연결하고 확장시키는 효과를 제공합니다.
이것은 작은 공간을 더 크게 보이게 하고, 넓은 공간에서는 영역을 구분하면서도
개방적인 느낌을 유지하는데 도움을 줍니다. 이러한 시각적 효과는 직원들 사이의 소통과 협업을 촉진하며,
활기찬 업무 환경을 조성 하는데 기여합니다.







사무실칸막이 유리 가벽 선택시 고려해야 할 핵심 요소
회사의 특정 요구 사항과 공간 디자인 목표에 따라 적합한 유리 가벽을 선택하는 것이 중요합니다.
먼저 유리의 투명도는 공간의 개방감과 프라이버시 수준을 결정하는 중요한 요소입니다.
완전 투명 유리부터 반투명 또는 불투명 유리까지 다양한 옵션을 고려하여
공간의 성격과 목적에 맞게 투명도를 선택하세요.






유리의 두께는 강도와 안전성에 영향을 미칩니다.
두꺼운 유리는 더 강한 구조를 제공하지만 무게와 비용도 증가합니다.
공간의 크기, 사용 목적 및 예산을 고려하여 적절한 두께를 선택하세요.






유리 표면에 다양한 마감 처리를 적용하여 외관과 성능을 향상시킬 수 있습니다.
반사 방지 코팅은 눈부심을 줄이고 열 차단 필름은 태양열을 감소시킵니다.
청소 및 유지 관리의 용이성도 고려해야 합니다.






유리 가벽을 활용한 사무실 공사는 공간을 재구성하고 업무 환경을 개선하는 데 탁월한 선택입니다.






이번 현장에서는 유리 가벽을 활용하여 사무실칸막이를 설치함으로써 깔끔하고 세련된 분위기를 연출하면서도
공간을 효율적으로 활용할 수 있도록 하였습니다.






또한 투명도와 색상을 조절하여 프라이버시 보호와 개방감을 동시에 충족시킬 수 있었습니다.
만약 회사 오피스 공간의 리모델링이나 인테리어를 고민하고 계시다면, 유리 칸막이를 활용해보시는건 어떠실까요?
보다 쾌적하고 스마트한 업무 공간을 조성하실 수 있을 것입니다.



☎시공문의
010-3235-8427
▼포트폴리오 더 보기▼
사무실인테리어 디자인 공사 비용견적 플랫폼 - 사무실인테리어 916
사무실인테리어 916
916er.com
2024.12.10 - [사무실인테리어] - 래핑칸막이 인테리어 공사 가성비 있게 시공한 사무실 현장을 소개드립니다
래핑칸막이 인테리어 공사 가성비 있게 시공한 사무실 현장을 소개드립니다
안녕하세요 구일육디자인입니다. 최근들어 소규모 사업장 창업이 많아지고 있는데요. 그에 따라 공간을 분리하기 위해 칸막이 공사를 진행하는 경우가 많습니다. 다양한 종류의
dopamine7.com
2024.12.09 - [사무실인테리어] - 회사 사무실 원상복구공사 인테리어 철거 폐기물 견적시공 대한 모든것
회사 사무실 원상복구공사 인테리어 철거 폐기물 견적시공 대한 모든것
회사 사무실의 인테리어는 단순히 외관을 아름답게 하는 것에 그치지 않습니다.업무 환경은 직원들의 생산성과 직결되기 때문에, 그 중요성은 더욱 커지죠. 때로는 사무실을 이전하거나 리모
dopamine7.com
2024.12.09 - [사무실인테리어] - 별내 남양주인테리어 업체를 포트폴리오를 보고 결정하세요
별내 남양주인테리어 업체를 포트폴리오를 보고 결정하세요
별내 남양주인테리어 업체 선정의 중요성 최근 몇년간 상업공간 주거 공간 할것 없이 사무실인테리어 또한 많은 변화가 있었습니다.다양한 업종 만큼이나 디자인 컨셉트와 시공 방법또한 다
dopamine7.com
2024.12.05 - [사무실인테리어] - 소형사무실인테리어 비용 절감 합리적인 가격 오피스 시공 업체 추천
소형사무실인테리어 비용 절감 합리적인 가격 오피스 시공 업체 추천
소형사무실인테리어는 그 규모가 작기 때문에 예산 관리가 중요해요. 특히 비용 절감을 원한다면, 어떻게 하면 효과적으로 인테리어를 진행할 수 있을까 궁금할 텐데요.직장인들이 하루의 대
dopamine7.com
2024.12.05 - [사무실인테리어] - 인테리어칸막이 사무실 공간 효율을 높인 유리가벽 시공 사례
인테리어칸막이 사무실 공간 효율을 높인 유리가벽 시공 사례
인테리어칸막이 사무실 공간 혁신 최근 업무 공간의 중요성이 강조되면서 사무실인테리어에 대한 관심도 높아지고 있는데요.그 중에서도 공간을 효율적으로 분리할 수 있는 인테리어칸막이가
dopamine7.com
'사무실인테리어' 카테고리의 다른 글
| 구리인테리어비용 블랙 포인트로 완성한 모던한 사무실 디자인 (0) | 2024.12.13 |
|---|---|
| 사무실인테리어업체 기업의 특성을 살려내는 오피스 리모델링 (1) | 2024.12.12 |
| 30평사무실인테리어 내집같은 분위기의 아늑한 사무공간 연출 디자인 (1) | 2024.12.10 |
| 인테리어칸막이 공사 유리가벽 공간활용이 돋보이는 법률사무소 시공사례 (0) | 2024.12.10 |
| 래핑칸막이 인테리어 공사 가성비 있게 시공한 사무실 현장을 소개드립니다 (0) | 2024.12.10 |
| 회사 사무실 원상복구 공사 인테리어 철거 폐기물 견적시공 대한 모든것 (0) | 2024.12.09 |
| 별내 남양주인테리어 업체를 포트폴리오를 보고 결정하세요 (1) | 2024.12.09 |
| 송파리모델링 사무실 공사 70평 오피스 완벽 변신 포트폴리오 (1) | 2024.12.05 |
- Total
- Today
- Yesterday
- 사무실인테리어잘하는곳
- 3D디자인
- 사무실인테리어전문
- 사무실리모델링
- 지식산업센터인테리어
- 사무실인테리어디자인
- 오피스인테리어
- 사무실인테리어추천
- 회사인테리어
- 병원인테리어
- 상가인테리어
- 학원인테리어디자인
- 916디자인
- 사무실인테리어업체
- 미용실인테리어
- 인테리어
- 피티샵인테리어
- 사무실인테리어후기
- 3D사무실인테리어
- 사무실인테리어공사
- 헬스장인테리어
- interior
- 학원인테리어
- 사무실인테리어
- 인천사무실인테리어
- 사무실인테리어견적
- 사무실인테리어비용
- 헤어샵인테리어
- 인테리어디자인
- 사무실디자인
| 일 | 월 | 화 | 수 | 목 | 금 | 토 |
|---|---|---|---|---|---|---|
| 1 | ||||||
| 2 | 3 | 4 | 5 | 6 | 7 | 8 |
| 9 | 10 | 11 | 12 | 13 | 14 | 15 |
| 16 | 17 | 18 | 19 | 20 | 21 | 22 |
| 23 | 24 | 25 | 26 | 27 | 28 | 29 |
| 30 |






