티스토리 뷰
목차
최근 디저트가게의 인테리어 디자인이 눈길을 끌고 있는 가운데 특히 상암상가는 다양한 소규모 점포가 모여 있는 특색 있는 공간으로 주목받고 있습니다.
이곳에서 구움과자점을 오픈할 계획이 있는 분이라면 독특하면서도 편안한 분위기를 자아낼 수 있는 인테리어가 필요할텐데요.
화이트와 우드 컬러를 조합한 작은 디저트가게 인테리어 컨셉은 그 자체로 따뜻함과 깔끔함을 동시에 선사하며 고객들에게는 아늑하고 포근한 느낌을 줄 수 있고 제품에 집중할 수 있게 도와주는 효과도 있답니다.
특히나 작은 평수의 상암상가인테리어의 경우 공간을 알차게 사용하는 것이 중요하기 때문에 이러한 컬러 조합 역시 필수적이죠.
오늘은 구일육디자인이 시공한 상암상가인테리어 사례를 통해 작은 디저트가게를 어떻게 디자인하면 좋을지 컨셉 아이디어를 제안하겠습니다!
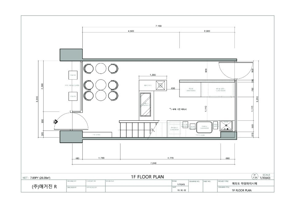
상암상가인테리어 고객 경험을 고려한 배치


작은 규모의 디저트가게에서는 공간 활용이 특히 중요합니다.
화이트와 우드 컨셉이 적용된 서빙대와 진열장은 고객의 시선을 끌기에도 좋고 시각적인 편안함을 줄 수 있는데요.
벽면에는 맞춤 선반을 설치하여 다양한 구움과자를 진영할 수 있도록 하여 공간의 활용도를 높여보았습니다.
또 자주 사용하는 제품을 손에 닿기 좋은 위치에 배치하고 덜 사용하는 제품은 상단에 둘 수 있도록 했답니다.

화이트 우드 컨셉은 자연의 따뜻함을 느끼게 해주며 고객들에게 안정감을 줍니다.
밝은 화이트 컬러는 공간을 더욱 넓고 환하게 만들어 주고 우드 느낌이 더해지면 보다 따뜻한 분위기를 연출할 수 있어요.
특히 실내 조명이 간접조명 방식으로 배치될 경우 나무의 결이 더욱 부각되고 부드러운 그림자가 만들어져 아늑한 느낌을 줍니다.


이러한 디자인은 특히 구움과자와 잘 어울리는데요.
구움과자는 자연 재료를 함유한 소박한 간식으로 화이트 우드의 청순함과 조화를 이루며 제품 본연의 매력을 더욱 부각시켜 줍니다.
자연 소재를 사용한 식기나 디스플레이도 이러한 컨셉과 잘 어울리니 좋은 방법이라 할 수 있습니다.



내부에는 앉을 공간도 적절히 배치해야 합니다.
테이블과 의자를 적당한 높이로 맞추고 두세 개의 테이블로 소규모 그룹을 수용할 수 있게 디자인하여 고객들이 편안하게 앉아 제품을 즐길 수 있도록 했는데요.
자연스럽게 사람들끼리 이야기를 나누는 분위기를 조성하는 것도 중요하답니다.
상암상가인테리어 편안함을 고려한 디자인


디저트가게는 사람들의 휴식 공간이기도 합니다.
따라서 고객의 편안함을 고려한 인테리어를 구축할 수 있도록 설계했는데요.
화이트 우드 컨셉으로 벽면과 바닥에 나무 소재를 적극 활용함으로써 포근한 느낌을 제공할 수 있도록 했습니다.
또한 편안한 의자를 배치하고 내부 온도를 적절히 조절하여 고객들이 쾌적하게 느낄 수 있도록 했습니다.




디자인 소품들도 중요한데요.
식물이나 장식품을 활용해 따뜻한 느낌을 더해 더욱 매력적인 공간이 될 수 있도록 했습니다.
테이블 위 등 내외부에 화분을 두거나 벽면에 식물 장식을 추가하는 것만으로도 분위기가 확 달라질 수 있답니다.


이 외에도 색채와 조명이 잘 어우러질 수 있도록 제품을 선택하여 설치했습니다.
또한 독특한 소품과 장식을 조화롭게 구성해 보았는데요.
이로써 고객들의 흥미를 유도함과 동시에 화이트 우드 컨셉과 잘 어울릴 수 있도록 했답니다.
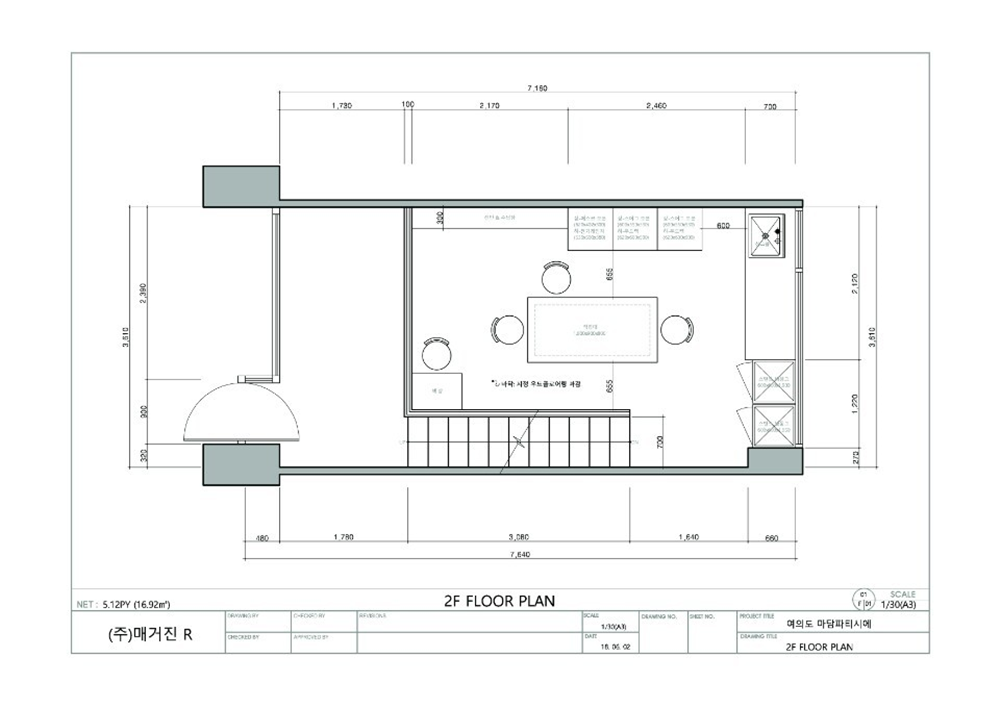
상암상가인테리어 소품 활용의 중요성

디저트가게는 계절마다 다른 분위기를 연출할 수 있는 기회가 많습니다.
따라서 이를 잘 활용하여 상가인테리어를 계획하는 것이 좋은데요.
이번에 시공을 진행한 작은 디저트가게 역시 계절마다 조금씩 다른 분위기를 연출할 수 있도록 디자인해 드렸습니다.
겨울에는 따뜻한 겨울 소품을 활용하고 여름철에는 시원한 느낌의 조명과 소품 등을 활용해 분위기를 전활할 수 있도록 했는데요.
화이트와 우드는 어느 계절에도 잘 어울리지만 계절에 맞춘 소품을 활용하면 고객들에게 신선한 느낌을 줄 수 있습니다.



화이트 우드 색 조합 외에도 소품을 활용해 다양한 컬러를 활용할 수 있습니다.
이러한 디테일을 더하게 되면 생동감 넘치는 공간을 만들 수 있는데요.
차분한 파스텔 톤의 액세서리나 식물로 포인트를 주면 공간은 한층 더 밝고 따뜻한 인상을 줄 수 있답니다.
그린 색상은 자연의 느낌을 더해주고 노란색은 명랑한 분위기를 만들어 줍니다.
이처럼 다채로운 인테리어에 변화를 주면 고객들에게 색다른 경험을 선사하고 이곳이 단순히 맛있는 디저트를 파는 곳이 아닌 하나의 문화 공간으로 자리 잡을 수 있도록 도와줍니다.


구움과자의 매력을 직접 느낄 수 있도록 오픈 키친을 채택했습니다.
오픈 키친은 고객의 흥미를 유발할 수 있는 좋은 방법인데요.
조리 과정이 보일수록 고객은 제품에 대한 신뢰를 느낄 수 있게 되는 것이죠.
윤기가 흐르는 구움과자를 직접 만들고 있는 모습을 볼 수 있다면 더욱 신뢰하며 디저트를 구매하게 되겠죠.

구움과자는 혼자서도 혹은 친구와 함께 나누어 먹을 수 있는 좋은 선택이기 때문에 편안한 좌석 배치가 중요합니다.
아늑한 느낌을 주기 위해 여러 종류의 좌석을 조화롭게 배치하는 것도 좋죠.
미니멀한 빈티지 의자와 작은 테이블을 활용해 공간을 세분화하면 각기 다른 그룹의 고객들이 개인적인 느낌을 유지할 수 있답니다.
또한 장시간 앉아 있을 수 있도록 편안한 소파 자리를 마련하는 것도 매력적입니다.

좌석 배치 시에는 시야를 고려해야 합니다.
디저트가 잘 보일 수 있도록 각 좌석에서 진열대 및 카운터를 쉽게 볼 수 있도록 구성하면 더욱 효과적인데요.
고객이 친구와 함께 앉아서 구움과자를 나누는 모습은 가게의 분위기를 한층 더 즐겁게 만들어 준답니다.


디저트가게를 한층 더 특별하게 만들기 위해서는 소품 활용이 무엇보다 중요하다고 언급했는데요.
아기자기한 식기나 진열대에 배치할 수 있는 소품들은 고객의 시선을 사로잡는 효과를 주죠.
특히 구움과자와 어울리는 다양한 컬러와 디자인의 컵이나 접시는 고객이 눈을 한 번 더 돌리게 만드는 매력을 가지기도 합니다.
소품은 단순히 장식뿐만 아니라 이야기를 담을 수도 있답니다.
개성 있는 소품을 선택하면 가게의 컨셉에 맞춰 독특한 분위기를 창출할 수 있습니다.
고객은 이러한 세시함 배치에 감동을 받으며 다시 찾고 싶어질 것입니다.


작은 디저트가게에서는 고객들이 편안하게 담소를 나눌 수 있는 좌석 배치가 중요하다고 했는데요.
화이트 우드 컬러의 의자와 테이블을 조합하여 공간의 일체감을 높이는 것이 필요하며 좌석은 고객의 편안함을 고려하여 부드러운 쿠션을 더하거나 적절한 간격으로 배치하는 것이 좋습니다.
또한 개별적인 테이블 구성을 통해 고객들이 사생활을 존중받는 느낌을 주도록 해야 합니다.
이로 인해 자연스런 대화가 이루어지고 고객들이 더 오랫동안 시간을 보내고 싶어 하겠죠.

상가인테리어에서 조명은 단순히 밝기를 높이는 것이 아니라 분위기를 결정짓는 중요한 요소입니다.
화이트 우드 컨셉을 살리기 위해서는 따뜻한 톤의 조명을 사용하는 것이 좋습니다.
간접조명과 매입조명을 조합해 사용할 경우 벽면과 선반이 부드럽게 비춰져 더욱 아늑한 느낌을 줍니다.



작은 디저트가게에서는 소품과 장식은 공간의 개성을 살리는 데 큰 역할을 합니다.
구움과자점의 주제를 살려 디저트와 관련된 소품을 적절하게 배치한다면 고객들의 흥미를 유도할 수 있는데요.
반짝이는 유리병이나 나무로 만든 디스플레이 등 화이트 우드 컨셉의 자연스러움과 잘 어울릴 수 있도록 소품과 장식을 더하여 마무리했습니다.
작은 디저트가게를 화이트 우드 컨셉으로 디자인한 상암상가인테리어 시공 사례를 잘 보셨나요?
고객에게 따뜻함과 안정감을 제공할 뿐만 아니라 상품인 구움과자와의 조화로운 조합을 통해 매력적인 구움과자점을 만들어 보았는데요.
이로써 상가인테리어는 단순히 공간을 아름답게 만드는 것이 아니라 그 자체로 고객의 마음을 사로잡는 매개체가 된다는 것을 알 수 있었을 것입니다.
결국 고객이 다시 찾고 싶어하는 공간으로 만들기 위해서는 디자인에 대한 고민이 필요합니다.
아름답고 따뜻한 공간을 통해 고객과의 유대가 형성되고 지속적인 사랑을 받을 수 있도록 구일육디자인이 돕겠습니다.
☎ 공사문의 ☎
010 -3235- 8427
▼ 포트폴리오 더보기 ▼
https://916er.com/
사무실인테리어 디자인 공사 비용견적 플랫폼 - 사무실인테리어 916
사무실인테리어 916
916er.com
2025.05.29 - [스시집 초밥집 이자카야인테리어] - 강서상가인테리어 현대적이고 깔끔한 분위기의 개인 카페 개업 디자인
강서상가인테리어 현대적이고 깔끔한 분위기의 개인 카페 개업 디자인
최근 개별적인 취향을 반영한 개인 카페 디자인이 인기를 끌고 있어요. 대중적인 카페들이 점점 포화 상태에 이르면서 사람들은 자신만의 스타일로 꾸며진 개인 카페를 찾으려는 경향이 강해지
dopamine7.com
2025.05.21 - [스시집 초밥집 이자카야인테리어] - 성수상가인테리어 개인 로스팅 로스터리카페 소품으로 특색있는 디자인 시공하기
성수상가인테리어 개인 로스팅 로스터리카페 소품으로 특색있는 디자인 시공하기
요즘 카페는 음료를 제공하는 공간 이상의 의미를 지니고 있습니다. 특히 성수동의 로스터리 카페들은 개성과 독특함을 더욱 부각시키고 있는데요. 성수상가는 그 자체로도 매력이 넘치는 곳인
dopamine7.com
2025.05.22 - [스시집 초밥집 이자카야인테리어] - 문정동상가인테리어 소형 베이커리 매장 창업 준비중이라면 도움되는 디자인 지식
문정동상가인테리어 소형 베이커리 매장 창업 준비중이라면 도움되는 디자인 지식
최근 개인 소형 베이커리가 많은 이들의 사랑을 받고 있습니다. 빵과 디저트를 손쉽게 테이크아웃 할 수 있는 매장이 많이면서 각자의 독특한 매력을 발산하면서 소비자들에게 선택받고 있죠.
dopamine7.com
2025.04.15 - [스시집 초밥집 이자카야인테리어] - 마포상가인테리어 고급스러운 디자인의 일식집 시공기
마포상가인테리어 고급스러운 디자인의 일식집 시공기
마포 지역은 다양한 음식점과 카페가 밀집해 있는 핫플레이스죠.그 중에서도 일식집은 특히 고급스러운 분위기와 정갈한 메뉴로 사람들의 사랑을 받고 있는데요. 오늘은 마포상가인테리어를
dopamine7.com
'스시집 초밥집 이자카야인테리어' 카테고리의 다른 글
| 소형카페인테리어비용 가성비와 디자인 모두 잡은 카페 창업 시공 (0) | 2025.10.30 |
|---|---|
| 작은식당인테리어 비용과 좁은 평수 넓어보이게 만드는 상가 디자인 비법을 알려드려요 (10) | 2025.08.13 |
| 노후 오래된 단독주택리모델링 단열공사 중요한 이유 (3) | 2025.07.31 |
| 평택상가인테리어 일본 특유의 감성을 살린 젠스타일 일식 스시바 디자인 시공기 (4) | 2025.07.03 |
| 강서상가인테리어 현대적이고 깔끔한 분위기의 개인 카페 개업 디자인 (0) | 2025.05.29 |
| 문정동상가인테리어 소형 베이커리 매장 창업 준비중이라면 도움되는 디자인 지식 (0) | 2025.05.22 |
| 성수상가인테리어 개인 로스팅 로스터리카페 소품으로 특색있는 디자인 시공하기 (0) | 2025.05.21 |
| 개포동상가인테리어 우드를 접목한 이색적인 스시집 분위기 연출 (0) | 2025.05.15 |
- Total
- Today
- Yesterday
- 사무실디자인
- 사무실리모델링
- 지식산업센터인테리어
- 사무실인테리어비용
- 인천사무실인테리어
- 학원인테리어디자인
- 3D디자인
- 사무실인테리어견적
- 인테리어디자인
- 헬스장인테리어
- 3D사무실인테리어
- 미용실인테리어
- 헤어샵인테리어
- 사무실인테리어
- 회사인테리어
- 피티샵인테리어
- 사무실인테리어디자인
- 오피스인테리어
- 인테리어
- 사무실인테리어후기
- 병원인테리어
- 사무실인테리어업체
- 사무실인테리어전문
- 상가인테리어
- 916디자인
- 사무실인테리어공사
- 사무실인테리어추천
- 사무실인테리어잘하는곳
- 학원인테리어
- interior
| 일 | 월 | 화 | 수 | 목 | 금 | 토 |
|---|---|---|---|---|---|---|
| 1 | 2 | 3 | 4 | 5 | 6 | |
| 7 | 8 | 9 | 10 | 11 | 12 | 13 |
| 14 | 15 | 16 | 17 | 18 | 19 | 20 |
| 21 | 22 | 23 | 24 | 25 | 26 | 27 |
| 28 | 29 | 30 | 31 |

