티스토리 뷰
목차
서울사무실인테리어 최신 트렌드 블랙 앤 화이트 디자인의 등장





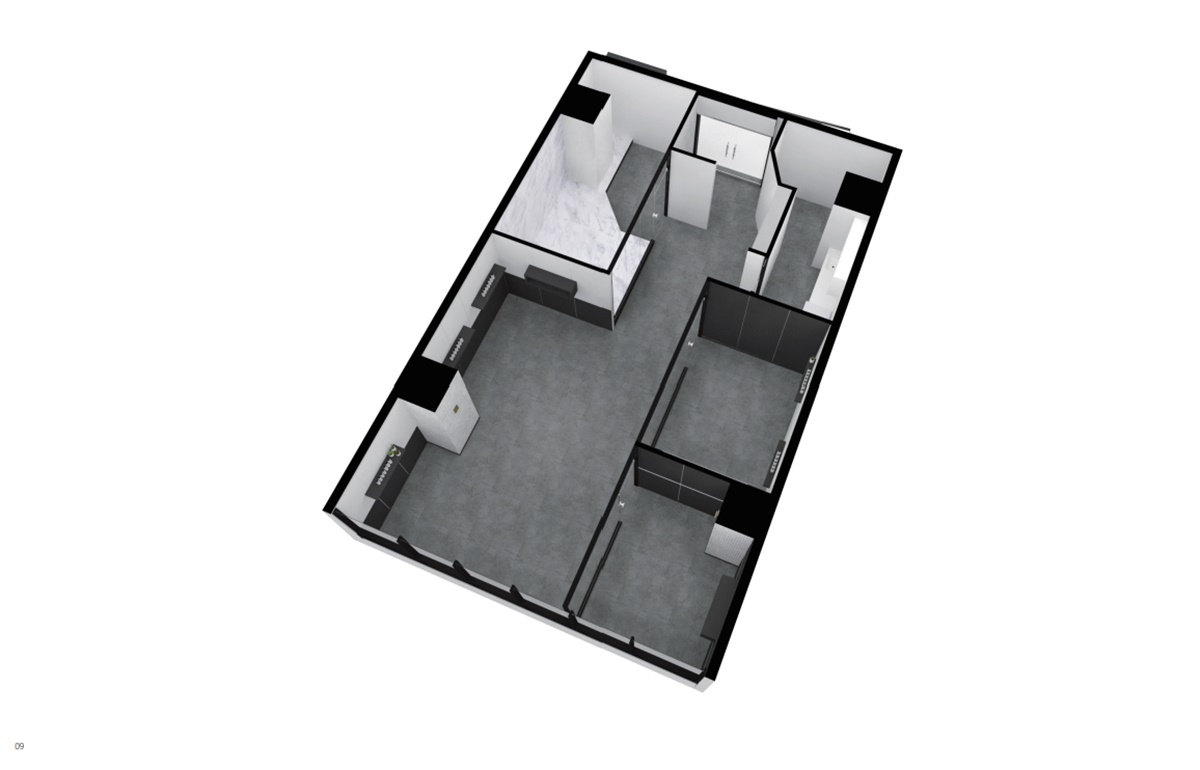
최근 서울사무실인테리어 분야에서는 블랙 앤 화이트 컬러를 중심으로 한 세련된 디자인이 인기를 끌고 있습니다.
이러한 트렌드는 현대적이고 미니멀한 분위기를 선호하는 기업들 사이에서 특히 주목받고 있습니다.





블랙 앤 화이트 디자인은 깔끔하고 세련된 느낌을 주며, 공간을 넓어 보이게 하는 효과가 있습니다.
또한, 다양한 스타일과 조화롭게 어울리며, 쉽게 질리지 않는 장점이 있습니다. 소재와 조명을 활용하여 따뜻하고
아늑한 분위기를 연출할 수도 있습니다.






이러한 디자인은 업무 효율성을 높이는 데에도 큰 역할을 합니다. 블랙 앤 화이트 컬러는 집중력을 높여주며,
스트레스를 완화하는 효과가 있는 것으로 알려져 있습니다. 불필요한 장식을 최소화하여
공간을 효율적으로 활용할 수 있으며, 가구와 소품을 자유롭게 배치할 수 있어 창의적인 아이디어를 자극합니다.







기업의 이미지를 강화하는 데에도 큰 역할을 합니다. 세련되고 고급스러운 분위기를 연출하여 고객들에게
신뢰감을 줄 수 있으며, 직원들의 자부심을 높이는 데에도 도움이 됩니다.







단점으로는 다소 단조롭고 차가워 보일 수 있다는 점인데, 이를 보완하기 위해서는 적절한 소재와 조명을 선택하고,
식물이나 그림 등을 활용하여 포인트를 주는 것이 좋습니다.







서울사무실인테리어 블랙 앤 화이트 디자인을 선택해야 하는 이유






다양한 디자인 스타일 중에서도 블랙 앤 화이트는 시대를 초월한 세련된 디자인으로 인기가 높습니다.
아래는 블랙 앤 화이트 디자인을 선택해야 하는 이유입니다.
* 심플하고 세련된 분위기: 블랙과 화이트는 서로 대비되는 색상으로, 심플하고 세련된 분위기를 연출하는데
적합합니다. 깔끔하고 모던한 느낌을 주기 때문에, 쇼룸 스튜디오 사무실에 적합한 디자인이라고 할 수 있습니다.






* 다양한 조합 가능: 두 가지 색상만 사용하기 때문에, 다양한 조합이 가능합니다.
블랙 바탕에 화이트 포인트를 주거나, 화이트 바탕에 블랙 포인트를 주는 등 다양한 방식으로 조합할 수 있습니다.






* 관리 용이: 먼지나 오염이 쉽게 눈에 띄지 않기 때문에, 관리가 용이합니다.
청소나 유지보수가 간편하기 때문에, 업무 효율성을 높일 수 있습니다.






* 다양한 인테리어 소품과 조화: 대부분의 인테리어 소품과 조화롭게 어울리기 때문에, 다양한 스타일링이 가능합니다.
그림, 사진, 조명 등을 활용하여 개성 있는 공간을 연출할 수 있습니다.






서울사무실인테리어 색상 대비를 활용한 공간의 시각적 확장 전략






블랙 앤 화이트 컬러 팔레트로 서울사무실인테리어를 계획할 때, 색상 대비를 활용하여 공간을 넓어 보이게 만들 수
있습니다. 몇 가지 주요 전략은 다음과 같습니다.






* 명도 차이 이용: 밝은 화이트 벽과 천장, 어두운 블랙 가구와 바닥재를 결합하여 명도 차이를 만듭니다.
이렇게 하면 빛이 반사되어 공간이 밝고 넓게 느껴질 수 있습니다.






* 크기 대조: 작은 블랙 아이템들을 큰 화이트 영역 주변에 배치하여 크기 대조를 만듭니다.
이로 인해 시선이 중앙에 집중되고 공간이 균형 있게 느껴집니다.






* 패턴과 질감 추가: 블랙 패턴 또는 질감을 화이트 배경에 더하면 흥미로운 시각적 상호 작용이 일어나며 깊이와
부피감이 생깁니다. 단, 과도한 패턴이나 질감은 혼란스러울 수 있으므로 주의해야 합니다.
이러한 전략을 구현하면 쇼룸 스튜디오 사무실 내부가 실제보다 더 크고 개방적으로 보이는 세련된
블랙 앤 화이트 디자인을 완성할 수 있습니다.





☎시공 문의
010-3235-8427
▼포트폴리오 더 보기 ▼
사무실인테리어 디자인 공사 비용견적 플랫폼 - 사무실인테리어 916
사무실인테리어 916
916er.com
2025.02.05 - [사무실인테리어] - 군포인테리어업체가 알려주는 모르면 후회할 오피스 디자인 한 끗 디테일
군포인테리어업체가 알려주는 모르면 후회할 오피스 디자인 한 끗 디테일
최근 기업들은 업무 환경 개선을 위해 다양한 시도를 하고 있습니다.그 중 가장 기본이 되는 것은 오피스인테리어라고 할 수 있는데요. 같은 규모와 예산이라도 어떻게 디자인하느냐에 따라 공
dopamine7.com
2025.02.05 - [사무실인테리어] - 과천인테리어업체 포인트 컬러 믹스로 문화공간 처럼 꾸며진 오피스 시공사례
과천인테리어업체 포인트 컬러 믹스로 문화공간 처럼 꾸며진 오피스 시공사례
안녕하세요, 916디자인입니다. 오늘 소개해드릴 오피스 시공사례는 포인트 컬러를 공간 곳곳에 매치하여한편의 문화공간 처럼 완성된 아주 멋진 사무실인테리어랍니다. 저희 916디자인 과천인
dopamine7.com
2025.02.04 - [사무실인테리어] - 사옥로비인테리어 회사의 첫 인상을 좌우하는 기업 사무실 포트폴리오
사옥로비인테리어 회사의 첫 인상을 좌우하는 기업 사무실 포트폴리오
사옥로비인테리어는 기업의 얼굴이라 할 수 있습니다.첫 인상이 중요하다는 말은 누구나 알고 있지만, 실제로 그 인상을 좌우하는 요소는 매우 다양하죠.특히, 기업의 사무실 포트폴리오는 그
dopamine7.com
2025.01.22 - [사무실인테리어] - 향동사무실인테리어 인기있는 오피스디자인을 완성하고 싶으시다면 이 글에 주목하세요
향동사무실인테리어 인기있는 오피스디자인을 완성하고 싶으시다면 이 글에 주목하세요
안녕하세요, 916디자인입니다. 오늘은 '향동사무실인테리어'의 포트폴리오를 준비해보았습니다. 향동은 최근 몇 년간 빠르게 발전하고 있는 지역으로, 많은 기업들이 이곳에 사무실
dopamine7.com
2025.01.17 - [사무실인테리어] - 사무실원상복구 철거 정리 후 트렌드를 반영한 오피스 디자인까지 완벽 시공 업체
사무실원상복구 철거 정리 후 트렌드를 반영한 오피스 디자인까지 완벽 시공 업체
여러 해에 걸쳐 오피스 디자인에 다양한 변화가 있는 만큼, 때로는 원상복구가 필요할 때도 많죠.사무실원상복구 인테리어란, 임대 계약 종료 등으로 인해 원래의 상태로 되돌리는 과정을 의미
dopamine7.com
'사무실인테리어' 카테고리의 다른 글
| 안성인테리어업체 기업이 직원과 함께 성장할 수 있는 사무실 디자인 제안해드릴게요 (1) | 2025.02.14 |
|---|---|
| 강남인테리어 직원들 만족도 높은 일하고 싶은 오피스 공간을 완성하다 (0) | 2025.02.14 |
| 역삼인테리어 세련된 디자인의 깔끔함이 돋보이는 회계법인 사무실 시공기 (0) | 2025.02.06 |
| 부산사무실인테리어 모던한 분위기로 완성한 오피스 리모델링 시공 현장 (1) | 2025.02.06 |
| 군포인테리어업체가 알려주는 모르면 후회할 오피스 디자인 한 끗 디테일 (0) | 2025.02.05 |
| 과천인테리어업체 포인트 컬러 믹스로 문화공간 처럼 꾸며진 오피스 시공사례 (0) | 2025.02.05 |
| 양재인테리어업체 여러분 기업의 경쟁력 있는 오피스를 원한다면 이렇게 진행해보면 어떨까요? (0) | 2025.02.05 |
| 사옥로비인테리어 회사의 첫 인상을 좌우하는 기업 사무실 포트폴리오 (0) | 2025.02.04 |
- Total
- Today
- Yesterday
- 사무실인테리어비용
- 사무실인테리어업체
- 3D사무실인테리어
- 사무실인테리어후기
- 사무실인테리어디자인
- 916디자인
- 헬스장인테리어
- 사무실인테리어추천
- 사무실인테리어견적
- 병원인테리어
- 피티샵인테리어
- 상가인테리어
- 사무실인테리어전문
- 헤어샵인테리어
- 인테리어디자인
- interior
- 사무실인테리어잘하는곳
- 사무실인테리어공사
- 오피스인테리어
- 인테리어
- 미용실인테리어
- 학원인테리어디자인
- 3D디자인
- 사무실리모델링
- 사무실인테리어
- 인천사무실인테리어
- 사무실디자인
- 회사인테리어
- 지식산업센터인테리어
- 학원인테리어
| 일 | 월 | 화 | 수 | 목 | 금 | 토 |
|---|---|---|---|---|---|---|
| 1 | 2 | 3 | ||||
| 4 | 5 | 6 | 7 | 8 | 9 | 10 |
| 11 | 12 | 13 | 14 | 15 | 16 | 17 |
| 18 | 19 | 20 | 21 | 22 | 23 | 24 |
| 25 | 26 | 27 | 28 | 29 | 30 | 31 |












