티스토리 뷰
목차
서초동은 서울에서 가장 번화한 지역 중 하나로,
다양한 의료 서비스와 인프라가 잘 갖춰져 있어 많은 사람들이 찾는 곳이에요.
이곳의 병원들은 단순히 치료를 제공하는 공간을 넘어,
환자와 보호자에게 편안함과 안정감을 주는 환경으로 변화하고 있습니다.
특히 병원 인테리어는 환자의 심리적 안정과 회복에 큰 영향을 미치기 때문에,
점점 더 많은 병원들이 인테리어 디자인에 신경을 쓰고 있죠.







서초동병원인테리어는 현대적이고 세련된 디자인을 통해 환자들에게 긍정적인 경험을 제공하고자 하는 노력을
보여주고 있습니다. 이번 글에서는 서초동병원인테리어의 중요성과 트렌드,
그리고 성공적인 사례들을 살펴보면서, 어떻게 하면 환자들에게 더 나은 환경을 제공할 수 있을지에 대해
이야기해보려고 합니다.
병원 인테리어는 단순한 장식이 아닌,
환자의 마음과 몸의 회복을 돕는 중요한 요소라는 점을 강조하고 싶어요.







서초동병원인테리어 기술과 디자인의 융합






현대의 병원 인테리어는 기술과 디자인의 융합이 중요한 요소로 자리 잡고 있습니다.
스마트 기술을 활용한 병원 인테리어는 환자와 의료진 모두에게 편리함을 제공하고 있죠.
디지털 정보판이나 자동화된 조명 시스템은 환자들이 필요한 정보를 쉽게 얻을 수 있도록 도와줘요.
이러한 기술은 병원 내의 효율성을 높이고, 환자들에게 보다 나은 서비스를 제공하는 데 기여하고 있습니다.






서초동의 병원들은 이러한 기술을 적극적으로 도입하여,
환자들이 보다 편리하게 병원 생활을 할 수 있도록 하고 있어습니다.
모바일 앱을 통해 진료 예약이나 대기 시간을 확인할 수 있는 시스템은 환자들에게 큰 도움이 되고 있죠.
이러한 기술과 디자인의 융합은 병원 인테리어의 새로운 방향성을 제시하고 있습니다.
서초동병원인테리어 친환경 인테리어의 필요성






최근에는 친환경 인테리어가 병원 디자인에서도 중요한 요소로 떠오르고 있습니다.
서초동 병원들은 지속 가능한 자재를 사용하고, 에너지 효율적인 설계를 통해 환경 보호에 기여하고 있습니다.
이러한 친환경 디자인은 환자들에게도 긍정적인 영향을 미칩니다.
자연 소재를 활용한 인테리어는 환자들에게 안정감을 주고, 건강한 환경을 제공하죠.






또한, 친환경 인테리어는 병원 운영 비용을 절감하는 데도 도움을 줍니다.
에너지 효율적인 시스템을 도입하면 장기적으로 운영 비용을 줄일 수 있습니다.
서초동의 병원들은 이러한 친환경 인테리어를 통해 지속 가능한 발전을 추구하고,
환자들에게 더 나은 환경을 제공하고 있습니다.






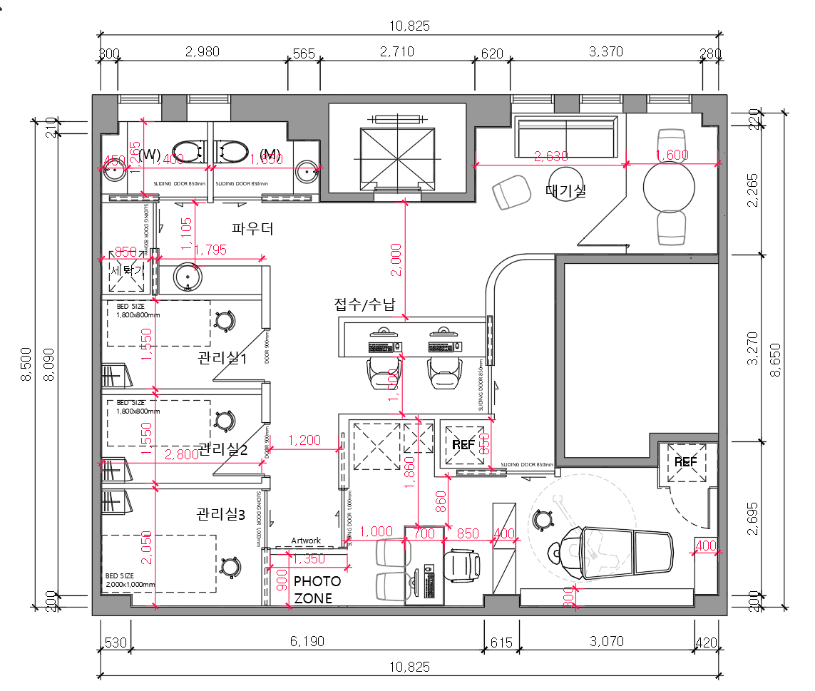
서초동병원인테리어 환자 경험을 고려한 공간 구성






병원 인테리어에서 환자 경험을 고려한 공간 구성은 매우 중요합니다.
환자들이 병원에 들어서는 순간부터 퇴원할 때까지의 모든 경험을 고려하여 디자인해야 합니다.
대기실, 진료실, 회복실 등 각 공간은 환자들이 편안함을 느낄 수 있도록 구성되어야 하죠.
서초동 병원들은 이러한 환자 경험을 최우선으로 생각하고, 공간을 디자인하고 있습니다.






대기실은 환자들이 긴장감을 느끼지 않도록 아늑하고 편안한 분위기로 꾸며져야 합니다.
또한, 진료실은 환자와 의료진 간의 소통이 원활하게 이루어질 수 있도록 설계되어야 합니다.
이러한 세심한 공간 구성은 환자들에게 긍정적인 경험을 제공하고, 치료에 대한 신뢰를 높이는 데 기여합니다






서초동병원인테리어는 단순한 공간 디자인을 넘어, 환자와 의료진 모두에게 긍정적인 영향을 미치는 중요한 요소에요.
최신 트렌드를 반영한 자연 친화적인 디자인, 환자 맞춤형 공간 구성, 기술과 디자인의 융합 등
다양한 요소들이 병원 인테리어에 적용되고 있습니다.






이러한 변화는 환자들에게 쾌적하고 안정적인 환경을 제공하고,
치료 과정에서의 긍정적인 경험을 증진시키는 데 기여하고 있죠.






앞으로도 서초동의 병원들은 이러한 인테리어 트렌드를 지속적으로 발전시켜 나갈 것으로 기대돼요.
환자들의 요구와 기대에 부응하는 병원 인테리어는 의료 서비스의 질을 높이는 데 중요한 역할을 할 거예요.







따라서 병원 관계자들은 인테리어 디자인에 대한 지속적인 관심과 투자를 통해,
환자들에게 더 나은 환경을 제공하기 위해 노력해야 합니다.







서초동병원인테리어는 환자와 의료진 모두에게
긍정적인 영향을 미치는 중요한 요소라는 점을 잊지 말아야 할 것 같습니다.






☎시공문의
010-3235-8427
▼포트폴리오 더 보기▼
사무실인테리어 디자인 공사 비용견적 플랫폼 - 사무실인테리어 916
사무실인테리어 916
916er.com
2024.10.06 - [병원인테리어] - 과천병원인테리어 촌스러움 탈피
과천병원인테리어 촌스러움 탈피
과천병원인테리어 촌스러움 탈피 안녕하세요, 최근에 많은 고객님들께서 기존 과천병원인테리어의 촌스러움을 탈피하고자 많이들 찾아 오시곤 하십니다. 그래서 이번에도 고객
dopamine7.com
2024.10.07 - [병원인테리어] - 성남병원인테리어 쾌적하고 깔끔하게
성남병원인테리어 쾌적하고 깔끔하게
성남병원인테리어 쾌적하고 깔끔하게 안녕하세요, 저희는 성남병원인테리어를 위해서 찾아오시는 분들을 위해서 쾌적하고 깔끔하게 진행해드리기 위해서 노력을 하고 있습니
dopamine7.com
2024.10.08 - [병원인테리어] - 분당병원인테리어 요즘은 필수
분당병원인테리어 요즘은 필수
분당병원인테리어 요즘은 필수 안녕하세요, 요즘은 필수로 분당병원인테리어를 꼭 진행을 하시는 추세라고 합니다. 왜냐하면 환자와 보호자분들이 의료의 질은 대부분 뛰어나기
dopamine7.com
2024.10.08 - [병원인테리어] - 부산병원인테리어 고민이라면
부산병원인테리어 고민이라면
부산병원인테리어 고민이라면 안녕하세요, 최근에 부산병원인테리어에 대해서 어떻게 진행을 할지에 대해서 고민이라면서 찾아오시는 클라이언트분들이 많습니다. 그래서 이러한
dopamine7.com
2024.11.06 - [병원인테리어] - 서초인테리어 마음의 안정을 주는 편안한 분위기의 정신건강의학과병원 시공현장
서초인테리어 마음의 안정을 주는 편안한 분위기의 정신건강의학과병원 시공현장
서초인테리어 환자의 맞춤형 공간으로 심리적 안정을 고려한 디자인 서초인테리어 병원디자인은 환자 맞춤형 공간을 제공하기 위해 다양한 노력을 기울이고 있습니다.예를 들어, 개인 병실
dopamine7.com
'병원인테리어' 카테고리의 다른 글
| 압구정병원인테리어 밝은분위기의 치과 대기실,진료실 포트폴리오 (1) | 2024.12.04 |
|---|---|
| 양재병원인테리어 편안함을 제공하는 정신건강의학과 디자인추천 (0) | 2024.12.04 |
| 논현동병원인테리어 논현동 고급스러운 피부과 참조할 만한 디자인 (0) | 2024.12.04 |
| 반포병원인테리어 포근한 느낌의 소아청소년과 의원 시공기 (1) | 2024.12.03 |
| 역삼병원인테리어 깨끗한 이미지의 피부과의원 포트폴리오 (0) | 2024.12.03 |
| 병원인테리어전문업체 전문성이 느껴지는 치과 맞춤시공 (1) | 2024.11.13 |
| 서초인테리어 마음의 안정을 주는 편안한 분위기의 정신건강의학과병원 시공현장 (0) | 2024.11.06 |
| 시흥병원인테리어 단정하고 아름답게 (13) | 2024.10.09 |
- Total
- Today
- Yesterday
- 사무실인테리어
- 지식산업센터인테리어
- 사무실디자인
- 3D사무실인테리어
- 학원인테리어디자인
- 인테리어디자인
- 헤어샵인테리어
- 헬스장인테리어
- 사무실인테리어잘하는곳
- 인테리어
- 916디자인
- 오피스인테리어
- 사무실인테리어비용
- 인천사무실인테리어
- 3D디자인
- 사무실인테리어디자인
- 학원인테리어
- interior
- 미용실인테리어
- 사무실인테리어업체
- 회사인테리어
- 사무실리모델링
- 사무실인테리어견적
- 상가인테리어
- 사무실인테리어공사
- 사무실인테리어전문
- 사무실인테리어후기
- 피티샵인테리어
- 병원인테리어
- 사무실인테리어추천
| 일 | 월 | 화 | 수 | 목 | 금 | 토 |
|---|---|---|---|---|---|---|
| 1 | ||||||
| 2 | 3 | 4 | 5 | 6 | 7 | 8 |
| 9 | 10 | 11 | 12 | 13 | 14 | 15 |
| 16 | 17 | 18 | 19 | 20 | 21 | 22 |
| 23 | 24 | 25 | 26 | 27 | 28 | 29 |
| 30 |






