티스토리 뷰
목차
미용실 인테리어는 단순히 예쁜 공간을 만드는 것을 넘어 고객이 머무는 경험을 디자인하는 일이라고 할 수 있습니다.
이번 구일육디자인의 시공사례는 세종시에 위치한 세종상가인테리어로 ‘고급스러움과 실용성의 완벽한 균형’을 목표로 진행되었습니다.
감각적인 공간 디자인, 효율적인 동선, 그리고 브랜드 아이덴티티까지 모두 담아낸 세종상가인테리어의 대표적인 시공사례를 지금부터 소개해드릴게요.
고급스러움과 실용성의 밸런스를 잡은 미용실디자인을 원한다면 자세히 읽어보시기 바라겠습니다. :)
세종상가인테리어, 브랜드 감성 담은 공간 설계

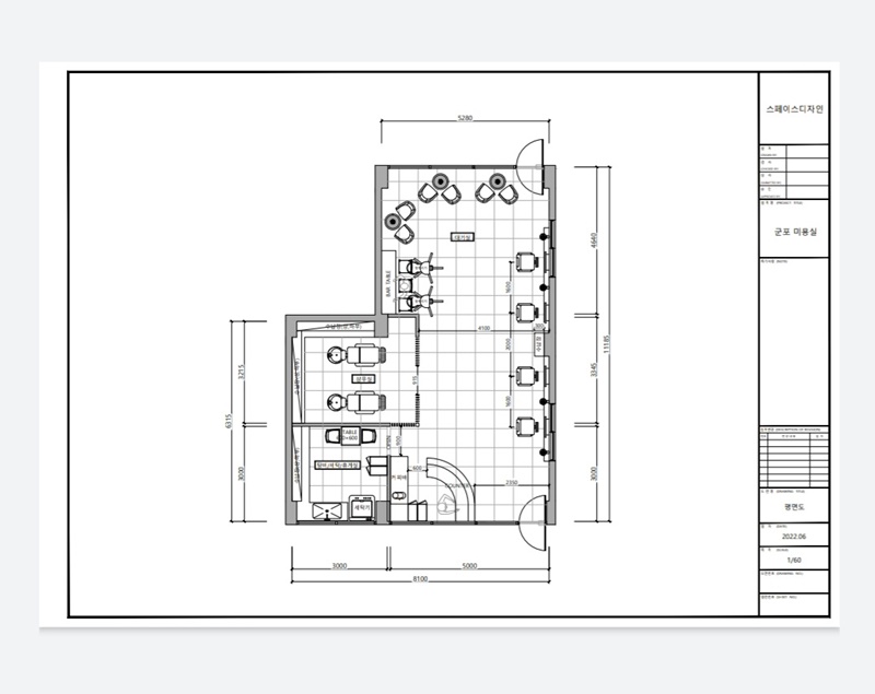
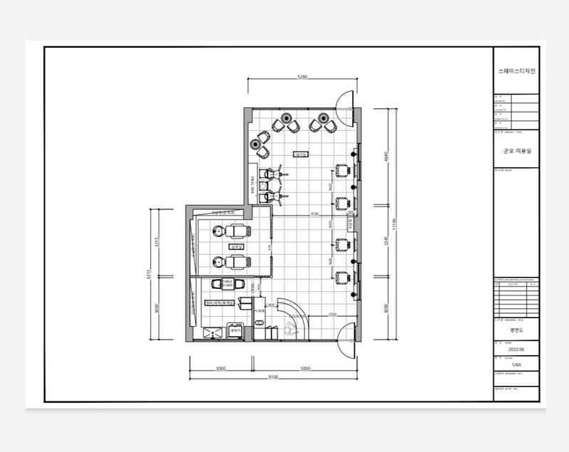
시작 단계에서는 브랜드의 방향성과 고객층을 고려한 3D 디자인 시안을 먼저 구성했습니다.
이번 매장은 미니멀한 구조 안에서 부드럽고 따뜻한 고급스러움을 표현하는 콘셉트로 설정했어요.


베이지와 샴페인 골드의 조화로 은은하고 감각적인 분위기 연출할 수 있는 컬러 컨셉을 정했고, 우드 질감과 광택 있는 마감재를 혼합하여 세련된 밸런스 구현했죠.
또한 매립등과 간접조명 설계로 고객 얼굴이 가장 아름답게 비치는 조도 유지할 수 있도록 했답니다.


시술존, 대기존, 세척존을 명확히 구분하면서도 개방감 있는 레이아웃으로 3D 디자인 단계에서부터 브랜드 감성을 세심하게 시각화하며 미용실의 아이덴티티를 공간 안에 자연스럽게 녹여내 미용실디자인을 완성해 보았는데요.
이를 바탕으로 어떻게 시공이 진행되었는지, 또 결과물은 어떨지 아래에서 보여드릴게요.
세종상가인테리어, 디테일 살리는 시공 프로세스


본격적인 시공은 공간 동선과 마감 완성도에 집중하여 단계별로 진행되었습니다.
기존 상가의 낡은 마감재를 철거하고, 단차를 최소화한 평탄화 작업을 진행했습니다.
바닥은 청소와 유지관리가 편한 고내구성 장판을 시공해 실용성을 확보했어요.



흡음과 차음 효과를 고려해 벽체를 보강하고, 전기 배선 및 간접조명 라인을 함께 매립했습니다.
그리고 천장은 깔끔한 매립형 조명으로 정돈된 인상을 주도록 설계했습니다.


맞춤 제작된 미용 카운터와 시술대는 매장의 톤앤매너에 맞춰 디자인했고 고객 대기 공간에는 부드러운 패브릭 의자를 배치해 포근한 인상을 더했습니다.
전체 공정 내내, 세부 마감 품질과 조명의 균형을 꼼꼼히 확인하며 완성도를 높일 수 있도록 했죠.
세종상가인테리어, 공간의 품격 완성



시공이 완료된 매장은 ‘고급스러움과 편안함이 공존하는 미용실’로 완성되었습니다.
은은한 베이지 톤이 공간 전체를 감싸며 브라스 포인트와 우드 컬러가 어우러져 따뜻한 감성의 럭셔리 무드를 연출했죠.



시술존은 고객이 가장 오래 머무는 공간이자 미용실의 첫인상을 결정짓는 핵심 구역이기 때문에 디자인의 중심을 ‘조명과 동선의 균형’에 맞춰 구성했어요.
고객은 편안하게 시술을 받고, 디자이너는 동선의 효율성을 확보한 ‘디자인과 기능이 공존하는 공간’으로 완성된 시술존이죠.


거울과 조명은 고객의 얼굴이 가장 자연스럽게 비칠 수 있도록 3000~3500K의 따뜻한 조명색으로 설계했고 빛이 직접 눈에 들어오지 않도록 간접조명을 활용했죠.
시술대 주변은 최소한의 가구와 장비만 배치해 시각적인 여백감을 주었으며 바닥은 물청소에 강한 논슬립 마감재를 적용해 관리가 용이합니다.
전체적으로 군더더기 없는 미니멀한 구조지만 따뜻한 조명과 질감 있는 마감재 덕분에 공간이 차갑지 않게 느껴집니다.


대기존은 고객이 처음 방문해 공간의 분위기를 느끼는 구역으로 브랜드의 이미지와 콘셉트를 직관적으로 전달할 수 있도록 디자인에 공을 들였습니다.
바닥은 따뜻한 톤의 장판으로 안정감을 주고 벽면에는 로고 포인트월과 함께 미묘한 텍스처를 살린 베이지 도장 마감을 사용했습니다.

조명은 간접등과 테이블 조명이 어우러져 기다림의 시간조차 편안하게 느껴지는 공간으로 완성했습니다.
전체적으로 미용실의 톤앤매너를 유지하면서도 여유로운 라운지 같은 분위기를 연출했답니다.



샴푸존은 고객이 머리를 감으며 가장 긴장을 풀고 휴식하는 공간입니다.
그래서 전체 분위기를 시술존보다 한 톤 낮추고 조명 또한 눈부심 없는 간접등 중심의 조도 설계로 완성했습니다.



벽면에는 따뜻한 우드 패널과 부드러운 조명 라인을 적용해 안정감을 주었고 세척대 주변은 방수 성능이 높은 마감재로 마무리해 위생과 내구성을 높였는데요.
특히 세척대 후면에는 디자이너 동선을 고려한 수납장과 준비 공간을 구성해 작업 효율을 높이면서도 외부에서는 깔끔하게 보이도록 디자인했습니다.
고객 입장에서는 아늑하고 프라이빗하게 시술자 입장에서는 실용적이고 정돈된 환경이 되도록 완벽하게 조율한 구역이죠.




이번 세종상가미용실인테리어 시공은 “보여지는 공간보다, 느껴지는 공간”에 초점을 맞춘 작업이었습니다.
실용적인 동선, 세련된 색감, 브랜드 정체성이 어우러지며 방문 고객에게 ‘머무르고 싶은 공간’이라는 인상을 주는 완성도 높은 결과로 마무리되었는데요.
저희 구일육디자인은 공간의 쓰임과 감성을 동시에 담아내는 디자인으로 브랜드의 가치를 높이는 인테리어를 제안드리고 있으니 도움이 필요하다면 언제든지 문의 바랍니다. :)
☎️ 공사문의 ☎️
010 -3235- 8427
📷 포트폴리오 더보기 📷
https://916er.com/
사무실인테리어 디자인 공사 비용견적 플랫폼 - 사무실인테리어 916
사무실인테리어 916
916er.com
2025.09.23 - [미용실인테리어] - 용인상가인테리어 남성들의 마음을 사로잡는 맨즈헤어샵 디자인 분석
용인상가인테리어 남성들의 마음을 사로잡는 맨즈헤어샵 디자인 분석
요즘 남성들 사이에에서 스타일과 외모에 대한 관심이 높아지고 있습니다.특히 머리스타일은 그들의 인상을 좌우하는 중요한 요소로 떠오르고 있죠. 남성들의 마음을 사로잡는 맨즈헤어 디자
dopamine7.com
2025.10.16 - [미용실인테리어] - 부산상가인테리어 우드 포인트를 접목한 감성적인 미용실 디자인
부산상가인테리어 우드 포인트를 접목한 감성적인 미용실 디자인
부산의 상업 지역은 날로 경쟁이 치열해지고 있어 단순히 공간을 제공하는 것만으로는 고객의 시선을 사로잡기 어렵습니다. 특히 미용실과 같은 서비스 업종에서는 인테리어가 브랜드 아이덴
dopamine7.com
2025.10.21 - [미용실인테리어] - 논현동미용실인테리어 발걸음을 멈추고 들어가고싶은 고급스럽고 예쁜디자인
논현동미용실인테리어 발걸음을 멈추고 들어가고싶은 고급스럽고 예쁜디자인
안녕하세요.916 디자인입니다. 최근에 진행하였던 미용실 인테리어 중 가장 기억에 남는 현장인 논현동미용실인테리어를 소개하려고 합니다. 이곳은 접근성이 매우 뛰어난 곳이며 유동인구가
dopamine7.com
2025.07.23 - [미용실인테리어] - 성동구상가인테리어 고객방문율 높이는 트렌디한 디자인
성동구상가인테리어 고객방문율 높이는 트렌디한 디자인
안녕하세요. 916 디자인입니다. 최근 창업을 준비하시는 분들이 많은데요. 가게 오픈 시 중요한 것 중 하나가 인테리어입니다. 한 번 하면 쉽게 바꿀 수 없기 때문에 처음 할 때 제대로 해야 합니
dopamine7.com
'미용실인테리어' 카테고리의 다른 글
| 원주미용실인테리어 조명 활용이 돋보이는 감각적인 헤어샵 소개 (0) | 2025.11.17 |
|---|---|
| 용인상가인테리어 따로 또 같이! 공간활용 너무 잘한 네일샵과 미용실 샵인샵 디자인 (0) | 2025.11.04 |
| 1인미용실인테리어 소형 10평 공간을 최대한 활용한 헤어샵디자인 시공 사례 모음 (0) | 2025.10.31 |
| 에스테틱인테리어 세련되고 깔끔한 피부샵 디자인으로 고객을 사로잡다 (0) | 2025.10.23 |
| 김포미용실인테리어 작은평수 창업 비용 알려드립니다. (0) | 2025.10.22 |
| 논현동미용실인테리어 발걸음을 멈추고 들어가고싶은 고급스럽고 예쁜디자인 (0) | 2025.10.21 |
| 부산상가인테리어 우드 포인트를 접목한 감성적인 미용실 디자인 (0) | 2025.10.16 |
| 분당상가인테리어 소형 미용실 1인 헤어샵의 가성비 공사 (0) | 2025.10.13 |
- Total
- Today
- Yesterday
- 사무실인테리어견적
- 헤어샵인테리어
- 상가인테리어
- 병원인테리어
- 인테리어디자인
- 피티샵인테리어
- 사무실인테리어디자인
- 미용실인테리어
- 인테리어
- 사무실인테리어비용
- 3D사무실인테리어
- 헬스장인테리어
- 오피스인테리어
- 사무실인테리어전문
- 사무실인테리어업체
- 사무실리모델링
- 사무실인테리어
- 사무실인테리어공사
- 사무실인테리어추천
- 지식산업센터인테리어
- 회사인테리어
- 인천사무실인테리어
- 3D디자인
- 사무실인테리어후기
- interior
- 사무실디자인
- 학원인테리어디자인
- 916디자인
- 사무실인테리어잘하는곳
- 학원인테리어
| 일 | 월 | 화 | 수 | 목 | 금 | 토 |
|---|---|---|---|---|---|---|
| 1 | 2 | 3 | ||||
| 4 | 5 | 6 | 7 | 8 | 9 | 10 |
| 11 | 12 | 13 | 14 | 15 | 16 | 17 |
| 18 | 19 | 20 | 21 | 22 | 23 | 24 |
| 25 | 26 | 27 | 28 | 29 | 30 | 31 |




