티스토리 뷰
목차
송파구인테리어 차이점을 찾아라
안녕하세요,
우리 주변을 볼 때 굉장히 많은
사람들이 실내 공간을 새롭게 디자인하기
위해서 고민하신다는 것을 알 수 있습니다.
한 공간을 새롭게 디자인할 경우
산뜻한 분위기와 더불어서 고급스러운
현장을 만나볼 수 있을텐데요.
인테리어를 시공하기 위해서는
그만큼 고객님의 니즈를 정확하게
파악하는 것이 중요하므로 오늘은
저희가 진행해드린 송파구인테리어 시공
사례를 자세하게 살펴보도록 하겠습니다.
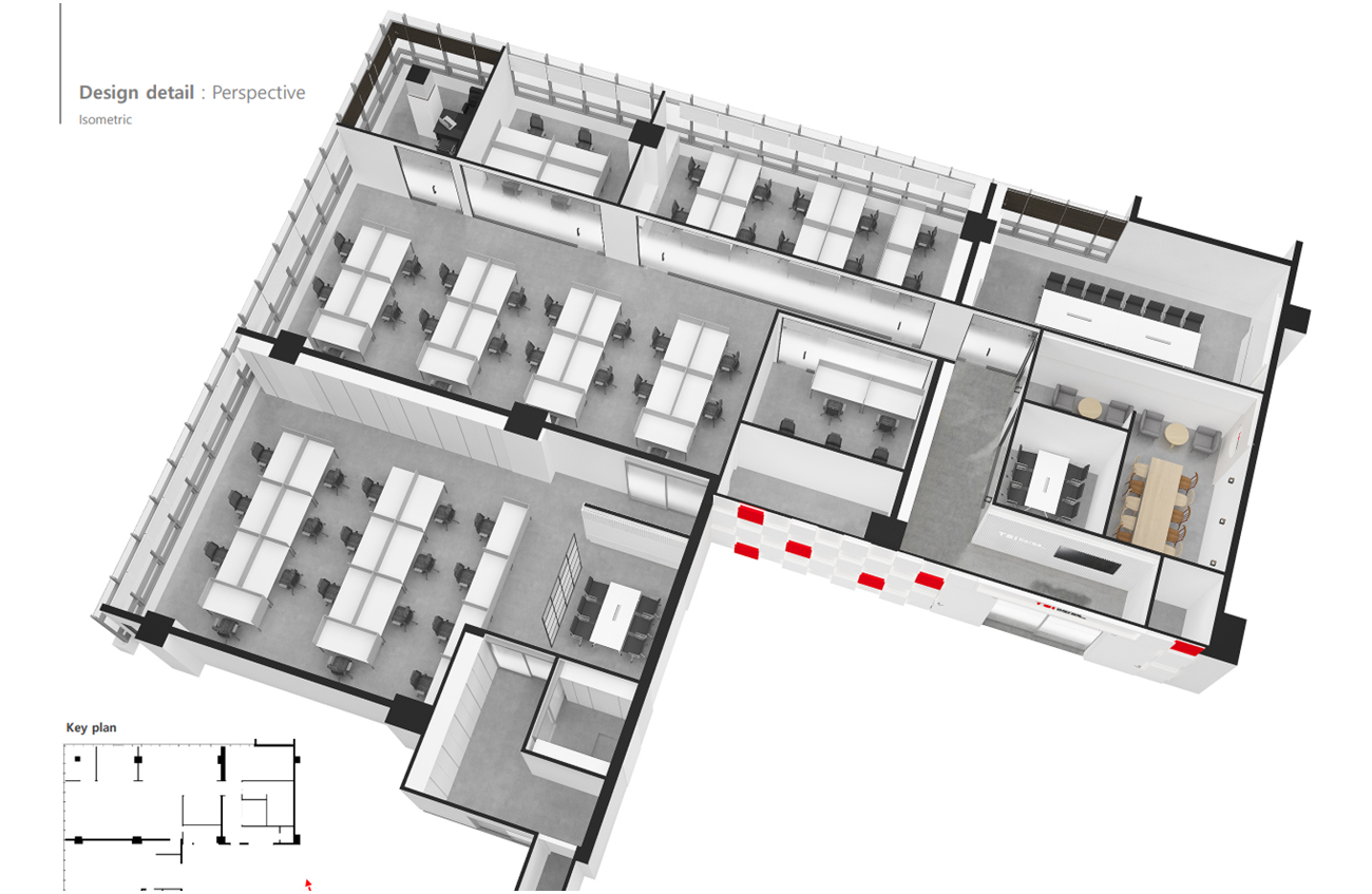
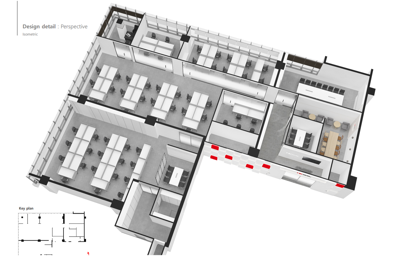
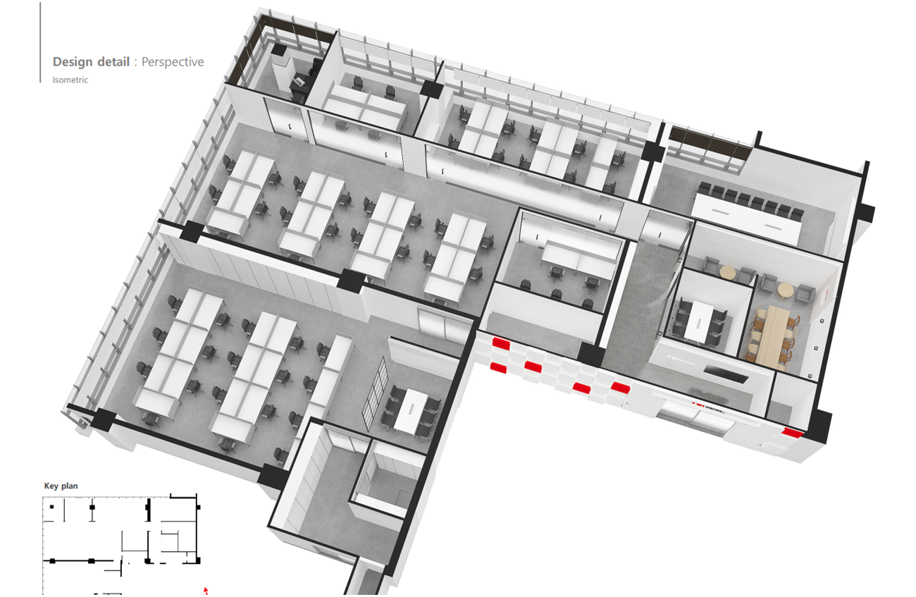
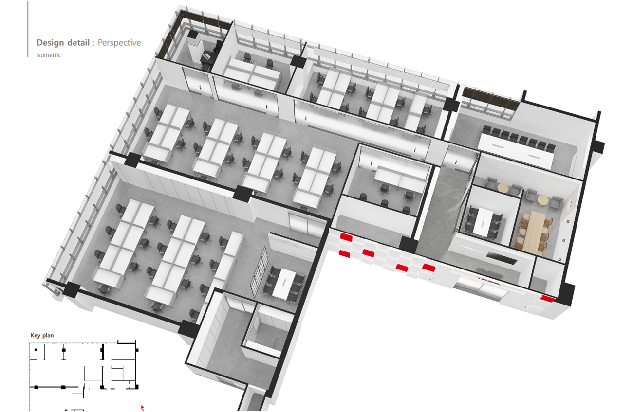
송파구인테리어 3D 디자인










송파구인테리어 시공을 의뢰해주셨던
고객님께서는 이번에 새롭게 사무실을 이사
하시게 되면서 저희에게 문의를 주셨습니다.
저희 또한 고객님과 상담을 진행하면서
3D 디자인 작업을 먼저 진행했는데요.
전체적인 공간들을 고객님의 니즈에 맞게
구성해나갔으며, 디자인의 경우 조금만
수정해도 느낌이 천차만별로 달라지기 때문에,
조금씩 수정하면서 조율해나갔습니다.
송파구인테리어 시공 진행 현장





3D 디자인 작업 이후에는 즉시 시공을
진행하기 위해 현장으로 출발했습니다.
주요 업무 공간과 홀을 구분하여 시공을
진행할 예정이었고, 우선 입구로 들어온
홀은 따로 조명을 시공하기 위해서
각 파이프로 구조를 잡아드렸습니다.
각파이프와 더불어서 석고보드, 목재 등을
활용하여 각각의 업무 공간과 복도를 만들었고,
인테리어 시 필요한 구조물들도 모두 작업했습니다.
저희의 경우 각 공간에 설치되는
목재들을 제작하거나 공수해오기 때문에,
퀄리티 높은 결과물을 기대할 수 있습니다.





팀 별로 함께 작업을 진행하다보니
공간들을 효율적으로 작업할 수 있었습니다.
파사드도 동시에 작업하면서
조명이 들어갈 수 있도록
배선까지 완벽하게 설치했습니다.
각 구조물을 완성한 이후에는 도장 작업을
진행하면서 마무리과정으로 넘어갔습니다.
시공이 마무리되어가는 시점에서는
고객님과 함께 제작안 3D 디자인대로
구성된다는 것을 알 수 있으며, 중간중간
점검을 하면서 올바르게 작업이
진행되고 있는지 살펴보게 됩니다.
송파구인테리어 시공 완료 현장





전체적인 시공이
완료된 현장입니다.
입구의 경우 심플하면서도
간결한 디자인의 사무실로 완성
되었다는 것을 알 수 있습니다.
입구에서 즉시 보이는 아트월은
푸후 모니터를 넣을 수 있도록 규격에
맞추어서 공간을 만들어드렸는데요.
전원이 정상적으로 들어올 수 있도록
콘센트까지 설치해주고 템바루바로
깔끔하게 작업을 진행해드렸습니다.





내부로 들어오면 카페테리아 공간부터
업무공간까지 모두 한눈에 볼 수 있습니다.
카페테리아의 경우 블랙 컬러로
수납장과 상판을 모던하게 완성시켰고,
템바보드로 작은 아트월을 만들어드렸습니다.
중앙에는 정원 형태의 사인물로
디테일을 살렸고, 아트월 옆으로
카페테리아를 이용하기 위한 공간도
넉넉하게 확보하여 제작해드렸습니다.



업무 공간 또한 굉장히
넓게 완성시켜드렸는데요.
그 옆으로는 회의실이 구성되어 있으며,
회의실에 필요한 모니터를 둘 수 있는 공간이
포함된 붙박이 수납장도 채워드렸습니다.
사이드로는 매립등이 설치된 공간으로써
디자인과 실용성을 전체적으로 잡아드렸습니다.
각 공간들을 시공하면서 고객님 또한 완성된
결과물을 보시고 굉장히 흡족해하셨습니다.



오늘은 저희가 직접 진행해드린
송파구인테리어 시공 사례를
자세하게 살펴보았습니다.
오늘 현장과 같이 사무실 공간을 새롭게
디자인하고 싶으시다면 저희를
통해서 해결해주시는 것이 좋습니다.
저희의 경우 다년간의 경험을 보유하고
있으며, 만족스러운 결과를 제공해드릴 수
있는만큼, 언제든지 편하게 문의주시기 바랍니다.
공사문의 010-3235-8427
▼▼▼▼포트폴리오 더보기▼▼▼▼
사무실인테리어 디자인 공사 비용견적 플랫폼 - 사무실인테리어 916
사무실인테리어 916
916er.com
2024.06.20 - [사무실인테리어] - 시흥인테리어 공사사례 알아보자
시흥인테리어 공사사례 알아보자
시흥인테리어 공사사례 알아보자 안녕하세요, 우리 주변을 볼 때 각 공간들을 새롭게 만들기 위해서 인테리어를 고민하시는 분들이 많다는 것을 알 수 있습니다. 인테리어를 진행
dopamine7.com
2024.06.19 - [사무실인테리어] - 판교사무실인테리어 공사의 디테일
판교사무실인테리어 공사의 디테일
판교사무실인테리어 공사의 디테일 주변을 살펴보면 정말 다양한 회사와 기업들이 많다는 것을 알 수 있습니다. 기본적으로 사무실은 기업만의 특색과 장점을 살린 분위기로 인
dopamine7.com
2024.06.19 - [사무실인테리어] - 가산동사무실인테리어 선택의 문제
가산동사무실인테리어 선택의 문제
가산동사무실인테리어 선택의 문제 우리 주변에는 굉장히 다양한 기업과 회사가 존재하고 있습니다. 그만큼 기업의 가치관과 주류 서비스, 성격에 따라 사무실 분위기도 그
dopamine7.com
2024.06.17 - [사무실인테리어] - 홍대사무실인테리어 합리적인 비용과 확신의 현장
홍대사무실인테리어 합리적인 비용과 확신의 현장
홍대사무실인테리어 합리적인 비용과 확신의 현장 새로 창업하거나 기존의 공간을 이전하면서 리모델링할 때, 많은 분이 중요시 고민하는 문제 중에 하나가 바로 공간 인테리어입
dopamine7.com
2024.06.19 - [사무실인테리어] - 천안인테리어업체 오피스공사에 집중합니다.
천안인테리어업체 오피스공사에 집중합니다.
천안인테리어업체 오피스공사에 집중합니다. 안녕하세요, 최근 우리 주변을 볼 때 사무실을 새롭게 인테리어하기 위해서 고민하시는 분들이 많다는 것을 알 수 있습니다. 사무실의 경우 많
dopamine7.com
'사무실인테리어' 카테고리의 다른 글
| 가산인테리어 성공적인 공사를 위해 (1) | 2024.06.22 |
|---|---|
| 마포사무실인테리어 합리적인 비용견적 데이터 (0) | 2024.06.22 |
| 안양사무실인테리어 빠른 대응으로 승부 (0) | 2024.06.21 |
| 구로사무실인테리어 세밀한 작업의 경험 (0) | 2024.06.21 |
| 김포사무인테리어 비용 견적 빠른미팅을 (0) | 2024.06.21 |
| 천안사무실인테리어 오피스공사의 핵심 (0) | 2024.06.20 |
| 성수동사무실인테리어 행복한 공간 (0) | 2024.06.20 |
| 시흥인테리어 공사사례 알아보자 (0) | 2024.06.20 |
- Total
- Today
- Yesterday
- 사무실인테리어추천
- 사무실인테리어전문
- 사무실리모델링
- 미용실인테리어
- 916디자인
- 헬스장인테리어
- interior
- 사무실인테리어후기
- 3D디자인
- 사무실인테리어견적
- 오피스인테리어
- 사무실디자인
- 회사인테리어
- 인테리어
- 사무실인테리어공사
- 헤어샵인테리어
- 병원인테리어
- 사무실인테리어잘하는곳
- 사무실인테리어비용
- 피티샵인테리어
- 지식산업센터인테리어
- 학원인테리어디자인
- 인천사무실인테리어
- 인테리어디자인
- 3D사무실인테리어
- 학원인테리어
- 사무실인테리어
- 사무실인테리어디자인
- 사무실인테리어업체
- 상가인테리어
| 일 | 월 | 화 | 수 | 목 | 금 | 토 |
|---|---|---|---|---|---|---|
| 1 | ||||||
| 2 | 3 | 4 | 5 | 6 | 7 | 8 |
| 9 | 10 | 11 | 12 | 13 | 14 | 15 |
| 16 | 17 | 18 | 19 | 20 | 21 | 22 |
| 23 | 24 | 25 | 26 | 27 | 28 | 29 |
| 30 |
