티스토리 뷰
목차
수원인테리어업체 선택이 중요한 이유
요즘 사무실인테리어는 직원들의 생산성과 창의성에 직접적인 영향을 미치는 중요한 요소인데요.
그래서 사무실 디자인의 중요성이 더욱 부각되고 있습니다.
어떤 디자인이 직원들에게 긍정적인 영향을 미칠 수 있을지 고민하는 것은 매우 중요한일입니다.
수원인테리어업체는 이러한 요구를 충족시키기 위해 정확한 사무실 디자인 설계와 체계적인 시공을 진행하고 있습니다.
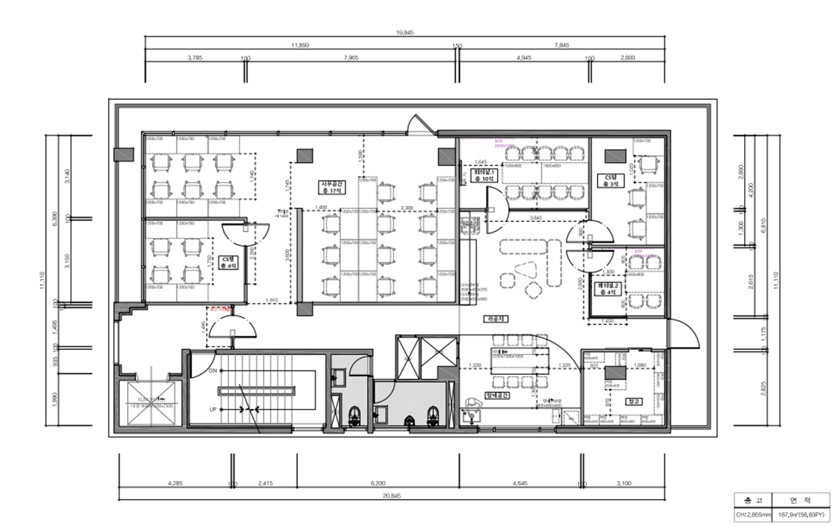
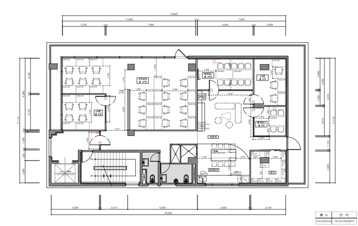
오늘은 수원인테리어업체 사무실 디자인 포트폴리오를 살펴보며, 성공적인 인테리어를 위한 팁과 주의사항을 알아보도록 하겠습니다.
사무실 공간을 어떻게 활용하고, 어떤 요소들이 필요할지를 이해하게 되면, 여러분의 사무실도 훨씬 더 매력적이고 기능적인 공간으로 변신할 수 있을 것입니다.


사무실 인테리어는 회사의 이미지와 업무 효율성에 큰 영향을 미치기 때문에, 신중하게 결정해야 합니다.
이때, 수원인테리어업체 선택이 매우 중요합니다.
업체의 역량과 경험에 따라 결과물의 퀄리티와 만족도가 크게 달라질 수 있기 때문입니다.



먼저, 업체의 포트폴리오를 확인하는 것이 중요합니다.
이전에 진행한 프로젝트를 살펴보면, 업체의 디자인 역량과 시공 능력을 파악할 수 있습니다.
또 고객들의 후기를 참고하는 것도 좋은 방법입니다.
실제 고객들의 후기를 통해 업체의 서비스 품질과 고객 만족도를 확인할 수 있습니다.




또 원활한 소통이 가능한 업체를 선택하는 것이 중요합니다.
사무실 인테리어는 고객의 요구사항을 정확하게 반영해야 하기 때문에, 고객과의 소통이 매우 중요합니다.
충분한 상담을 통해 고객의 요구사항을 파악하고, 이를 적극적으로 반영하는 업체를 선택하는 것이 좋습니다.



마지막으로 사후관리가 철저한 업체를 선택하는 것이 중요합니다.
공사 후 하자가 발생하거나, 문제가 생길 경우 신속하게 대처할 수 있는 업체를 선택하는 것이 좋으며,
이를 위해서는 계약서 작성 시 사후관리에 대한 내용을 명확하게 명시하는 것이 좋습니다.

수원인테리어업체 정확한 사무실 디자인 설계 원칙



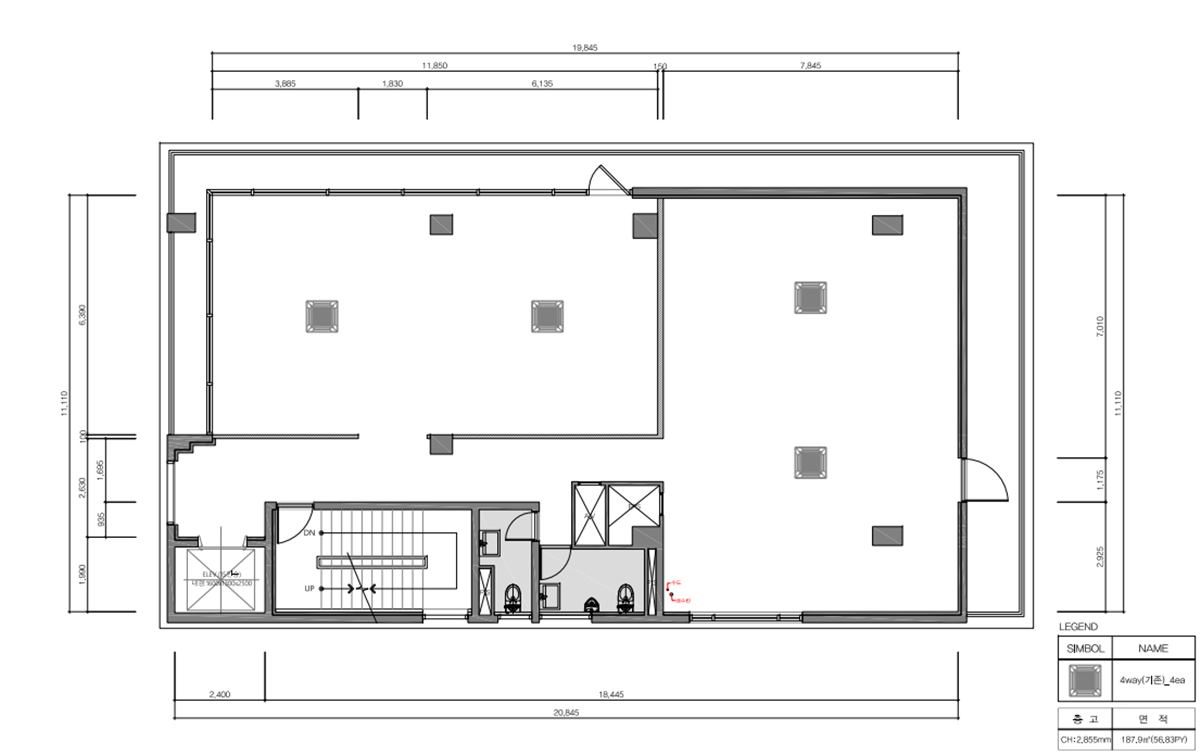
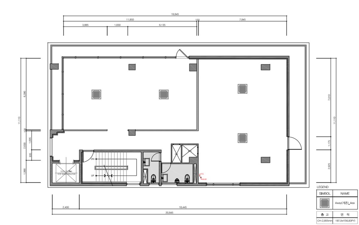
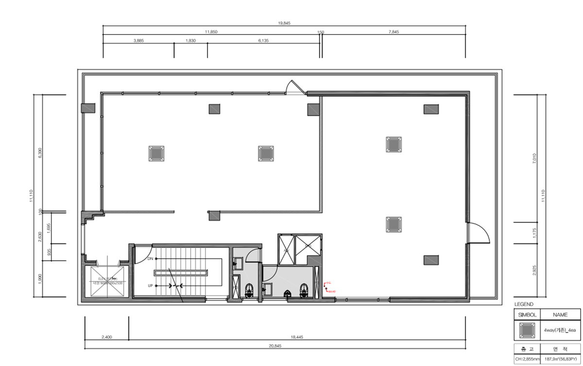
수원인테리어업체가 진행한 정확한 사무실 디자인 설계는 공간 활용도를 높이고, 업무 효율성을 향상시키는 데 매우 중요하며 아래는 그 기본 원칙 몇 가지 입니다.



목적 파악 : 가장 먼저 해야 할 일은 사무실의 목적을 파악하는 것입니다. 업무 종류와 인원 수, 업무 특성 등을 고려하여 적합한 레이아웃을 설계해야 합니다.



동선 고려 : 직원들의 이동 동선을 고려하여 가구 배치와 출입문 위치 등을 결정해야 하며, 이를 통해 불필요한 움직임을 줄이고, 업무 효율성을 높일 수 있습니다.



조명 계획 : 업무 특성에 따라 적절한 조도와 조명 방식을 선택해야 눈의 피로를 줄이고, 집중력을 높일 수 있습니다. 자연광을 최대한 활용하는 것도 좋은 방법입니다.



색채 계획 : 편안하고 안정감 있는 분위기를 조성하기 위해 색채 계획 역시 중요한데, 주로 밝은 색상을 사용하여 화사한 분위기를 연출하고, 포인트 컬러를 활용하여 개성을 더할 수 있습니다.



방음 및 환기 : 소음을 차단하고, 환기 시스템을 구축하여 쾌적한 실내 환경을 유지 하는것도 중요하므로 이러한 요소들을 고려하여 사무실 디자인을 설계해야 합니다.

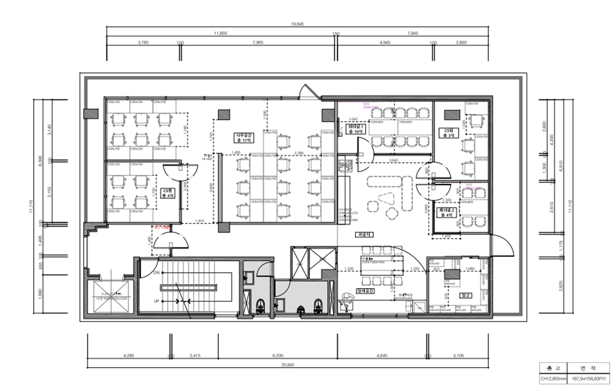
수원인테리어업체 체계적인 시공 과정 알아보기



디자인 설계가 완료되면, 수원인테리어업체의 실제 시공을 위한 체계적인 과정이 필요하며 일반적으로 아래와 같은 단계로 이루어집니다.



현장 실측 : 본격적인 시공 전에 현장을 실측하여 정확한 사이즈와 구조를 파악 하고 이 데이터를 바탕으로 세부적인 시공 계획을 수립합니다.



자재 선정 : 디자인 컨셉과 예산에 맞는 자재를 선정하는데 이때 내구성, 안전성, 친환경성 등을 고려해야 합니다.
공정 계획 : 시공 일정과 인력, 장비 등을 고려하여 공정 계획을 수립 하는데 , 이를 통해 원활한 시공 진행과 공사 기간 내 완공을 보장할 수 있습니다.



시공 진행 : 계획에 따라 시공을 진행하며, 각 단계마다 꼼꼼하게 검수하여 완성도를 높여야 합다.



사후 관리 : 시공이 완료된 후에도 사후 관리를 제공하는지 확인해야 하며, 이를 통해 하자 발생 시 신속한 대처와 지속적인 유지 보수를 보장받을 수 있습니다

수원인테리어업체 공간 활용을 최적화하는 방법



사무실 인테리어를 계획할 때 공간 활용을 최적화하는 것은 매우 중요한데 작은 공간이라도 효율적으로 활용하면 쾌적하고 넓은 느낌을 줄 수 있습니다. 수원인테리어업체의 몇 가지 팁을 소개하자면 다음과 같습니다.




업무에 필요한 서류나 비품 등을 보관할 수 있는 충분한 수납 공간을 확보 하는 것이 좋으며 벽이나 코너를 활용하여 선반이나 수납장을 설치하거나, 캐비닛이나 서랍장을 배치 할 수도 있습니다.




밝은 조명은 공간을 넓어 보이게 하고 업무 효율을 높여주는데 천장에 매입등을 설치하거나, 스포트라이트를 활용하여 강조하고자 하는 부분을 밝게 비추는 것도 좋은 방법 입니다.




컬러는 공간의 분위기와 크기에 영향을 미치는데 밝은 컬러는 공간을 넓어 보이게 하고, 어두운 컬러는 공간을 좁아 보이게 하므로 적절히 활용 해야 합니다.




가구 배치 역시 공간 활용에 큰 영향을 미치는데 동선을 고려하여 가구를 배치하고, 불필요한 여백을 최소화 하면 공간을 보다 효율적으로 활용할 수 있습니다.


오늘 정확한 사무실 디자인 설계와 체계적인 시공을 동시에 만족시킨 수원인테리어업체 공사 현장을 잘 보셨나요
인테리어는 단순한 공간의 변화를 넘어, 직원들의 마음가짐과 기업의 미래를 바꿀 수 있는 중요한 투자라는 점을 잊지 마시며, 저희와 함께 여러분의 사무실이 더욱 빛날 수 있도록 함께 해보시는 건 어떨까요?
다양한 포트폴리오를 확인하시고 궁금하신 점은 아래로 언제든지 문의 주시기 바랍니다.

☎공사문의
010 -3235 -8427
▽포트폴리오 더보기
사무실인테리어 디자인 공사 비용견적 플랫폼 - 사무실인테리어 916
사무실인테리어 916
916er.com
2024.11.08 - [사무실인테리어] - 경기도사무실인테리어 브랜드 이미지가 반영된 디자인 시공 소개
경기도사무실인테리어 브랜드 이미지가 반영된 디자인 시공 소개
인테리어 디자인은 단순한 미적 요소를 넘어, 공간의 기능성과 효율성을 고려해야 합니다.개방형 사무실은 협업을 촉진할 수 있지만, 개인의 집중력을 저해할 수도 있죠.따라서 공간의 용도와
dopamine7.com
2024.11.07 - [사무실인테리어] - 오피스인테리어 수납공간을 활용한 30평 40평 소형사무실 공사
오피스인테리어 수납공간을 활용한 30평 40평 소형사무실 공사
오피스인테리어 소형사무실 공간구성 오피스인테리어는 단순히 사무 공간을 꾸미는 것을 넘어,직원들의 생산성과 창의성을 높이는 중요한 요소로 자리 잡고 있습니다.요즘 많은 기업들이 효
dopamine7.com
2024.11.07 - [사무실인테리어] - 강남사무실인테리어 화이트톤의 깔끔한 오피스 디자인 추천
강남사무실인테리어 화이트톤의 깔끔한 오피스 디자인 추천
최근 강남사무실인테리어로 화이트톤의 오피스 디자인이 주목받고 있습니다. 사무실은 단순히 업무를 수행하는 공간이 아니라,직원들의 창의성과 생산성을 높이는 중요한 환경이고단순한 미
dopamine7.com
2024.11.07 - [사무실인테리어] - 구로인테리어 쾌적한 사무공간을 위한 플랜테리어 오피스 디자인
구로인테리어 쾌적한 사무공간을 위한 플랜테리어 오피스 디자인
매일 같이 하루중 긴 시간을 보내는 사무실,그 사무공간을 더 행복하고 건강하게 만들 수 있는 방법 중 하나!바로 플랜테리어를 활용한 오피스 디자인일텐데요. 사무실의 분위기와 인테리어는
dopamine7.com
'사무실인테리어' 카테고리의 다른 글
| 청라인테리어 트렌드가 잘 반영된 사무실 시공 소개 (0) | 2024.11.12 |
|---|---|
| 사무실리모델링 아늑한 사무공간 연출이 돋보이는 오피스디자인 (0) | 2024.11.11 |
| 서울인테리어 블랙과 레드포인트 컬러 조합으로 멋스러운 분위기를 연출한 오피스인테리어 시공사례 (1) | 2024.11.11 |
| 소형사무실인테리어 제한된 면적에서 멋진 세무회계사무실인테리어를 완성한 레이아웃 (2) | 2024.11.11 |
| 홍대인테리어 브랜드 특성을 살린 개성 있는 사무실 디자인 추천 (3) | 2024.11.08 |
| 서초동사무실인테리어 공간 분리가 잘 된 오피스인테리어를 원한다면 이렇게 시공해보세요 (0) | 2024.11.08 |
| 회사인테리어 다양한 가벽 칸막이 활용 사무실 레이아웃 제안 (1) | 2024.11.08 |
| 경기도사무실인테리어 브랜드 이미지가 반영된 디자인 시공 소개 (1) | 2024.11.08 |
- Total
- Today
- Yesterday
- 미용실인테리어
- 사무실인테리어비용
- 학원인테리어
- 병원인테리어
- 상가인테리어
- 사무실인테리어
- 사무실디자인
- 인테리어
- 헬스장인테리어
- 지식산업센터인테리어
- 사무실리모델링
- 사무실인테리어업체
- 916디자인
- 사무실인테리어전문
- 회사인테리어
- 피티샵인테리어
- 사무실인테리어견적
- 오피스인테리어
- 헤어샵인테리어
- 사무실인테리어디자인
- interior
- 사무실인테리어잘하는곳
- 3D디자인
- 학원인테리어디자인
- 사무실인테리어후기
- 사무실인테리어추천
- 인테리어디자인
- 3D사무실인테리어
- 사무실인테리어공사
- 인천사무실인테리어
| 일 | 월 | 화 | 수 | 목 | 금 | 토 |
|---|---|---|---|---|---|---|
| 1 | ||||||
| 2 | 3 | 4 | 5 | 6 | 7 | 8 |
| 9 | 10 | 11 | 12 | 13 | 14 | 15 |
| 16 | 17 | 18 | 19 | 20 | 21 | 22 |
| 23 | 24 | 25 | 26 | 27 | 28 | 29 |
| 30 |



