티스토리 뷰
목차
수학학원인테리어 학생들의 공간으로
안녕하세요, 916디자인입니다.
최근 다양한 공간을 새롭게 디자인
하기 위해서 인테리어를 고민하시는
분들이 굉장히 많으리라 생각됩니다.
인테리어를 통해서 더욱 세련된
디자인을 유지할 수 있으며, 학원에서도
그에 맞는 인테리어를 통해 학생들의
집중력을 더욱 향상시킬 수 있는데요,
오늘은 저희가 직접 진행해드렸던
수학학원인테리어 시공 사례를
자세하게 살펴보도록 하겠습니다.
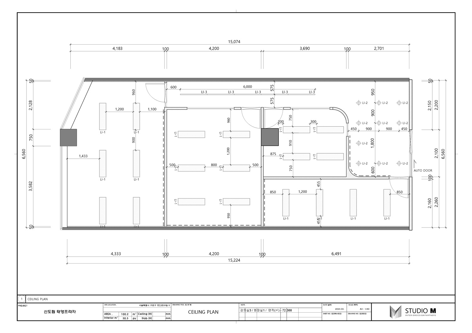
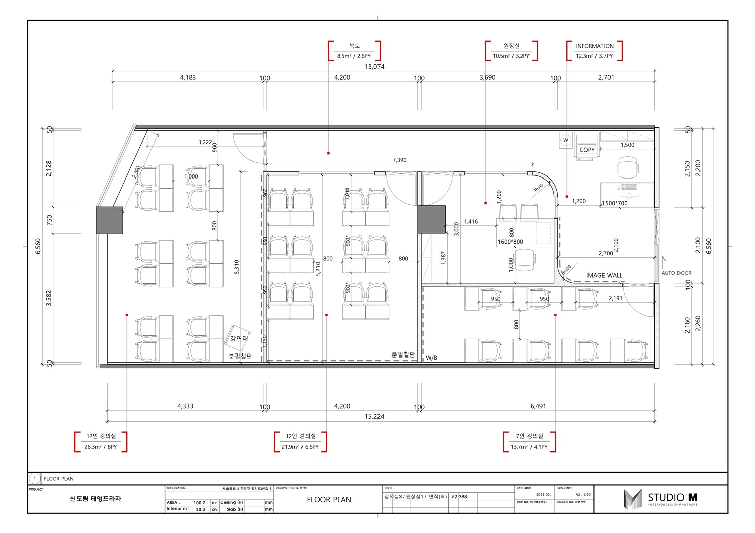
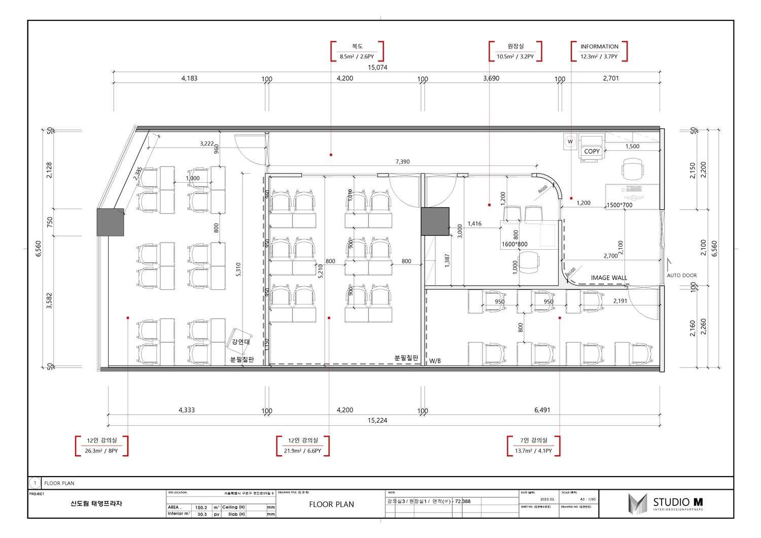
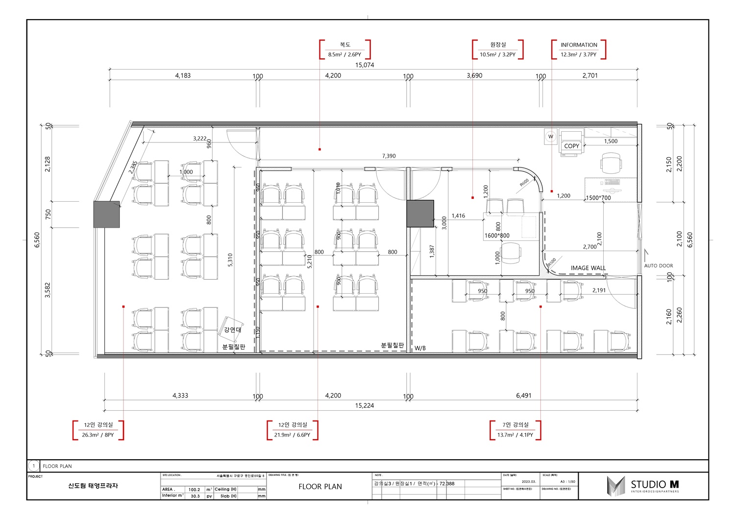
강남학원인테리어 3D 디자인






수학학원인테리어 시공을 의뢰해주셨던
고객님께서는 이번에 새롭게 학원을 오픈
하심에 따라서 저희에게 문의를 주셨습니다.
저희 또한 고객님과 상담을 수행하면서
2D와 3D 디자인을 함께 작업했습니다.
디자인은 깔끔하고 학생들도 따뜻함을
동시에 느낄 수 있는 공간이었으면 좋겠다고
하셔서 이를 그대로 반영해드렸습니다.
또한 강의실과 원장실이 필요
하다고 하셨기에, 고객님의 니즈에
맞추어서 구성을 해드렸습니다.
강남학원인테리어 시공 진행 현장









모든 디자인이 그려지고 난
이후에는 최종 컨펌을 받고 이후에는
본격적인 시공에 들어가게 됩니다.
수학학원인테리어 시공 시 인테리어공간을
더욱 고급스럽게 만들기 위해서 초기부터
제대로 작업을 수행해야 했습니다.
처음에는 경량 골조를 통해
뼈대를 잡아주고, 공간을 구분 할 때
가벽을 세우면서 안정성을 높였습니다.
단순하게 보일 수 있지만, 전기 작업도
해야하고, 단차가 없어야 하므로,
전문적인 실력이 겸비되어야 합니다.





내부를 시공하는 것과 더불어서
외부까지 디자인에 신경썼습니다.
물론 학생들이 내부에서 공부를 하는
만큼 내부 디자인은 마감재, 페인트 스카시
등으로 꼼꼼하게 마무리해드렸습니다.
시공이 어느정도 진행될 수록
3D 디자인과 같이 완성되고
있다는 모습을 볼 수 있습니다.
마감 공사가 끝이나면 마무리로
바닥 공사까지 진행한 이후
수학학원인테리어 시공을 완료하게 됩니다.
강남학원인테리어 시공 완료 현장





시공이 완료된 현장 사진입니다.
전체적인 분위기가 굉장히
고급스럽다는 것을 알 수 있습니다.
또한, 인테리어 공간적으로 볼 때
학생들이 공부에 집중할 수 있도록
구성되었다는 것을 알 수 있습니다.
입구의 리셉션 공간은 우드와
화이트 조합으로 설치했습니다.
템바 보드 스타일로 벽면을 두르기
때문에, 더욱 세련된 느낌의
학원이라는 것을 알 수 있습니다.
또한 천장에 다운 라이트까지 더해져서
따뜻함도 동시에 느낄 수 있습니다.


강의실 내부는 깔끔함을
중점적으로 살펴보며 살렸습니다.
화이트로 우드에 벽면과 창문, 도어의
테두리만 따는 디자인을 통해서 전체적인
인테리어공간에 깔끔함을 더했습니다.
학생들이 공부에 집중할 수 있도록 조명은
매립형으로 사용해서 시공을 했습니다.
수학학원인테리어 시공 시 고객님과
중간중간 조율해야하는 부분들은
바로 조율을 하면서 맞추어 나갔습니다.


어느정도 시공이 완료되었다면
최종적으로 점검을 수행합니다.
점검 과정에서 미흡한 부분들이
있는지, 다시 작업해야하는 곳은
없는지 정확하게 살펴봅니다.
만약 추가적으로 작업을 해야하거나
다시 인테리어공간을 시공해야한다면
저희가 즉시 해결해드릴 수 있습니다.
다행히도 다른 공간의 미흡한 부분은
없었으므로 고객님에게도 최종
완료를 말씀드릴 수 있었습니다.

오늘은 저희가 진행해드렸던 시공
사례를 자세하게 살펴보았습니다.
오늘 현장과 같이 다양한 공간의
인테리어를 원하신다면 저희를 통해서
해결해주시는 것이 좋습니다.
저희의 경우 다년간의 경험을 통한
좋은 결과를 제공해드릴 수 있으므로,
이와 관련하여 문의사항이 있으시다면
언제든지 편하게 문의주시기 바랍니다.
공사문의 010-3235-8427
▼▼▼▼포트폴리오 더보기▼▼▼▼
https://916er.com/category/academy/
Academy - 사무실인테리어 디자인 공사 비용견적 플랫폼
제1조 [목적] 이 약관은 “916디자인”이 온라인으로 제공하는 “콘텐츠” 및 “916디자인” 과 업무계약을 맺은 인테리어 디자인 제휴업체의 “인테리어견적서비스” 이용과 관련한 “9
916er.com
2023.12.02 - [학원인테리어] - 60평 영어학원인테리어 편안하고 고급스러운 학습환경을 조성한 공간
60평 영어학원인테리어 편안하고 고급스러운 학습환경을 조성한 공간
60평 영어학원인테리어 편안하고 고급스러운 학습환경을 조성한 공간 안녕하세요 916디자인입니다. 오늘은 60평형대의 영어학원인테리어 현장을 소개해드리려고 하는데요. 고급스러우면서도 편
dopamine7.com
2023.11.19 - [학원인테리어] - 김포 영어교습소인테리어 30평대 공간을 가득채운 화사한 컬러감
김포 영어교습소인테리어 30평대 공간을 가득채운 화사한 컬러감
ㄱ김포 영어교습소인테리어 30평대 공간을 가득채운 화사한 컬러감 안녕하세요 916디자인입니다. 요즘은 학원의 형태도 다양하죠? 대형 학원처럼 수 많은 아이들이 함께 수업을 들으며 단과반으
dopamine7.com
2023.08.19 - [학원인테리어] - 합리적인 학원인테리어견적 만족도 높은 시공결과 디자인 비용
합리적인 학원인테리어견적 만족도 높은 시공결과 디자인 비용
합리적인 학원인테리어견적 만족도 높은 시공결과 디자인 비용 안녕하세요 916디자인입니다. 요즘 아이들에게 학원은 필수적인 공간입니다. 학교에서 기초적인 학습을 하더라도, 더욱 심화된
dopamine7.com
2023.08.14 - [학원인테리어] - 수학학원인테리어 신뢰감이 나타나는 실내디자인 남양주 42평 학원공사
수학학원인테리어 신뢰감이 나타나는 실내디자인 남양주 42평 학원공사
수학학원인테리어 신뢰감이 나타나는 실내디자인 남양주 42평 학원공사 안녕하세요 916디자인입니다. 학원인테리어는 집중도가 높은 환경을 제공하면서도 아이들이 이용하는데에 불편하지 않
dopamine7.com
2023.04.17 - [학원인테리어] - 구로구 신도림 수학학원인테리어 디자인과 공간활용을 모두 잡은 30평 현장 깔끔하고 미니멀한 컨셉
구로구 신도림 수학학원인테리어 디자인과 공간활용을 모두 잡은 30평 현장 깔끔하고 미니멀한
구로구 신도림 수학학원인테리어 디자인과 공간활용을 모두 잡은 30평 현장 깔끔하고 미니멀한 컨셉 안녕하세요 916디자인입니다. 오늘은 구로구 신도림 수학학원인테리어 디자인과 공간활용을
dopamine7.com
'학원인테리어' 카테고리의 다른 글
| 강남 서초동인테리어 행복공간 아이들을 위한 학원 교습소 디자인 (0) | 2024.03.28 |
|---|---|
| 학원인테리어비용 견적은 합리적으로 (0) | 2024.03.27 |
| 영어학원인테리어 트랜드를 따라서 (0) | 2024.03.26 |
| 영어 수학 교습소인테리어 공간의 레이아웃 (0) | 2024.03.25 |
| 대치동 역삼동 강남학원인테리어 전문성을 갖추다 (1) | 2024.03.23 |
| 60평 영어학원인테리어 편안하고 고급스러운 학습환경을 조성한 공간 (1) | 2023.12.02 |
| 김포 영어교습소인테리어 30평대 공간을 가득채운 화사한 컬러감 (0) | 2023.11.19 |
| 합리적인 학원인테리어견적 만족도 높은 시공결과 디자인 비용 (0) | 2023.08.19 |
- Total
- Today
- Yesterday
- 병원인테리어
- 916디자인
- 사무실리모델링
- 인테리어디자인
- 사무실인테리어잘하는곳
- 사무실인테리어공사
- 헤어샵인테리어
- 사무실인테리어업체
- interior
- 상가인테리어
- 미용실인테리어
- 사무실인테리어전문
- 오피스인테리어
- 사무실인테리어추천
- 인테리어
- 3D디자인
- 사무실인테리어후기
- 학원인테리어디자인
- 사무실인테리어
- 사무실디자인
- 사무실인테리어디자인
- 회사인테리어
- 피티샵인테리어
- 사무실인테리어견적
- 학원인테리어
- 인천사무실인테리어
- 사무실인테리어비용
- 지식산업센터인테리어
- 헬스장인테리어
- 3D사무실인테리어
| 일 | 월 | 화 | 수 | 목 | 금 | 토 |
|---|---|---|---|---|---|---|
| 1 | 2 | 3 | 4 | 5 | 6 | 7 |
| 8 | 9 | 10 | 11 | 12 | 13 | 14 |
| 15 | 16 | 17 | 18 | 19 | 20 | 21 |
| 22 | 23 | 24 | 25 | 26 | 27 | 28 |
