티스토리 뷰
목차
오늘은 안성 지역에서 진행한 사무실 인테리어 시공 사례를 소개하려고 해요!
이번 시공 사례는 안성인테리어업체를 찾는 분들에게 도움이 될 만한 요소가 아주 많이 담겨있답니다.
브랜드 전시 수납장, 개방형 회의실 설계, 민트 포인트 벽면, 모던한 가구 배치까지 전반적으로 세련된 느낌을 강조한 사무실 디자인이죠!
전체 디자인 방향은 깔끔하면서도 실용적인 구성을 목표로 했어요.
부담스럽지 않게 브랜드 아이덴티티를 녹여내고 직원들이 집중하기 좋은 업무 환경을 만드는 데 중점을 두었어요.
특히 민트 컬러 포인트와 유리 파티션을 활용한 개방형 회의실에 디테일이 담겨있답니다.
안성인테리어업체 시공 사례를 찾는 분들께 이번 공간이 좋은 참고가 되길 바라며, 그럼 916디자인의 디자인 과정부터 완성된 모습까지 차근차근 소개해볼게요!
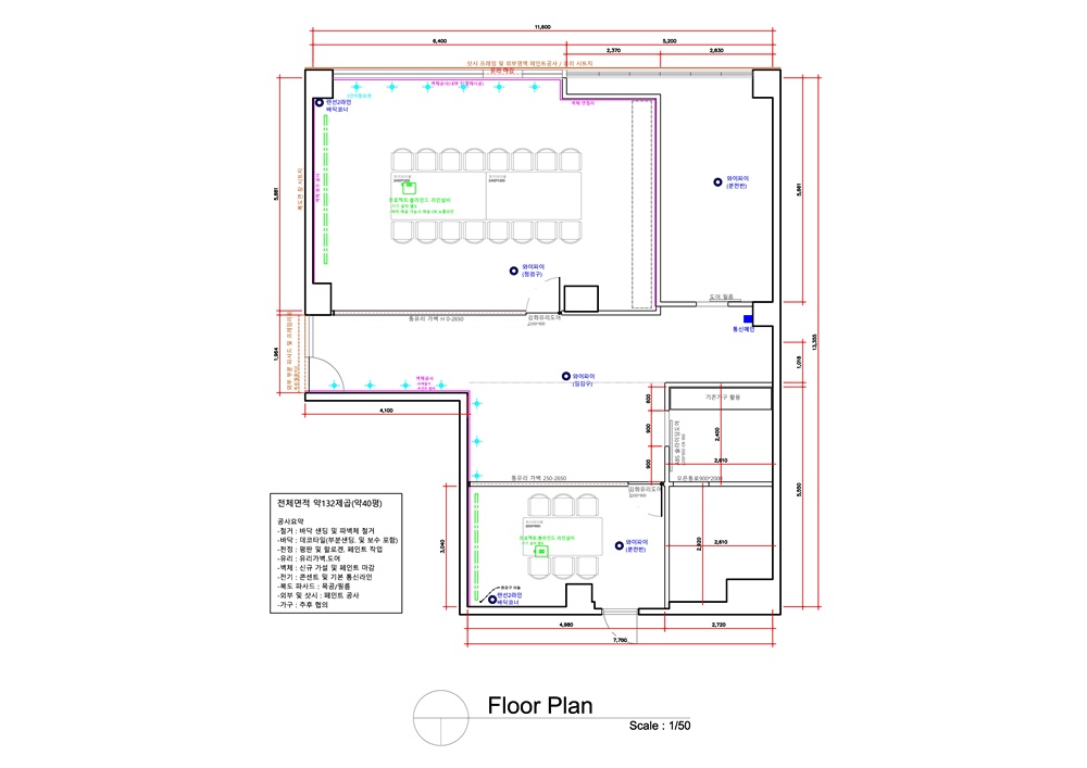
안성인테리어업체 3D 디자인

3D디자인 단계에서는 고객사 요구와 브랜드 콘셉트를 명확하게 반영하는 것이 가장 중요한 부분이었어요.
고객사는 브랜드 이미지를 자연스럽게 드러내면서도 편안하고 집중하기 좋은 분위기를 원하셨어요.
그래서 3D디자인에서는 먼저 민트 포인트 벽면을 중심으로 공간 분위기를 잡았어요.
민트 컬러는 시원하고 청량한 느낌을 주기 때문에 사무실처럼 오래 머무는 공간에 특히 잘 어울리는 색감이에요.

개방형 회의실 설계도 3D 단계에서 꼼꼼히 검토한 부분이에요.
유리 파티션을 중심으로 공간을 나누어 시각적 개방감은 살리면서도 회의 집중도는 유지할 수 있도록 구성했어요.
민트 포인트 벽면과 블랙 프레임 조합을 통해 모던하면서도 선명한 분위기를 주도록 조정했어요.

가구 구성도 3D상에서 여러 방향으로 조정했어요.
화이트와 우드 톤을 중심으로 따뜻하고 정돈된 분위기를 만들었고, 전체적으로 세련된 무드를 유지하도록 배치했어요.
브랜드 전시 수납장 디자인은 가장 세심하게 진행된 요소 중 하나예요.
상부는 유리장과 조명을 넣어 제품이 돋보이게 구성했고, 하부는 화이트 수납장으로 실용성을 강화했어요.
브랜드를 가진 기업 사무실에서 많이 요구하는 디자인을 적용한 사례예요.
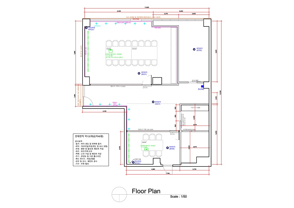
안성인테리어업체 공사 진행

공사진행 단계에서는 3D디자인과 실제 현장 조건을 일치시키는 작업을 중심으로 진행했어요.
민트 포인트 벽면은 색감이 어긋나지 않도록 도장팀과 여러 차례 조율했고요.
특히 민트 컬러는 톤 차이가 조금만 나도 전체 분위기가 크게 달라지기 때문에 신경을 많이 썼답니다.


브랜드 전시 수납장 제작은 목공, 전기, 조명팀이 함께 협업해야 했어요.
상부 유리장 조명은 제품을 돋보이게 하는 핵심 요소이기 때문에 밝기와 각도가 정확하게 설정돼야 했어요
하부 수납장은 실사용을 고려해 수납력과 안정성을 최우선으로 시공했어요.



개방형 회의실 설계 단계에서는 유리 파티션 고정 작업이 가장 중요한 과정 중 하나였어요.
안전성과 마감 품질이 직결되는 부분이기 때문이에요.
블랙 프레임은 공간의 선을 정리하고 전체 디자인을 더욱 세련되게 만들어주는 역할을 해요.



바닥재는 연한 그레이 톤으로 통일해 공간 전체가 연결된 느낌을 주도록 시공했어요.
추가로 천장 조명은 간접조명과 직부등을 조화롭게 배치해 회의실과 업무 공간 모두 밝고 편안한 조도가 유지되도록 했어요.
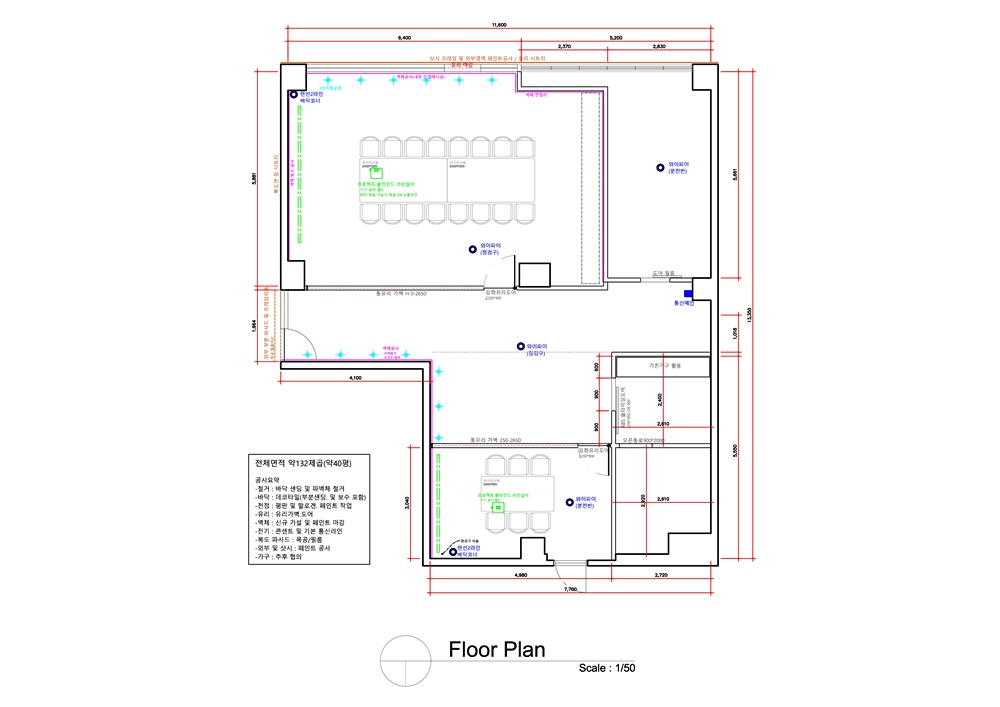
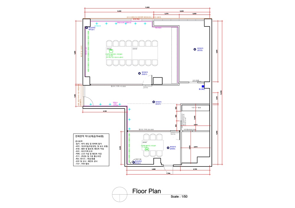
안성인테리어업체 공사 완료



공사가 완료된 공간은 안성인테리어업체 916디자인의 감각과 시공 노하우가 그대로 담긴 완성도 높은 사무실이 되었어요.
전체적인 분위기는 깔끔하고 모던하며, 브랜드 전시 수납장과 개방형 회의실 설계가 자연스럽게 어우러져 실용성과 디자인을 모두 잡은 공간이에요.






입구에 들어서면 가장 먼저 보이는 민트 포인트 벽면이 공간의 분위기를 단번에 밝고 시원하게 만들어줘요.
이 민트 컬러는 직원들의 집중력을 높이고 안정감을 주는 효과가 있어 사무실 인테리어에 특히 잘 맞는 색감이에요.
벽면 도장은 균일한 색감이 유지되도록 여러 번 체크하며 마감해 깔끔한 결과를 얻었어요.




바닥은 라이트 그레이 톤으로 시공해 전체 공간이 안정감 있게 이어지도록 했어요.
그레이 톤 바닥은 깔끔하고 정돈된 분위기를 주고 민트 벽과 화이트 가구가 더 돋보이도록 도와주는 중립적인 역할을 하죠.
천장 조명과 최신 공조 시스템은 공간을 더욱 쾌적하게 유지해주며 장시간 머무르는 사무실에 적합한 환경을 만들어준답니다.




개방형 회의실 공간은 유리 파티션 덕분에 시각적으로 넓어 보이고 답답함이 없어요.
민트 포인트 벽면과 블랙 프레임의 조합은 세련되면서도 깔끔한 대비를 만들어 현대적인 분위기를 더해줘요.
화이트 대형 테이블과 네트 소재 의자를 배치해 모던한 감각을 유지하면서도 사용성은 그대로 확보했어요.
조명은 눈부심을 줄이면서 회의에 집중하기 좋은 조도와 각도로 설치해 편안한 회의 환경을 만들었어요.





책상과 의자 배치는 협업과 개별 업무가 모두 가능한 형태로 구성했어요.
다크 톤 의자와 우드 테이블 조합은 공간에 안정감을 더해주고, 전체적인 디자인 흐름과 잘 어울려요.
이렇게 실용성과 감각적인 디자인 요소가 균형을 이뤄 사용자 만족도가 높은 사무실이 완성됐어요.
브랜드 전시 수납장은 이 사무실의 핵심 포인트 중 하나예요.
하부 화이트 수납장은 실용적인 수납 공간을 제공하고, 상부 유리장 조명은 제품을 더 입체적이고 고급스럽게 보여줘요.
이 조명 디스플레이 덕분에 브랜드 전문성과 신뢰도가 한층 높아지는 효과가 있어요.
실제로 완성 후 클라이언트분들이 가장 만족했던 부분이기도 해요.



전체적으로 이 프로젝트는 안성인테리어업체가 추구하는 실용성과 디자인의 균형을 그대로 보여주는 사례예요.
브랜드 전시 수납장, 개방형 회의실 설계, 민트 포인트 벽면, 유리 파티션 등 다양한 요소가 조화롭게 적용되며 회사의 이미지와 업무 효율까지 향상되는 결과를 가져왔죠.
이번 프로젝트는 안성인테리어업체의 인기 사무실 시공 사례로, 브랜드 전시 수납장과 개방형 회의실 설계가 돋보이는 공간이에요.
전체적으로 깔끔하고 모던한 디자인과 실용적인 구성 덕분에 사용 만족도가 높은 사무실이 완성됐죠.
안성에서 사무실 인테리어를 고민하고 있다면 저희 916디자인의 이번 사례가 좋은 참고가 될 거예요.
브랜드 콘셉트, 실용성, 직원 만족도까지 고려한 공간을 원하신다면 언제든 상담을 통해 더 자세한 방향을 제안드릴 수 있으니 아래의 번호로 연락 바라요! :)
☎️ 공사문의 ☎️
010 -3235- 8427
📷 포트폴리오 더보기 📷
https://916er.com/
사무실인테리어 디자인 공사 비용견적 플랫폼 - 사무실인테리어 916
사무실인테리어 916
916er.com
2025.12.05 - [사무실인테리어] - 사무실인테리어비용 견적서 체크하는 방법
사무실인테리어비용 견적서 체크하는 방법
사무실을 새롭게 꾸미거나 이전을 준비할 때 가장 먼저 고민하게 되는 부분이 바로 사무실인테리어비용입니다. 인테리어 예산에 따라 퀄리티가 크게 달라지기 때문에, 견적서를 꼼꼼히 확인하
dopamine7.com
2025.12.01 - [사무실인테리어] - 판교인테리어업체 답답함 없이 넓어 보이는 사무실 디자인 설계 팁
판교인테리어업체 답답함 없이 넓어 보이는 사무실 디자인 설계 팁
판교 테크노밸리에 위치한 수많은 기업들은 끊임없이 혁신하고 성장하며 빠르게 변화하고 있습니다. 이러한 역동적인 환경 속에서 사무실 공간은 단순히 업무를 수행하는 곳을 넘어, 직원들의
dopamine7.com
2025.11.27 - [사무실인테리어] - 용인인테리어업체 추천, 둥근 곡선의 부드러운 오피스디자인 사례
용인인테리어업체 추천, 둥근 곡선의 부드러운 오피스디자인 사례
모던하고 세련된 분위기의 오피스디자인은 누구나 꿈꾸는 업무 환경이에요. 이에 따라 직원들이 편안하고 효율적으로 업무할 수 있는 오피스 환경을 만들기 위해 용인인테리어업체 구일육디자
dopamine7.com
2025.11.11 - [사무실인테리어] - 성동구인테리어업체 조명디자인으로 완성한 세련된 오피스 리뉴얼 시공 사례
성동구인테리어업체 조명디자인으로 완성한 세련된 오피스 리뉴얼 시공 사례
오늘 소개할 현장은 성동구에 위치한 한 뷰티 관련 기업의 오피스 리뉴얼 시공 사례입니다. 브랜드의 아이덴티티를 명확하게 보여주면서 방문하는 고객에게 세련되고 신뢰감 있는 이미지를 전
dopamine7.com
'사무실인테리어' 카테고리의 다른 글
| 옥정인테리어업체 감각적인 디자인을 자랑하는 사무실 시공 후기 (0) | 2025.12.18 |
|---|---|
| 동탄인테리어업체추천 시공부터 결과까지 믿고 맡길수 있는 저희는 어떠신가요? (0) | 2025.12.16 |
| 공유오피스인테리어 시작할때 고려해야하는 필수 요소 (0) | 2025.12.12 |
| 천안인테리어업체 감각 시공 후기 콘크리트 블록과 에폭시 바닥의 트렌디 사무공간 완성 (0) | 2025.12.12 |
| 사무실인테리어비용 견적서 체크하는 방법 (1) | 2025.12.05 |
| 경기도리모델링 사무실 유리가벽 및 회의실의 대변신 (0) | 2025.12.04 |
| 송파리모델링 이렇게 달라졌어요! 복도, 도어, 계단까지 깔끔한 공간 구성의 오피스 시공 (0) | 2025.12.04 |
| 대전인테리어업체추천 실용적인 소형 사무실 디자인 구성 (1) | 2025.12.03 |
- Total
- Today
- Yesterday
- 오피스인테리어
- 916디자인
- 사무실리모델링
- 미용실인테리어
- interior
- 사무실인테리어전문
- 사무실인테리어추천
- 사무실인테리어
- 헤어샵인테리어
- 사무실인테리어공사
- 피티샵인테리어
- 사무실인테리어비용
- 헬스장인테리어
- 인테리어
- 회사인테리어
- 사무실디자인
- 사무실인테리어디자인
- 인천사무실인테리어
- 학원인테리어
- 사무실인테리어업체
- 사무실인테리어잘하는곳
- 사무실인테리어후기
- 인테리어디자인
- 사무실인테리어견적
- 학원인테리어디자인
- 상가인테리어
- 병원인테리어
- 3D사무실인테리어
- 지식산업센터인테리어
- 3D디자인
| 일 | 월 | 화 | 수 | 목 | 금 | 토 |
|---|---|---|---|---|---|---|
| 1 | 2 | 3 | ||||
| 4 | 5 | 6 | 7 | 8 | 9 | 10 |
| 11 | 12 | 13 | 14 | 15 | 16 | 17 |
| 18 | 19 | 20 | 21 | 22 | 23 | 24 |
| 25 | 26 | 27 | 28 | 29 | 30 | 31 |








