티스토리 뷰
목차
안양사무실인테리어 업체를 잘 선택하세요
안녕하세요?
안양사무실인테리어를 고객님들에게 제공하고 있습니다.
최근에 기존에 상담을 받던 업체와 계약을 파기하고,
저희 쪽응로 와서 다시 상담을 진행하신 고객님이 있었습니다.
진행에 대한 전반적인 과정과 디자인의 톤앤매너,
과정에 태한 투명성 등이 마음에 들지 않아서
지인 소개를 통해서 연락을 주셨다고 합니다.
그래서 저희가 항상 업체를 잘 선택하세요라고
말씀드리는 이유도 이런 부분이긴 합니다.
시간적으로나 비용적으로나 손해이기 때문이죠.
그럼 오늘 그 고객님의 사례에 대해서 소개해드리겠습니다.
바로 시작하겟습니다.
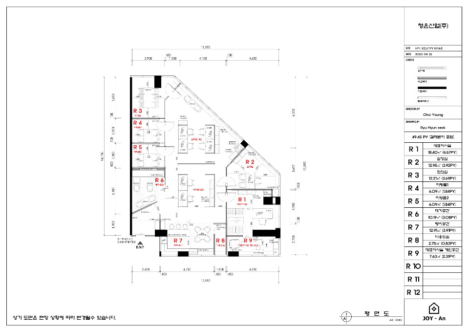
안양사무실인테리어 3D디자인 시안

이번 안양사무실인테리어를 진행하게 되면서
3D 도면을 먼저 보여드렸습니다.

이렇게 전반적인 도면과 각 공간이 활용될 부분들을
큰 그림으로도 보여드릴 수 있었고요.

세부적인 공간에 대한 디자인 또한
미리 확인을 하실 수 있습니다.

특히 컬러, 질감 까지도 상세하게 확인이 가능한 점이
이러한 3D 디자인의 장점입니다.

미리 실측 사이즈를 어떠한 구성으로 할지
꼼꼼하게 체크를 하고 진행이 됩니다.

위 이미지는 탕비 공간의 예시인데,
세련되게 변화할 모습을 미리 보실 수 있습니다.
안양사무실인테리어 시공 공사 현장사진

그렇게 피드백 과정을 거쳐 시공이 시작됩니다.

창문의 위치, 채광 등도 꼼꼼하게 고려해서
모든 설계를 진행하게 됩니다.

외부의 문 또한 마찬가지로 이러한 안양사무실인테리어에서
중요하게 생각하는 것 중 하나입니다.

벽지 선택, 마감, 타공, 바닥재까지도
꼼꼼하게 선택하고 시공을 진행해서
완벽한 결과물을 내기 위해서 노력합니다.
안양사무실인테리어 시공 완성 현장

자, 그럼 이번에 진행 된 아름다운 공간에 대해서
외부부터 천천히 보여드릴 수 있도록 하겠습니다.

외부는 간판을 폰트 및 조명으로 대체해서
주목도를 높이고 세련된 분위기를 연출해줬습니다.

내부로 들어가면 그레이톤으로 정리 된
디자인을 보실 수 있습니다.
공간 분리를 위한 파티션 또한 설치해드렸습니다.

환하게 보이는 백색등 아래에 여러 공간으로 분리를 해드렸습니다.
한 쪽은 노란 조명과 우드톤, 두 곳은 그레이톤과 블랙톤을 활용했죠.

우드 및 노란 조명으로 포인트를 살린 곳은
조금 더 따뜻하고 키치한 분위기를 선사합니다.

전반적인 분위기와 이질적이지 않으면서도,
포인트가 되기 때문에 고객님께서 많이 만족하신 스팟입니다.

이렇게 전체적으로 보았을 떄도
크게 튀지 않지만 톡톡 튀는 분위기를 형성해줍니다.

탕빕실로 활용할 곳은 싱크대와 상판 등이
짙은 그레이색으로 배치되었습니다.
그래서 차분하면서도 우아한 무드를 조성하죠.

공간 분리를 해주는 파티션은
투명한 격자무늬로 배치하여서
보다 개방감을 느끼실 수 있도록 제작해드렸습니다.

안양사무실인테리어가 어떤식으로 진행이 되었는지
이 사진을 보시면 아실 수 있으실 것입니다.

바닥은 그레이톤의 대리석 무드 처럼 느껴지는
깔끔한 것으로 진행을 해드렸습니다.

외부전경도 보여드리자면,
이렇게 블랙톤에 조명 포인트입니다.

측면으로 보았을 떄는 이러한 분위기를
느끼실 수 있는 구조입니다.

은근 벽돌 벽과도 잘 어우러져서
클라이언트가 만족한 부분이기도 합니다.
개방감이 느껴지는 문이 있기도 하죠.

내부에 있는 투명한 문으로 제작 된 공간도
용도에 알맞게 실용적으로 쓰실 수 있도록
깔끔하게 설계가 진행이 되었습니다.

전체적으로 어떠한 무드가 느껴지시나요?
한 번에 깔끔하면서도 세련된 그레이톤 인테리어가
보여질 수 있도록 많은 신경을 썼습니다.

그리고 이렇게 투명한 문에 프라이버시를
지켜줄 수 있는 불투명한 스티커를 중앙에 달아주었습니다.

그리고 파티션 또한 오픈형이라서
좀 더 넓게 공간이 보이는 구조이기도 합니다.
그래서 분리는 하되, 너무 닫혀있는 느낌은 들지 않죠.

이렇게 내부와 외부 모두 살펴보았는데,
고객님께서 만족하실만큼의 섬세한 퀄리티가 나온 것 같습니다.

만약 안양사무실인테리어를 고민하고 계시다면,
저희 컨텐츠로 많은 정보를 얻으시길 바랍니다. 감사합니다:)
공사문의 010-3235-8427
▼▼▼포트폴리오 더보기 ▼▼▼
사무실인테리어 디자인 공사 비용견적 플랫폼 - 사무실인테리어 916
사무실인테리어 916
916er.com
2024.10.09 - [사무실인테리어] - 강남구인테리어 기업의 이미지와 미적 공간을 더한
강남구인테리어 기업의 이미지와 미적 공간을 더한
강남구인테리어 기업의 이미지와 미적 공간을 더한 안녕하세요.최근 많은 문의를 받고 있는다양한 강남구인테리어를 살펴보면기업의 특색과 이미지를 미감적인 측면에서개성
dopamine7.com
2024.10.09 - [사무실인테리어] - 강남인테리어 세련되고 우아한 공간의 완성
강남인테리어 세련되고 우아한 공간의 완성
강남인테리어 세련되고 우아한 공간의 완성 안녕하세요, 강남인테리어를 진행하면서 세련되고 우아하게 결과물을 내드리고자 많은 노력을 하고 있습니다. 최근에는 특히 많은 고객
dopamine7.com
2024.10.09 - [사무실인테리어] - 동탄사무실인테리어 업체 결정의 기준 까다롭게 고르세요
동탄사무실인테리어 업체 결정의 기준 까다롭게 고르세요
동탄사무실인테리어 업체 결정의 기준 까다롭게 고르세요 안녕하세요. 동탄사무실인테리어 업체 결정의 기준을 어떻게 잡아야할지 확실한 아이디어가 떠오르지 않아 업체 선
dopamine7.com
'사무실인테리어' 카테고리의 다른 글
| 청라사무실인테리어 효율적이고 세련되게 (5) | 2024.10.14 |
|---|---|
| 부천인테리어업체 좋은 곳을 찾으신다면 (1) | 2024.10.14 |
| 분당인테리어 아름다운 공간 속 새로운 도약 (0) | 2024.10.13 |
| 문정동인테리어 그 아름다운 완성에 대해 (1) | 2024.10.13 |
| 미사인테리어 어떻게 진행하면 좋을까 (1) | 2024.10.12 |
| 향동인테리어 꼼꼼하게 살펴본 세련된 완성본 (0) | 2024.10.12 |
| 남양주인테리어 세련된 공간으로 결정 (2) | 2024.10.12 |
| 강남인테리어 세련되고 우아한 공간의 완성 (0) | 2024.10.11 |
- Total
- Today
- Yesterday
- 학원인테리어디자인
- 오피스인테리어
- 사무실인테리어후기
- 사무실인테리어공사
- 인천사무실인테리어
- 인테리어
- 미용실인테리어
- 사무실인테리어
- 사무실디자인
- 헤어샵인테리어
- 헬스장인테리어
- 사무실인테리어추천
- 사무실인테리어전문
- 지식산업센터인테리어
- 3D디자인
- 사무실인테리어견적
- 피티샵인테리어
- 사무실인테리어디자인
- 사무실인테리어잘하는곳
- 병원인테리어
- 학원인테리어
- 사무실인테리어비용
- 회사인테리어
- 인테리어디자인
- interior
- 3D사무실인테리어
- 상가인테리어
- 사무실인테리어업체
- 사무실리모델링
- 916디자인
| 일 | 월 | 화 | 수 | 목 | 금 | 토 |
|---|---|---|---|---|---|---|
| 1 | 2 | 3 | 4 | 5 | 6 | 7 |
| 8 | 9 | 10 | 11 | 12 | 13 | 14 |
| 15 | 16 | 17 | 18 | 19 | 20 | 21 |
| 22 | 23 | 24 | 25 | 26 | 27 | 28 |
| 29 | 30 | 31 |
