티스토리 뷰
목차
압구정학원인테리어 세세함이 돋보이는 감각적인 구조
안녕하세요.
자녀의 교육을 위해서 3번 집을 옮긴
맹모삼천지교(孟母三遷之敎) 아실 겁니다.
오늘의 압구정학원인테리어도 세세함이
돋보이는 감각적인 구조로 들어가보겠습니다.

아이가 학습에만 몰두할 수 있게끔 색상을
차분하게 잡아주고 기타 장식 등으로
적용하는 방법 등이 있을 겁니다.
벽, 천장, 조명 등 여러 가지 비교하면서
보시면 특유의 재미를 느끼실 겁니다.
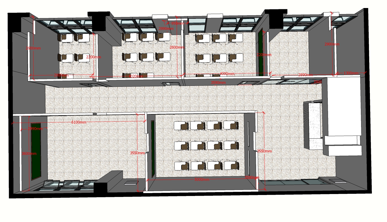
압구정학원인테리어 세세함이 돋보이는 3D디자인 시안


이번 압구정학원인테리어는 아이들의
학업 성적을 올리기 위해 불필요한
요소들은 배제한 채 쾌적함과 집중력을
부르는 환경을 조성하는 데 중점을 뒀습니다.

그리고 상담차 방문해주시는
어머님 아버님들께 깨끗한 이미지로
어필될 수 있게끔 첫 인상에
무게를 두고 공간을 조성했습니다.
압구정학원인테리어 시공 공사 현장 사진

학부모님들도 고려하되 가장 주인공이
되어야 할 사람은 바로 학생들입니다.
그 공간을 향유하면서 배움의 장이
되어야 하기 때문입니다.

그와 동시에 아늑한 집처럼 너무
풀어지지 않는, 약간 긴장감 한 스푼
첨가한 정도의 분위기가 학업에
좋은 영향을 줄 수 있습니다.
압구정학원인테리어 시공 완성 현장

아이들 스스로가 그런 공간에서
상쾌하게 학업에 집중할 수 있는 곳을
원하고 선호하기 때문입니다.

그럼 압구정학원인테리어 공간을
어떻게 효율적으로 조성했는지 함께
설명하며 들여다보겠습니다.

자녀의 교육을 위해 학부모님들이
찾아오시게 되면 제일 처음 닿는 곳은
어디일지 감이 오시나요?
바로 로비와 안내데스크입니다.
사람들이 들어와서 잠시 머무르거나
간단한 대화를 나누게 될 장소라
커뮤니케이션에 원활한 공간이
확보돼야 합니다.


마치 신도시의 의료클리닉에
온 것 같은 깔끔함이 반깁니다.
바닥재도 색상을 통일했기 때문에
굳이 넓직한 공간이 없어도 시원하게
트여있는 느낌입니다.

차가운 화이트가 아닌, 약간의 따스함이
섞인 화이트톤을 메인으로 가져가고
곳곳에 간접조명을 심어놓았기 때문에
분위기가 더 고급스럽고 온기가
느껴지도록 연출했습니다.

압구정학원인테리어에서 원장실이나
상담실도 빼놓을 수 없는 요소입니다.
여기는 직접적인 미팅이 이뤄지는
장소이기 때문에 신뢰성이 중요합니다.


자녀들의 학업성적에 더해서 감정과
멘탈적인 부분도 교육의 한 부분이므로
프라이버시를 보호하기 위해서라도
방음처리이나 시선 차단 필름 등을
시공하는 게 좋습니다.

데스크나 체어는 편안한 분위기에서
대화가 이뤄질 수 있도록 소재가
딱딱하지 않는 게 좋습니다.
그리고 시선도 원장님과 학부모의
눈높이가 동등할 수 있도록 신경써주는
세심함도 필요합니다.


압구정학원인테리어는 조명을
신경써서 연출했습니다.
캘빈수치 4000k-5000k 정도인데
차갑기보단 따뜻함으로 밝혀주면서
물체를 빛굴절이나 왜곡없이 있는 그대로
보기에 도움을 주는 색입니다.

잔잔한 분위기라서 주의력을 높여주므로
독서실 등에서도 주로 쓰이고 있어요.


복도 모습입니다.
입구와 로비, 각 강의실을 잇는
복도도 필요하겠지요.


사람들, 책, 물건 등이 이동할 때에
동선에 제약이 없어야 합니다.
어딘가 뾰족 튀어나왔다거나
움푹 들어가 불안정한 느낌을 주기보다
시원하게 뻗어가는 인상이 중요합니다.


기존에 쓰인 공간보다 좀 더 넓게
복도 구간을 설정해 여러 명이
줄지어도 불편함 없도록 했습니다.
그리고 동일한 컬러로 마감을 해
답답해 보이지 않게 연출하며,
높은 층고의 개방감을 놓치지 않고
조합해 전반적으로 쾌적한 느낌을 줍니다.

로고도 잔잔한 조명을 넣어
디자인해줍니다.
학원의 정체성에 대해서 시각적인 효과도
함께 가져갈 수 있습니다.


안과 밖의 이음새 통로도 세심하게
디장니한 압구정학원인테리어입니다.
들어오는 걸음의 방향성도 고려해
가장 효율적인 동선으로 입구를 냈습니다.

이렇게 압구정학원인테리어 현장을
함께 살펴보았습니다.
이렇게 늘 선생님과 학생들이 동시에
만족감을 느끼실 수 있는 디자인을
만들어내고 있습니다.
작은 장소여도 세심함이 묻어나는 걸
느끼실 수 있을 겁니다.
고민중이시라면 편히 연락주셔서
긴 시간 축적해온 저희의
노하우를 경험해보세요!
공사문의 010-3235-8427
▼▼▼포트폴리오 더보기 ▼▼▼
https://916er.com/category/academy/
Academy - 사무실인테리어 디자인 공사 비용견적 플랫폼
제1조 [목적] 이 약관은 “916디자인”이 온라인으로 제공하는 “콘텐츠” 및 “916디자인” 과 업무계약을 맺은 인테리어 디자인 제휴업체의 “인테리어견적서비스” 이용과 관련한 “9
916er.com
2024.09.02 - [학원인테리어] - 광주학원인테리어 밝고 세련된 공간으로
광주학원인테리어 밝고 세련된 공간으로
광주학원인테리어 밝고 세련된 공간으로 처서가 지나고 더운 여름이 한풀 꺾이는 느낌이 드는 요즘입니다. 가을이 조금씩 다가오는 것 같습니다. 공간인테리어는 그 공간을 드
dopamine7.com
2024.06.21 - [학원인테리어] - 대치동학원인테리어 모두의 디자인
대치동학원인테리어 모두의 디자인
대치동학원인테리어 모두의 디자인 안녕하세요. 학원이라는 공간은 단순히 지식을 전달하는 곳을 넘어, 학생들의 미래를 키워내는 중요한 터전입니다. 따라서 인테리어는
dopamine7.com
2024.09.02 - [학원인테리어] - 20평 학원 인테리어 효율적이고 체계적인 디자인으로 시작
20평 학원 인테리어 효율적이고 체계적인 디자인으로 시작
20평 학원 인테리어 효율적이고 체계적인 디자인으로 시작 안녕하세요.학원 인테리어는 학생들의 학습 효과에 영향을 미치기 때문에 보다 더 쾌적한 환경과 적절한 공간을 구성하
dopamine7.com
'학원인테리어' 카테고리의 다른 글
| 화성학원인테리어 시공 업체의 기준에 따른 깐깐한 포폴 (3) | 2024.09.25 |
|---|---|
| 노원학원인테리어 가치있는 브랜드 이미지 만들어내다 (0) | 2024.09.25 |
| 안산학원인테리어 곳곳을 놓치지 않은 꼼꼼한 디자인 (1) | 2024.09.25 |
| 평택학원인테리어 복잡함을 덜고 심플함으로 화사한 변신 (1) | 2024.09.24 |
| 용산학원인테리어 공간과 집중을 모으는 체계적인 디자인 (2) | 2024.09.23 |
| 서울학원인테리어 비용견적 걱정 없이 편안하게 (0) | 2024.09.19 |
| 역삼동학원인테리어 감각이 돋보이는 최적의 공부존 (0) | 2024.09.19 |
| 송파학원인테리어 예쁘고 세련된 공부 분위기 만들기 (0) | 2024.09.18 |
- Total
- Today
- Yesterday
- 헬스장인테리어
- 사무실인테리어후기
- 사무실리모델링
- 오피스인테리어
- 3D사무실인테리어
- 인테리어
- 사무실인테리어전문
- 사무실인테리어디자인
- 사무실디자인
- 피티샵인테리어
- interior
- 사무실인테리어잘하는곳
- 미용실인테리어
- 사무실인테리어추천
- 3D디자인
- 헤어샵인테리어
- 사무실인테리어비용
- 학원인테리어디자인
- 사무실인테리어공사
- 916디자인
- 학원인테리어
- 병원인테리어
- 상가인테리어
- 회사인테리어
- 지식산업센터인테리어
- 인테리어디자인
- 사무실인테리어견적
- 인천사무실인테리어
- 사무실인테리어
- 사무실인테리어업체
| 일 | 월 | 화 | 수 | 목 | 금 | 토 |
|---|---|---|---|---|---|---|
| 1 | 2 | 3 | ||||
| 4 | 5 | 6 | 7 | 8 | 9 | 10 |
| 11 | 12 | 13 | 14 | 15 | 16 | 17 |
| 18 | 19 | 20 | 21 | 22 | 23 | 24 |
| 25 | 26 | 27 | 28 | 29 | 30 | 31 |
