티스토리 뷰
목차
영등포사무실인테리어 그 아름다운 완성작에 대하여
안녕하세요?
요즘 영등포사무실인테리어 또한 아트적으로
진행을 하시는 ceo 분들이 많습니다.
따라서 금일, 그 아름다운 완성작들에 대하여
상세하게 보여드릴까 합니다.
물론 저희가 진행했던 사례들 중 보여드립니다.
어떠한 식으로 이 과정이 진행이 되는지를
꼼꼼하게 보여드리고자 하는데,
이러한 과정들에 대해서 궁금해하시는 분들께
조금이나마 도움이 될 수 있었으면 좋겠습니다.
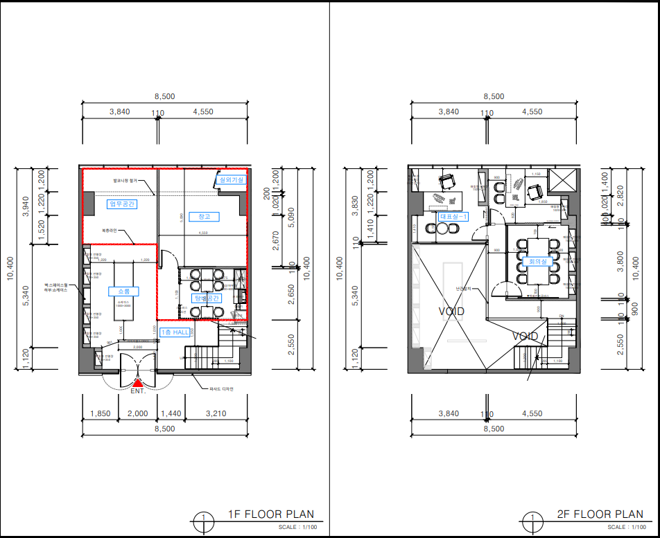
영등포사무실인테리어 3D 디자인 시안

저희는 시작 전, 무조건 3D 도면 과정을 거쳐서
이를 진행을 하기 시작하게 됩니다.
위와 같이 전체적인 공간 구성을 먼저 살펴봅니다.

그 다음으로는 어떻게 이 공간을 구성할것인가?
에 대한 큰 그림부터 작은 디테일까지도
이 과정에서 모두 정하게 됩니다.

더불어 벽지,바닥재 타공 등은 물론이고
가구까지도 어떻게 들어갈지를 함꼐 고민하면서
좀 더 효율적으로 완성될 수 있게 노력합니다.

이 과정을 통해서 내부가 어떻게 변할지를
미리 체크할 수 있어서 디테일적인 부분까지도
미리 신경을 쓸 수 있어서 클라이언트들이
굉장히 신뢰도가 높아지는 과정이기도 합니다.

따라서 저희는 이 도면을 보여드리면서
최대한 많은 피드백을 받고자 합니다.
그래야 시공현장에서 좀 더 효율적인 일처리가 가능해
실수 등이 발생할 확률이 현저히 줄어들기 때문입니다.

이번 진행건 또한 굉장히 우아하고 고급스러운 느낌이라
디테일 부분에서 신경을 많이 써야했기에
초반에 가장 신경을 많이 썼습니다.

고객님이 투자하신만큼의 아름다운 결과물이 나왔으면해서
꼼꼼한 피드백 과정을 거치며 완성해나간 도면입니다.

실측과 잘 맞아 떨어지도록 하는 것은 기본이죠.
영등포사무실인테리어 시공 완성 현장

고객님의 니즈를 도면으로 도식화 한 뒤,
드디어 그 결과물이 세상 밖으로 나오게 되엇습니다.

시공은 영등포사무실인테리어를 전문으로 하시는
업자분들께 맡기고 진행을 했고, 역시 결과가 잘나왔습니다.

이미지를 보시면 아시겠지만 굉장한 디테일들이 많이들어가있는데
이게 고객님의 니즈와 부합하는 것이 굉장히 어려운데
첫 단추를 잘 끼웠기에 무탈하게 완공이 되었다고 보시면 됩니다.

화려한 조명도 잘 어우러지는 것으로 달아드리기 위해
정말 여러 업체들을 발품 팔았습니다.

전체적인 분위기는 이렇게 보시면 됩니다.
굉장히 물건이 많지만 조화롭습니다.

혼잡하지 않지만, 꽉 차 있는 느낌을 낼 수 있는 것도
모두 저희의 계산 하에 이루어진 디자인입니다.

그리고 바닥재는 고급스러운 짙은 우드톤을 활용했고,
약간의 나무 결이 들어가 있어서 더 우아합니다.

전반적으로 모두 그 바닥재를 활용했기 때문에
탕비실 또한 매우 아름답게 보여집니다.

복층의 구조였는데, 계단 또한 고급스러운 무드로
우드톤을 활용해서 제작을 해드렷습니다.
난간의 컬러 등도 잘 고민해서 진행했습니다.

그리고 소파들은 핑크와 화이트톤으로 넣어드려서
영등포사무실인테리어가 부드럽게 풀려보이도록
포인트가 될 수 있게 해드렸습니다.

복층 난간 또한 무광 블랙 컬러로 계단과 잘 어우러지고
고급스러운 무드를 자아내는 것이 특징입니다.

복층으로 올라가면, 좀 더 실용적인 공간들이 펼쳐지니
그에 알맞는 바닥재를 또 바꿔서 활용했습니다.

회의 등을 진행할 수 있는 넓은 공간입니다.
보다 부드러운 분위기를 연출하기 위한 카펫형태의 바닥재,
우드톤의 정렬 등을 보실 수 있습니다.

물건이 워낙 많으신지라, 수납 공간을 최대한
많이 진행을 해드린 영등포사무실인테리어입니다.

아까도 언급했듯이 좀 더 실용적인 공간인만큼
우드톤보다는 좀 더 생활감이 있는 바닥재입니다.

내부 ceo 룸으로 쓰일만한 공간은
좀 더 고급스러우면서도 편안한 느낌을 드렸습니다.
귀여운 핑크 냉장고가 포인트가 됩니다.

이 곳의 키 포인트는 조명인데 느껴지시나요?

외부의 경우에는 조금 다른 느낌으로
붉은 톤을 활용해주었는데 반전효과가 느껴집니다.

폰트 등으로 업장을 설명해주면서 깔끔한 배치가 느껴지죠.

우드톤과 어쩌면 잘 어우러지는 레드톤과 골드글씨입니다.

이렇게 외부 익스테리어까지 잘 완성해드렸습니다.

위와 같이 영등포사무실인테리어를 우아하게 완성해드렸으니,
관심이 있으시면 레퍼런스로 참고를 하셔도 좋습니다.
많은 도움이 되길 바랍니다. 감사합니다~
공사문의 010-3235-8427
▼▼▼포트폴리오 더보기 ▼▼▼
사무실인테리어 디자인 공사 비용견적 플랫폼 - 사무실인테리어 916
사무실인테리어 916
916er.com
2024.10.09 - [사무실인테리어] - 동탄사무실인테리어 업체 결정의 기준 까다롭게 고르세요
동탄사무실인테리어 업체 결정의 기준 까다롭게 고르세요
동탄사무실인테리어 업체 결정의 기준 까다롭게 고르세요 안녕하세요. 동탄사무실인테리어 업체 결정의 기준을 어떻게 잡아야할지 확실한 아이디어가 떠오르지 않아 업체 선
dopamine7.com
2024.09.20 - [사무실인테리어] - 청라사무실인테리어 가치있는 인테리어가 시작되는 곳
청라사무실인테리어 가치있는 인테리어가 시작되는 곳
청라사무실인테리어 가치있는 인테리어가 시작되는 곳 안녕하세요. 사용하기 편한 인테리어, 쓸 수록 가치가 느껴지는 사무실 인테리어는 사무실을 이용하는 직원들에게 아주
dopamine7.com
2024.08.17 - [사무실인테리어] - 분당사무실인테리어 고객님의 선택
분당사무실인테리어 고객님의 선택
분당사무실인테리어 고객님의 선택 안녕하세요, 근래 들어 분당사무실인테리어시공 진행 요청이 많이 들어오는 것 같습니다.대부분 외부 방문객이 많은 경우 아무래도기업의 이미
dopamine7.com
'사무실인테리어' 카테고리의 다른 글
| 강남인테리어업체 회사로비 사무공간이 돋보이는 사무실 포트폴리오 (1) | 2024.11.04 |
|---|---|
| 꼬마 빌딩인테리어 공사 스마트 빌딩의 정석을 보여주는 혁신적인 디자인 (2) | 2024.11.04 |
| 남양주인테리어 법률사무소 오피스 시공은 전문업체와 함께 (0) | 2024.10.25 |
| 종로사무실인테리어 편리한 업무 효율성의 공간 (2) | 2024.10.16 |
| 마포인테리어 코지하고 세련된 공간 (1) | 2024.10.15 |
| 하남인테리어 아름다운 이유는 (0) | 2024.10.15 |
| 용산인테리어 용도에 맞는 확실한 공간으로 (0) | 2024.10.14 |
| 청라사무실인테리어 효율적이고 세련되게 (5) | 2024.10.14 |
- Total
- Today
- Yesterday
- 인테리어디자인
- 지식산업센터인테리어
- 병원인테리어
- 사무실인테리어견적
- 916디자인
- 사무실리모델링
- 사무실디자인
- 사무실인테리어
- 미용실인테리어
- interior
- 학원인테리어디자인
- 사무실인테리어비용
- 사무실인테리어잘하는곳
- 인천사무실인테리어
- 사무실인테리어추천
- 3D사무실인테리어
- 사무실인테리어업체
- 3D디자인
- 헬스장인테리어
- 헤어샵인테리어
- 사무실인테리어디자인
- 사무실인테리어전문
- 상가인테리어
- 인테리어
- 학원인테리어
- 피티샵인테리어
- 사무실인테리어공사
- 사무실인테리어후기
- 오피스인테리어
- 회사인테리어
| 일 | 월 | 화 | 수 | 목 | 금 | 토 |
|---|---|---|---|---|---|---|
| 1 | 2 | |||||
| 3 | 4 | 5 | 6 | 7 | 8 | 9 |
| 10 | 11 | 12 | 13 | 14 | 15 | 16 |
| 17 | 18 | 19 | 20 | 21 | 22 | 23 |
| 24 | 25 | 26 | 27 | 28 | 29 | 30 |
| 31 |
