티스토리 뷰
목차
안녕하세요. 916디자인입니다. 이번에 소개해 드릴 현장으로는 예쁜 60평 헬스장인테리어로 고급스럽게 완성된 공간으로 확인해 보실 수 있습니다. 상업 인테리어를 전문적으로 하는 916디자인의 고퀄리티 사례로 자세한 현장 지금부터 살펴보시겠습니다.
★3D

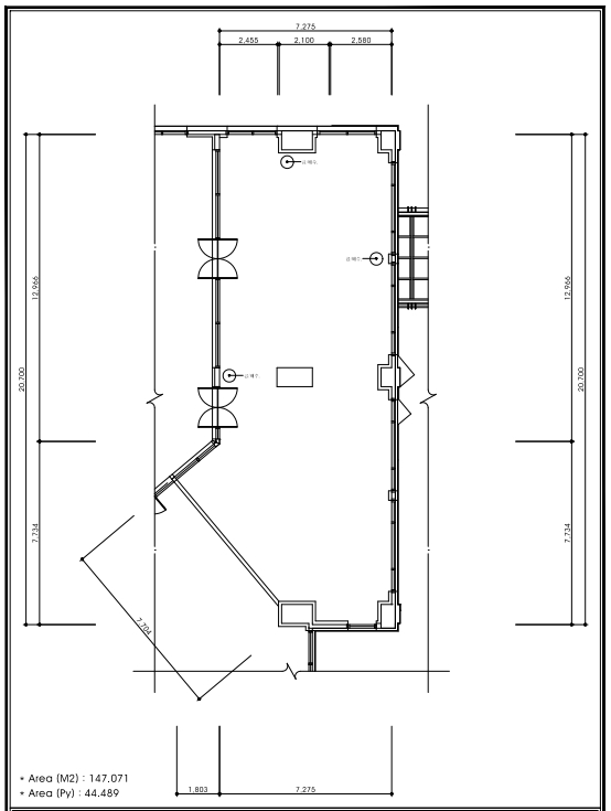
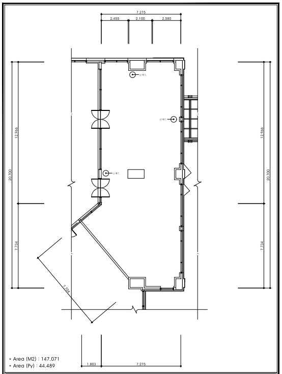
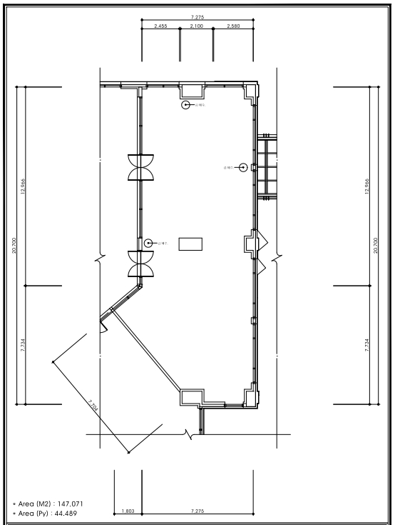
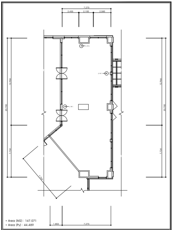
이번 예쁜 60평 헬스장인테리어 전체 도안입니다. 전체적인 동선과 구조 그리고 배치 등을 신경 써서 진행하였으며 편리하게 이용하실 수 있도록 설계를 신경 써 드렸습니다.


매장 입구에 들어서면 가장 먼저 보이는 공간입니다. 헬스장 네이밍이 잘 보이도록 윗부분에 간접조명을 두어 포인트를 주었습니다. 바닥은 대리석 느낌의 패턴 타일을 깔았으며 고급스러운 느낌이 들 수 있도록 골드와 그레이를 섞어 표현하였습니다.


헬스장 메인 공간으로 네이비 컬러를 기본 베이스로 하고 골드 프레임을 포인트를 주어 공간을 고급스럽게 만들어 드렸습니다. 천장에는 레일 조명을 넣어 멋스러움을 표현하였습니다. 그리고 각 공간으로 들어가는 도어는 깔끔한 화이트로 진행하여 심플 모던한 분위기를 보여주고 있습니다.



헬스장 입구에서 들어와서 보이는 메인 공간에서 안쪽으로 들어오면 만나 볼 수 있는 공간입니다. 앞서 보신 공간과 다르게 어두운 느낌의 콘셉트로 진행하였으며 전체적으로 다크 그레이 컬러를 사용하여 공간에 무게감을 주었습니다. 너무 어둡지 않도록 간접 조명과 레일 조명을 더하여 조도를 높여 드렸습니다.

욕실 공간입니다. 샤워할 수 있는 공간은 부스로 마련하여 분리하였으며 화장실 사용 공간과 파우더룸으로 사용할 수 있는 공간까지 분리하여 구성해 주었습니다. 전체적인 인테리어 분위기와 어울리도록 비슷한 느낌으로 디자인을 진행해 드렸습니다.


매장 입구 벽면에는 벽돌 느낌의 디자인으로 진행하여 빈티지한 분위기를 연출하였으며 브랜드 네이밍과 로고가 눈에 잘 띄도록 간접 조명을 더하여 특별한 디자인으로 연출을 해주었습니다. 그로 인해 입구에서부터 고급스러운 느낌을 만나 보실 수 있습니다.
★현장 진행


3D 도안을 통해 전체적인 인테리어 콘셉트와 분위기 그리고 디자인을 살펴보았습니다. 고객님의 니즈를 정확하게 파악하여 인테리어를 진행하고 있습니다. 시공 전에 3D로 인테리어 결과물을 미리 확인해 볼 수 있어 원하시는 결과를 확실하게 만나 보실 수 있습니다. 3D 도안을 통해 진행하게 되면 보완해야 할 사항이나 수정해야 할 부분도 정확하게 파악할 수 있기 때문에 완성도 높은 공간으로 확인해 보실 수 있습니다.

고객만족을 최우선으로 생각하는 916디자인에서는 완벽한 결과물을 보여드리기 위해 차별화된 시공 능력을 통해 진행하고 있습니다. 또한 노하우와 경험이 풍부하여 원하시는 결과물을 완벽하게 만나 보실 수 있습니다.


꼼꼼한 시공 능력으로 차별화된 공간으로 만나 보실 수 있으며 모든 부분 디테일하게 작업자들이 직접 진행하고 있어 완성된 결과물을 보시면 만족스러우실 겁니다. 전문가의 눈으로 봤을 때에 만족할 수 있는 인테리어로 만들어 드리기 위해 최선을 다하고 있습니다.

공간을 효율적이게 사용할 수 있도록 설계하고 시공하고 있으며 누구나 만족스러워할 만한 인테리어로 만들어 드리고 있습니다. 주거 인테리어와 다르게 상업 인테리어의 경우 매장 특성을 고려하여 맞춤형 설계를 진행해야 합니다. 916디자인은 상업 및 매장 인테리어만을 전문적으로 하고 있으며 전문성을 띠고 있어 만족스러운 결과를 확실하게 만나 보실 수 있습니다.


작업 이후 마무리까지 완벽하게 처리해 드리는 916디자인입니다. 예쁜 60평 헬스장인테리어의 높은 완성도를 위해 시공 후 마무리까지 완벽하게 해드리고 있으며 깨끗하고 완벽한 공간을 위해 청소 서비스까지 보여드리고 있습니다. 모든 마무리가 끝난 이후에도 부족한 부분이 없는지 꼼꼼하게 확인해 보며 시공을 완료하였습니다.
★공사 완료



모든 작업이 완료된 예쁜 60평 헬스장인테리어 입니다. 입구에서부터 간접조명이 매력적인 디자인을 보여주는 헬스장을 마나 보실 수 있습니다. 벽돌의 질감과 디자인이 주는 빈티지한 느낌에 고급스러운 네이밍 디자인과 간접 조명이 입구를 매력적이게 만들어 주고 있습니다.

매장 입구는 통유리로 진행하고 다크 그레이 프레임을 더하여 무게감을 주었습니다. 입구 옆에는 매장 이름과 로고를 넣고 간접조명을 더하여 멋스럽게 완성시켜 드렸습니다.

밖에서 안쪽 헬스장 공간을 봤을 때 고급스러움이 물씬 느껴지는 모습입니다. 은은한 간접 조명이 공간을 화사하게 비춰주고 있어 인테리어의 매력을 높여 주고 있습니다.

매장 안쪽의 벽면은 앞서 보신 3D 도안과 똑같이 네이비 컬러에 골드 컬러를 프레임으로 진행하여 고급스러운 느낌을 보여주고 있습니다. 거기에 천정 부분에는 간접조명을 더하여 화사하게 연출해 주었습니다.

매장 입구에 들어서면 보이는 카운터 모습입니다. 벽면에는 그레이 컬러의 벽타일을 넣어 모던한 모습과 함께 카운터는 골드빛의 테이블을 넣어 멋스러운 공간으로 완성하였습니다.

카운터를 지나 보이는 예쁜 60평 헬스장인테리어 모습입니다. 바닥은 대리석 느낌의 질감이 돋보이는 타일을 넣어 드렸으며 레일 조명이 공간은 은은하면서 화사하게 만들어 주고 있습니다.

앞서 보셨지만 각 공간으로 들어가는 문은 화이트 도어로 깔끔하게 진행하였으며 손잡이는 블랙 컬러를 넣어 포인트를 주었습니다. 벽면을 비추는 간접등이 공간을 매력적이게 만들어 주고 있습니다.


전체적으로 고급스러운 분위기와 함게 화사한 느낌을 보여주고 있는 모습입니다. 곳곳에 포인트가 되는 컬러의 조합을 잘 맞추어 전체적으로 밸런스가 맞는 모습을 보여주고 있으며 동선도 편하여 운동하기 좋은 공간으로 완성되었습니다.

916디자인에서는 공간마다 특징을 고려하여 설계 및 디자인을 진행하고 있으며 고객님의 니즈를 반영하여 완성도 높은 공간으로 만들어 드리고 있습니다. 풍부한 경험과 노하우 그리고 차별화된 실력을 보유하고 있는 곳으로 어떤 공간이라도 원하시는 인테리어로 보여드리고 있습니다. 실내공간을 조금 더 특별하게 만들어 보고 싶으시다면 916디자인과 함께해 보시기 바랍니다.
공사문의 010-3235-8427
포트폴리오 바로가기▶916er.com/
전화주시면 간단한 비용견적 상담부터 현장방문 미팅까지 진행하고 있습니다. 연락주세요.
2021.02.04 - [피티샵 헬스장인테리어] - 휘트니스 헬스장 피티샵인테리어 공사진행과정
휘트니스 헬스장 피티샵인테리어 공사진행과정
PT샵 피티샵 헬스장인테리어 3D부터 공사완료까지 안녕하세요 여러분 반갑습니다 916 디자인 입니다. 이번 현장은 부천에 위치한 피티샵인테리어 공사현장 입니다. 디자인부터 작업과정 그리고
dopamine7.com
2020.02.03 - [피티샵 헬스장인테리어] - 100평 체육관 피티샵 헬스클럽인테리어 마감현장
100평 체육관 피티샵 헬스클럽인테리어 마감현장
헬스장인테리어 공사에 대한 내용은 항상 많은 고객님께서 많이 여쭤보시는 부분이 있습니다. 바로 비용견적에 대한 내용인데요 본론부터 말씀을 드리자면 평당 금액으로 산출을 하였을때 평
dopamine7.com
2019.09.30 - [피티샵 헬스장인테리어] - pt 헬스장 피티샵인테리어 소형평수 모던 예쁜디자인 마감현장
pt 헬스장 피티샵인테리어 소형평수 모던 예쁜디자인 마감현장
안녕하세요 여러분 구일육 디자인 입니다. 오늘은 작은 소형평수의 헬스장 pt 피티샵인테리어 현장 소개하도록 하겠습니다. 저희 916 design에서는 운동공간을 전문적으로 공사를 진행하고 있으면
dopamine7.com
2019.08.01 - [피티샵 헬스장인테리어] - pt 피티샵 헬스장인테리어 모던디자인 컨셉연출
pt 피티샵 헬스장인테리어 모던디자인 컨셉연출
헬스장 pt피티샵인테리어 현장진행 헬스장 휘트니스 클럽 pt 피티샵인테리어를 주로 많이 진행을 하고 있습니다. 요즘에는 여성회원분들의 비중이 높아지면서 빈티지한 컨셉보다는 모던한 연출
dopamine7.com
2019.05.27 - [피티샵 헬스장인테리어] - 빈티지 pt피티샵 헬스장인테리어 마감
빈티지 pt피티샵 헬스장인테리어 마감
안녕하세요 여러분 구일육 입니다. 오늘은 빈티지하면서도 모던한 연출의 pt피티샵 헬스장인테리어 현장 소개하도록 하겠습니다. 노출 그대로의 멋을 표현 하였습니다. 철거를 진행한뒤 그대로
dopamine7.com
'피티샵 헬스장인테리어' 카테고리의 다른 글
| 청라 송도 배곧 대규모 헬스장인테리어, 60평 70평 2개층 평당비용 및 공사비 (0) | 2021.04.23 |
|---|---|
| 40평 50평 60평 모던한 필라테스인테리어와 피티샵을 한공간에 디자인설계한 시공사례 (0) | 2021.04.05 |
| 10평 20평 30평 피티샵인테리어 디자인 설계, 소형평수도 모던하게 연출! (0) | 2021.04.01 |
| 모던디자인 휘트니스인테리어 사진 다양하게 확인하자! (0) | 2021.03.24 |
| 휘트니스 헬스장 피티샵인테리어 공사진행과정 (1) | 2021.02.04 |
| 블루포인트 pt 피티샵인테리어 헬스장공사 현장 (0) | 2020.12.11 |
| pt피티샵 헬스장인테리어 클래식 디자인컨셉 연출제안 (0) | 2020.11.24 |
| 100평 체육관 피티샵 헬스클럽인테리어 마감현장 (0) | 2020.02.03 |
- Total
- Today
- Yesterday
- 학원인테리어
- 916디자인
- 미용실인테리어
- 사무실인테리어후기
- 사무실인테리어업체
- 사무실인테리어디자인
- 지식산업센터인테리어
- 사무실인테리어잘하는곳
- 인천사무실인테리어
- 병원인테리어
- 인테리어
- 사무실인테리어전문
- 사무실디자인
- 피티샵인테리어
- 사무실인테리어비용
- 3D사무실인테리어
- 인테리어디자인
- 사무실인테리어추천
- 학원인테리어디자인
- 사무실인테리어
- 헤어샵인테리어
- 사무실리모델링
- interior
- 회사인테리어
- 사무실인테리어공사
- 3D디자인
- 상가인테리어
- 헬스장인테리어
- 오피스인테리어
- 사무실인테리어견적
| 일 | 월 | 화 | 수 | 목 | 금 | 토 |
|---|---|---|---|---|---|---|
| 1 | ||||||
| 2 | 3 | 4 | 5 | 6 | 7 | 8 |
| 9 | 10 | 11 | 12 | 13 | 14 | 15 |
| 16 | 17 | 18 | 19 | 20 | 21 | 22 |
| 23 | 24 | 25 | 26 | 27 | 28 | 29 |
| 30 |
