티스토리 뷰
목차
근래에 상업공간 인테리어 문의가 많아지고 있습니다.
그중에서도 약국 공간디자인 관련하여 많은 클라이언트 분들이 연락을 주고 계신데요.
이에 맞춰 옥정상가인테리어 약국 시공 비용과 디자인 구성요소들을 알려드리도록 하겠습니다.
관심있으신 분들은 끝까지 읽어주시기 바랍니다.
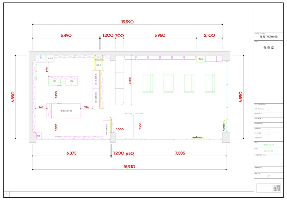
옥정상가인테리어 약국 디자인 시 고려해야 할 요소



고객 유치와 매출 증개를 위해서는 옥정상가인테리어 약국 디자인 구성이 매우 중요합니다.
아래는 상가인테리어 약국과 같이 상업 공간을 구성할 때 고려해야 할 몇 가지 요소입니다.
먼저, 고객의 이동 경로를 고려하여 매장 내부의 동선을 계획해야 합니다.
고객이 편리하게 이동할 수 있도록 통로를 충분히 확보하고, 상품 진열대나 계산대 등 주요 시설을 배치할 때 고객의 시선과 움직임을 고려해야 합니다.


그리고 조명은 매장의 분위기를 결정하는 중요한 요소입니다.
밝은 조명은 고객의 시선을 끌고 상품을 돋보이게 하며, 어두운 조명은 편안하고 아늑한 분위기를 조성할 수 있습니다.
또한, 상품의 종류에 따라 적절한 조명을 선택하여 효과를 극대화할 수 있습니다.



색채는 매장의 이미지와 분위기를 결정하는 중요한 요소입니다.
주조색과 보조색을 적절히 조합하여 매장의 이미지를구축하고, 계절이나 이벤트에 따라 색채를 변화시켜 고객의 관심을 끌 수 있습니다.
상가 약국 내부에 배치하는가구와 소품은 매장의 분위기를 완성하는 중요한 요소입니다.
고객의 편의를 고려하여 의자나 테이블 등을 배치하고, 소품을 활용하여 개성을 표현할 수 있습니다.



마지막으로 한정된 공간을 효율적으로 활용하기 위해서는 공간 활용도를 높이는 것이 중요합니다.
복층 구조나 수납공간 등을 활용하여 공간을 최대한 활용하고, 고객의 시선을 끌 수 있는 디스플레이를 활용하여 공간을 입체적으로 구성할 수 있습니다.
이러한 요소들을 고려하여 옥정상가인테리어 약국 내부 공간을 구성하면, 고객에게 쾌적한 편리한 환경을 제공할 수 있으며, 매출 증대에도 도움이 될 수 있습니다.
옥정상가인테리어 약국 디자인 트렌드



최근 옥정상가인테리어 약국 디자인에서는 다음과 같은 트렌드가 나타나고 있습니다.
자연친화적인 소재와 컬러를 활용하여 편안하고 안정적인 분위기를 조성하는 것이 인기를 끌고 있습니다.
우드소재나 그린 계열의 컬러를 활용하여 자연스러운 느낌을 연출하거나, 식물을 활용하여 친환경적인 부위기를 조성하기도 합니다.
그리고 간결하고 심플한 미니멀리즘 디자인으로 공간을 넓어 보이게 하고, 깔끔한 느낌을 주는 것이 특징입니다.
불필요한 장식을 최소화하고, 화이트나 베이지 등의 컬러의 활용하여 모던한 분위기를 연출합니다.
또한, 개방형 구조를 채택하여 고객과의 소통을 강화하고, 대기 시간을 줄이는 것이 추세입니다.
유리벽이나 오픈형 디자인을 활용하여 개방감을 높이고, 고객이 쉽게 접근할 수 있도록 설계합니다.




마지막으로 디지털 기술을 활용하여 고객 서비스를 개선하고, 편의성을 높이는 것이 주목받고 있습니다.
키오스크나 스마트폰 앱 등을 활용하여 결제나 처방전 관리 등을 간편하게 처리할 수 있으며, 디지털 사이니지를 활용하여 광고나 정보를 제공할 수 있습니다.
이와 같은 트렌드를 반영하여 옥정상가인테리어 약국 디자인을 하면, 브랜드 이미지를 강화할 수 있습니다.
옥정상가인테리어 약국 시공 비용 결정요인



옥정상가인테리어 약국 시공 비용은 다양한 요인에 따라 결정되는데, 아래는 약국 인테리어 시공 비용에 영향을 미치는 주요 요인들입니다.
먼저, 공간의 크기가 클수록 시공 비용이 증가합니다.
이는 자재와 인력이 더 많이 필요하기 때문입니다.
또, 디자인 요소가 복잡하거나 고급스러울수록 시공 비용이 높아집니다.
예를 들어 특수 조명, 고급 마감재, 맞춤형 가구 등은 일반적인 디자인 요소보다 비용이 많이 듭니다.




그리고 시공 업체의 결력과 실력에 따라 시공 비용이 달라질 수 있습니다.
경험이 풍부하고 실력이 좋은 업체일수록 시공 품질이 높아지고, 비용이 절감될 수 있습니다.
약국 인테리어 시공 시 자재 비용은 시공 비용에 큰 영향을 미칩니다.
고급 자재를 사용할수록 비용이 높아지며, 같은 자재라도 브랜드나 원산지에 따라 가격이 다를 수 있습니다.




마지막으로 시공 기간이 길어질수록 인건비와 부대비용이 증가하므로, 시공 비용이 높아질 수 있으며, 전기 설비, 배관 공사 등 부수적인 작업이 필요한 경우 추가 비용이 발생할 수 있습니다.
이러한 요인들을 고려하여 예산을 수립하고 적절한 시공 업체를 선택하는 것이 중요합니다.
충분한 협의를 통해 불필요한 비용을 최소화하고, 만족스러운 결과물을 얻을 수 있도록 노력해야 합니다.
이렇게 옥정상가인테리어 약국 시공 사례를 통해 비용을 결정하는 요인과 디자인 구성요소들을 살펴보았습니다.
같은 업종이라도 지역, 규모, 원하시는 디자인 등에 따라 견적이 달라질 수 있기 때문에 정확한 비용 및 상담을 원하신다면 언제든지 저희에게 문의해 주시기 바라겠습니다.
친철한 상담 도와드리겠습니다.
☎인테리어 상담 신청
010- 3235- 8427
▽포트폴리오 더보기
사무실인테리어 디자인 공사 비용견적 플랫폼 - 사무실인테리어 916
사무실인테리어 916
916er.com
2025.05.21 - [미용실인테리어] - 안성상가인테리어 시크한 분위기의 헤어샵을 원하신다면
안성상가인테리어 시크한 분위기의 헤어샵을 원하신다면
안성상가인테리어는 다양한 스타일과 분위기로 고객의 눈길을 사로잡고 있습니다. 특히 헤어샵은 단순히 머리를 자르는 공간이 아닌, 고객이 자신을 표현하는 중요한 장소로 자리잡고 있죠.그
dopamine7.com
2025.05.21 - [스시집 초밥집 이자카야인테리어] - 성수상가인테리어 개인 로스팅 로스터리카페 소품으로 특색있는 디자인 시공하기
성수상가인테리어 개인 로스팅 로스터리카페 소품으로 특색있는 디자인 시공하기
요즘 카페는 음료를 제공하는 공간 이상의 의미를 지니고 있습니다. 특히 성수동의 로스터리 카페들은 개성과 독특함을 더욱 부각시키고 있는데요. 성수상가는 그 자체로도 매력이 넘치는 곳인
dopamine7.com
2025.05.13 - [인테리어이야기] - 양재상가인테리어 현대적인 디자인을 조화롭게 활용한 한식당 시공 사례
양재상가인테리어 현대적인 디자인을 조화롭게 활용한 한식당 시공 사례
현대적인 인테리어 디자인이 빠르게 발전하면서, 음식점의 디자인 또한 그 길을 따라가고 있습니다. 특히, 한식당은 전통과 현대가 어우러지는 독특한 매력을 갖고 있죠. 양재상가인테리어는
dopamine7.com
2025.04.11 - [병원인테리어] - 송파상가인테리어 화려한 색채로 눈에 띄는 약국 디자인 공사 후기
송파상가인테리어 화려한 색채로 눈에 띄는 약국 디자인 공사 후기
요즘은 상가인테리어에서 화려한 디자인이 대세라고 할 수 있어요. 특히 약국과 같은 의료 서비스 제공 공간에서도 예전과는 다른 변화를 많이 보여주고 있죠. 이번에 저희가 공사를 진행한
dopamine7.com
'인테리어이야기' 카테고리의 다른 글
| 건물리모델링 및 대수선 공사 주요 내역 및 시공 방법 (5) | 2025.07.11 |
|---|---|
| 로또 복권방인테리어 창업 손님이 줄서게 만드는 디자인 아이디어 (1) | 2025.07.11 |
| 영등포인테리어업체 최신 트렌드 접목 사무실 디자인 연출 기법 (2) | 2025.05.27 |
| 포천상가인테리어 미용실 공간 구성 어떻게 하면 좋을까 (0) | 2025.05.26 |
| 양재상가인테리어 현대적인 디자인을 조화롭게 활용한 한식당 시공 사례 (0) | 2025.05.13 |
| 경미한 교통사고 100대0 합의금 책정 방법과 계산 기준은 (0) | 2025.02.19 |
| 봄방학여행지추천 국내 아이와 함께 가기 좋은 도시 best 3 (0) | 2025.02.14 |
| 2월축제 겨울이 끝나기 전 가봐야할 전국 행사 안내 (0) | 2025.02.14 |
- Total
- Today
- Yesterday
- 3D사무실인테리어
- 3D디자인
- 사무실디자인
- 사무실인테리어후기
- 사무실인테리어공사
- 학원인테리어디자인
- 병원인테리어
- 사무실인테리어견적
- 헤어샵인테리어
- interior
- 학원인테리어
- 사무실인테리어전문
- 회사인테리어
- 사무실인테리어디자인
- 사무실인테리어추천
- 사무실인테리어
- 오피스인테리어
- 사무실인테리어업체
- 사무실인테리어잘하는곳
- 사무실인테리어비용
- 인테리어디자인
- 미용실인테리어
- 인테리어
- 피티샵인테리어
- 916디자인
- 상가인테리어
- 인천사무실인테리어
- 지식산업센터인테리어
- 사무실리모델링
- 헬스장인테리어
| 일 | 월 | 화 | 수 | 목 | 금 | 토 |
|---|---|---|---|---|---|---|
| 1 | 2 | 3 | 4 | |||
| 5 | 6 | 7 | 8 | 9 | 10 | 11 |
| 12 | 13 | 14 | 15 | 16 | 17 | 18 |
| 19 | 20 | 21 | 22 | 23 | 24 | 25 |
| 26 | 27 | 28 | 29 | 30 |



