티스토리 뷰
목차
잠실 여의도 운정 미장원인테리어, 작은 미용실 디자인 설계 및 싸게하기
안녕하세요 916디자인입니다. 이번에 소개해드릴 것은 잠실 여의도 운정 미장원인테리어 입니다. 작은 미용실이지만 공간의 구성을 살린 디자인 설계를 통해서 작업을 진행해드리고 있으며 이를 통한 설계작업을 싸게 해드리고 있습니다. 저희 916 디자인은 잠실 여의도 운정에서 시공작업을 진행해드렸습니다. 클라이언트와의 조율, 상담을 통해서 작업을 진행히드리고 있으니 이에 대해서 관심이 있으신 분들이 있아면 문의주시길 바랍니다.
3D

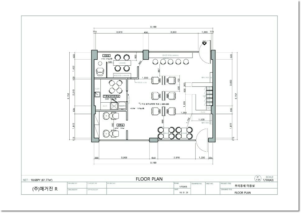
미장원 인테리어의 시공 도안입니다. 저희는 작은 미용실이라고 할지라도 공간의 특색을 살려서 총 4개의 공간으로 분리하여 나누어 보았습니다. 공간의 구성 배치를 통해서 이를 보완해보았으며 남는 동선이 없이 배치를 한 공간 구성을 좁은 미장원을 조금더 효율적인 공간배치를 통해서 이를 살려보았습니다. 인테리어 구성과 배치를 통한 공간 창줄의 저희만의 전문성이기도 합니다.

미장원의 ISO 입니다. 화이트톤의 색감을 이용해서 외벽을 구성해보았으며 바닥 인테리어는 이를 보완하고 미장원을 이용하는 고객의 마음이 한층 더 편안하게 될 수 있도록 연한 베이지 톤의 색감을 이용해서 바닥 인테리어를 해보았습니다. 가구 인테리어 배치또한 이와 같은 공간의 구성 배치를 통해서 조금더 효율적인 공간 배치를 해보았습니다.


미장원 ISO 의 옆에서 본 모습입니다. 내부 외벽같은 경우에는 위에서 설명을 드렸듯이 화이트톤의 색감을 이용해서 이를 배치해보았습니다. 외부에서 본 외벽 같은 경우에는 유리 소재를 이용해서 이와 같은 공간구성을 해보았으며 공간의 분리성 또한 가벽 배치를 통해서 이를 나눠보았습니다. 좁은 공간의 인테리어는 가벽배치를 어떻게 하느냐에 따라서 상대적으로 좁아보일 수 있습니다. 하지만 저희는 이런 부분을 공간 개방성을 살려서 이를 살려보았습니다.
공사 완료



미장원의 내부 전경입니다. ISO에서 설명을 해드렸듯이 전체적으로 정돈되고 깔끔한 분위기의 미장원이 인테리어 디자인 되었습니다. 화이트톤의 색감을 살린 외벽과 베이지톤의 색감을 살린 바닥은 색감의 조화를 통해서 미장원의 분위기를 한층 더 편안하게 만들어주고 있으며 이를 갈색톤의 색감을 살린 가구 인테리어를 통해서 보완하고 있습니다.

미장원의 외부 전경 모습입니다. 유리 인테리어를 사용해서 공간의 개방성을 강조해 보았으며 유리 외벽의 윗 부분에는 기업의 로고를 달아서 분위기를 살려보았습니다. 기업의 로고 또한 갈색 바탕의 금색의 소재를 사용하여서 디자인해보았습니다. 갈색톤의 색감은 미장원 내부의 분위기와의 통일성을 느끼게 하기 위해서 넣어 보았으며 금색 소재는 고객이 로고를 조금 더 눈여겨 볼 수 있도록 구성해보았습니다.





미장원 작업 공간의 내부 모습입니다. 3D 도안에서 보셨듯이 정돈된 분위기의 색깔의 조화가 작업자와 작업을 받는 고객의 마음을 한번에 편안하게 만들고 있습니다. 작업에 이용이 되는 거울 또한 색을 이용해서 보다 더 눈에 띄게 구성하였습니다. 이는 헤어 작업을 하는 작업자도 작업을 하는데 있어서 편안하게 할 수 있도록 도와주고 있으며 고객도 본인의 자리를 잘 찾아갈 수 있도록 시선 분산을 막은 것입니다.




미장원의 안내데스크 모습입니다. 안내데스크는 출입문을 통해서 들어온 고객이 가장 먼저 발견하고 찾아가야 하는 곳입니다. 그렇기에 눈에 당연하게 띄어야만 하며 공간의 통일성을 생각하다가 이런 부분을 놓치게 된다면 샵을 이용하는 고객에게 불편함을 선사할 수가 있습니다. 저희는 이런 부분의 가구 인테리어를 기존의 베이지톤의 색보다는 한층 더 진한 색을 이용하여 인테리어 디자인 해보았습니다.



미장원 내부 모습은 전체적으로 우아한 분위기가 조성된 것을 보실 수 있으실 것입니다. 이는 웨인스코팅의 몰딩 기법을 사용하여 미장원 내부가 마치 유럽에 온 듯한 느낌을 받을 수 있도록 공간 배치를 한 것입니다. 이전까지는 내부 온열의 필요성으로 쓰였던 몰딩 기법이 이제는 좁은 미장원을 조금 더 우아하게 만들 수 있도록 디자인 구성을 도와주었습니다.




이와 같은 분위기 조성에 마무리를 한 것은 바로 조명이 있습니다. 조명은 공간의 색감을 부각을 시켜서 샵 내의 분위기와 특색을 잡을 수 있도록 도와주는 역할을 하고 있습니다. 저희는 이러한 조명을 공간의 특색에 따라서 각기 다르게 선택하였습니다. 작업 공간 같은 경우에는 고객이 거울을 이용하는데 불편함이 없도록 설치하였고 안내데스크와 휴게 공간은 편안함이 느껴지도록 조명을 설치하였습니다.

저희 916 디자인은 이와 같은 작은 미용실 디자인을 고급진 느낌의 인테리어를 통해서 시공 작업을 해보았습니다. 저희는 좁은 사무실이라도 공간 배치를 통해서 효율적인 인테리어를 해드리고 있으니 이를 원하시는 분들은 믿고 문의해주신다면 친절하게 상담해드리도록 하겠습니다.
#미장원인테리어 #미장원인테리어싸게하기
공사문의 010-3235-8427
포트폴리오 바로가기▶salon916.com/
전화주시면 간단한 비용견적 상담부터 현장방문 미팅까지 진행하고 있습니다. 연락주세요.
2021.04.22 - [미용실인테리어] - 서대문 동대문 신내동 헤어샵인테리어 소규모 매장 리모델링 공사비
서대문 동대문 신내동 헤어샵인테리어 소규모 매장 리모델링 공사비
서대문 동대문 신내동 헤어샵인테리어 소규모 매장 리모델링 공사비 안녕하세요 916디자인입니다. 오늘 소개해드릴 것은 서대문 동대문 신내동 헤어샵인테리어입니다. 소규모의 매장일지라도
dopamine7.com
2021.04.21 - [미용실인테리어] - 시흥 안산 안양 지역 30평 40평 내츄럴 뷰티샵인테리어, 저렴한 공사비 견적
시흥 안산 안양 지역 30평 40평 내츄럴 뷰티샵인테리어, 저렴한 공사비 견적
시흥 안산 안양 지역 30평 40평 내츄럴 뷰티샵인테리어, 저렴한 공사비 견적 안녕하세요 916디자인입니다. 오늘 소개해드릴 곳은 시흥 안산 안양 지역 30평 40평 내츄럴 뷰티샵인테리어 입니다. 저
dopamine7.com
2021.04.20 - [미용실인테리어] - 하남 미사 소규모 네일샵인테리어 시공회사, 깔끔한 내부 공사비 무료견적과 사례
하남 미사 소규모 네일샵인테리어 시공회사, 깔끔한 내부 공사비 무료견적과 사례
하남 미사 소규모 네일샵인테리어 시공회사, 깔끔한 내부 공사비 무료견적과 사례 안녕하세요 916디자인입니다. 이번에 소개해드릴 곳은 하남 미사 소규모 네일샵인테리어 입니다. 저희 916 디자
dopamine7.com
2021.04.19 - [미용실인테리어] - 명동 강동 서대문 미용실인테리어 컨셉, 소규모 평수 사례와 무료견적 확인하기
명동 강동 서대문 미용실인테리어 컨셉, 소규모 평수 사례와 무료견적 확인하기
명동 강동 서대문 미용실인테리어 컨셉, 소규모 평수 사례와 무료견적 확인하기 안녕하세요 916디자인입니다. 이번에 소개해드릴 것은 명동 강동 서대문 미용실인테리어 컨셉입니다. 저희 916 디
dopamine7.com
2021.04.17 - [미용실인테리어] - 고양 일산 헤어샵인테리어 깔끔한 스타일링 컨셉으로 저렴한 시공비 10평 12평 15평 견적
고양 일산 헤어샵인테리어 깔끔한 스타일링 컨셉으로 저렴한 시공비 10평 12평 15평 견적
고양 일산 헤어샵인테리어 깔끔한 스타일링 컨셉으로 저렴한 시공비 10평 12평 15평 견적 안녕하세요 916디자인입니다. 오늘 소개해드릴 곳은 고양 일산 헤어샵인테리어입니다. 저희 916
dopamine7.com
'미용실인테리어' 카테고리의 다른 글
| 안산 안양 의왕 미용실인테리어, 화이트 골드 포인트 연출로 예쁜 디자인 사례 (0) | 2021.06.04 |
|---|---|
| 인천 김포 마곡 1인샵 미용실인테리어, 작은 평수 10평 12평 견적 사례 (0) | 2021.06.03 |
| 수원 영통 광교 미용실인테리어, 헤어샵 디자인 설계 도면 (0) | 2021.06.02 |
| 송도 배곧 미용실인테리어 깔끔한 우드톤 디자인 소형평수 설계 (0) | 2021.06.01 |
| 수원 동탄 네일샵인테리어, 소형 1인샵 8평 10평 12평 규모 시공비 (0) | 2021.04.29 |
| 시흥 안산 안양 럭셔리 클래식 스타일 네일샵인테리어 싸게하기 (0) | 2021.04.27 |
| 남양주 별내 네일샵 창업시 참고해야할 평당인테리어비용 (0) | 2021.04.26 |
| 구로 가산동 금천구 8평부터 20평 헤어샵인테리어 (0) | 2021.04.24 |
- Total
- Today
- Yesterday
- 학원인테리어
- 미용실인테리어
- 사무실인테리어
- 인테리어
- 피티샵인테리어
- 3D디자인
- 사무실인테리어잘하는곳
- 사무실인테리어추천
- 사무실인테리어전문
- 학원인테리어디자인
- 사무실인테리어공사
- 회사인테리어
- 헤어샵인테리어
- 사무실리모델링
- 상가인테리어
- 사무실디자인
- 사무실인테리어비용
- 헬스장인테리어
- 사무실인테리어견적
- 사무실인테리어디자인
- 3D사무실인테리어
- interior
- 916디자인
- 사무실인테리어업체
- 오피스인테리어
- 인천사무실인테리어
- 인테리어디자인
- 사무실인테리어후기
- 지식산업센터인테리어
- 병원인테리어
| 일 | 월 | 화 | 수 | 목 | 금 | 토 |
|---|---|---|---|---|---|---|
| 1 | 2 | 3 | ||||
| 4 | 5 | 6 | 7 | 8 | 9 | 10 |
| 11 | 12 | 13 | 14 | 15 | 16 | 17 |
| 18 | 19 | 20 | 21 | 22 | 23 | 24 |
| 25 | 26 | 27 | 28 | 29 | 30 | 31 |
