티스토리 뷰
목차
다양한 상업공간 중에서도 많은 사람들이 오고가는 전시장 같은 경우엔 제품들을 한눈에 보기 쉽게
잘 정리정돈 되어 있어야 하고 해당 브랜드나 기업의 이미지를 표현할 수 있는 공간의 디자인 또한 중요한데요.
이 모든걸 갖출 수 있는 전시장인테리어 시공 리모델링 방법에 대해 알려드리겠습니다.
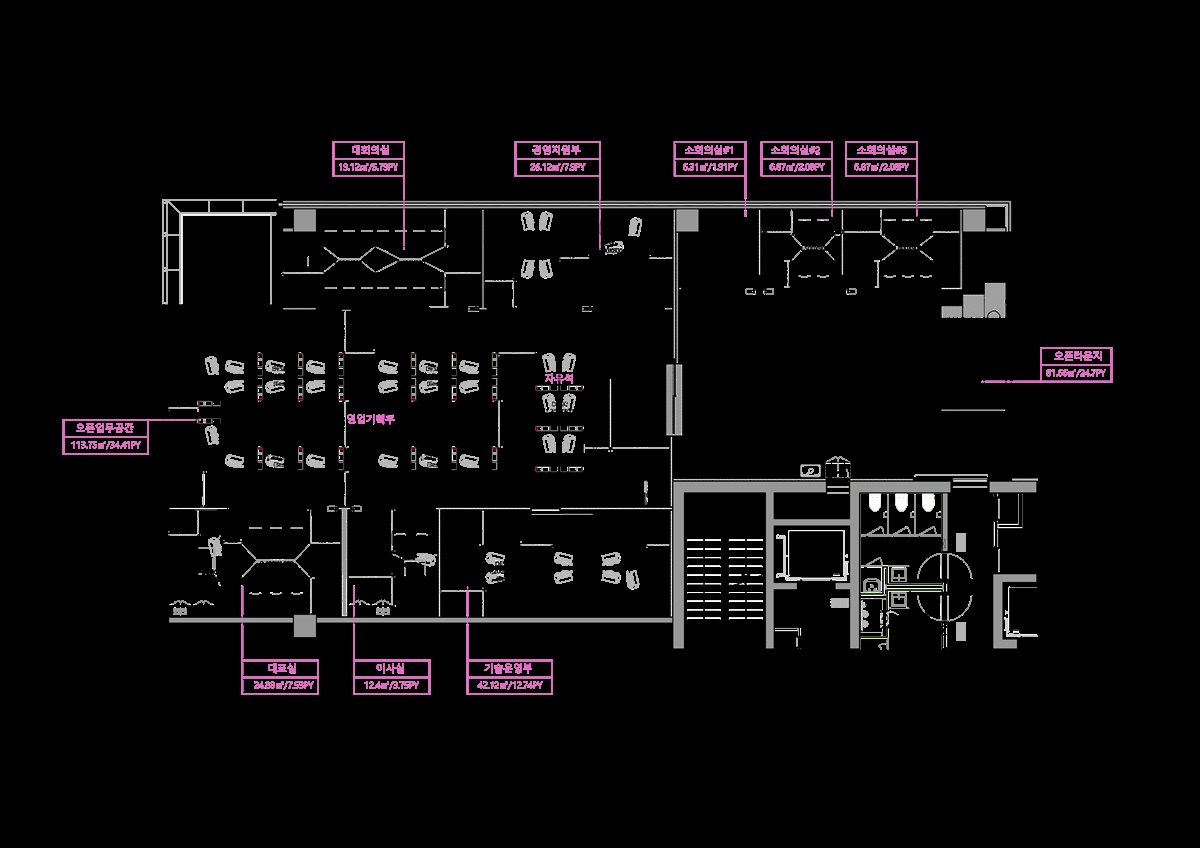
전시장인테리어 전시장 인테리어의 중요성과 기본 이해








제품 전시는 기업의 마케팅 전략에서 중요한 요소 중 하나입니다. 고객들은 제품을 직접 보고 만지며 상호작용할 때
브랜드와 제품에 대한 이해도가 높아지기 때문입니다.








이러한 이유로 최근에는 단순히 제품을 나열하는 방식보다는 시각적으로 매력적인 전시장 인테리어를
선호하는 추세입니다.








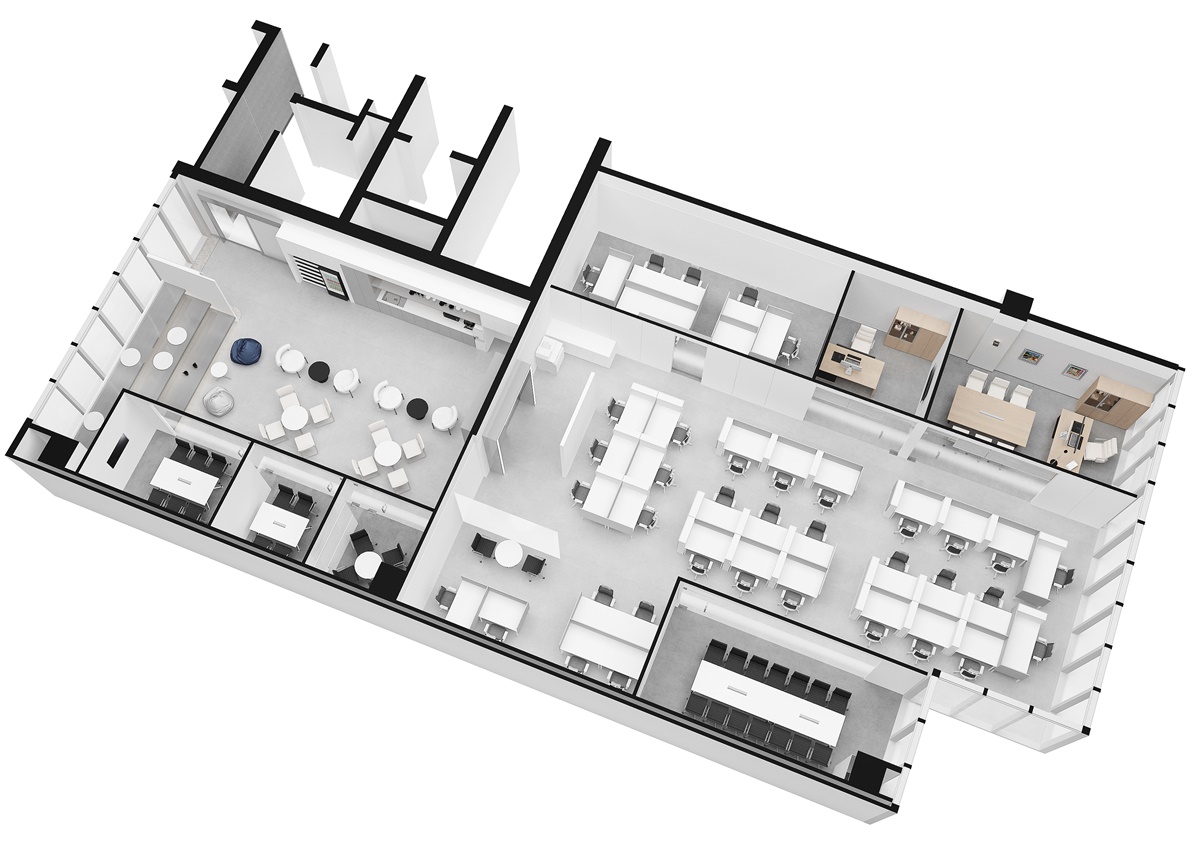
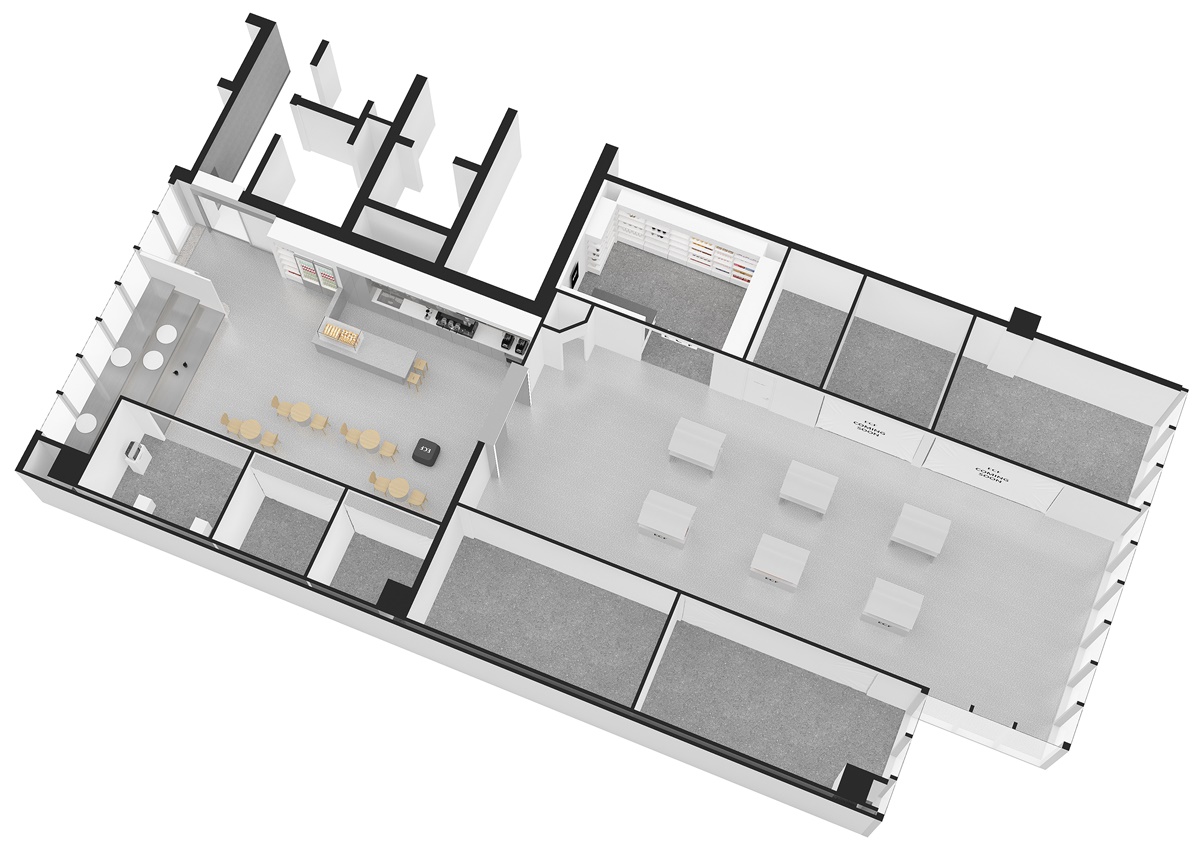
전시공간은 판매 목적뿐만 아니라 브랜드 이미지 구축 및 고객 경험 향상에도 큰 역할을 합니다.








그러므로 그 자체로 예술 작품처럼 느껴질 수 있도록 창의적이고 독특한 디자인이어야 하며,
방문객들의 관심을 끌고 오래 머무를 수 있는 편안한 분위기를 조성해야 합니다.
이를 위해서는 조명, 색상, 가구 배치, 그래픽 디자인 등 다양한 요소를 고려해야 합니다.








각각의 요소는 서로 조화롭게 어우러져 통일된 컨셉을 전달해야 하며,
동시에 각 제품 라인업의 특성과 개성을 부각시킬 수 있어야 합니다.








마지막으로, 안전성이 보장되어야 합니다. 전기 설비, 소방 시설, 비상구 등 법적 요구사항을 충족시켜야 할 뿐만
아니라, 관람객들이 자유롭게 이동하며 제품을 살펴볼 수 있도록 충분한 공간과 동선을 확보해야 합니다.





전시장인테리어 효과적인 제품 전시 방법 탐색





창의적인 아이디어와 기술을 활용하여 제품을 돋보이게 하는 몇 가지 방법들을 소개합니다.
1.조명: 빛은 제품의 질감과 색상을 강조하고 그림자를 만들어내어 입체감을 더해줍니다. 스포트라이트나 LED 조명을
사용하여 특정 부분을 강조하거나 부드러운 간접 조명을 사용하여 전체적인 분위기를 조성할 수 있습니다.






2.색상: 제품과 조화를 이루는 색상을 선택하여 배경이나 주변 구조물에 적용하면 시선을 집중시키고 브랜드 이미지를
강화할 수 있습니다. 보색 대비를 활용하여 강렬한 인상을 주거나 유사한 색상을 사용하여 자연스러운 조화를
이룰 수도 있습니다.
3.그래픽 디자인: 포스터, 배너, 안내판 등에 사용되는 그래픽 디자인은 제품 정보를 명확하게 전달하고 브랜드
정체성을 표현하는 데 중요한 역할을 합니다. 가독성을 고려하여 폰트와 색상을 선택하고,
이미지나 동영상을 활용하여 보다 생생한 경험을 제공할 수 있습니다.








전시장인테리어 전시 공간 디자인의 원칙과 전략






성공적인 전시 공간 디자인을 위해서는 아래와 같은 원칙과 전략을 고려해야 합니다.
1.목적 파악: 전시의 목적이 무엇인지 명확히 파악해야 합니다. 신제품 출시를 위한 홍보인지,
기존 제품의 판매 촉진인지, 아니면 브랜드 이미지 강화인지에 따라 디자인 방향이 달라질 수 있습니다.
2.관람객 분석: 관람객의 연령, 성별, 관심사 등을 분석하여 그들의 니즈와 선호도에 맞는 디자인을 구현해야 합니다.
이를 통해 관람객의 참여도와 만족도를 높일 수 있습니다.
3.동선 계획: 관람객의 이동 경로를 고려하여 전시 공간을 구성해야 합니다. 주요 동선을 중심으로 부스나 코너를
배치하고, 관람객이 쉽게 이동할 수 있도록 통로를 충분히 확보해야 합니다.







4.시각적 효과: 제품이나 브랜드의 특징을 시각적으로 강조하여 관람객의 시선을 끌어야 합니다.
이를 위해 색채, 조명, 그래픽 디자인 등을 활용하여 독창적인 분위기를 연출할 수 있습니다.
5.상호작용 요소: 관람객이 직접 참여하고 체험할 수 있는 상호작용 요소를 도입하여 전시의 흥미를 높일 수 있습니다.
터치스크린, VR 체험, 인터랙티브 게임 등을 활용하여 관람객의 적극적인 참여를 유도할 수 있습니다.








6.유지보수: 전시 기간 동안 지속적으로 유지보수를 해야 합니다. 손상된 부분을 수리하고, 더러워진 곳을 청소하며, 조명이나 음향 시스템을 점검하여 항상 최상의 상태를 유지해야 합니다.







이렇게 전시장인테리어는 제품전시와 공간디자인 두 가지 모두 신경써야 하는 부분이지만 클라이언트의
니즈를 파악 후 체계적인 프로세스를 통해 진행한다면 충분히 가능합니다.
특색있고 차별화 된 전시장리모델링을 원하신다면 언제든지 문의 주시길 바랍니다.





☎시공문의
010-3235-8427
▼포트폴리오 더 보기 ▼
팝업스토어인테리어 - 사무실인테리어 디자인 공사 비용견적 플랫폼
팝업스토어인테리어 쇼룸 회사 제품 전시공간 스튜디오 백화점 인테리어 디자인 포트폴리오 비용견적 공사
916er.com
2024.03.17 - [사무실인테리어] - 쇼핑몰 행사장인테리어 컴퓨터 IT 제품 전시 디자인
쇼핑몰 행사장인테리어 컴퓨터 IT 제품 전시 디자인
쇼핑몰 행사장인테리어 컴퓨터 IT 제품 전시 디자인 안녕하세요,916디자인입니다. 오늘은 한 쇼핑몰의 행사장 인테리어를 소개해드리려고 하는데요. 행사장 인테리어는 어떤 물품을 판매하는지,
dopamine7.com
2024.03.19 - [사무실인테리어] - 전시장인테리어 행사 디자인공사 트렌디한 시각
전시장인테리어 행사 디자인공사 트렌디한 시각
전시장인테리어 행사 디자인공사 트렌디한 시각 안녕하세요,916디자인입니다. 평범한 공간도 특색있게 변화시킬 수 있는 실력을 가졌기에 많은 분들이 전시장인테리어 업체로 저희를 선택해주
dopamine7.com
2024.03.21 - [사무실인테리어] - 팝업스토어인테리어 의류브랜드 행사장
팝업스토어인테리어 의류브랜드 행사장
팝업스토어인테리어 의류브랜드 행사장 안녕하세요,916디자인입니다. 오늘은 산뜻한 느낌으로 연출된 팝업스토어 인테리어를 소개해드리려 합니다. 분홍색 컬러가 인상적이며 키치한 브랜드의
dopamine7.com
2024.03.14 - [사무실인테리어] - 굿즈샵인테리어 제품을 돋보이게
굿즈샵인테리어 제품을 돋보이게
굿즈샵인테리어 제품을 돋보이게 안녕하세요 916디자인입니다. 혹시 굿즈 구매해보신 적 있나요? 좋아하는 브랜드 혹은 연예인이 있다면 아마 익숙하실텐데요. 굿즈는 쉽게 생각하자면 인물이
dopamine7.com
2022.10.25 - [사무실인테리어] - 판교 현대백화점 팝업스토어 인테리어 눈에 확 띄는 매력
'사무실인테리어' 카테고리의 다른 글
| 사옥로비인테리어 회사의 첫 인상을 좌우하는 기업 사무실 포트폴리오 (0) | 2025.02.04 |
|---|---|
| 변호사사무실인테리어 신뢰감이 느껴지는 법률사무소 시공사례 (0) | 2025.02.04 |
| 공장리모델링 넓은 사무실 인테리어에 대한 고민이 있다면 (0) | 2025.02.04 |
| 향동사무실인테리어 인기있는 오피스디자인을 완성하고 싶으시다면 이 글에 주목하세요 (0) | 2025.01.22 |
| 판교인테리어 사무실 전문업체 색채가 남다른 오피스 디자인 공사 (0) | 2025.01.20 |
| 사무실원상복구 철거 정리 후 트렌드를 반영한 오피스 디자인까지 완벽 시공 업체 (0) | 2025.01.17 |
| 성수동병원인테리어 성수 정신의학과 디자인 심미성과 실용성을 모두 담은 포트폴리오 (0) | 2025.01.15 |
| 화성인테리어업체 기업문화에 맞춘 디자인을 생각하신다면 이렇게 진행해보면 어떨까요? (0) | 2025.01.13 |
- Total
- Today
- Yesterday
- 사무실인테리어비용
- 사무실인테리어업체
- interior
- 헤어샵인테리어
- 인테리어디자인
- 오피스인테리어
- 사무실인테리어후기
- 3D사무실인테리어
- 사무실인테리어견적
- 학원인테리어디자인
- 사무실인테리어추천
- 헬스장인테리어
- 병원인테리어
- 사무실인테리어공사
- 3D디자인
- 사무실리모델링
- 학원인테리어
- 피티샵인테리어
- 사무실인테리어잘하는곳
- 지식산업센터인테리어
- 인천사무실인테리어
- 사무실디자인
- 회사인테리어
- 사무실인테리어
- 인테리어
- 상가인테리어
- 사무실인테리어디자인
- 미용실인테리어
- 916디자인
- 사무실인테리어전문
| 일 | 월 | 화 | 수 | 목 | 금 | 토 |
|---|---|---|---|---|---|---|
| 1 | 2 | 3 | ||||
| 4 | 5 | 6 | 7 | 8 | 9 | 10 |
| 11 | 12 | 13 | 14 | 15 | 16 | 17 |
| 18 | 19 | 20 | 21 | 22 | 23 | 24 |
| 25 | 26 | 27 | 28 | 29 | 30 | 31 |







