티스토리 뷰
목차
파주는 국어학원 같은 전문 교육기관들이 여러 곳에 자리 잡고 있어 많은 학생들이 찾고 있는데요.
그러나 학원도 오랜 시간 사용하다 보면 낡고 지저분해질 수밖에 없습니다.
이런 상황에서 리모델링은 단순히 외관을 새롭게 하는 것 이상의 의미를 갖습니다.
학생들에게 쾌적한 학습 공간을 제공하고, 선생님들의 교육 환경을 개선하는 데 필수적이라고 할 수 있는데요.
특히, 파주인테리어업체를 통해 진행되는 리모델링은 지역적 특성과 문화에 맞춰 공간을 더욱 효율적으로 변화시킬 수 있는 장점이 있습니다.
그러므로 국어학원의 리모델링을 고려할 때, 어떤 요소를 중점적으로 살펴봐야 할지 알아보는 것이 중요한데요.
이번 글에서는 파주인테리어업체가 상담을 통해 진행한 국어학원 리모델링에 대해 여러 가지 측면에서 심도 있게 다뤄볼 예정이니, 관심 있는 분들은 주목해 보시길 바랍니다.
파주인테리어업체 국어학원 리모델링 상담의 시작



이번 국어학원 리모델링 공사는 학원생들의 학업 성취도와 학원 이미지 개선을 목표로 진행되었습니다.
원장님께서는 파주인테리어업체에 연락을 주셨고 현장 실측과 상담을 통해 원하시는 디자인과 요구사항을 파악하였습니다.




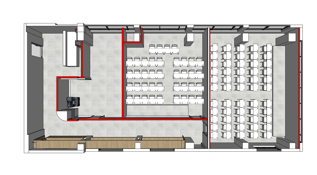
먼저, 학생들이 편안하게 공부할 수 있는 분위기를 조성하기 위해 깔끔한 화이트 톤을 기본으로 하고 우드 소재를 포인트로 활용하여 따뜻하고 아늑한 느낌을 연출하고자 하였습니다.



강의실 내부는 집중력을 높일 수 있도록 조명과 가구 배치에 신경 썼으며, 학원 입구와 로비는 학부모님들과 학원생들이 처음 마주하는 공간이기 때문에 세련되고 신뢰감을 줄 수 있는 디자인으로 설계하였습니다.
원장님과의 충분한 소통을 통해 원하시는 바를 정확하게 파악하였고 그에 맞는 3D 모델링을 제안드려 최종 컨펌을 받은 후 공사를 진행하였습니다.

파주인테리업체 국어학원 리모델링 계획 수립



파주인테리어업체에서는 국어학원의 기존 공간을 분석하여 필요한 사항들을 파악하였습니다.
오랜 시간 운영되어 온 학원이었기 때문에 다소 노후화된 시설과 어두운 분위기를 개선하는 것이 필요했습니다.
또 학원생들의 연령대와 성별을 고려하여 편안하고 안정감 있는 분위기를 조성하면서도 학업에 집중할 수 있는 환경을 만들어야 했습니다.



이를 바탕으로 디자인 제안을 하였습니다. 밝고 화사한 컬러를 사용하여 공간에 활력을 불어넣고, 넓은 창을 통해 자연 채광을 충분히 활용하여 따뜻한 분위기를 연출하였습니다.



인포데스크와 상담실은 고급스러운 우드 소재를 사용하여 세련되면서도 아늑한 느낌을 주었고, 강의실 내부는 밝은 조도의 LED 조명을 설치하여 눈의 피로를 줄이고 집중력을 높일 수 있도록 하였습니다.
각 강의실에는 스마트보드를 설치하여 수업의 질을 높이고자 하였습니다.




국어학원 리모델링을 위해 디자인 컨셉과 공간 활용 계획을 수립하였습니다.
가장 중요하게 고려한 것은 공간 활용이었습니다.
한정된 공간 안에서 최대한의 효율을 내기 위해 각각의 용도에 맞게 공간을 구성하고 배치하였습니다.





디자인 컨셉은 현대적이면서도 고전적인 요소를 적절히 조화시켜 세련되면서도 우아한 분위기를 연출하고자 했습니다.
이를 위해 화이트를 메인 컬러로 사용하고, 원목 소재와 조명 포인트를 주어 고급스러움을 더했습니다.
바닥은 우드 타일을 깔아 따뜻하면서도 개성 있는 느낌을 주었습니다.

파주인테리어업체 국어학원 리모델링 공사 진행 과정



국어학원 리모델링 공사를 진행하면서 세부 사항들을 결정해야 했습니다.
그 중에서도 재료 선택은 매우 중요한 부분이었습니다.
각 공간의 용도와 분위기에 맞는 재료를 선택하기 위해 고민하였습니다.




먼저, 벽과 천장은 화이트 컬러의 페인트로 마감하였습니다.
화이트 컬러는 깔끔하고 넓어 보이는 효과가 있으며, 어떤 색상과도 잘 어울리기 때문에 다양한 소품과 가구를 활용하기에도 좋습니다.




바닥재로는 우드 타일을 선택하였습니다.
우드 타일은 내구성이 뛰어나며 청소하기도 용이하며 자연스러운 질감과 색감으로 따뜻하고 아늑한 분위기를 연출할 수 있어 학원의 분위기와 잘 어울렸습니다.




공사 진행 과정을 꼼꼼히 체크하였습니다.
먼저, 현장 관리를 철저히 하였습니다.
공사 기간 동안 현장에 상주하면서 작업자들과 소통하고, 작업 일정과 진행 상황을 체크하였습니다.





작업자들과의 원활한 소통 역시 중요한데 업체와의 협력을 통해 작업자들의 의견을 수렴하고, 문제점을 발견하면 즉시 해결하였습니다.
이를 통해 공사 기간 내에 무사히 국어학원 리모델링 공사를 마칠 수 있었습니다.





국어학원 리모델링 공사를 진행하다 보면 예상치 못한 이슈가 발생할 수 있는데 파주인테리어업체는 이러한 이슈에 적극적으로 대응하기 위해 노력했습니다.
이슈가 발생하면 즉각적으로 대처 방안을 모색하였고 그 결과 처음 계획과는 조금 달라질 수 있었지만 리모델링 국어 학원의 목적과 기능에 맞게 공간을 구성하는데 최선을 다했습니다.


이렇게 파주인테리어업체가 진행한 국어학원 리모델링 완공 모습을 소개해드렸습니다.
저희는 다양한 상업공간 및 교육공간 등 많은 경험과 노하우를 가지고 있으며 고객 맞춤형 3D 디자인 제안을 통해 보다 퀄리티 높은 결과물을 제공해드리고 있습니다.
관련하여 궁금한 사항은 언제든지 문의 주시길 바랍니다.

☎공사문의
010- 3235- 8427
▼포트폴리오 더보기
사무실인테리어 디자인 공사 비용견적 플랫폼 - 사무실인테리어 916
사무실인테리어 916
916er.com
2024.11.20 - [학원인테리어] - 평택인테리어업체 즐겁게 수학을 배울 수 있는 공간을 생각한 학원 포트폴리오
평택인테리어업체 즐겁게 수학을 배울 수 있는 공간을 생각한 학원 포트폴리오
수학학원인테리어는 단순히 공간을 꾸미는 것을 넘어서, 학생들의 학습 환경과 직결되는 중요한 요소라는 생각이 듭니다. 많은 사람들이 수학을 어려워하는 이유 중 하나가 바로 지루한 학습
dopamine7.com
2024.11.19 - [학원인테리어] - 목동학원인테리어 개인자습실을 포함한 입시전문 교육공간 디자인
목동학원인테리어 개인자습실을 포함한 입시전문 교육공간 디자인
입시를 대비하는 학생들에게 학원 선택은 매우 중요한 문제입니다. 학원은 단순히 과목을 배우는 공간이 아닌데요. 학습 환경이 학생들의 집중력과 성적 향상에 큰 영향을 미친다는 사실은 이
dopamine7.com
2024.11.19 - [학원인테리어] - 서초학원인테리어 대형입시학원도 전문가에게 맡기면 달라집니다
서초학원인테리어 대형입시학원도 전문가에게 맡기면 달라집니다
서초학원인테리어 입시학원 디자인 서초구는 교육의 중심지로 알려져 있는만큼 많은 학원들이 모여 있는 곳이죠.이곳은 학부모와 학생들에게 인기 있는 장소인데요, 그러다 보니 경쟁이
dopamine7.com
2024.11.11 - [학원인테리어] - 배곧학원인테리어 학습을 위한 최적의 영어 교습소 디자인
배곧학원인테리어 학습을 위한 최적의 영어 교습소 디자인
배곧학원인테리어 영어 학습 효율성 강화 배곧학원은 최근 많은 학생들과 학부모들에게 큰 인기를 끌고 있는 곳인데요.특히 영어 교육에 대한 수요가 증가하면서, 학원 인테리어의 중요성도
dopamine7.com
'학원인테리어' 카테고리의 다른 글
| 클래스인테리어 최상의 학습공간으로 꾸며진 어학원 교습소를 소개합니다 (1) | 2024.12.09 |
|---|---|
| 은평구학원인테리어 꾸준히 인기 있는 파란색 컬러포인트 어학원 디자인 (0) | 2024.12.05 |
| 서대문구학원인테리어 아카데미 시공 업체를 찾고 계신 분은 전문가인 저희에게 맡겨주세요 (2) | 2024.12.03 |
| 잠실인테리어 집중도와 학습효과에 큰 영향을 주는 중국어 학원공간 이렇게 추천드립니다 (0) | 2024.11.22 |
| 평택인테리어업체 즐겁게 수학을 배울 수 있는 공간을 생각한 학원 포트폴리오 (0) | 2024.11.20 |
| 서초학원인테리어 대형입시학원도 전문가에게 맡기면 달라집니다 (3) | 2024.11.19 |
| 목동학원인테리어 개인자습실을 포함한 입시전문 교육공간 디자인 (2) | 2024.11.19 |
| 부산학원인테리어 학생들을 위한 최적의 학습공간시공은 전문업체를 통해 진행하세요 (1) | 2024.11.14 |
- Total
- Today
- Yesterday
- 병원인테리어
- 사무실인테리어전문
- 916디자인
- 상가인테리어
- 오피스인테리어
- 헬스장인테리어
- 사무실인테리어
- 학원인테리어디자인
- interior
- 사무실인테리어디자인
- 인테리어
- 사무실인테리어잘하는곳
- 사무실인테리어업체
- 사무실인테리어견적
- 헤어샵인테리어
- 사무실인테리어비용
- 인천사무실인테리어
- 사무실디자인
- 사무실인테리어공사
- 학원인테리어
- 사무실리모델링
- 3D디자인
- 인테리어디자인
- 회사인테리어
- 피티샵인테리어
- 지식산업센터인테리어
- 3D사무실인테리어
- 사무실인테리어후기
- 미용실인테리어
- 사무실인테리어추천
| 일 | 월 | 화 | 수 | 목 | 금 | 토 |
|---|---|---|---|---|---|---|
| 1 | 2 | |||||
| 3 | 4 | 5 | 6 | 7 | 8 | 9 |
| 10 | 11 | 12 | 13 | 14 | 15 | 16 |
| 17 | 18 | 19 | 20 | 21 | 22 | 23 |
| 24 | 25 | 26 | 27 | 28 | 29 | 30 |
| 31 |




