티스토리 뷰
목차
판교병원인테리어 심미성과 실용성을 동시에
안녕하세요, 최근에 많은 고객님들께서
심미성과 실용성을 동시에 느낄 수 있는
판교병원인테리어에 대해서 많이 찾으시곤 합니다.
따라서 최근에는 공간은 최대한 필요한 대로
실용적으로 잘 디자인하기 위해 노력하며,
그 와중에 아름다움을 잃지 않기 위해서
하시는 것을 모토로 삼아 작업을 진행하고 있습니다.
최근에도 많은 사례들을 이와 같이 진행했고,
오늘은 그 중 하나의 시공현장에 대해서
상세하게 보여드리고자 합니다.
그럼 바로 시작하도록 하겠습니다.
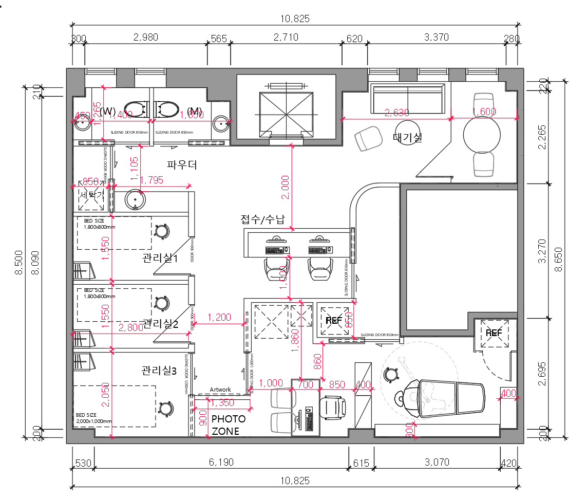
판교병원인테리어 2D작업과 시공현장

이번에 진행하게 된 판교병원인테리어의 경우,
이러한 실측 사이즈로 진행이 될 예정이었습니다.

그래서 꼼꼼하게 시공 현장을 핸들링 하기 위해
많은 노력을 기울였습니다.

고객님께서 원하시는대로 아름다우면서도
각 공간의 쓰임새에 알맞는 실용적인 디자인을
진행해드리기 위해 많은 노력을 기울였습니다.

특히 저희는 철거부터 시작해서 시공 현장을
매우 중요하게 생각을 하는지라
이 과정에서 정말 과하다 싶을 정도로
꼼꼼하게 모든 것을 체크하였습니다.

그리고 모든 현장들의 기구들이 파손되지 않게
세심하게 신경을 쓰며 진행을 했습니다.

그리고 모든 과정도 꼼꼼하게 신경쓰면서
자재들을 열심히 체크하엿습니다.

항상 저희와 작업을 진행해주시는
전문가 선생님들과 함께라서 든든하게
큰 착오 없이 시공현장을 마무리할 수 있었습니다.
판교병원인테리어 시공 완성된 아름다운 현장

이번에 진행한 판교병원인테리어는
아름다우면서도 실용성이 돋보입니다.

데스크는둥근 곡선이 돋보이는 구조여서
대게 직사각으로 진행하는 타병원들과는
조금 더 차별점을 두게 되었습니다.

다만 옆에서 봤을 때는 사각형이 형태를 띄는
조금은 특이한 구조이기 때문에
좀 더 특별한 인테리어 느낌을 선사합니다.

벽은 짙은 우드톤과 베이지톤을 매치해서
고급스러운 무드를 더해드렸습니다.

그리고 복도는 조금 더 개방감이 느껴지며
넓어보이는 구조로 보일 수 있도록
최대한 밝은 컬러로 진행을 해드렸습니다.

하지만 군데군데 우드 포인트를 더해줬습니다.

그리고 잘 쓰이지 않는 공간까지도
세심하게 신경을 써드렸습니다.

이 곳은 깔끔하게 화이트톤으로 진행을 해드려
어떤식으로 쓸 수 있게 만들어드렸습니다.

이번 판교병원인테리어의 핵심은 우드톤인데
이런 짙은 컬러가 고급스럽고 우아한 무드를
선사해주는 것을 느끼실 수 있습니다.

더불어 전반적으로 우아한 느낌이 들어서
환자분께서도 특별한 기분을 느끼실 수 있도록
많은 신경을 써드렸습니다.

문의 디테일, 목재의 질감 등 까지도
많은 신경을 쓴 것을 확인하실 수 있습니다.

특히 짙은 우드 컬러가 인테리어 디자인의
킥인 요소로 이해하실 수 있습니다.

그리고 아가일 타일의 벽 디자인도 혼합해서
비슷한 톤앤매너 속에서 여러 스타일을
확인해서 심심하지 않은 디자인을 구현했습니다.

특히 조명의 경우 벽과 천장의 틈 사이에서
나오는 것을 활용해서 세련된 무드를 더했고요.

문의 손잡이, 전등의 디테일까지도 고급스러운 소재로
진행을 해드렸기 떄문에 전반적으로 매우 우아하고
세련된 디자인임을 느끼실 수 있습니다.

또한 수납장으로도 쓸 수 있고 단순하게 조명으로도
쓸 수 있는 벽 포인트의 내장 벽 또한 뚫어드렸습니다.
무광 벽과 매우 조화로운 것을 확인하실 수 있습니다.

컬러 매치의 고급스러움이 느껴지시죠

공간의 활용도에 따라서 투명한 문을 설치해서
좀 더 넓어보이는 효과도 보여드릴 수 있습니다.

비슷한 톤앤매너이면서 각 공간의 실용성에 맞게
조금씩은 다른 것이 해당 병원 디자인의 키포인트입니다.

엘리베이터는 대리석 느낌이 날 수 있는
벽의 포인트를 느끼실 수 있습니다.

직선과 곡선의 조화로움이 우드톤과 잘 어우러집니다.

각 공간 별로 아름다움을 느끼실 수 있도록
이렇게 잘 진행을 해드리게 되었습니다.

고객님께서도 판교병원인테리어를 본것들 중 가장 우아하고
고급스러움이 잘 느껴지는 디자인이라 매우 흡족해하셨고
저희도 좋은 결과로 나온 것 같아 만족도가 높은 상황입니다.
이러한 느낌을 원하신다면 한 번 레퍼런스로 참고하시길 바랍니다.
공사문의 010-3235-8427
▼▼▼포트폴리오 더보기 ▼▼▼ https://916er.com/category/%eb%b3%91%ec%9b%90%ec%9d%b8%ed%85%8c%eb%a6%ac%ec%96%b4/
병원인테리어 - 사무실인테리어 디자인 공사 비용견적 플랫폼
병원인테리어 치과 성형외과 내과 정신과 안과 이빈후과 비뇨기과 피부과 재활의학과 통증학과 요양원 의원 한의원 종합 병원 포트폴리오
916er.com
2024.10.06 - [병원인테리어] - 과천병원인테리어 촌스러움 탈피
과천병원인테리어 촌스러움 탈피
과천병원인테리어 촌스러움 탈피 안녕하세요, 최근에 많은 고객님들께서 기존 과천병원인테리어의 촌스러움을 탈피하고자 많이들 찾아 오시곤 하십니다. 그래서 이번에도 고객
dopamine7.com
2024.10.07 - [병원인테리어] - 성남병원인테리어 쾌적하고 깔끔하게
성남병원인테리어 쾌적하고 깔끔하게
성남병원인테리어 쾌적하고 깔끔하게 안녕하세요, 저희는 성남병원인테리어를 위해서 찾아오시는 분들을 위해서 쾌적하고 깔끔하게 진행해드리기 위해서 노력을 하고 있습니
dopamine7.com
2024.09.26 - [병원인테리어] - 수원병원인테리어 완성도와 친숙함을 동시에
수원병원인테리어 완성도와 친숙함을 동시에
수원병원인테리어 완성도와 친숙함을 동시에 안녕하세요, 최근에 수원병원인테리어를 다수 진행해서 많은 고객님들께 만족감을 선사하고 있답니다. 특히 최근에 진행했던 사
dopamine7.com
'병원인테리어' 카테고리의 다른 글
| 병원인테리어전문업체 전문성이 느껴지는 치과 맞춤시공 (1) | 2024.11.13 |
|---|---|
| 서초인테리어 마음의 안정을 주는 편안한 분위기의 정신건강의학과병원 시공현장 (0) | 2024.11.06 |
| 시흥병원인테리어 단정하고 아름답게 (13) | 2024.10.09 |
| 부산병원인테리어 고민이라면 (7) | 2024.10.08 |
| 분당병원인테리어 요즘은 필수 (1) | 2024.10.08 |
| 성남병원인테리어 쾌적하고 깔끔하게 (0) | 2024.10.07 |
| 과천병원인테리어 촌스러움 탈피 (0) | 2024.10.06 |
| 일산병원인테리어 아름다운 완성의 시작 (0) | 2024.10.06 |
- Total
- Today
- Yesterday
- 피티샵인테리어
- 916디자인
- 사무실인테리어후기
- 인테리어디자인
- 사무실인테리어비용
- 사무실인테리어업체
- 상가인테리어
- 미용실인테리어
- 사무실디자인
- 지식산업센터인테리어
- 사무실인테리어공사
- 3D사무실인테리어
- 학원인테리어디자인
- 헬스장인테리어
- 병원인테리어
- 3D디자인
- 학원인테리어
- 사무실인테리어견적
- 헤어샵인테리어
- 인천사무실인테리어
- 오피스인테리어
- 사무실리모델링
- 인테리어
- 사무실인테리어
- 사무실인테리어디자인
- 회사인테리어
- 사무실인테리어전문
- 사무실인테리어추천
- 사무실인테리어잘하는곳
- interior
| 일 | 월 | 화 | 수 | 목 | 금 | 토 |
|---|---|---|---|---|---|---|
| 1 | 2 | 3 | 4 | 5 | 6 | 7 |
| 8 | 9 | 10 | 11 | 12 | 13 | 14 |
| 15 | 16 | 17 | 18 | 19 | 20 | 21 |
| 22 | 23 | 24 | 25 | 26 | 27 | 28 |
