티스토리 뷰
목차
최근 기업에서는 업무 환경 개선을 위해 사무실 리모델링을 진행하는 경우가 많습니다.
사무실 리모델링은 직원들의 업무 효율성을 높이고, 애사심을 높이는 데 큰 역할을 하는데요.
오늘은 판교인테리어 업체 선정 시 고려해야 할 사항과 사무실 리모델링 시 주의사항에 대해 알아보겠습니다.







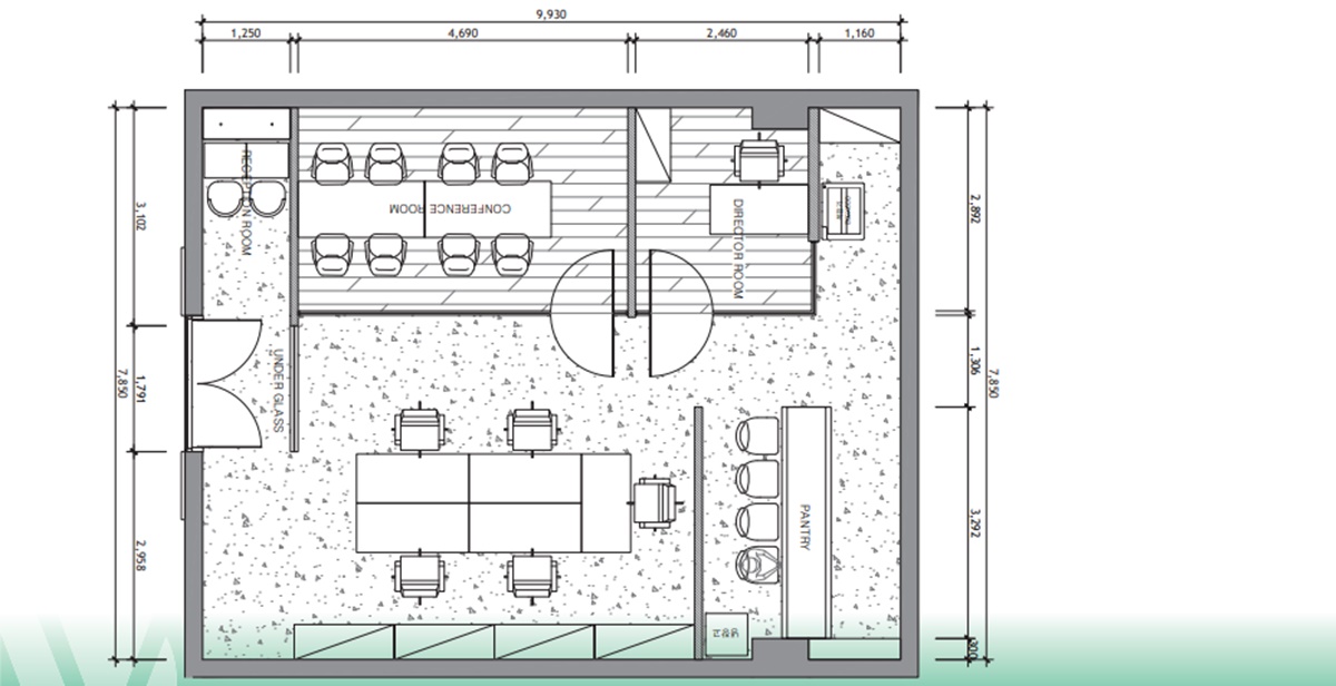
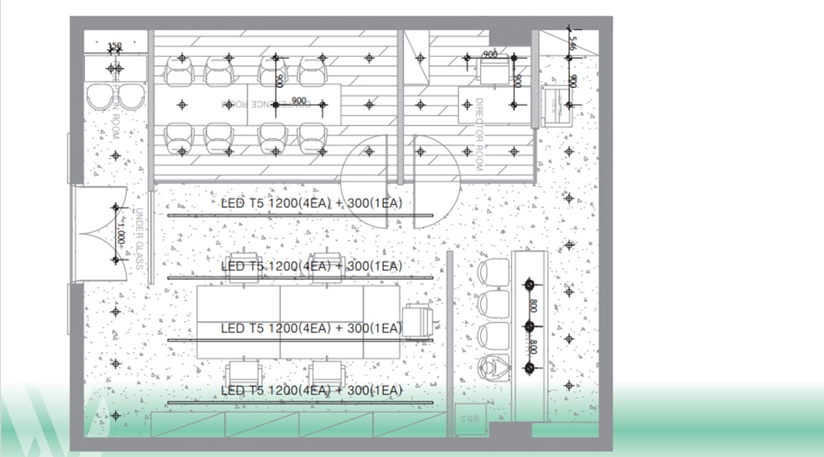
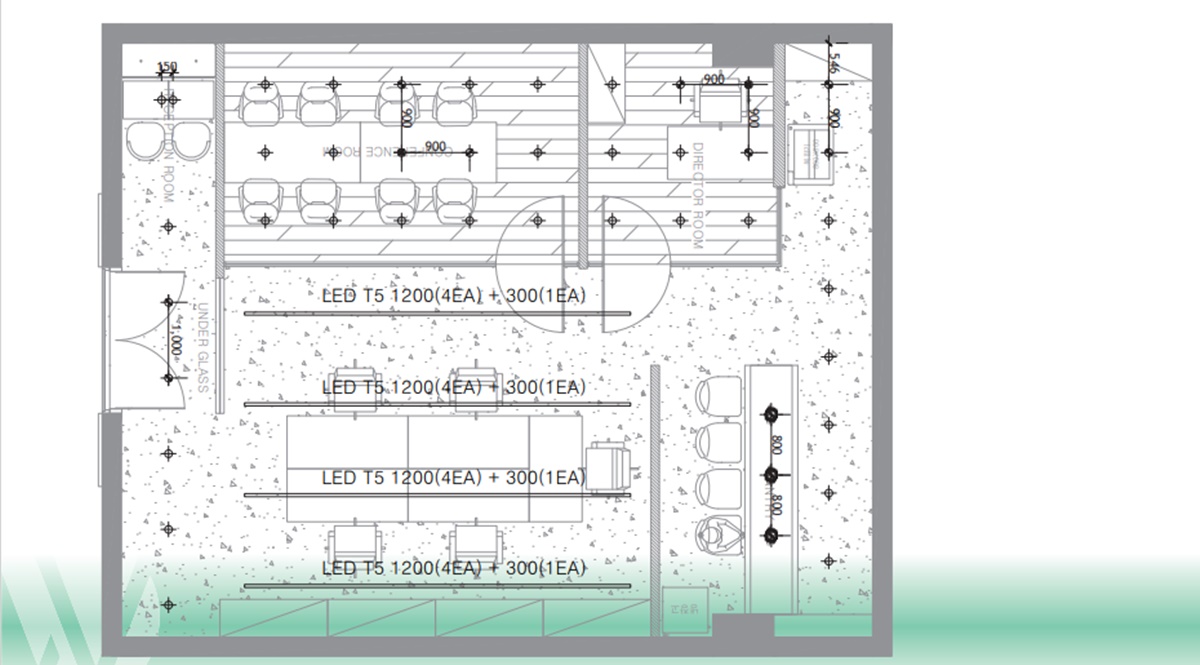
판교인테리어 사무실 리모델링의 중요성과 직원 애사심의 연관성







회사의 얼굴이라고 할 수 있는 사무실은 직원들의 업무 효율과 회사의 이미지에 큰 영향을 미칩니다.








판교인테리어를 통한 사무실 리모델링은 이러한 이유로 최근 많은 기업들이 관심을 가지고 있는 분야 중 하나입니다.








리모델링을 진행하기 전 가장 고려해야 할 사항은 직원들의 업무 환경 개선과 애사심 향상입니다.






실제로, 쾌적하고 편안한 업무 환경은 직원들의 스트레스를 줄이고 업무 효율을 높일 수 있습니다.








또, 사내 분위기를 밝게 만들어 직원들 간의 소통과 협업을 원활하게 만들 수 있습니다.








또 다른 장점은 회사의 이미지 개선입니다. 깔끔하고 세련된 디자인의 사무실은 고객들에게 좋은 인상을 심어줄 수 있어
영업 활동에도 긍정적인 영향을 미칠 수 있습니다.








판교인테리어 직원들의 만족도를 높이는 인테리어 설계 원칙








만족도 높은 사무실을 만들기 위해서는 몇 가지 원칙을 지켜야 합니다.
* 조명 : 눈의 피로를 줄이기 위해 자연광을 최대한 활용하고, 부족한 경우 인공조명을 적절하게 설치해야 합니다.
또, 휴식 공간에는 따뜻한 느낌의 조명을 설치하여 편안한 분위기를 조성하는 것이 좋습니다.








* 동선 : 이동 경로를 최소화하여 불필요한 움직임을 줄이고,
업무 공간과 휴식 공간을 분리하여 집중력을 높일 수 있도록 해야 합니다.
* 수납공간 : 충분한 수납공간을 확보하여 정리정돈을 쉽게 할 수 있도록 하고,
개인 물품을 보관할 수 있는 개인 사물함을 제공하는 것도 좋은 방법입니다.








* 휴식 공간 : 편안하게 휴식을 취할 수 있는 공간을 마련하되, 업무 공간과 구분하여 독립성을 보장해야 합니다.
또, 간단한 운동이나 스트레칭을 할 수 있는 공간을 함께 제공하는 것도 좋습니다.







* 컬러 : 밝고 화사한 컬러를 사용하여 활기찬 분위기를 연출 하되,
너무 다양한 컬러를 사용하면 오히려 혼란스러울 수 있으므로, 2~3가지 컬러를 중심으로 조합하는 것이 좋습니다.
위와 같은 설계 원칙을 지키면서 판교인테리어를 진행하면, 직원들의 만족도를 높이고 애사심을 키울 수 있을 것입니다.








판교인테리어 개방적이고 협력적인 사무실 구조의 장점
직원들 간의 소통과 협업을 촉진하며, 창의적인 아이디어를 창출하는 데 도움이 됩니다.
이러한 구조는 직원들 간의 상호작용을 증가시켜 지식 공유 및 기술 이전을 용이하게 하며,
팀 빌딩 및 동료 간의 유대감을 강화하는데 좋습니다.








업무 공간을 유연하게 구성할 수 있어, 직원들의 업무 스타일에 따라 다양한 방식으로 활용할 수 있습니다.
개별 작업 공간뿐만 아니라 공동 작업 공간, 회의실, 휴게실 등을 제공하여 직원들의 편의성을 높일 수 있는데
이는 직원들의 업무 만족도를 향상시키고, 애사심을 높이는 데 큰 역할을 합니다.





판교인테리어를 고민 중이시라면, 위의 사항들을 고려하여 업체를 선정하시는 것이 좋습니다.
충분한 검토와 계획을 통해 성공적인 사무실 리모델링을 진행하시기 바랍니다.

☎시공문의
010-3235-8427
▼포트폴리오 더보기▼
사무실인테리어 디자인 공사 비용견적 플랫폼 - 사무실인테리어 916
사무실인테리어 916
916er.com
2024.12.31 - [사무실인테리어] - 회사인테리어 기업 이미지를 살린 사무실 맞춤디자인 설계
회사인테리어 기업 이미지를 살린 사무실 맞춤디자인 설계
오늘날 기업들은 단순히 사무 공간을 제공하는 것을 넘어, 브랜드의 정체성을 드러내고 이끌어내는 인테리어 디자인에 큰 관심을 기울이고 있습니다.회사인테리어는 직원들의 생산성뿐만 아니
dopamine7.com
2024.12.31 - [사무실인테리어] - 세무사사무실인테리어 작은 오피스를 감각적으로 꾸미고 싶다면 참고해 보세요
세무사사무실인테리어 작은 오피스를 감각적으로 꾸미고 싶다면 참고해 보세요
안녕하세요 인테리어 블로거 구일육 입니다. 최근 다양한 업종의 사무실 인테리어 문의가 많은데요그중에서도 세무사사무실 같은 경우 소규모 오피스 형태로 꾸미는 경우가 많습니다.이런 작
dopamine7.com
2024.12.30 - [사무실인테리어] - 사무실 학원 칸막이 유리가벽 인테리어 공사사례들을 함께 살펴보도록 하겠습니다
사무실 학원 칸막이 유리가벽 인테리어 공사사례들을 함께 살펴보도록 하겠습니다
사무실과 학원의 공간은 그 자체로 특별한 의미를 지니고 있습니다. 이곳은 단순히 업무를 처리하거나 학습을 하는 장소가 아니라, 창의력과 효율성을 극대화하는 공간으로 변
dopamine7.com
2024.12.30 - [사무실인테리어] - 천안 불당동인테리어 고객이 선호하는 법무사무소 디자인으로 제안드립니다
천안 불당동인테리어 고객이 선호하는 법무사무소 디자인으로 제안드립니다
안녕하세요. 인테리어전문 블로그 구일육 디자인 입니다.최근 사무실 공간에도 카페 같은 분위기를 연출하고자 하는 클라이언트분들이 많아지고 있습니다.딱딱한 이미지 보다는 편안하고 아늑
dopamine7.com
2024.12.19 - [사무실인테리어] - 연구실인테리어 기업의 특성을 살린 맞춤형 사무실 공간연출
연구실인테리어 기업의 특성을 살린 맞춤형 사무실 공간연출
연구실인테리어 기업 맞춤형 컨셉 설정 최근 몇 년간 스타트업 열풍이 불면서 많은 사람들이 창업에 도전하고 있습니다. 이와 함께 사무실 인테리어에 대한 관심도 높아지고 있는데요. 사무실
dopamine7.com
'사무실인테리어' 카테고리의 다른 글
| 분당인테리어업체에서 진행한 공간활용이 돋보이는 공유오피스 사무실 디자인 (0) | 2025.01.09 |
|---|---|
| 동작구인테리어 트렌드와 연구원사무실 맞춤 디자인 아이디어 제안 (0) | 2025.01.08 |
| 서초구인테리어 감각적인 플랜테리어 디자인 사무실 공간연출 (0) | 2025.01.07 |
| 분당인테리어 사무실 리모델링 시공업체 현명하게 선택하세요 (1) | 2025.01.07 |
| 서초인테리어업체 세련된 사무실 공간연출이 돋보이는 오피스 시공기 (1) | 2025.01.07 |
| 회사인테리어 기업 이미지를 살린 사무실 맞춤디자인 설계 (3) | 2024.12.31 |
| 세무사사무실인테리어 작은 오피스를 감각적으로 꾸미고 싶다면 참고해 보세요 (2) | 2024.12.31 |
| 사무실 학원 칸막이 유리가벽 인테리어 공사사례들을 함께 살펴보도록 하겠습니다 (0) | 2024.12.30 |
- Total
- Today
- Yesterday
- 사무실인테리어잘하는곳
- 사무실인테리어추천
- 오피스인테리어
- 인테리어디자인
- 인천사무실인테리어
- 사무실인테리어
- 미용실인테리어
- 사무실인테리어업체
- 지식산업센터인테리어
- 사무실인테리어비용
- 916디자인
- 상가인테리어
- 회사인테리어
- 사무실인테리어후기
- 사무실인테리어공사
- 3D디자인
- 3D사무실인테리어
- 인테리어
- 사무실리모델링
- 사무실디자인
- interior
- 헤어샵인테리어
- 사무실인테리어디자인
- 사무실인테리어전문
- 피티샵인테리어
- 병원인테리어
- 학원인테리어
- 학원인테리어디자인
- 사무실인테리어견적
- 헬스장인테리어
| 일 | 월 | 화 | 수 | 목 | 금 | 토 |
|---|---|---|---|---|---|---|
| 1 | 2 | 3 | ||||
| 4 | 5 | 6 | 7 | 8 | 9 | 10 |
| 11 | 12 | 13 | 14 | 15 | 16 | 17 |
| 18 | 19 | 20 | 21 | 22 | 23 | 24 |
| 25 | 26 | 27 | 28 | 29 | 30 | 31 |







