티스토리 뷰
목차
기업의 사무공간은 브랜드의 정체성을 시각적으로 표현하는 공간입니다.
이번 하남인테리어 회사 사무실은 브앤드 아이덴티티를 중심으로 공간을 설계하여
기업의 철학과 이미지를 자연스럽게 담아낸 사례입니다.
그럼 하남인테리어 사무실의 기업 아이덴티티를 살린 공간 연출법을 함께 살펴보겠습니다.
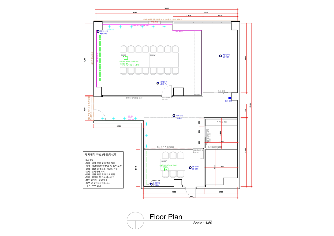
하남인테리어 사무실의 공간 설계



사무실 공간 구성은 기업의 업무 특성과 문화를 반영합니다. 공간은 크게 개방형 메인 업무공간, 회의실 등으로 기능벼롤
나누는 것이 효율적입니다. 이번 하남인테리어는 대형 회의공간을 연출하여 팁 협업과 아이디어 공유의 중심지로 충분한 공간으로
연출한 것이 특징입니다.
하남인테리어 공사 진행 과정




사무실 인테리어의 핵심은 공간을 기획하고 뼈대를 세우는 목공 과정입니다.
이번 사무실은 브랜드 전시가 가능한 벽면 진열장과 유리 가벽이 핵심 포인트이기 때문에
그 구조를 안정적으로 지탱할 수 있는 목재 프레임 작업이 중요합니다.




공간의 전체적인 인상을 결정하는 도장 작업은 화이트와 민트 톤의 조화를 중심으로 마감 작업이 진행되었습니다.
브랜드 컬러는 일부 벽면 포이트 구간에만 제한적으로 사용해 과하지 않으면서도 세련된 인상을 줄 수 있도록 하였답니다.
하남인테리어 사무실 공간 연출 방법







이번 하남인테리어 사무공간의 핵심 공간은 바로 대형 회의실이자 포인트 색상 연출법입니다.
기업의 아이덴티티 색상은 민트색상을 벽면에 포인트로 적용하여 공간 자체가 과하지 않으면서도
확실한 포인틀 효과를 가져다 줍니다.








사무실의 중심부는 오픈형 사무공간이자 상담 공간, 휴게공간으로 구성하였습니다.
우드 테이블과 블랙 체어 의자를 곳곳에 배치하여 협업이 용이한 구조로 구현하였습니다.
대형 회의공간은 유리가벽으로 회의실 내부가 훤히 보이는 구조로 구성하였습니다.
투명 유리가벽은 공간을 분리하면서도 시각적으로 개방감을 유지해주며, 외부에서는 회의 중인 모습이 자연스럽게 비치어
이는 회사 내부의 투명성과 소통 중심의 조직 문화를 상징적으로 표현합니다.






회의실 벽면에 설치된 진열장은 기업이 개발한 제품을 한눈에 볼 수 있는 전시공간으로 활용되어
브랜드의 신뢰성과 전문성을 강조한 공간입니다.
진열장 내부는 유리 선반 구조로 제작하여 투명감을 살렸으며, 후면 라이트 조명과 진열장 테두리에 적용된
브랜드 포인트 컬러 라인이 시각적인 생동감을 더해줍니다.






입구 파사드 또한 기업의 아이덴티티를 살린 공간연출법입니다.
화이트 벽면 출입문 위에 기업 로고 사인물과 조명이 어우러져 세련된 첫인상을 전달하며,
기업의 로고 색상을 사용하여 전문성과 회사 이미지를 강조하였습니다.
아번 하남인테리어 회사 사무실은 기업의 아이덴티티를 공간으로 시각화한 프로젝트라고 할 수 있습니다.
이처럼 사무실 디자인은 기업의 이미지와 문화를 반영하는 중요한 과정입니다.
기업의 정체성을 공간속에 담아내는 맞춤형 사무실 인테리어로 브랜드가 빛나는 공간을 만들어드리겠습니다.
📞 상담 문의 📞
010-3235-8427
🔽 포트폴리오 더 보기 🔽
사무실인테리어 디자인 공사 비용견적 플랫폼 - 사무실인테리어 916
사무실인테리어 916
916er.com
2025.10.15 - [사무실인테리어] - 수원사무실인테리어 쾌적한 환경 효율적인 레이아웃 아이디어
수원사무실인테리어 쾌적한 환경 효율적인 레이아웃 아이디어
업무 공간은 직원들의 생산성과 창의성에 큰 영향을 미치는 중요한 요소 중 하나입니다. 하지만 많은 회사들이 예산 부족 등의 이유로 사무실 인테리어에 충분한 관심을 기울이지 못하고 있습
dopamine7.com
2025.10.14 - [사무실인테리어] - 사무실리모델링 새로운 공간 변화를 위한 시공 과정과 비용 완벽 이해
사무실리모델링 새로운 공간 변화를 위한 시공 과정과 비용 완벽 이해
현대 비즈니스 세계에서는 기업들이 경쟁력을 유지하기 위해 끊임없이 혁신하고 발전해야 합니다. 그 중에서도 사무실 환경은 직원들의 업무 효율성과 생산성에 큰 영향을 미치는 중요한 요소
dopamine7.com
2025.09.24 - [사무실인테리어] - 회사사무실인테리어 우드와 화이트 조합의 따뜻하고 포근한 감성 오피스 공간 연출
회사사무실인테리어 우드와 화이트 조합의 따뜻하고 포근한 감성 오피스 공간 연출
많은 기업들이 직원들의 편안함과 효율성을 고려하여 사무 환경을 개선하고 있는데, 그 중에서도 우드와 화이트 조합의 회사사무실인테리어는 특히나 많은 인기를 끌고 있어요. 이 두가지 색상
dopamine7.com
'사무실인테리어' 카테고리의 다른 글
| 천안인테리어업체 스튜디오 겸용 복합형 오피스디자인 효율적인 공간 구성 팁 (0) | 2025.10.28 |
|---|---|
| 광명인테리어업체 세련된 사무실 완성하기 위한 디자인 제안 (0) | 2025.10.24 |
| 평택인테리어업체 베이지와 골드 포인트로 완성한 품격 있는 법무법인사무실 디자인 추천 (0) | 2025.10.23 |
| 변호사사무실인테리어 법률서비스의 얼굴 모던 프리미엄 디자인으로 신뢰를 만들다 (0) | 2025.10.23 |
| 변호사인테리어 디자인의 신뢰감이 느껴지는 법률 사무소 공사 후기 (0) | 2025.10.21 |
| 판교인테리어 감각적인 오피스리모델링 시공, 브랜드 이미지를 바꾸다 (0) | 2025.10.17 |
| 변호사사무실인테리어 클래식 하지만 포인트는 놓치지 않은 디자인 (0) | 2025.10.16 |
| 수원사무실인테리어 쾌적한 환경 효율적인 레이아웃 아이디어 (0) | 2025.10.15 |
- Total
- Today
- Yesterday
- 피티샵인테리어
- 사무실인테리어디자인
- 사무실디자인
- 헬스장인테리어
- 헤어샵인테리어
- 학원인테리어
- 인천사무실인테리어
- 사무실인테리어후기
- 사무실리모델링
- 인테리어디자인
- 병원인테리어
- 사무실인테리어비용
- 미용실인테리어
- 오피스인테리어
- interior
- 사무실인테리어전문
- 인테리어
- 사무실인테리어
- 사무실인테리어공사
- 사무실인테리어견적
- 회사인테리어
- 학원인테리어디자인
- 상가인테리어
- 사무실인테리어업체
- 사무실인테리어잘하는곳
- 916디자인
- 3D디자인
- 사무실인테리어추천
- 3D사무실인테리어
- 지식산업센터인테리어
| 일 | 월 | 화 | 수 | 목 | 금 | 토 |
|---|---|---|---|---|---|---|
| 1 | 2 | 3 | ||||
| 4 | 5 | 6 | 7 | 8 | 9 | 10 |
| 11 | 12 | 13 | 14 | 15 | 16 | 17 |
| 18 | 19 | 20 | 21 | 22 | 23 | 24 |
| 25 | 26 | 27 | 28 | 29 | 30 | 31 |











