티스토리 뷰
목차
한남동인테리어 전문 업체, 구일육디자인이 이번에 시공한 오피스는 세련된 모던 스타일과 기능성을 동시에 만족시키는 공간으로 완성되었어요.
현대적인 그레이와 화이트 톤을 기반으로 밝고 쾌적한 업무 환경을 만들어 직원들의 집중력과 만족도를 높이는 데 중점을 두었죠.
사무실 입구부터 시작해 회의실, 주요 업무 공간, 개인 사무 공간까지 각 공간의 특성을 고려한 맞춤 설계가 돋보이는데요.
효율적인 동선 설계까지 더해져 건강하고 깔끔하게 설계한 모던 오피스의 결과물이 궁금하시다면 끝까지 잘 읽어보시길 바랄게요! :)
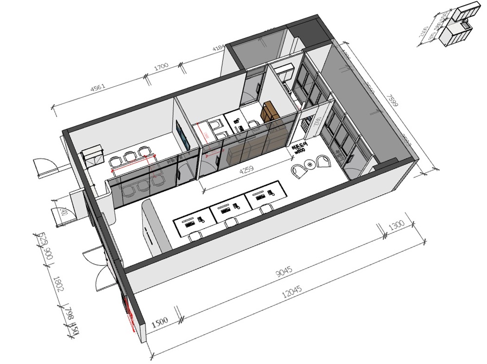
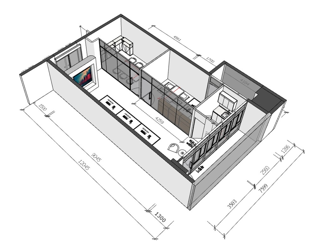
한남동인테리어 3D 디자인

시공에 앞서 3D 디자인 단계에서 공간의 구조와 배치, 조명 계획, 색감 등을 미리 시각화했어요.
입구 복도는 짙은 그레이 컬러 출입문과 깔끔한 화이트 벽, 천장으로 밝고 개방감을 주도록 계획했답니다.
원형 벽등의 은은한 조명과 투명 유리를 통한 시선 개방으로, 사무실에 들어서는 순간부터 공간의 세련됨과 친근함을 느낄 수 있도록 설계했어요.


주요 업무 공간은 그레이 톤 패브릭 칸막이를 활용해 독립성을 확보하면서도 공간 전체의 통일감을 유지하도록 구성했어요.
각 칸막이는 실용성을 고려해 서류나 메모를 걸 수 있는 구조를 포함했고 천장 LED 라인 조명 배치로 균일한 조도를 제공해 장시간 업무에도 눈의 피로를 최소화했답니다.


개인 사무 공간은 투명 유리 파티션과 블라인드를 활용해 필요 시 사생활 보호가 가능하도록 설계했어요.
인체공학적 책상과 의자를 배치해 편안한 착석감을 제공하고 금속 소재 선반으로 자료와 소품을 깔끔하게 정리할 수 있도록 계획했답니다.
자연광이 들어오는 창과 블라인드 조절로 밝고 온화한 환경을 만들었어요.
한남동인테리어 공사 진행



공사진행 단계에서는 3D 디자인에서 계획한 모든 요소를 실제 공간에 구현하는 데 집중했어요.
입구와 복도는 내구성이 뛰어난 유광 타일로 시공해 청결함과 전문성을 강조했고 벽면과 천장은 디자인 시안과 동일한 화이트 톤으로 마감했답니다.
조명 설치는 원형 벽등과 LED 라인 조명을 정확한 위치에 배치하여 공간의 분위기와 기능성을 동시에 만족시켰어요.


주요 업무 공간은 칸막이 설치, 데스크 배치, 전기 및 네트워크 선로 연결까지 세밀하게 진행했어요.
칸막이는 각 직원의 독립성과 편리성을 고려해 설치했고 책상 주변 배선과 콘센트 위치도 효율적으로 배치했답니다.



개인 사무 공간은 유리 파티션 시공과 블라인드 설치가 핵심이었어요.
설치 과정에서 유리의 투명도와 안전성을 확보하면서도 블라인드 조작이 용이하도록 세심하게 진행했답니다.
인체공학적 가구 배치와 금속 선반 설치도 함께 이루어져 실제 업무 환경에서 바로 활용 가능한 상태로 공사를 마무리했어요.
한남동인테리어 공사 완료


완성된 오피스 공간은 모던함과 편안함이 절묘하게 어우러진 모습이에요.
화이트와 그레이의 조화로운 컬러링은 깔끔하고 환한 분위기를 형성하죠.




3D 디자인 단계에서 계획한 내용을 그대로 구현하면서 실제 사용 환경에 최적화된 공간으로 완성되었어요.
입구와 복도는 짙은 그레이 출입문과 화이트 벽, 천장으로 밝고 세련된 첫인상을 주고, 원형 벽등과 자연광이 어우러져 따뜻한 분위기를 만들어줍니다.
유리 출입문은 공간의 답답함을 해소하고 내부를 자연스럽게 엿볼 수 있도록 설계되어 개방감을 극대화했어요.
유리 파티션은 개방감과 프라이버시 확보라는 두 마리 토끼를 잡았어요.
벽과 바닥, 조명, 가구가 조화롭게 만나 직원들이 최적의 업무 집중력을 발휘할 수 있는 환경이 만들어졌죠.



주요 업무 공간은 그레이 패브릭 칸막이로 적절한 독립성을 제공하면서도 전체적인 통일감을 유지해요.
각 데스크 주변에는 전선, 전원, 네트워크 케이블이 깔끔하게 정리되어 있어 업무 효율을 높이고 LED 라인 조명 덕분에 밝고 균일한 조도가 유지돼요.


벽 쪽에는 블랙 메탈 재질의 책장이 깔끔하게 배치되어 있어 다양한 서적과 문서, 소품을 정리할 수 있도록 하였으며 공간 활용도를 높이고 디자인 완성도를 높이는 역할도 합니다.
이 사무 공간은 깔끔한 라이트 그레이 타일 바닥과 흰 벽면으로 시각적 안정감과 청결함을 더했고 천장에 설치된 선형 LED 조명은 밝고 균일한 빛으로 집중력을 지원합니다.
또한 조절 가능한 블라인드 덕분에 자연광 조절이 가능해 눈의 피로를 최소화하며 쾌적한 근무 환경을 제공하죠.






사무실 내 미니 주방 공간은 깔끔한 그레이 톤의 상·하부장으로 구성되어 실용성과 통일감을 높였어요.
싱크대와 조리대가 함께 배치되어 있어 직원들이 간단한 음료나 간식을 준비하기에 편리한 구조죠.
벽면의 심플한 수전과 작은 세제용기, 그리고 깔끔하게 정돈된 커피머신과 정수기 등이 배치되어 있어 실사용에 최적화된 배려가 돋보입니다.
상부장 위에는 흰색 냉장고와 전자레인지가 자리 잡고 있고 그 위쪽에 놓인 화분과 장식 소품이 공간에 생기를 불어넣어 쾌적한 분위기를 연출했답니다.
또한 밝은 백색 천장 조명은 공간 전체를 환하게 비춰 업무 중간의 휴식 시간도 밝고 쾌적하게 만들어 줍니다.





개인 사무 공간은 유리 파티션과 블라인드로 사생활을 보호하면서도 자연광 활용이 가능해 쾌적함을 느낄 수 있어요.
인체공학적 책상과 의자, 정돈된 선반 덕분에 집중력과 업무 효율이 높아지고 블라인드 조절을 통해 개인 맞춤형 환경을 만들 수 있답니다.
전체적으로 친환경 소재를 활용해 건강한 근무 환경을 조성한 점도 돋보여요.

또한 AV 장비와 조명이 잘 구성되어 세미나 및 미팅에 최적화되었으며 충분한 수납 배치를 통해 효율성을 극대화했습니다.
특히 블라인드로 빛 조절이 가능해 눈의 피로도 낮췄고 작업 몰입도를 높인 점이 돋보입니다.

전반적으로 친환경적인 마감재와 기능적 설계 철학이 반영되어 건강과 환경 모두를 생각하는 공간으로 완성되어 클라이언트로부터 깊은 신뢰와 만족을 얻었던 시공 사례랍니다.
이번 한남동인테리어 구일육디자인의 사무실 인테리어 프로젝트는 단순한 공간 꾸미기를 넘어 직원 만족도와 업무 효율까지 고려한 모던하고 실용적인 설계가 핵심이었어요.
입구 복도부터 회의실, 주요 업무 공간, 개인 사무 공간까지 모든 요소가 체계적으로 구성되어 공간 활용과 디자인 완성도 모두 만족스러운 결과를 만들어냈답니다.




저희는 앞으로도 각 기업의 특성과 요구를 반영한 맞춤형 사무실 인테리어를 제공하며 세련된 디자인과 기능성을 동시에 잡는 공간 솔루션을 지속적으로 선보일 예정이에요.
사무실을 단순히 일하는 공간이 아니라 직원들이 즐겁게 일하고 효율적으로 업무를 수행할 수 있는 스마트 오피스로 재탄생시키는 한남동인테리어 구일육디자인의 노하우를 경험해보세요! :)
☎️ 공사문의 ☎️
010 -3235- 8427
📷 포트폴리오 더보기 📷
https://916er.com/
사무실인테리어 디자인 공사 비용견적 플랫폼 - 사무실인테리어 916
사무실인테리어 916
916er.com
2025.11.27 - [사무실인테리어] - 용인인테리어업체 추천, 둥근 곡선의 부드러운 오피스디자인 사례
용인인테리어업체 추천, 둥근 곡선의 부드러운 오피스디자인 사례
모던하고 세련된 분위기의 오피스디자인은 누구나 꿈꾸는 업무 환경이에요. 이에 따라 직원들이 편안하고 효율적으로 업무할 수 있는 오피스 환경을 만들기 위해 용인인테리어업체 구일육디자
dopamine7.com
2025.11.21 - [사무실인테리어] - 30평사무실인테리어비용 합리적으로 업체 견적 받는 꿀팁!
30평사무실인테리어비용 합리적으로 업체 견적 받는 꿀팁!
안녕하세요. 916 디자인입니다. 사무실 이전이나 개업을 앞두고 계신 분들이라면 가장 고민되는 부분 중 하나가 인테리어 비용일 텐데요. 같은 30평대 사무실이라고 하더라도 디자인이나 시공 방
dopamine7.com
2025.11.05 - [사무실인테리어] - 위례인테리어업체 공간 활용의 정석 준이층 구조의 입체적 사무실디자인
위례인테리어업체 공간 활용의 정석 준이층 구조의 입체적 사무실디자인
층고가 높은 사무실 공간을 어떻게 활용하느냐에 따라서 공간의 분위기와 효율성이 완전히 달라져요. 오늘 소개할 위례인테리어업체 구일육디자인의 사무실디자인은 높은 층고를 살려 준이층
dopamine7.com
너무
2025.11.18 - [사무실인테리어] - 여의도인테리어추천 고급진 사무실을 원하신다면 주목하세요
여의도인테리어추천 고급진 사무실을 원하신다면 주목하세요
금융과 비즈니스의 중심지인 여의도에서 경쟁력을 갖추려면 사무실인테리어가 결정적 역할을 합니다.단순한 공간 꾸미기를 넘어 기업의 품격과 정체성을 보여주는 중요한 요소이기 때문인데
dopamine7.com
'사무실인테리어' 카테고리의 다른 글
| 대전인테리어업체추천 실용적인 소형 사무실 디자인 구성 (1) | 2025.12.03 |
|---|---|
| 천안인테리어업체순위 상위권 반려묘 공간까지 갖춘 직원친화적 사무실디자인 추천 (0) | 2025.12.03 |
| 평택사무실인테리어 플랜테리어 디자인으로 쾌적함과 생산성을 동시에 (0) | 2025.12.02 |
| 판교인테리어업체 답답함 없이 넓어 보이는 사무실 디자인 설계 팁 (0) | 2025.12.01 |
| 용인인테리어업체 추천, 둥근 곡선의 부드러운 오피스디자인 사례 (0) | 2025.11.27 |
| 대전인테리어업체 사무실 시공 비용은 절감하고 디자인 퀄리티는 높이는 전략 (0) | 2025.11.26 |
| 천안인테리어업체 추천 자연광 가득 준이층 사무실 모던 & 기능적 공간 시공 포트폴리오 (0) | 2025.11.26 |
| 오래된 건물에 새 옷을 입힌 빌딩리모델링 공사 파헤치기 (0) | 2025.11.25 |
- Total
- Today
- Yesterday
- 916디자인
- 사무실리모델링
- 지식산업센터인테리어
- 회사인테리어
- 병원인테리어
- 인테리어디자인
- 사무실인테리어추천
- 3D사무실인테리어
- 사무실디자인
- 미용실인테리어
- 3D디자인
- 사무실인테리어후기
- 상가인테리어
- 학원인테리어
- 사무실인테리어비용
- 학원인테리어디자인
- 사무실인테리어업체
- 인테리어
- 사무실인테리어공사
- 사무실인테리어디자인
- 오피스인테리어
- 사무실인테리어
- 사무실인테리어잘하는곳
- 인천사무실인테리어
- 피티샵인테리어
- 헤어샵인테리어
- interior
- 사무실인테리어전문
- 사무실인테리어견적
- 헬스장인테리어
| 일 | 월 | 화 | 수 | 목 | 금 | 토 |
|---|---|---|---|---|---|---|
| 1 | 2 | 3 | ||||
| 4 | 5 | 6 | 7 | 8 | 9 | 10 |
| 11 | 12 | 13 | 14 | 15 | 16 | 17 |
| 18 | 19 | 20 | 21 | 22 | 23 | 24 |
| 25 | 26 | 27 | 28 | 29 | 30 | 31 |





