티스토리 뷰
목차
회사인테리어 3D 디자인





안녕하세요.
916디자인 입니다.
우리에게 있어서 어떠한 공간을
인테리어 한다는 것은 굉장히 중요한
과정 중 하나라 할 수 있습니다.
인테리어를 통해서 더욱 만족스러운
생활을 영위할 수 있고, 사무실의
경우 업무 생산성이 올라가기 때문에,
적합한디자인의 공간을 만들
어주시는 것이 좋습니다.
인테리어 시공 전에는
꼼꼼하게 공간을 실측하고 그에
따른 구성요소들을 채워넣는 것이
가장 중요한 만큼 오늘은 저희가
진행해드린 회사인테리어 시공
사례를 자세하게 살펴보도록 하겠습니다.






회사인테리어 시공을 의뢰해
주셨던 고객님께서는 이번에
사무실을 새롭게 개업하시게
되면서 저희에게 문의해주셨습니다.
고객님과 가능한 일정을 조율하여
상담을 하였으며, 상담 과정에서 해당
공간을 어떻게 채워넣을지에 대해
자세하게 살펴보며 3D 디자인
작업을 진행해드렸습니다.
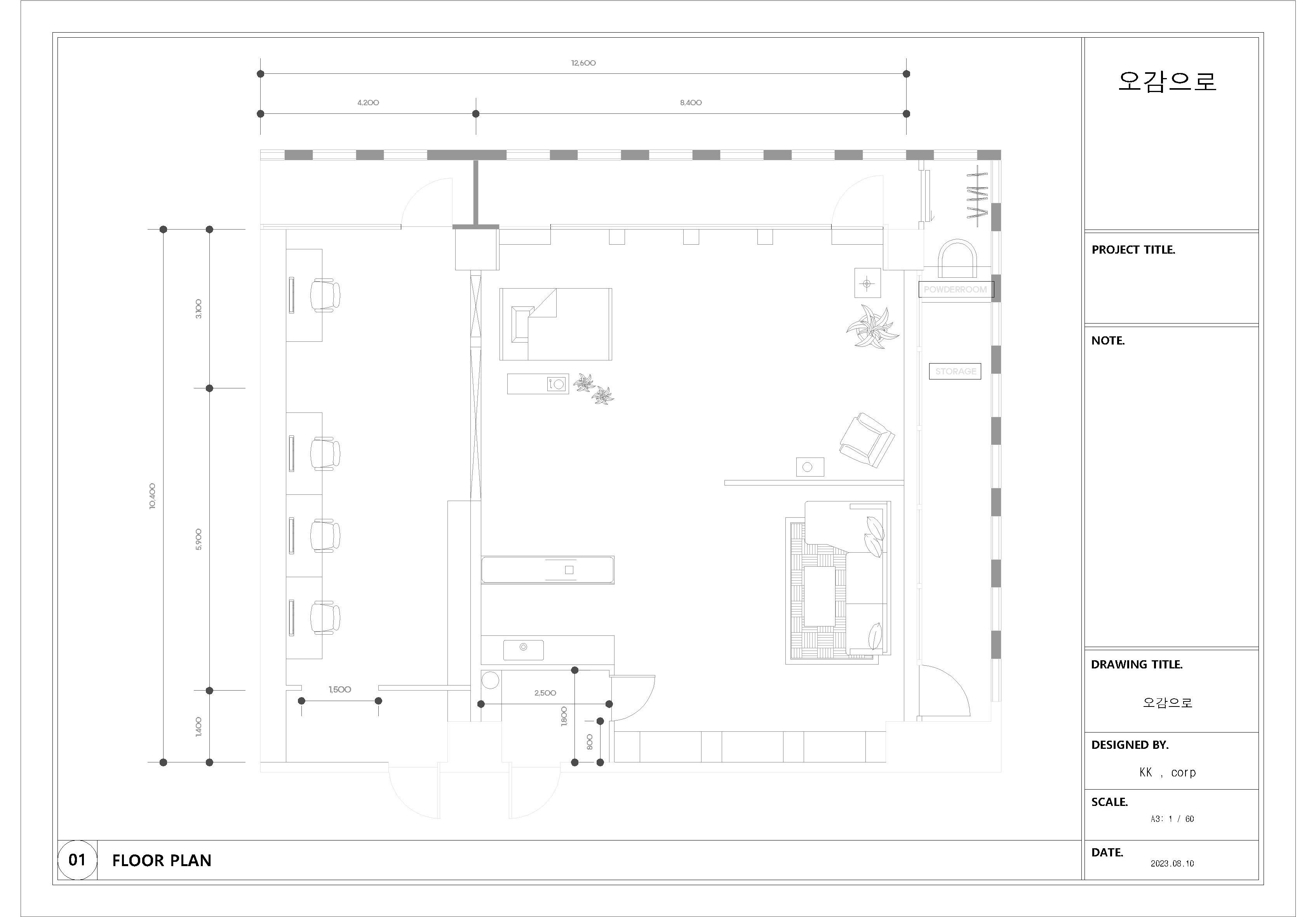
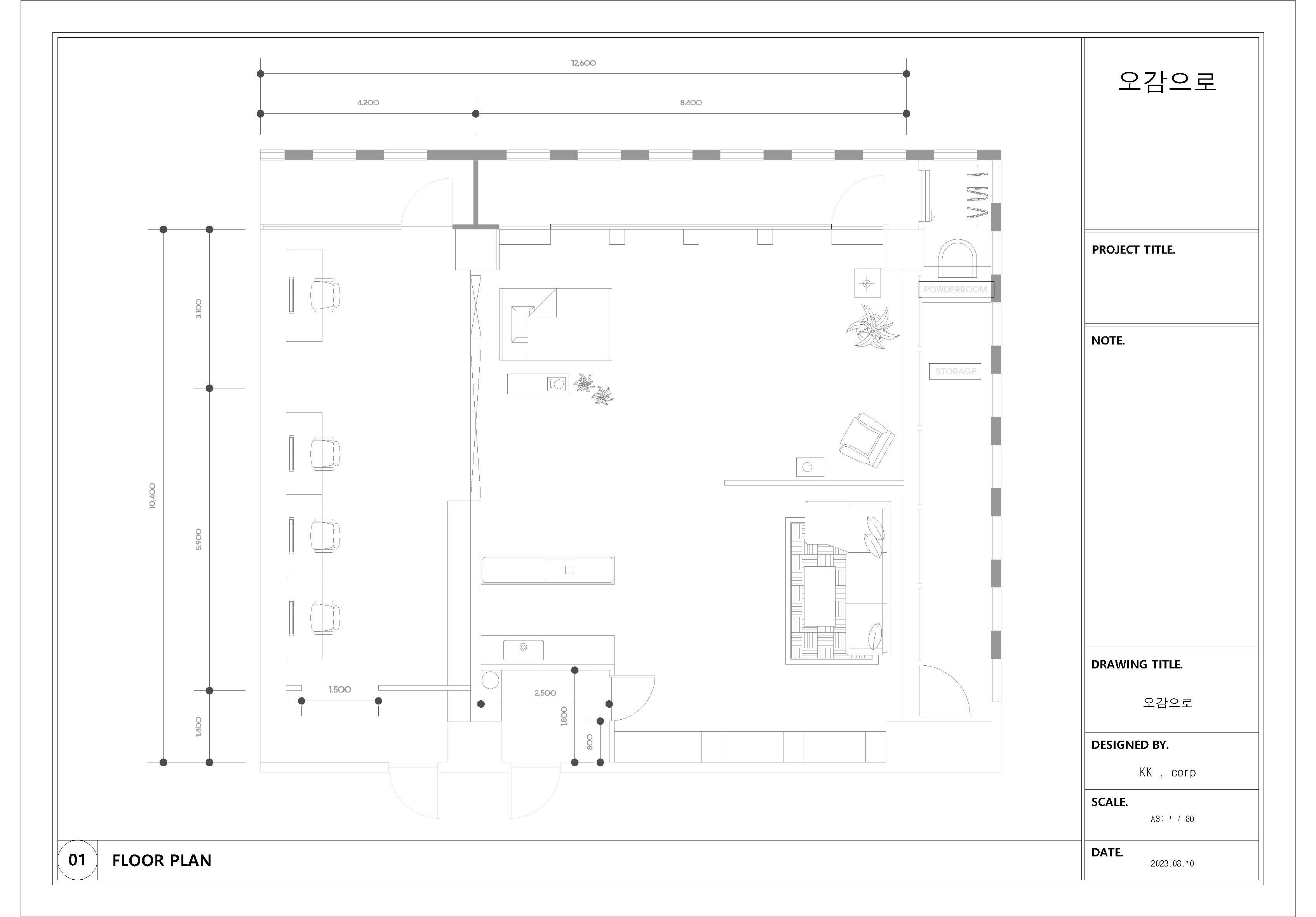
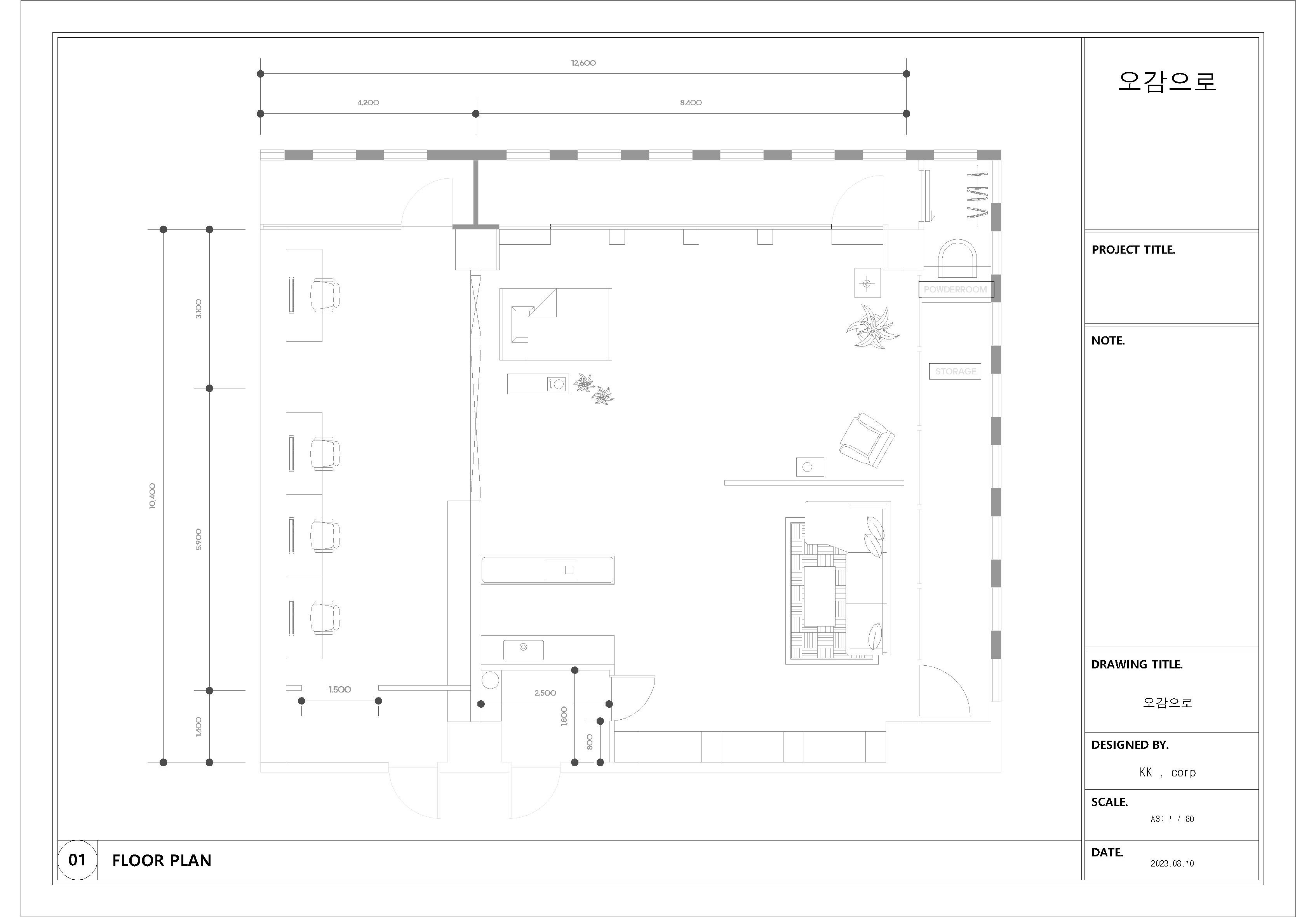
디자인 작업은 실측을 기반으로
직접 수행하며, 고객님께서
원하시는 니즈를 정확하게 반영해
드리는 만큼 제작 이후에는 본격적
인 시공을 진행하게 되었습니다.






회사인테리어 시공 중 현장
시공 시 전문성을 보유하고 있는
팀원들과 함께 작업하게 됩니다
전문 장비를 활용하기 때문에,
각각의 공간들을 담당해서 수행하며,
3D 디자인 제작 시 각 공간들을
구분지을 목재 벽을 우선으로
작업하게 됩니다.
저희가 활용하는 목재는 직접
공수해오거나 제작하여 만들기
때문에, 완벽한 결과를 제공
해드릴 수 있다는 장점이 있습니다.
작업 과정에서 각 공간들을
분리하였다면 이후에는 조명 작업부터
배선작업 등을 함께 수행합니다.






작업 과정에서 중간중간 문제는
없는지 다시한번 살펴봅니다.
마무리 작업을 하기 전에는 각
공간들이 디자인대로 잘 맞추어졌는지
살펴보며, 고객님과 실시간으로
조율해야하는 부분들은 없는지도
다시한번 살펴보게 됩니다.
고객님께서도 현장에 방문하셔서
상태를 확인하였으며, 소통이
원활하게 잘 이루어져서 오늘
인테리어 현장은 그리 오랜 시간이
소요되지 않았습니다.

사무실 내부에 특별한 공간
만드는 것이 이번 작업의
핵심이었습니다.
빈티지한 인테리어와 더불어
시티적인 감성을 주는 것이 굉장히
중요했던만큼, 마감 작업을 할 때에도
해당 포인트 공간에 문제는 없는지
지속적으로 점검해보았습니다.






회사인테리어 시공 후 현장
전체적인 시공이 완료된 현장입니다.
입구에 들어서면서 굉장히
빈티지한 인테리어라는 것을
한 눈에 알 수 있습니다.
탕비실과 더불어서 개인이 휴식
할 수 있는 공간 또한 우드톤으로
만들어 드렸으며, 화이트 색상을
각 공간에 조합하면서 전혀 어색하지
않은 공간으로 구성할 수 있었습니다.






탕비실은 누구나 사용할 수
있도록 구성해놓았습니다.
가벽을 설치해서 프라이빗한
휴식 공간을 만들어드렸으며,
사무실 평수가 넓었기 때문에,
휴게 공간 또한 굉장히 넓다는
것을 알 수 있습니다.
마치 중세시대 성 안에 들어와있는
것만같은 느낌을 받으면서 직원들
또한 업무 만족도가 높아질 수
있으리라 생각되었습니다.






전체적인 시공이 마무리 되었다면
마지막으로 각각의 공간을
점검해드렸습니다.
점검 과정에서 다른 문제는 없는지
다시한번 확인했으며, 다른 문제는
발견되지 않음에 따라 고객님에게도
최종적인 인테리어 시공 완료를
말씀드렸습니다.



오늘은 저희가 직접 진행해드렸던
회사인테리어 시공 사례를
자세하게 살펴보았습니다.
오늘 현장과 같이 사무실을 새롭게
개업하시거나 이전하심에따라 시
공을 해야한다면 저희를 통해서
해결해주시는 것이 좋습니다.
저희의 경우 다년간의 경험을
보유하고 있으며, 좋은 결과를 제공
해드릴 수 있는만큼 문의사항이 있으신
경우 편하게 문의주시기 바랍니다.
공사문의 010-3235-8427
▼▼▼▼포트폴리오 더보기▼▼▼▼
사무실인테리어 디자인 공사 비용견적 플랫폼 - 사무실인테리어 916
사무실인테리어 916
916er.com
2024.05.08 - [사무실인테리어] - 남양주인테리어 면적대비 가성비공사비용
남양주인테리어 면적대비 가성비공사비용
남양주인테리어 시공 중 현장 안녕하세요,916디자인입니다. 우리에게 있어서 인테리어는굉장히 중요한 요소라 할 수 있습니다. 인테리어를 통해서실내 환경을 보다 아름답게구성할 수 있
dopamine7.com
2024.05.09 - [사무실인테리어] - 부천인테리어업체 앞으로를 위한 확실한 준비
부천인테리어업체 앞으로를 위한 확실한 준비
부천인테리어업체 3D디자인 시안 연초에서 전자 담배로 수요와 트렌드가 옮겨 가면서 흔히 전담을 커스텀하는 분들도 많이 늘어나고 있는 추세입니다. 직접 전담 디자인과 실
dopamine7.com
2024.05.09 - [사무실인테리어] - 강동구인테리어 풍부한 경험을 바탕으로
강동구인테리어 풍부한 경험을 바탕으로
강동구인테리어 3D디자인 시안 사무실 인테리어는 아마도 많은 대표님이 항상 갖고 있는 대표적인 고민거리일 것 같습니다. 사무실은 많은 직원들이 하루 동안 상주하며 근무하는
dopamine7.com
2024.05.07 - [사무실인테리어] - 파주인테리어 마감의 퀄리티
파주인테리어 마감의 퀄리티
파주인테리어 마감의 퀄리티 3D 디자인 안녕하세요, 916디자인입니다. 최근 많은 사람들이 사무실 공간을인테리어하기 위해 고민하시는 모습들을 볼 수 있습니다. 한번 인테리어를 진행
dopamine7.com
2024.05.07 - [사무실인테리어] - 광명인테리어 공간의 재탄생
광명인테리어 공간의 재탄생
광명인테리어 공간의 재탄생 3D 디자인 안녕하세요, 916디자인입니다. 우리에게 있어서 인테리어를 하는 것은 굉장히 중요한 과정 중 하나라 할 수 있습니다. 어떤 공간을 컨셉에
dopamine7.com
'사무실인테리어' 카테고리의 다른 글
| 구리인테리어 이것이 중요하다 (1) | 2024.05.16 |
|---|---|
| 다산인테리어 비용 견적도 합리적으로 진행 (0) | 2024.05.15 |
| 서초구인테리어 핵심에 맞춘 현명한 공사 (0) | 2024.05.15 |
| 인천인테리어업체 확실한AS (2) | 2024.05.15 |
| 일산인테리어업체 합리적인 시공능력 (0) | 2024.05.14 |
| 잠실인테리어 컨셉에 따른 화사한 변신 (0) | 2024.05.14 |
| 덕소인테리어 신속한AS로 트랜드에 맞춰 가능합니다. (0) | 2024.05.14 |
| 하남인테리어 멋있게 합리적으로 공사해드립니다. (0) | 2024.05.14 |
- Total
- Today
- Yesterday
- 916디자인
- 피티샵인테리어
- 3D디자인
- 사무실리모델링
- 상가인테리어
- 사무실인테리어비용
- 사무실인테리어
- 사무실인테리어공사
- 오피스인테리어
- 인천사무실인테리어
- 병원인테리어
- 지식산업센터인테리어
- 사무실인테리어전문
- 헤어샵인테리어
- 헬스장인테리어
- 사무실인테리어잘하는곳
- 사무실인테리어후기
- interior
- 사무실인테리어업체
- 3D사무실인테리어
- 사무실디자인
- 인테리어
- 사무실인테리어디자인
- 사무실인테리어추천
- 회사인테리어
- 사무실인테리어견적
- 미용실인테리어
- 학원인테리어디자인
- 학원인테리어
- 인테리어디자인
| 일 | 월 | 화 | 수 | 목 | 금 | 토 |
|---|---|---|---|---|---|---|
| 1 | ||||||
| 2 | 3 | 4 | 5 | 6 | 7 | 8 |
| 9 | 10 | 11 | 12 | 13 | 14 | 15 |
| 16 | 17 | 18 | 19 | 20 | 21 | 22 |
| 23 | 24 | 25 | 26 | 27 | 28 | 29 |
| 30 |
