티스토리 뷰
목차
60평 70평 80평 회사 사무실 인테리어 어떤 구성으로 할까요
안녕하세요,
우리 주변을 볼 때 굉장히
많은 기업들이 올해에도 열심히
업무를 수행한다는 것을 알 수 있습니다.
회사를 운영하시는 분들의
입장에서 직원들의 만족도를
높이기 위해 인테리어를 고민하시는
분들도 굉장히 많을텐데요,
최근에는 회사의 전체적인 분위기를
고급스럽게 바꾸거나 예쁘게
디자인하는 곳들이 늘어남에 따라서
평수별로 어떻게 구성하는 것이
좋은지 알아보시곤 합니다.
오늘은 저희가 진행해드렸던
회사 사무실 인테리어 사례를
자세하게 살펴보도록 하겠습니다.
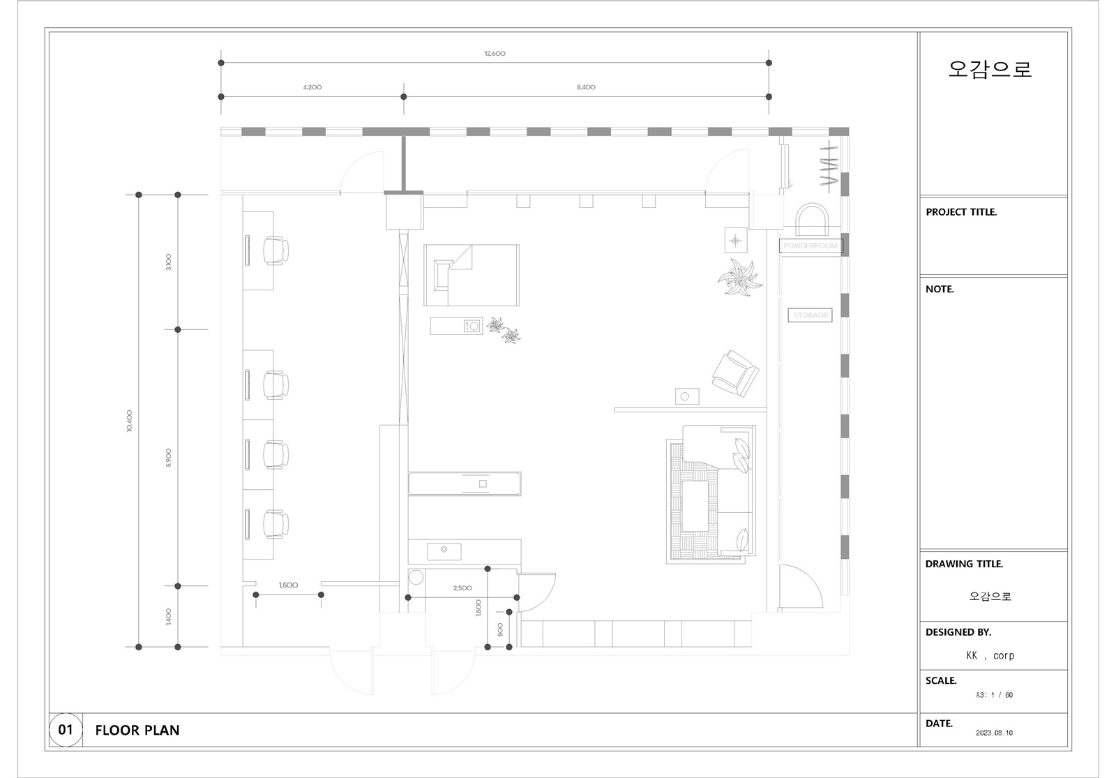
60평 70평 80평 회사 사무실 인테리어 3D 디자인






회사 사무실 인테리어 시공을
의뢰해주셨던 고객님께서는
평소 60평 70평 80평
회사 사무실 인테리어를
구성하기 위해서 고민하셨습니다.
저희 또한 고객님과의 상담을
진행했으며, 이후 3D 디자인을
설계해서 고객님의 니즈에
적합하게 도안을 만들어보았습니다.
최근에는 기술이 발달함에 따라서
상담만하고 바로 인테리어를
하는 것이 아니라 직접 3D 디자인으로
고객님과 크로스체크를 하면서 최종적인
컨펌을 받는다면 그 때 본격적인
시공을 진행하게 됩니다.
60평 70평 80평 회사 사무실 인테리어 시공 진행 현장





회사 사무실 인테리어를
진행하기 위해서는 전문성을 갖춘
팀 단위로 함께 시공하게 됩니다.
인테리어 시 필요한 자재들이
제대로 준비되었는지 점검을 하며,
전문 장비를 활용해서 최대한 수월하게
공사가 이루어질 수 있도록 준비합니다.
또한, 작업 전에는 주변 작업환경을
청결하게 만들어 놓고 시작을 해야합니다.
만약 작업환경이 청결하지 못할 경우에는
그로 인해 추가적인 안전사고가 발생하거나
인테리어 시공 시간이 많이 소요될 수
있으므로, 반드시 사전에 확인해야 합니다.





회사 사무실 인테리어는 시공을
하는 과정들이 단순하지 않습니다.
임직원들이 업무를 수행하기
위한 공간을 신경써서 구성해야하며,
다른 외부인이 방문했을때 접대할 수
있는 공간을 만들어야 합니다.
특히 60평 70평 80평
회사 사무실 인테리어의 경우라면
각각의 공간들을 신경써서 최대한
꽉차고 고급스러운 분위기를
느낄 수 있도록 구성하는 것이 좋습니다.





회사 사무실 인테리어 시공 시
공간의 용도나 추후 활용해야하는
부분에 따라서 목재로 세워주었습니다.
사람들이 지나다니면서 사무실의
분위기에 만족감을 느끼려면 공간에
맞는 조명도 설치를 해야합니다.
저희 또한 목조 활용과 더불어
전기 작업을 진행하면서 분위기가
잘 어우러질 수 있도록 작업하였습니다.





인테리어 시공을 진행하는
과정에 있어서 중간중간 점검을
하는 것은 굉장히 중요합니다.
60평 70평 80평 회사 사무실 인테리어의
경우 평수에 따라서 작업 시간이 달라지며,
작업을 할 때 중간에 문제가 발생했다는
것을 인지하지 못할 경우 시간이
지나면서 다른 문제로 이어질 수 있습니다.
그러므로 저희는 시공 과정에서
작은 실수 없이 완벽하게
진행하려고 합니다.







기본적인 틀을 모두 설치했다면,
외부를 새롭게 디자인하거나
자재를 활용하여 더욱 예쁘게 만듭니다.
벽면에는 선반을 놓아두어서
원하시는 용도에 맞게 활용할 수
있도록 만들어드렸으며, 목조벽을 통해
마치 서양적인 분위기어를 구성했습니다.
60평 70평 80평
회사 사무실 인테리어에는
빈 공간이 없도록 하는 것이
중요하며, 이와 흡사하게
시공하는 경우가 많습니다.
60평 70평 80평 회사 사무실 인테리어 시공 완료 현장



60평 70평 80평
회사 사무실 인테리어가
기본적으로 마무리되어간다면
최종적으로 작업을 수행합니다.
최종 단계에서는 조명을
설치하거나 도색을 하는 등 사무실의
공간을 완성하는 단계로 진행됩니다.





도색과 더불어 각 조명들이
제 위치에 잘 설치되었는지 확인합니다.
사무실이 전체적으로 차분한 분위기로
구성되었으며, 사무공간 또한
별도로 배치하여 임직원들이 편안하게
근무할 수 있는 공간을 만들어드렸습니다.
업무 중간에 휴식을 취할 수
있도록 휴게공간도 별도로
구성했습니다.





사무실 벽면에는
유리를 두면서
공간을 분리했습니다.
회의실의 설치와 휴게실의 공간을
같은 곳에 시공해서 거리적으로
가깝게 하였으며, 별도의 선반 설치를
통해서 다용도로 활용할 수
있도록 구성해드렸습니다.






60평 70평 80평
회사 사무실 인테리어
진행 시 전체적인 시공 과정에서
문제가 없었는지 살펴보았습니다.
만약 미흡한 공간이 있거나 다시 시공을
해야하는 부분들이 있다면
저희가 즉시 보완을 해드릴 수 있습니다.
오늘은 60평 70평 80평
회사 사무실 인테리어 시공
사례를 자세하게 살펴보았습니다.
만약 올해에는 사무실을
새롭게 디자인하고 싶으신 경우
저희를 통해서 해결해주시는
것이 좋습니다.
저희는 다년간의 경험을 통한 좋은
결과를 제공해드릴 수 있으므로,
문의사항이 있으시다면 언제든지
편하게 문의주시기 바랍니다.
공사문의 010-3235-8427
▼▼▼▼포트폴리오 더보기▼▼▼▼
사무실인테리어 디자인 공사 비용견적 플랫폼 - 사무실인테리어 916
사무실인테리어 916
916er.com
2024.02.19 - [사무실인테리어] - 영등포 디스테이트 인테리어 빈티지하고 모던한 매력
영등포 디스테이트 인테리어 빈티지하고 모던한 매력
영등포 디스테이트 인테리어 빈티지하고 모던한 매력 색감의 조합을 생각할 때에는 전체의 분위기를 고려해야 하는데요. 초록색,갈색,화이트 이런 조합을 떠올리면 어떤 분위기가 느껴지시나
dopamine7.com
2024.02.18 - [사무실인테리어] - 영등포 BH메타플렉스 인테리어 확실한 메인 컬러로 분위기 연출
영등포 BH메타플렉스 인테리어 확실한 메인 컬러로 분위기 연출
ㅇ영등포 BH메타플렉스 인테리어 확실한 메인 컬러로 분위기 연출 브랜드마다 메인 컬러 컨셉이 있는 곳들이 있는데, 지정된 색상이 있으면 소비자들도 이미지화가 쉽기 때문에 까먹지 않고 오
dopamine7.com
2024.02.17 - [사무실인테리어] - 금천구 가산 아스크타워 인테리어 펫프렌들리 적용 디자인 시공
금천구 가산 아스크타워 인테리어 펫프렌들리 적용 디자인 시공
금천구 가산 아스크타워 인테리어 펫프렌들리 적용 디자인 시공 반려동물 300만 가구 시대, 특히 최근에는 반려동물은 그저 동물이 아닌 가족의 일원으로 생각하는 분들이 많으신데요. 그렇기에
dopamine7.com
2024.02.16 - [사무실인테리어] - 송파U1+ 유원 플러스 인테리어 사무실 스튜디오 복합 구조 디자인
송파U1+ 유원 플러스 인테리어 사무실 스튜디오 복합 구조 디자인
송파U1+ 유원 플러스 인테리어 사무실 스튜디오 복합 구조 디자인 이제는 많은 분들이 오프라인 보다는 온라인을 통해서 물건을 구매하는 것이 아주 당연한 시대가 되었습니다. 그래서 로드샵보
dopamine7.com
2024.02.15 - [사무실인테리어] - 고양 덕양구 지축 현대프리미어캠퍼스 인테리어 깨끗한 화이트 컨셉
고양 덕양구 지축 현대프리미어캠퍼스 인테리어 깨끗한 화이트 컨셉
고양 덕양구 지축 현대프리미어캠퍼스 인테리어 깨끗한 화이트 컨셉 최근 인테리어의 트렌드는 '미니멀'이라고 생각하는데요. 제가 생각하는 미니멀은 모든 것이 간결해서 공간의 확장성이 도
dopamine7.com
'사무실인테리어' 카테고리의 다른 글
| 대치동인테리어 공사의 전문성을 부각 (0) | 2024.03.02 |
|---|---|
| 가산동인테리어 색다른 사무실을 만들다 (0) | 2024.03.01 |
| 강남인테리어 서초동 역삼동 인테리어공사 전문업체로 거듭나다 (1) | 2024.02.29 |
| 구로인테리어 신뢰와 믿음으로 (0) | 2024.02.28 |
| 영등포 디스테이트 인테리어 빈티지하고 모던한 매력 (0) | 2024.02.19 |
| 영등포 BH메타플렉스 인테리어 확실한 메인 컬러로 분위기 연출 (1) | 2024.02.18 |
| 금천구 가산 아스크타워 인테리어 펫프렌들리 적용 디자인 시공 (0) | 2024.02.17 |
| 송파U1+ 유원 플러스 인테리어 사무실 스튜디오 복합 구조 디자인 (0) | 2024.02.16 |
- Total
- Today
- Yesterday
- 사무실인테리어전문
- 3D디자인
- 사무실인테리어추천
- 사무실인테리어견적
- 사무실인테리어업체
- 상가인테리어
- 사무실인테리어후기
- 3D사무실인테리어
- 사무실인테리어공사
- 사무실리모델링
- 헤어샵인테리어
- 사무실인테리어디자인
- 인천사무실인테리어
- 인테리어디자인
- 회사인테리어
- 학원인테리어디자인
- 미용실인테리어
- 사무실인테리어잘하는곳
- 916디자인
- 오피스인테리어
- interior
- 사무실인테리어비용
- 피티샵인테리어
- 지식산업센터인테리어
- 사무실디자인
- 학원인테리어
- 헬스장인테리어
- 인테리어
- 사무실인테리어
- 병원인테리어
| 일 | 월 | 화 | 수 | 목 | 금 | 토 |
|---|---|---|---|---|---|---|
| 1 | 2 | 3 | 4 | |||
| 5 | 6 | 7 | 8 | 9 | 10 | 11 |
| 12 | 13 | 14 | 15 | 16 | 17 | 18 |
| 19 | 20 | 21 | 22 | 23 | 24 | 25 |
| 26 | 27 | 28 | 29 | 30 |
