티스토리 뷰
목차
마포 동교동 사무실인테리어 2층 3층 4층 기본 공사 층별 통일감 높인 효율적인 디자인 현장 사례
안녕하세요 916디자인입니다.
오늘은 총 3개의 층으로 구성 된
대형 사무실 인테리어 현장을
소개해드리려고 하는데요.
다른 층이지만 같은 사무실이라는
느낌을 주기 위해서 전체 컨셉의
통일을 원하셨던 클라이언트 분의
니즈에 따라 완성된 곳입니다.
세련되면서도 감성적이고 미니멀한 타입의
스타일을 원하셔서 노출 콘크리트 방식을
사용하였는데요.
그렇다면 직접 살펴보실까요?
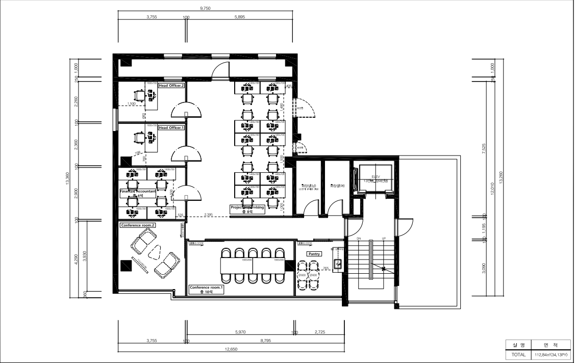
층별 평면도



규모가 큰 곳이었던만큼 직원수도 많았기에
공간의 배치에 가장 많은 신경을 썼습니다.
동선이 엉키지 않도록 단순한 배치와 더불어
프라이빗한 미팅룸 및 탕비실도 층마다
배치하였는데요.
워라밸까지 고민하면서 효율적으로
디자인한 마포 동교동 사무실인테리어 2층 3층 4층 기본 공사현장!
실제 현장 사진을 통해 더욱
자세히 알아볼게요
2층 시공 현장



우선 2층 현장부터 살펴보실텐데요.
바닥과 벽면이 노출 콘크리트 형식으로
마감된 것을 볼 수 있습니다.
그리고 색감을 비슷한 톤으로 천장까지
통일하면서 모두가 이어지는 듯 보이는
시선처리가 공간을 더욱 넓어보이게 만들어줍니다.




또한 2층 현장은 공간이 분리된듯한
스타일이 눈에 띄는데, 미팅룸과 소규모
사무실이 곳곳에 배치 된 곳입니다.
가장 낮은 층이기 때문에 손님을 맞이하는것이
동선상 효율적이라는 판단이 들어 구성하게 되었는데요.




얇은 블랙 스틸 프레임과
글라스월로 개방감으 높였습니다.
그리고 도시적인 느낌을 물씬 내면서
군더더기 없는 미니멀 사무실 인테리어를
완성할 수 있었는데요.

천장의 조명도 동일한 블랙 스틸 프레임의
레일 조명을 사용하면서 전체적으로 하나의
컨셉을 가지고간다는 아이덴티티를 명확하게
나타내고 있습니다.


또한 한 쪽에는 탕비실을 배치하였는데,
화장실과 마주보는 곳에 전체 글라스 도어로
개방감을 높였습니다.
그리고 손님을 접대해야 하는 곳인만큼
수납해야하는 물품이 많을 것 같아서
상부장과 하부장을 위아래로 여백 없이
채워드렸습니다.



탁 트인 통창 유리를 기반으로 하고 있는
이 곳은 대형 미팅룸으로 시원한
채광이 인상적인 곳인데요.
이렇게 건물 외벽에 위치한 곳은
채광을 이용한다면 그 자체만으로도
아름다운 인테리어를 선보일 수 있습니다.
3층 시공 현장




마포 동교동 사무실인테리어 2층 3층 4층 기본 공사의
3층은 더욱 탁 트인 공간을 자랑합니다.
이 곳은 사무 공간으로 쓰여질 예정이며
절제된 동선으로 직원분들께서 효율적으로
업무에만 집중할 수 있는 환경을 만들어주는데요.




일렬로 나란히 설치되어 있는
레일 조명 아래마다 각자의 책상이
배치 될 것이며 이는 업무의 집중도를
높여줄 것입니다.
그리고 보시면 노출 콘크리트의 경우
오히려 더 마감에 신경을 써야하고
별도의 마감재가 없기 때문에 더욱 고퀄리티의
작업이 요구 되는데요.
916디자인은 그 동안의 수많은 경험을
토대로 군더더기 없이 매끄러운 표면을
만들어냈으며, 천장은 배관이 보이지 않도록
깔끔하게 마무리하여 심미성을 높였습니다.



3층 탕비실의 경우 프라이빗함을 높이고
업무에 방해가 되지 않게 하기 위해서
가벽을 설치하였는데요.
아래에는 블랙 컬러의 무늬목으로
고급스러움을 높이고 위에만 글라스로
노출을 하였습니다.
또한 마찬가지로 2층 부엌과 동일한 모델을
사용하였는데 이렇게 컨셉을 통일하면
같은 자재를 활용해서 비용적인 면으로도
장점을 가질 수 있습니다.




화장실은 천장을 노출하여 층고를
높게 만들어 개방감있게 시공되었는데요.
외부와 비슷한 컬러를 사용하였고
오염에 강한 그레이색 타일로
시공되었습니다.
그리고 공간을 효율적으로 사용할 수 있는
거울장으로 마무리하였습니다.
4층 시공 현장




4층은 다른 층과 동일한 컨셉이지만
구조가 ㄱ자로 조금 다른 느낌을 줍니다.
그리고 글라스로 보이는 투명한 룸이 아니라
프라이빗한 창고가 개설되어 있습니다.



마포 동교동 사무실인테리어 2층 3층 4층 기본 공사
창고 내부는 단조롭게 만들어 필요한 물품을
보관할 수 있는데요.
프라이빗하게 사방의 시야가 차단된만큼
중요 문서나 회사의 자료들을 보관할 수 있는
팬트리처럼 쓰일 예정입니다.


다른 층과의 탕비실과 다른점이 있다면
바로 4층은 역시 조금 더 개개인의
생활을 존중하는 태도가 엿보인다는 것인데요.
불투명 시트지를 활용해 외부에서의 시야를
차단하였습니다. 그리고 그로인해 답답할 수 있으므로
상부장 위에 여백을 주어 시야를 넓혔습니다.


화장실은 샤워 수전 설치하였고
화이트 도기들로 깔끔함을 높였는데요.
마찬가지로 그레이 컬러로 통일하여서
대리석 질감의 타일과 깔끔한 컬러의 도어로
구성하였습니다.


입구의 경우 노출 콘크리트 컨셉 사이에
하늘색 컬러로 포인트를 주면서
가시성을 높였는데요.
이번 마포 동교동 사무실인테리어 2층 3층 4층 기본 공사
현장은 컨셉의 통일성에 주력하였으며 전체가 하나로
이어지는듯한 연출로 시선이 다른 곳에
분산되지 않게 만들었습니다.
업무에만 집중할 수 있는 사무실인테리어를
원하신다면 한 번 참해보시기를 바라고요.
저희 916디자인은 항상 빠른 피드백과
꼼꼼한 시공으로 도와드리고 있으니
연락 부탁드립니다.
공사문의 010-3235-8427
포트폴리오 바로가기▶916er.com
2023.01.28 - [피티샵 헬스장인테리어] - 고양 행신동 헬스장인테리어 프라이빗한 3D디자인부터 완공까지 예쁜 디자인으로
고양 행신동 헬스장인테리어 프라이빗한 3D디자인부터 완공까지 예쁜 디자인으로
고양 행신동 헬스장인테리어 프라이빗한 3D디자인부터 완공까지 예쁜 디자인으로 안녕하세요 916디자인입니다. 상업 공간은 고객을 상대하는 업종으로 시각적인 부분이 매우 중요한 만큼 기존
dopamine7.com
2023.01.26 - [사무실인테리어] - 강남 서초동 법무법인인테리어 전문적이고 차분한 분위기의 리모델링 계획부터 디자인 시공까지
강남 서초동 법무법인인테리어 전문적이고 차분한 분위기의 리모델링 계획부터 디자인 시공까
강남 서초동 법무법인인테리어 전문적이고 차분한 분위기의 리모델링 계획부터 디자인 시공까지 안녕하세요 사무실인테리어 전문업체 916디자인입니다. 최근에는 사무실인테리어도 하나의 경
dopamine7.com
2023.01.23 - [사무실인테리어] - 대전 가온비즈타워 지식산업센터인테리어 90평 사무실 시공 현장 정돈된 프레임 디자인으로 효율적인 배
대전 가온비즈타워 지식산업센터인테리어 90평 사무실 시공 현장 정돈된 프레임 디자인으로 효
대전 가온비즈타워 지식산업센터인테리어 90평 사무실 시공 현장 정돈된 프레임 디자인으로 효율적인 배치 안녕하세요 사무실인테리어 전문업체 916디자인입니다. 지식산업센터인테리어는 층
dopamine7.com
2023.01.18 - [빵집 카페인테리어] - 강남인테리어 다이닝 음식점 디자인 감성적인 무드로 표현하는 맛집 추천
강남인테리어 다이닝 음식점 디자인 감성적인 무드로 표현하는 맛집 추천
강남인테리어 다이닝 음식점 디자인 감성적인 무드로 표현하는 맛집 추천 안녕하세요 916디자인입니다. 오늘은 보기만해도 방문하고 싶어지는 고급스러운 다이닝 음식점 인테리어를 선보이려
dopamine7.com
2023.01.16 - [사무실인테리어] - 광명 티타워 지식산업센터인테리어 대형평수도 문제없이 예쁜 디자인으로 시공한 현장 견적
광명 티타워 지식산업센터인테리어 대형평수도 문제없이 예쁜 디자인으로 시공한 현장 견적
광명 티타워 지식산업센터인테리어 대형평수도 문제없이 예쁜 디자인으로 시공한 현장 견적 안녕하세요 지식산업센터 인테리어 전문 업체 916디자인입니다. 지식산업센터가 일반 건물보다 공
dopamine7.com
'사무실인테리어' 카테고리의 다른 글
| 사무실 파사드 인테리어 디자인, 첫인상을 결정짓는 중요한 디테일 (0) | 2023.02.24 |
|---|---|
| 사무실 아트월 인테리어 공간의 정체성을 매력적으로 보여주는 디자인 시공사례 모음 (1) | 2023.02.21 |
| 사무실 유리가벽 공간을 더 넓어보이게 만드는 시공 디자인 현장 사례 (0) | 2023.02.17 |
| 의정부 남양주사무실인테리어 매력적인 디자인으로 시공 견적 (1) | 2023.02.15 |
| 강남 서초동 법무법인인테리어 전문적이고 차분한 분위기의 리모델링 계획부터 디자인 시공까지 (0) | 2023.01.26 |
| 대전 가온비즈타워 지식산업센터인테리어 90평 사무실 시공 현장 정돈된 프레임 디자인으로 효율적인 배 (1) | 2023.01.23 |
| 광명 티타워 지식산업센터인테리어 대형평수도 문제없이 예쁜 디자인으로 시공한 현장 견적 (0) | 2023.01.16 |
| 강남 서초구 사무실인테리어 160평 대형평수 예쁜 디자인 공간별 매력을 살리는 맞춤 설계 (0) | 2023.01.13 |
- Total
- Today
- Yesterday
- 916디자인
- 학원인테리어디자인
- 인천사무실인테리어
- 사무실인테리어잘하는곳
- 사무실인테리어후기
- 사무실디자인
- 사무실인테리어추천
- 사무실인테리어디자인
- 학원인테리어
- 사무실인테리어공사
- 피티샵인테리어
- 지식산업센터인테리어
- 3D사무실인테리어
- 회사인테리어
- 사무실인테리어업체
- 미용실인테리어
- 인테리어디자인
- 3D디자인
- 병원인테리어
- 인테리어
- 오피스인테리어
- 사무실인테리어비용
- 사무실인테리어
- interior
- 사무실리모델링
- 사무실인테리어견적
- 상가인테리어
- 사무실인테리어전문
- 헤어샵인테리어
- 헬스장인테리어
| 일 | 월 | 화 | 수 | 목 | 금 | 토 |
|---|---|---|---|---|---|---|
| 1 | 2 | |||||
| 3 | 4 | 5 | 6 | 7 | 8 | 9 |
| 10 | 11 | 12 | 13 | 14 | 15 | 16 |
| 17 | 18 | 19 | 20 | 21 | 22 | 23 |
| 24 | 25 | 26 | 27 | 28 | 29 | 30 |
| 31 |
