티스토리 뷰
목차
대전 가온비즈타워 지식산업센터인테리어 90평 사무실 시공 현장 정돈된
프레임 디자인으로 효율적인 배치
안녕하세요 사무실인테리어 전문업체 916디자인입니다.
지식산업센터인테리어는 층고가 높고 대부분 오픈형 구조로 되어있어 일반 시공보다 고려해야할 부분이 많습니다. 특히 사무실 인테리어는 기업에 따라 추구하는 방향성이나 아이텐티티 등이 모두 다르기 때문에 이를 반영한 설계가 필요 합니다. 그래서 디자인이나 시각적인 요소도 중요한만큼 클라이언트분의 니즈에 따라 3D디자인을 제안 드리고 있는데요. 오늘 현장도 이러한 니즈들이 반영되었으니 한 번 살펴보실까요?
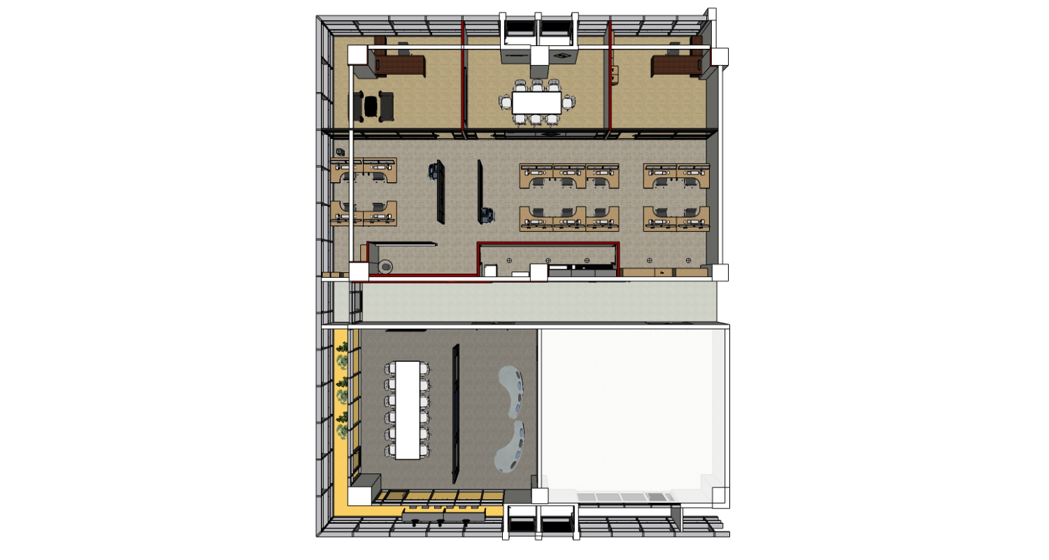
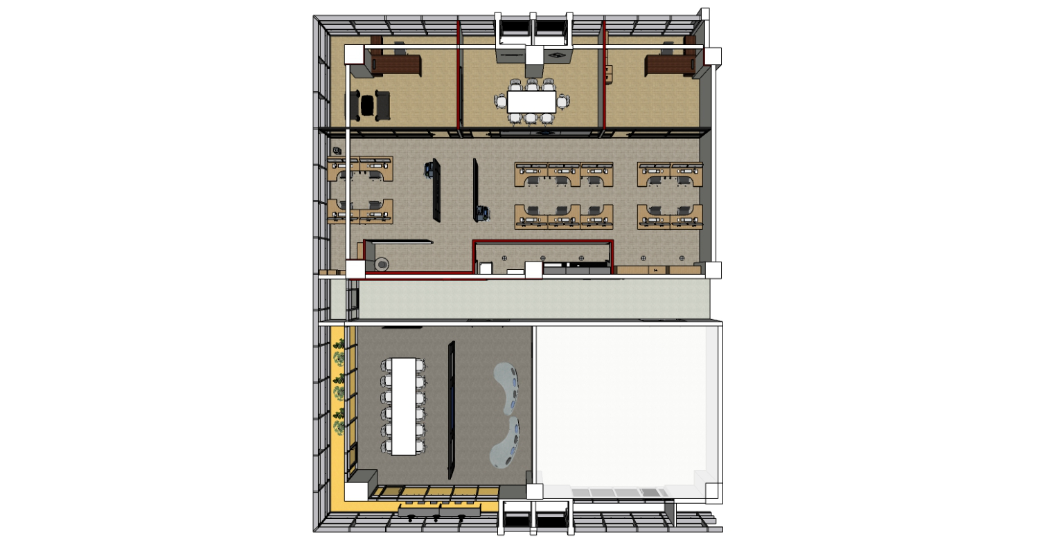
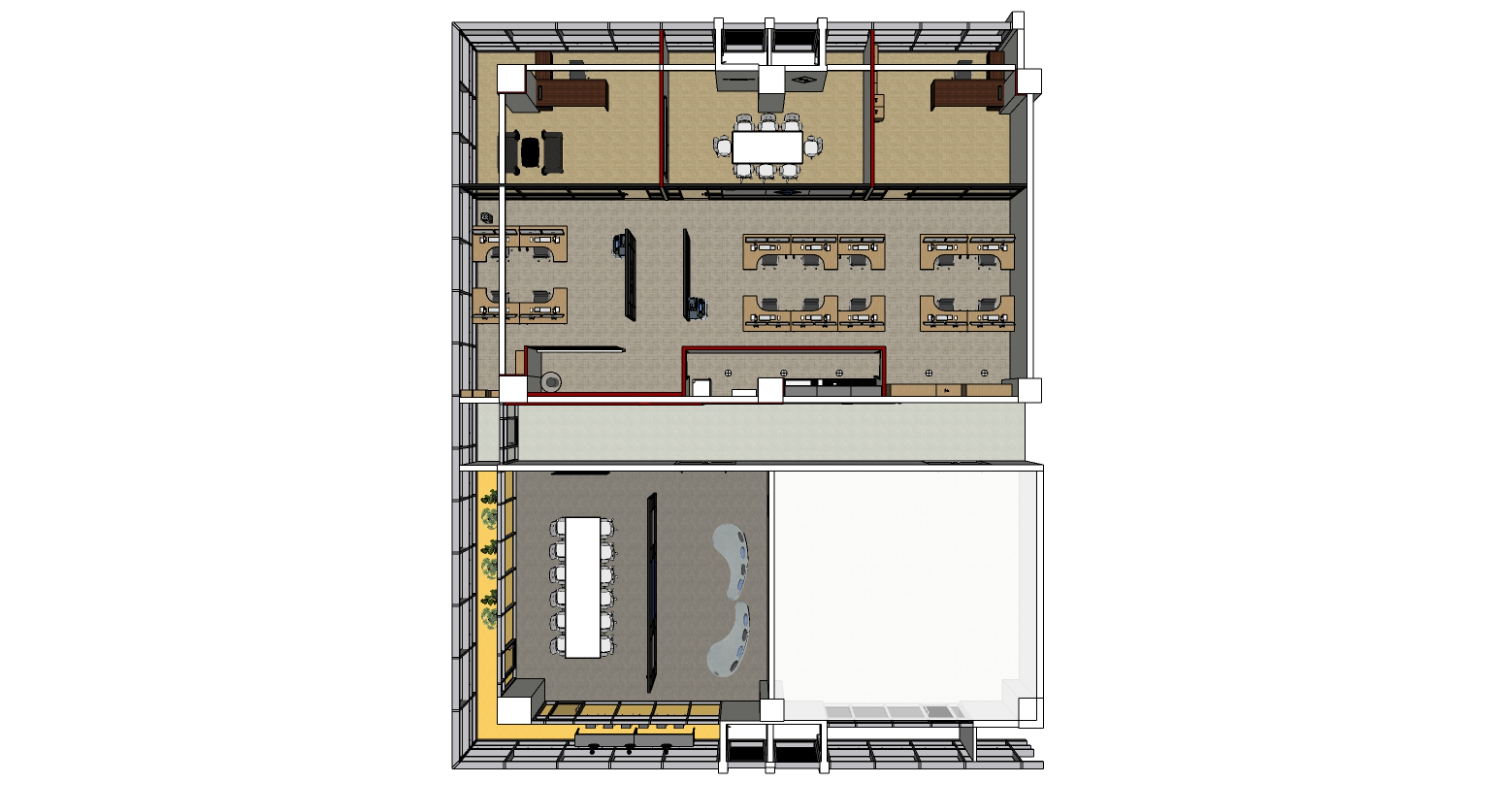
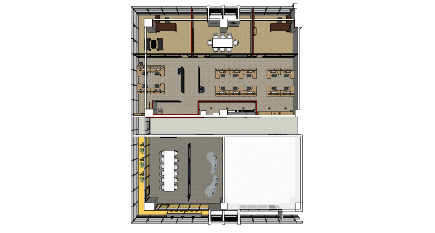
3D 디자인 설계


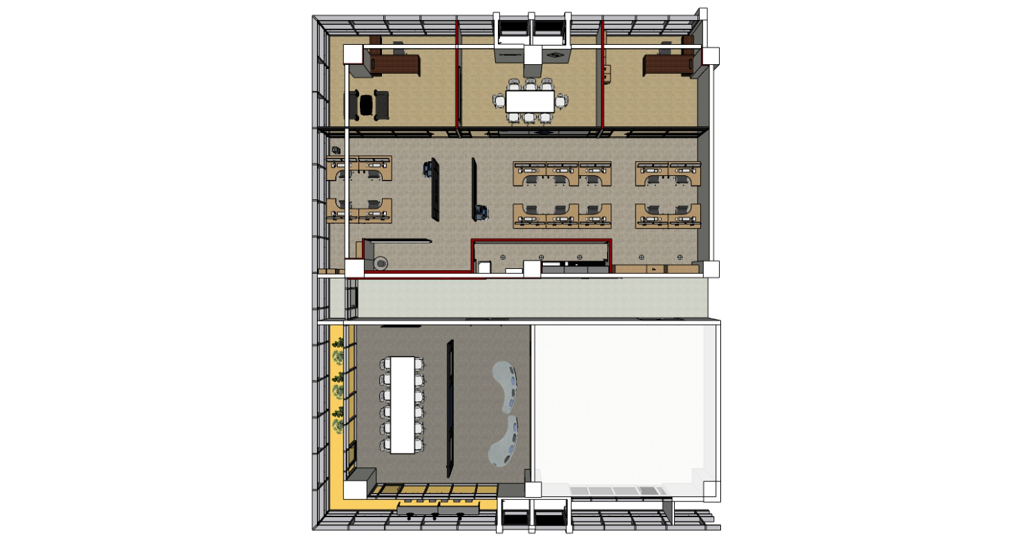
오늘 소개해드릴 현장은 대전 가온비즈타워 지식산업센터인테리어 90평 사무실입니다. 복도를 기준으로 크게 두 공간으로 구분을 했고 이동 동선에 따라 사무실을 중앙에 배치 했습니다.



3D디자인으로 대전 가온비즈타워 사무실인테리어로 디테일하게 이미지화한 모습입니다.화이트&블루로 포인트를 준 트렌디한 디자인에 글라스월로 개방감 있게 구성을 했습니다.


컬러와 조명, 마감재까지 전체적인 컨셉에 맞춰 디테일하게 설정 했습니다. 최종시안 확정 후 현장 실측을 진행 했습니다.
시공 진행 현장



대전 가온비즈타워 지식산업센터인테리어 90평 사무실 시공 전 모습입니다. 신축건물로 깔끔하며, 탁 트인 오픈형 구조입니다. 하얀 도화지에 그림을 그리는 것 처럼 천장, 바닥, 벽체까지 새로 셀계를 진행하여 새로운 공간으로 완성 시켰습니다.




현장 실측을 통해 체계적인 시공 계획을 수립했고 시공 일정에 따라 작업이 진행되었습니다. 이렇게 하나씩 디테일한 부분도 신경을 쓰면서 만들었고 작업자들끼리도 끊임없는 소통을 이어가며 시공하였는데요.




먼저 불필요한 천장과 바닥 구조물을 깔끔하게 제거 했습니다. 업무 공간에는 빌트인 콘센트를 설치하기 위에 기존 마감재를 전체적으로 들어냈습니다. 사무실은 다수의 콘센트가 필요하기도 하고 테이블과 의자, 파티션 등을 배치 해야하기 때문에 매립형으로 설치를 해야 공간 효율성을 높일 수 있기 때문입니다.




기존의 오픈형 구조를 그대로 사용하기에는 업무의 집중력을 높일 수 없기 때문에 철거 후 목공 작업으로 가벽의 뼈대를 세웠습니다.


사무실과 화의실 등은 글라스월로 설치할 예정이라 철골 작업으로 튼튼하게 뼈대를 세웠습니다. 목공 작업과 동일한 디테일로 통일감을 더해주었고 공간에 따라서 도장, 시트지, 컬러 등 여러 방법으로 마무리 했습니다.


글라스월을 가벽으로 사용했기 때문에 철골 프레임을 블랙으로 설정하여 확실하게 공간을 구분했습니다. 대전 가온비즈타워 지식산업센터인테리어 90평 사무실 시공이 완성된 모습을 함께 확인해보도록 하겠습니다.
시공 마감 현장

먼저 사무실 입구는 기업의 아이덴티티를 표현하는 블루 컬러를 포인트로 사용 했습니다. 디자인 자체는 심플하지만 컬러와 간접등을 사용해 대전 가온비즈타워만의 특색을 살렸습니다.
입구는 복도를 두고 두개의 공간으로 나눠 각각의 공간에 맞춰 시공을 진행 했습니다.



첫번째로 살펴볼 공간은 컨퍼런스룸과 휴게실로 구성된 좌측 공간입니다. 글라스월 파티션에 블루 컬러와 불투명 시트지로 포인트를 주면서 공간을 가볍게 구분 해주었습니다. 여기에 노란색을 사용해 밝은 분위기에 트렌디한 감성까지 더해졌는데요. 글라스월 파티션이기에 공간을 나누면서도 답답한 느낌이 없는 것이 특징입니다.


우측 공간에도 비슷한 구성의 휴게실이 구성되어 있습니다. 사무 공간이 있는곳이라 휴게실은 그레이 컬러로 모던한 디자인으로 완성 했습니다. 차분한 느낌을 주며 가구를 마주보도록 배치하여 안정감까지 느껴지는 공간이 되었습니다.


자유로운 업무 환경을 지향하는 기업인 만큼 테라스 공간에도 테이블과 의자를 배치하여 잠시나마 여유로운 시간을 가질 수 있도록 하였는데요. 스톤 디자인에 바 테이블과 트렌디한 펜던트 조명으로 색다른 분위기가 연출 되었습니다. 그리고 굳이 외출하지 않아도 탁 트인 창문을 통해 개방감을 느낄 수 있는 곳이기도 합니다.



다음은 대전 가온비즈타워 지식산업센터 인테리어 90평 사무실 시공 완료 모습입니다. 사무실은 공간의 사용 목적에 따라 집중도를 높일 수 있도록 심플한 인테리어로 진행 했습니다. 또한 컬러감을 비비드하게 활용하면서 삭막하지 않고 개성있는 공간으로 진행하였습니다.

이동 동선을 고려하여 복도를 활용하여 탕비실로 구성 했습니다. 효율성을 높이기 위해 상하부장을 모두 설치했고 정수기, 전자렌지는 물론 수도 공사로 싱크대도 설치하여 공간 효율성을 높였습니다.블랙 색상으로 도장하면서 시니컬한 느낌을 더하였으며, ㅡ 자 구성으로 빌트인 느낌을 극대화하였습니다.



별도로 배치된 공간을 살펴보면 설계 특성상 기둥이 생긴 부분은 글라스월로 가벽을 세워 회의실로 구성 했습니다. 기둥에는 기업 로고를 넣은 사인물로 자연스럽게 시각적인 효과를 주었는데요. 이런 포인트들이 공간에 목적성을 더해주고 파란색감이 시원한 이미지를 가져다 줍니다.



마지막으로 살펴볼 공간은 컨퍼런스룸입니다. 컨퍼런스룸에는 개방감 있는 공간의 특성을 그대로 살렸습니다. 화이트에 파스텔 블루 컬러를 사용하여 보다 편안하고 자유로운 분위기를 연출 했습니다. 또한 천장에는 일자 조명으로 높은 천고 느낌을 내었으며 세로로 긴 공간의 특징을 더욱 잘 표현하였는데요.

여기까지 대전 가온비즈타워 지식산업센터 인테리어 90평 사무실 시공 현장이었습니다.
제안 드렸던 3D디자인과 유사한 모습으로 완공되어 클라이언트분의 만족도가 매우 높았습니다.
916디자인에서는 공간과 사용 목적에 따른 맞춤형 시공을 도와드리고 있으니 편안하게 연락 주시길 바랍니다.
홈페이지와 블로그를 참고 하시면 사무실 뿐만 아니라 카페, 헬스장, 필라테스 등 다양한 상업 공간 인테리어
포트폴리오를 확인하실 수 있으며 아래의 번호로 연락주신다면 빠른 상담을 도와드리겠습니다.
공사문의 010-3235-8427
포트폴리오 바로가기▶916er.com
2023.01.18 - [빵집 카페인테리어] - 강남인테리어 다이닝 음식점 디자인 감성적인 무드로 표현하는 맛집 추천
강남인테리어 다이닝 음식점 디자인 감성적인 무드로 표현하는 맛집 추천
강남인테리어 다이닝 음식점 디자인 감성적인 무드로 표현하는 맛집 추천 안녕하세요 916디자인입니다. 오늘은 보기만해도 방문하고 싶어지는 고급스러운 다이닝 음식점 인테리어를 선보이려
dopamine7.com
2023.01.16 - [사무실인테리어] - 광명 티타워 지식산업센터인테리어 대형평수도 문제없이 예쁜 디자인으로 시공한 현장 견적
광명 티타워 지식산업센터인테리어 대형평수도 문제없이 예쁜 디자인으로 시공한 현장 견적
광명 티타워 지식산업센터인테리어 대형평수도 문제없이 예쁜 디자인으로 시공한 현장 견적 안녕하세요 지식산업센터 인테리어 전문 업체 916디자인입니다. 지식산업센터가 일반 건물보다 공
dopamine7.com
2023.01.13 - [사무실인테리어] - 강남 서초구 사무실인테리어 160평 대형평수 예쁜 디자인 공간별 매력을 살리는 맞춤 설계
강남 서초구 사무실인테리어 160평 대형평수 예쁜 디자인 공간별 매력을 살리는 맞춤 설계
강남 서초구 사무실인테리어 160평 대형평수 예쁜 디자인 공간별 매력을 살리는 맞춤 설계 안녕하세요 사무실인테리어 전문업체 916디자인입니다. 오늘은 최근 진행한 강남 서초구 사무실인테리
dopamine7.com
2023.01.09 - [DOPAMINE] - 동작구 상도동 돈까스 매장인테리어 카츠디나인 매력적인 맛집 상가 디자인 연출
동작구 상도동 돈까스 매장인테리어 카츠디나인 매력적인 맛집 상가 디자인 연출
동작구 상도동 돈까스 매장인테리어 카츠디나인 매력적인 맛집 상가 디자인 연출 안녕하세요 매장인테리어 전문업체 916디자인입니다. 매장인테리어의 가장 큰 장점은 인테리어가 매장을 홍보
dopamine7.com
2023.01.06 - [사무실인테리어] - 부천사무실인테리어 75평 지식산업센터 고급스러운 디자인으로의 변화
부천사무실인테리어 75평 지식산업센터 고급스러운 디자인으로의 변화
부천사무실인테리어 75평 지식산업센터 고급스러운 디자인으로의 변화 안녕하세요 사무실 인테리어 전문업체 916 디자인입니다. 오늘 소개해 드릴 디자인은 부천 지식산업센터의 75평 사무실 입
dopamine7.com
'사무실인테리어' 카테고리의 다른 글
| 사무실 유리가벽 공간을 더 넓어보이게 만드는 시공 디자인 현장 사례 (0) | 2023.02.17 |
|---|---|
| 의정부 남양주사무실인테리어 매력적인 디자인으로 시공 견적 (1) | 2023.02.15 |
| 마포 동교동 사무실인테리어 2층 3층 4층 기본 공사 층별 통일감 높인 효율적인 디자인 현장 사례 (0) | 2023.02.02 |
| 강남 서초동 법무법인인테리어 전문적이고 차분한 분위기의 리모델링 계획부터 디자인 시공까지 (0) | 2023.01.26 |
| 광명 티타워 지식산업센터인테리어 대형평수도 문제없이 예쁜 디자인으로 시공한 현장 견적 (0) | 2023.01.16 |
| 강남 서초구 사무실인테리어 160평 대형평수 예쁜 디자인 공간별 매력을 살리는 맞춤 설계 (0) | 2023.01.13 |
| 부천사무실인테리어 75평 지식산업센터 고급스러운 디자인으로의 변화 (0) | 2023.01.06 |
| 마포구 서교동 건물인테리어 미디어회사 지하층 시공현장 업종별 맞춤 디자인 비용 (0) | 2023.01.01 |
- Total
- Today
- Yesterday
- 미용실인테리어
- 상가인테리어
- 사무실디자인
- 헤어샵인테리어
- 사무실인테리어잘하는곳
- 3D디자인
- 인테리어디자인
- 사무실인테리어공사
- 사무실리모델링
- 오피스인테리어
- 피티샵인테리어
- 사무실인테리어후기
- 3D사무실인테리어
- 병원인테리어
- 인천사무실인테리어
- 사무실인테리어전문
- 인테리어
- interior
- 사무실인테리어비용
- 학원인테리어디자인
- 회사인테리어
- 사무실인테리어업체
- 사무실인테리어추천
- 916디자인
- 헬스장인테리어
- 사무실인테리어디자인
- 지식산업센터인테리어
- 학원인테리어
- 사무실인테리어견적
- 사무실인테리어
| 일 | 월 | 화 | 수 | 목 | 금 | 토 |
|---|---|---|---|---|---|---|
| 1 | 2 | 3 | 4 | 5 | 6 | 7 |
| 8 | 9 | 10 | 11 | 12 | 13 | 14 |
| 15 | 16 | 17 | 18 | 19 | 20 | 21 |
| 22 | 23 | 24 | 25 | 26 | 27 | 28 |
| 29 | 30 | 31 |
