티스토리 뷰
목차
강남인테리어 청담동 한우전문점 최상의 고급스러움을 선사하는 공간연출
안녕하세요 916디자인입니다.
오늘은 최상의 고급스러움을 선사하는
강남인테리어 청담동 한우전문점 공간
연출 현장 소개를 준비 했습니다.
고급스러운 식당 인테리어를 원하시는
분들이라면 참고 하시기 좋은 사례입니다.
다양한 요소들을 넣어 고급스러운 이미지를
더해주었고, 프라이빗함을 더한 구성으로
공간 효율성까지 높였습니다.
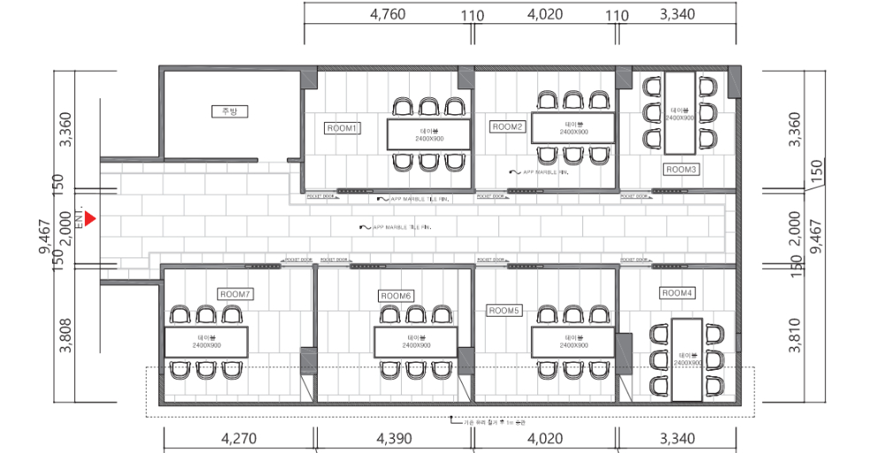
3D디자인부터 먼저 살펴볼까요?
3D 디자인 시공



입구 부분은 화이트&그린에 골드 컬러를
포인트로 사용 했습니다.
조명은 천장 라인을 따라 간접등을 설치했고
추가로 매립등과 벽면 조명을 설치해 밝은
분위기를 연출 했습니다.


한우전문점은 2층 건물로 1,2층 디자인 컨셉을
다르게 설정 했는데요.
1층은 라이트한 컬러를 메인으로 사용했고
로비와 동일하게 그린&골드 컬러로 포인트를
주었습니다.
그리고 인조 대리석 마감재로 고급스러운
분위기를 연출해줄 예정입니다.



룸마다 인테리어 컨셉을 조금씩 다르게
구성해 다채롭게 1층 디자인을 제안
드렸습니다.


한우전문점 2층 인테리어에는 모던한
디자인으로 구성 했는데요.
복도는 똑같이 라이트한 컬러의 인조
대리석 마감재를 사용했는데 여기서
패턴을 단순화 하여 심플하게 제안
드렸습니다.



2층 룸도 마찬가지로 각각 다른 디자인으로
디자인 했는데요.
적용된 디자인은 다르지만 전체적으로
고급스러움이 느껴질 수 있게 컬러나
마감재를 신경 써서 사용 했습니다.
클라이언트분과 함께 최종 시안 확정 후
일정에 따라 현장 작업이 시작되었습니다.
시공 진행 현장




먼저 기존 매장을 깔끔하게
철거부터 진행 했습니다.
오래된 매장이라 이곳저곳 노후된 부분도
많고, 1층과 2층 모두 공간 설계가 달라져서
철거 작업이 전체적으로 들어갔습니다.




철거 후에는 목공 작업으로 새로운 설계에
따라 기본 틀을 잡아주었습니다. 그리고 지상
공사와 함께 지하 1층 주방 공사도 함께
진행 했는데요.





각각의 공간들마다 전문가들이 배치되어,
꼼꼼하고 신속하게 작업이 되었습니다.

그럼 지금부터 최상의 고급스러움을
선사하는 한우전문점 현장이 어떻게
완성 되었는지 함께 살펴볼까요?



강남 한우전문점은 외관에서부터 고급스러운
디자인이 돋보입니다.
중간에는 화이트 컬러에 큰 사이즈의
사인물을 넣어 깔끔하게 포인트를
주었습니다.
또한, 골드 컬러와 양문형 도어로
고급스러움을 더해주었습니다.




내부로 들어가면 가장 먼저 리셉션이
위치해있습니다.
리셉션은 스톤 디자인과 대형 샹들리에로
포인트를 주었는데요. 이질감 없이 인조
대리석과 화이트 인테리어에 자연스럽게
연출된 것 같습니다.



리셉션 바로 옆쪽으로는 화려한 골드
인테리어의 로비 공간으로 구성 했습니다.
로비 방향으로도 룸들은 문으로 완전히
공간을 구분해주었는데요.
공간 자체는 구분되어 있으나 입구 바로
앞으로 위치해있어서 이렇게 대형 구조물을
넣어 고급스러운 포인트는 물론 외부 시야를
차단 시켜주는 효과까지 주었습니다.


제안드린 3D디자인처럼 1층은 라이트한
컬러들로 시공해 밝은 분위기로 완성
되었습니다.



계단을 따라 2층으로 올라가보겠습니다.
시공 전 우드 시트지로 작업 되어있던
계단도 인조 대리석과 네이비 마감재로
고급스럽게 연출 되었습니다.
난간 사이로는 글라스월을 넣어 안정감과
개방감을 모두 살렸습니다.




다크한 컬러들이 주로 사용되어 1층보다
무게감이 느껴지는 2층 복도입니다.
그 대신 다양한 패턴의 마감재가 사용되었고
천장에 조명을 적극적으로 설치해 답답함을
줄였습니다.
벽면 하단에는 1층에서 사용된 그린 컬러로
포인트를 주어 통일감이 느껴지도록
만들었습니다.


2층의 다양한 룸 디자인을 소개해드리겠습니다.
첫 번째 공간은 그레이 컬러의 디자인과 간접
조명으로 심플하고 모던하게 완성 되었습니다.


두 번째 공간에는 그레이 디자인에 네이비
포인트를 더해주었는데요.
복도에서 사용한 패던과 동일한 패턴의
디자인을 적용 했습니다.


그리고 세번째 공간은 그레이 디자인에
화이트 컬러의 비중을 높여 가장 밝은
분위기로 연출 시켰습니다.
세 공간 모두 포인트 요소들이 확실하지만,
바닥 마감재와 벽면 그림, 그레이 컬러 등
동일한 요소들을 넣어 통일감을 주었습니다.


마지막으로 살펴볼 공간은 대리석 마감재로
고급스럽게 완성된 화장실입니다. 천장과
거울 상하단으로 조명을 설치해 은은한
분위기로 연출되었습니다.
그리고 세면대와 수전 디자인까지 신경써
트렌디한 제품으로 시공 했습니다.
여기까지 최상의 고급스러움을 선사하는
청담동 한우전문점 강남인테리어 시공
현장이었습니다.
시공 전후를 비교해보면 같은 공간이라고
믿기지 않을 정도로 분위기와 구조 모두
달라져 클라이언트분의 만족도가 매우
높은 현장이었습니다.
916디자인에서는 매장의 이미지를 살린
디자인을 제안드리고 있으니, 창업을
준비하고 계시다면 부담없이 상담
받아보시길 바랍니다.
공사문의 010-3235-8427
포트폴리오 바로가기▶916er.com
2023.07.02 - [학원인테리어] - 어린이 워터룸 키즈풀 카페인테리어 아이들이 좋아하는 디자인 합리적인 시공견적
어린이 워터룸 키즈풀 카페인테리어 아이들이 좋아하는 디자인 합리적인 시공견적
어린이 워터룸 키즈풀 카페인테리어 아이들이 좋아하는 디자인 합리적인 시공견적 안녕하세요 916디자인입니다. 오늘은 아이들이 좋아하는 디자인, 합리적인 시공견적으로 완성된 어린이 워터
dopamine7.com
2023.07.01 - [사무실인테리어] - 구리 갈매 서영아너시티 지식산업센터 인테리어 감성 가득한 입주기업 리모델링 비용 견적
구리 갈매 서영아너시티 지식산업센터 인테리어 감성 가득한 입주기업 리모델링 비용 견적
구리 갈매 서영아너시티 지식산업센터 인테리어 감성 가득한 입주기업 리모델링 비용 견적 안녕하세요 916디자인입니다. 오늘은 트렌디한 사무실인테리어를 찾으시는 분들이 참고 하시기 딱 좋
dopamine7.com
2023.06.29 - [사무실인테리어] - 인천 청라 더리브 티아모 지식산업센터 인테리어 트렌디함이 가득한 MZ느낌의 입주 오피스
인천 청라 더리브 티아모 지식산업센터 인테리어 트렌디함이 가득한 MZ느낌의 입주 오피스
인천 청라 더리브 티아모 지식산업센터 인테리어 트렌디함이 가득한 MZ느낌의 입주 오피스 안녕하세요 916디자인입니다. 오늘은 4층 규모의 사옥 인테리어, 인천 청라 더리브 티아모 지식산업센
dopamine7.com
2023.06.26 - [사무실인테리어] - 광명 현대테라타워 지식산업센터 인테리어 트렌디한 분위기가 느껴지는 감성 입주 디자인
광명 현대테라타워 지식산업센터 인테리어 트렌디한 분위기가 느껴지는 감성 입주 디자인
광명 현대테라타워 지식산업센터 인테리어 트렌디한 분위기가 느껴지는 감성 입주 디자인 안녕하세요. 916 디자인입니다. 처리하는 업무가 많은 곳은 아무래도 작업을 해야 하는 공간 자체가 넓
dopamine7.com
2023.06.24 - [DOPAMINE] - 부천 레노부르크 지식산업센터 인테리어 공간감이 돋보이는 복층 디자인 입주 제안
부천 레노부르크 지식산업센터 인테리어 공간감이 돋보이는 복층 디자인 입주 제안
부천 레노부르크 지식산업센터 인테리어 공간감이 돋보이는 복층 디자인 입주 제안 안녕하세요.916디자인입니다. 사무실인테리어를 생각하신다면 단순히 업무만 처리하는 공간이라 생각하시기
dopamine7.com
'인테리어이야기' 카테고리의 다른 글
| 파주철거 안정적인 시공으로 (0) | 2024.04.05 |
|---|---|
| 주택 아파트 발코니 주방거실 샷시 확장공사 단열 시공 단열재 선택은 (1) | 2024.03.23 |
| 주택 아파트 베란다 샷시 확장 셀프단열 공사 단열재 시공 골드폭스보드 (1) | 2024.03.23 |
| 셀프 귀농 귀촌 촌집농가 시골집 인테리어 리모델링 집수리 공사하세요 (0) | 2024.03.20 |
| 동탄 스터디카페인테리어 모던하고 현대적인 디자인 견적 비용 현장 (0) | 2023.02.12 |
| 김포 고기집인테리어 감성맛집 분위기 디자인을 합리적인 비용 견적으로 (0) | 2023.02.09 |
| 강남인테리어 다이닝 음식점 디자인 감성적인 무드로 표현하는 맛집 추천 (0) | 2023.01.18 |
| 소형스터디카페인테리어 공간의 효율성을 고려한 가성비 높은 연출 (0) | 2022.11.08 |
- Total
- Today
- Yesterday
- 인테리어
- 병원인테리어
- 사무실인테리어공사
- 상가인테리어
- 사무실인테리어견적
- 사무실인테리어비용
- 사무실인테리어추천
- 오피스인테리어
- 학원인테리어디자인
- 사무실인테리어
- 916디자인
- 헬스장인테리어
- 피티샵인테리어
- 3D디자인
- 사무실리모델링
- 헤어샵인테리어
- 사무실인테리어디자인
- 사무실디자인
- 인천사무실인테리어
- 미용실인테리어
- interior
- 사무실인테리어잘하는곳
- 사무실인테리어업체
- 지식산업센터인테리어
- 회사인테리어
- 학원인테리어
- 인테리어디자인
- 3D사무실인테리어
- 사무실인테리어전문
- 사무실인테리어후기
| 일 | 월 | 화 | 수 | 목 | 금 | 토 |
|---|---|---|---|---|---|---|
| 1 | 2 | |||||
| 3 | 4 | 5 | 6 | 7 | 8 | 9 |
| 10 | 11 | 12 | 13 | 14 | 15 | 16 |
| 17 | 18 | 19 | 20 | 21 | 22 | 23 |
| 24 | 25 | 26 | 27 | 28 | 29 | 30 |
| 31 |
