티스토리 뷰
목차
인천 청라 더리브 티아모 지식산업센터 인테리어
트렌디함이 가득한 MZ느낌의 입주 오피스
안녕하세요 916디자인입니다.
오늘은 4층 규모의 사옥 인테리어,
인천 청라 더리브 티아모 지식산업센터
시공 현장 소개를 준비 했습니다.
사옥 인테리어는 기본적으로 규모 자체가
큰 프로젝트인 만큼 관련 시공 경험이 많은
업체에서 진행 하시는 것을 추천 드리는데요.
916디자인은 다수의 사옥 인테리어 시공
경험을 갖춘 전문 업체로 기업의 아이덴티티를
반영한 맞춤형 시공을 도와드리고 있습니다.
각 층별로 디자인이면 디자인, 공간 활용도면
활용도 어느 것 하나 부족함 없는 시공으로
만족도 높은 결과물을 만들어드립니다.
최근 진행했던 인천 청라 더리브 티아모
지식산업센터 인테리어 현장을 통해
916디자인만의 강점을 확인해볼까요?
3D 디자인 제안



우선 층별 ISO입니다. ISO를 보면 각 층마다
구조와 인테리어 컨셉이 다른 것을
확인할 수 있는데요.



각 층마다 메인 컬러도 다르게 설정 했고
공간에 따라 포인트 요소들도 다르게
설정해 인테리어가 주는 시각적 재미가
많은 공간입니다.



그 대신 층별로는 비슷한 컬러나 컨셉으로
구성해 이질감이 들지 않고 자연스럽게
이어지도록 만들었습니다.
휴게 및 공용 공간은 다채로운 색상으로
밝고 톡톡 튀는 분위기로 연출 했는데요.






반대로 업무 공간, 대표실, 회의실 등은
모노톤을 메인으로 사용해 차분한 분위기로
연출 했습니다.
클라이언트 미팅과 디자인 수정을 반복하며
가장 적합한 디자인을 만들었는데요.
사옥 인테리어의 경우 다수의 공간을
구성하는 만큼 단계별로 하나씩 접근하며
틀을 잡아주는 것이 중요합니다.
틀을 잡아주고 클라이언트의 니즈를
반영해 색과 가구 배치를 하며 공간에
살을 붙여줘야합니다.
이렇게 해서 최종 시안이 확정 되면
일정에 따라 현장 작업이 진행 되는데요.
시공 진행 현장





사옥 인테리어 시공도 일반 사무실 인테리어
시공처럼 철거부터 진행합니다.
불필요한 요소들을 깔끔하게 철거해준 다음
설비 공사, 목공 및 철골 작업, 도장, 시트작업
등 순서대로 작업 합니다.





당연히 평수가 더 넓기 때문에 작업량도
많아지는데요.
작업량이 많은만큼 916디자인에서는
여러 분야의 전문가가 협업해 효율적으로
작업을 진행하고 있습니다.
더불어 작은 하자도 발생하지 않도록
현장에서는 계속해서 설계과 디자인 그리고
진행 상황을 공유하며 꼼꼼하게 시공합니다.





텅 비어있던 인천 청라 더리브
티아모 지식산업센터가 916디자인 현장 전문가들의
손길로 하나씩 채워지고 있습니다.



시공 현장은 여기까지 살펴보도록하고
지금부터는 완성된 모습을 층별로 자세히
소개해드리겠습니다.
시공 마감 현장




사옥 인테리어는 내부뿐만 아니라 건물
외부까지도 인테리어를 도와드리고
있는데요.
이번 인천 청라 더리브 티아모 지식산업센터
외부 인테리어는 심플하게 로고 사인물로만
시공 했고, 1층 공간은 양 측면으로 브랜딩
요소를 넣어 포인트를 주었습니다.




엘리베이터 앞 입구 공간은 각 층마다 다른
디자인을 적용 했는데요.
적용된 디자인은 다르지만 글라스월을
사용해 공간감이 더 크게 느껴지도록
만들었습니다.
전체적으로 트렌디하고 고급스러운
분위기입니다.



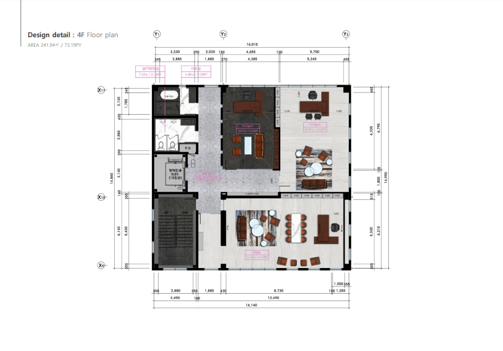
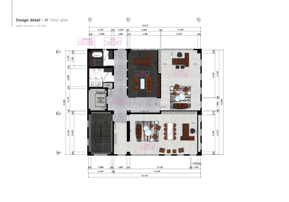
가장 먼저 소개해드릴 공간은 4F의
대표실입니다.
먼저 업무 공간은 블랙&브라운 컬러로
무게감 있기 디자인하여 전문적인 느낌을
연출 시켰습니다.



그리고 안쪽의 로비 공간은 화이트 컬러를
메인으로 사용하고 브라운과 블랙으로
적당한 무게감을 잡아주었습니다.
외부 손님들을 맞이하는 공간인 만큼
훨씬 더 밝고 고급스럽게 디자인
했는데요.
벽면 수납장에는 간접등을 넣어 디자인과
활용도 두마리 토끼를 모두 잡았습니다.




다음은 3층으로 내려가볼까요? 3층은
메인 업무 공간이 위치해 있습니다.
이번 인천 청라 더리브 티아모 지식산업센터는
클라이언트분의 니즈에 따라 다양한 업무
공간을 제공하고 있는데요.
서브 공간들은 화이트&우드로 아늑한
분위기를 연출 시켰습니다.



그리고 주요 업무 공간은 라이트한
컬러들로 밝게 연출 했는데요.
더불어 업무의 집중력을 높일 수 있는
환경을 만들기 위해 이렇게 입구에는
두개의 아트월로 공간을 구분 시켰습니다.
큰 아트월이 설치되어 있다보니 답답한
느낌이 들 수 있어서 노출형 천장에
다수의 조명을 설치해 개방감을 살렸습니다.



측면 부분은 작은 휴게 공간으로
구성을 했습니다.
목작업으로 단차를 만들어주고 상단에는
플렌테리어와 아트월로 공간에 생기를
더해주었습니다.


반대편으로 넘어가면 창가 앞으로 더 큰
휴게 공간이 있는데요.
가벽이나 도어를 설치해 공간을 구분하지는
않았지만 바닥 마감재를 다르게 시공해
가볍게 업무 공간과 차이를 주었습니다.


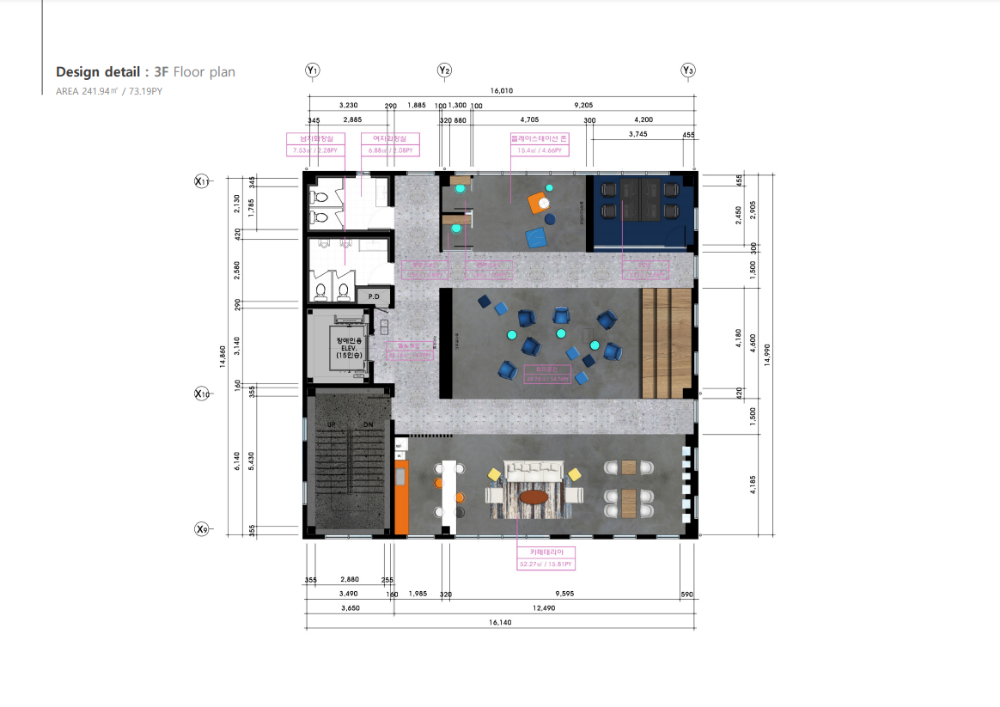
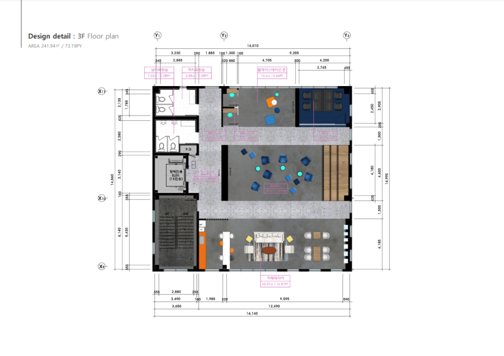
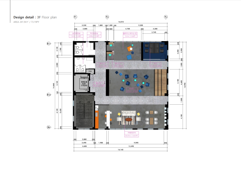
마지막으로 2F공간을
소개해드리려 하는데요.
2층은 직원들은 물론 외부 손님들이 많이
이용하는 공간이라 기업의 이미지가 확실히
보여질 수 있도록 디자인 했습니다.



그래서 다른 층보다 곳곳에서 기업 관련
디자인이 눈에 들어오는데요.
이뿐만 아니라 인테리어에 사용된 컬러들도
무게감 있는 컬러가 주로 사용 되었고
유니크한 디자인으로 기업의 이미지가
확실하게 느껴집니다.




컨퍼런스룸에는 화려한 조명 디자인으로
시선을 사로 잡았습니다.
주로 외부 미팅을 진행하는 곳이다 보니
블랙 컬러로 디자인해 신뢰감과 전문성이
느껴지도록 연출 했습니다.
여기까지 각 층별로 다양하게 디자인한
인천 청라 더리브 티아모 지식산업센터
시공 현장이었습니다.
사옥 인테리어, 사무실 인테리어 시공
문의는 916디자인으로 편안하게 문의
주시길 바랍니다.
공사문의 010-3235-8427
포트폴리오 바로가기▶916er.com
2023.06.26 - [사무실인테리어] - 광명 현대테라타워 지식산업센터 인테리어 트렌디한 분위기가 느껴지는 감성 입주 디자인
광명 현대테라타워 지식산업센터 인테리어 트렌디한 분위기가 느껴지는 감성 입주 디자인
광명 현대테라타워 지식산업센터 인테리어 트렌디한 분위기가 느껴지는 감성 입주 디자인 안녕하세요. 916 디자인입니다. 처리하는 업무가 많은 곳은 아무래도 작업을 해야 하는 공간 자체가 넓
dopamine7.com
2023.06.24 - [DOPAMINE] - 부천 레노부르크 지식산업센터 인테리어 공간감이 돋보이는 복층 디자인 입주 제안
부천 레노부르크 지식산업센터 인테리어 공간감이 돋보이는 복층 디자인 입주 제안
부천 레노부르크 지식산업센터 인테리어 공간감이 돋보이는 복층 디자인 입주 제안 안녕하세요.916디자인입니다. 사무실인테리어를 생각하신다면 단순히 업무만 처리하는 공간이라 생각하시기
dopamine7.com
2023.06.22 - [사무실인테리어] - 신목동역 LT삼보 MOK 지식산업센터 인테리어 시공 경험 풍부한 노하우 가득 담은 디자인 제안
신목동역 LT삼보 MOK 지식산업센터 인테리어 시공 경험 풍부한 노하우 가득 담은 디자인 제안
신목동역 LT삼보 MOK 지식산업센터 인테리어 시공 경험 풍부한 노하우 가득 담은 디자인 제안 안녕하세요. 916 디자인입니다. 요즘은 여러 공간이 나누어져 있는 공간이 아닌 한 공간을 다양하게
dopamine7.com
2023.06.20 - [DOPAMINE] - 화성 동탄 우미뉴브 지식산업센터인테리어 입주기업 리모델링 세련된 디자인 제안
화성 동탄 우미뉴브 지식산업센터인테리어 입주기업 리모델링 세련된 디자인 제안
화성 동탄 우미뉴브 지식산업센터인테리어 입주기업 리모델링 세련된 디자인 제안 안녕하세요. 916디자인 입니다. 화성 동탄에 위치한 우미뉴브 지식산업센터는 풍요로운 입지 환경과 실용적인
dopamine7.com
2023.06.18 - [사무실인테리어] - 당산 생각공장 지식산업센터인테리어 50평 대형평수 사무실 차별화된 디자인
당산 생각공장 지식산업센터인테리어 50평 대형평수 사무실 차별화된 디자인
당산 생각공장 지식산업센터인테리어 50평 대형평수 사무실 차별화된 디자인 안녕하세요 916디자인입니다. 미래를 이끌어나가는 제조업, 지식산업 및 정보통신산업을 비롯한 다양한 기업들이
dopamine7.com
'사무실인테리어' 카테고리의 다른 글
| 수원광교 시그니처1차 지식산업센터 인테리어 화려한 조명으로 차별화된 미래지향적인 디자인 시공 (0) | 2023.07.11 |
|---|---|
| 가산역 반도 아이비밸리 지식산업센터 인테리어 역세권 40평 중형 사무실 (0) | 2023.07.08 |
| 양평 자이 비즈타워 지식산업센터 인테리어 공간별 목적이 확실하여 효율적인 현장 (0) | 2023.07.06 |
| 구리 갈매 서영아너시티 지식산업센터 인테리어 감성 가득한 입주기업 리모델링 비용 견적 (0) | 2023.07.01 |
| 광명 현대테라타워 지식산업센터 인테리어 트렌디한 분위기가 느껴지는 감성 입주 디자인 (0) | 2023.06.26 |
| 부천 레노부르크 지식산업센터 인테리어 공간감이 돋보이는 복층 디자인 입주 제안 (0) | 2023.06.24 |
| 신목동역 LT삼보 MOK 지식산업센터 인테리어 시공 경험 풍부한 노하우 가득 담은 디자인 제안 (0) | 2023.06.22 |
| 화성 동탄 우미뉴브 지식산업센터인테리어 입주기업 리모델링 세련된 디자인 제안 (0) | 2023.06.20 |
- Total
- Today
- Yesterday
- 헤어샵인테리어
- 인테리어
- 사무실인테리어후기
- 회사인테리어
- 병원인테리어
- 3D사무실인테리어
- 3D디자인
- 인천사무실인테리어
- 상가인테리어
- 사무실인테리어비용
- 916디자인
- 사무실인테리어추천
- 사무실인테리어디자인
- 사무실리모델링
- 지식산업센터인테리어
- 사무실인테리어견적
- 헬스장인테리어
- 피티샵인테리어
- 사무실인테리어
- 사무실인테리어공사
- 인테리어디자인
- 사무실인테리어전문
- interior
- 학원인테리어
- 미용실인테리어
- 사무실인테리어업체
- 사무실디자인
- 사무실인테리어잘하는곳
- 학원인테리어디자인
- 오피스인테리어
| 일 | 월 | 화 | 수 | 목 | 금 | 토 |
|---|---|---|---|---|---|---|
| 1 | 2 | 3 | 4 | 5 | 6 | |
| 7 | 8 | 9 | 10 | 11 | 12 | 13 |
| 14 | 15 | 16 | 17 | 18 | 19 | 20 |
| 21 | 22 | 23 | 24 | 25 | 26 | 27 |
| 28 | 29 | 30 | 31 |
