티스토리 뷰
목차
신목동역 LT삼보 MOK 지식산업센터 인테리어 시공 경험 풍부한
노하우 가득 담은 디자인 제안
안녕하세요.
916 디자인입니다.
요즘은 여러 공간이 나누어져 있는
공간이 아닌 한 공간을 다양하게
나눠서 활용하기도 하는데요.
오늘은 신목동역 LT삼보 MOK
지식산업센터 인테리어로 고민하시는 분들을 위해
하나의 큰 공간을 다양한
공간으로 만들어 낸 70평
사무실인테리어 현장을 소개해
드리려고 합니다.
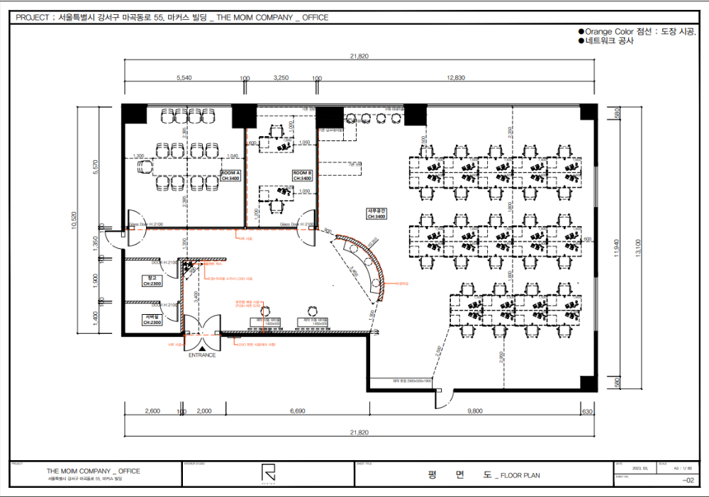
설계도


약간의 불규칙한 공간으로 구성이
되어있는 만큼 다양한 공간으로
구성을 하는 게 중요했는데요.
한 공간이라 할지라도 필요 공간에
따라서 주변 환경을 차단할 수 있는
방법으로 구성을 했습니다.
시공 진행 현장

텅 비어있는 공간을 어떤 식으로 구성을
해야 할지 필요한 공간에 따라서 위치
조절을 위해 충분히 상담하는데요.

아무래도 사무공간인 만큼 휴게 공간과
회의 공간, 작업공간에 맞춰 디자인
하실 것을 제안 드렸습니다.


무엇보다 공간을 분리하기 위해서 공간
한 중간에는 안쪽 사무실 공간을 분리
할 수 있는 가벽을 설치 했는데요.
전체를 가리는 가벽이 아니라
중앙에 구역을 구분할 수 있는 정도의
아치형 가벽을 세우면서 공간감도 살리고
디자인적인 아름다움도 높이는
선택을 하였습니다.


해당 공간은
가벽의 역할 뿐 아니라
앉아서 대기할 수 있기도 하고 휴식을
취할 수 있는 공간을 만들어 더욱 감각적인
공간으로 연출했습니다.


무엇보다 라운드 형식으로 설계를 하면서
너무 답답해 보이는 느낌이 들지 않게
설계를 하는 것이 중요한데요.
원목으로 재단하면서 마감도 깔끔하게
마무리하여서 군더더기 없는 형태를
만들어내고, 추후에 원하는 색상으로
도장을 하였습니다.

또한, 사무실인 만큼 개인 사물함을
구성하여 필요한 짐을 언제든지 보관
할 수 있는 공간을 만들었는데요.
화이트톤으로 깔끔한 디자인으로
더욱 깔끔한 느낌을 주기도 하고
정사각형 모양으로 설계했습니다.


사무실과 회의 공간을 만들기 위해서
가벽을 설치하여 공간을 분리하는
작업을 진행했는데요.
916디자인은 현장 전문가들이
원팀으로 구성하여 더욱 공간
활용도를 높이면서 세련된 구조를
완성하고 있습니다.
공간을 감각적으로 완성한
신목동역 LT삼보 MOK 지식산업센터 인테리어
현장을 함께 확인해보도록
하겠습니다.
시공 마감 현장


먼저 출입문은
개방감을 주기 위해서 통유리로 시공하면서
더욱 세련된 개방감을 더해줬는데요.
블랙 컬러의 프레임으로 현대적이면서도
모던한 느낌의 지식산업센터 인테리어
컨셉을 살렸습니다.

출입문으로 들어서면 보이는 첫
공간은 가벽을 설치하고 동일하게
흰컬러와 블랙의 조화로 모던한 분위기를
만들어내었습니다.
그리고 하단에는 플랜테리어를
활용해 정원과 같은 느낌을 줬는데요.
삭막한 사무실 공간이 아니라 더욱
세련되고 자연적인 공간으로 연출 하였습니다.


사이 조명을 설치할 때 자연광과
비슷한 주광색 불빛을 사용하여
은은하면서도 편안한 느낌을 주는
방향으로 진행했습니다.


실제 식물이 아닌 조화로 구성하여
관리의 어려움을 줄이고 생동감은
더했기에 오랫동안 자연적인 느낌을
연출 할 수 있는데요.
시들 염려를 하지 않아도 되니까 더욱
감성적이고 세련된 공간으로 오랫동안
유지 하실 수 있습니다.




사무실로 이어지는 복도에는
곳곳에 핀조명으로 따뜻한 분위기를
연출해주었는데요.
그레이컬러의 바닥과 온통 모노톤으로
되어있어 조금 차가운 느낌을 줄 수 있는
자재들을 중화시켜주는 역할을 했습니다.

기본적으로 단순히 비슷한 디자인으로 프레임을
설치 할 수 있겠지만 916 디자인은
감각적이고 세련된 공간을 위해서
세련미를 더할 수 있는 블랙 프레임
사용을 하였습니다.
색상의 포인트로 구성을 하였으며
개방감을 줄 수 있는 통유리로
구성이 되어있지만 중간 라인에는
불투명 시트로 구성하여 밋밋하지
않은 공간을 탄생시켰습니다.



별도로 마련된 회의실은
회의를 한다고 하더라도 방음이 잘
될 수 있도록 자재를 사용하였고
공간활용도를 높이기 위해서
실용성 높은 구조로 선택을 했는데요.
꼭 꽉 막힌 가벽으로 공간을 만들어야
한다는 고정관념에서 벗어나 개방감
높은 공간으로 업무 효율성도 함께
높이는 공간으로 연출했습니다.

또한 노출 천장으로 시공하면서
천고를 더욱 높였고, 그대로 드러나는
개방감을 살리기 위해서 테두리에만
라인 조명을 설치하였습니다.


또한 한 쪽에는 서류 및 다양한
물건들을 보관할 수 있는 다용도실을
구성하였는데, 별도로 수납 공간을
마련하면서 동선도 깔끔하고
더욱 전체적인 공간을 단정하게 사용할 수
있도록 하였습니다.


더불어
신목동역 LT삼보 MOK 지식산업센터 인테리어의
가장 큰 포인트가 될 수 있는 가벽인데요.
인테리어 중에서 가장 기대가 되었던
라운드 형식의 휴게 공간이 완성이
되었습니다.
밝은 톤의 원목을 사용하여 전체적으로
감각적인 공간을 완성했습니다.


다소 밋밋할 수 있는 공간에 작은
로고를 구성하여 회사 브랜드
이미지를 더욱 올렸습니다.

같은 라인이라도 굵기와 세심한
선을 잘 활용하여 디자인했는데요.
공간에 따라서 은은한 조명이나
자재를 선택하여 진행하므로
만족도 높은 결과를 얻을 수 있습니다.



사무실이라 하더라도 휴게 공간이나
간단하게 다과를 즐길 수 있는 공간은
무척이나 중요합니다.
작은 공간을 놓치지 않고 활용하였고
수납함을 중간에 배치하면서 시각적으로
공간이 분리된듯한 느낌으로 구성을
했는데요.

마주보는 곳에는 싱크대를 설치하여
편안한 공간을 연출했습니다.
또한, 정사각형이 아니라 다소 애매할 수
있는 공간 사이사이를 활용하여 가구
배치를 하여 더욱 공간 활용도를
높였습니다.

그리고 오히려 개방형 구조로
되어 있어서 답답한 느낌이 없고,
모든 곳의 조명이 라인으로 슬림한
형태로 되어있는만큼 세련된 느낌이
강하게 연출되는 현장이었는데요.


직원들의 편의성을 높이기위한
개인 캐비넷도 클라이언트분의 특별 요청으로
코너에 마련되면서 더욱 실용성을 높인
신목동역 LT삼보 MOK 지식산업센터 인테리어가
마무리 되었습니다.

개방이 된 하나의 공간이라도 필요에
따라서 다양하게 공간을 연출하고
싶은 분이라면 언제든지 상담을 받아
보시길 바랍니다.
사무실 인테리어 시공 전문 업체
916에서 상담받으시고 원하는
지식산업센터 인테리어를
완성해보시기를 바라며 언제든지
아래의 번호로 문의 부탁드립니다.
공사문의 010-3235-8427
포트폴리오 바로가기▶916er.com
2023.06.20 - [DOPAMINE] - 화성 동탄 우미뉴브 지식산업센터인테리어 입주기업 리모델링 세련된 디자인 제안
화성 동탄 우미뉴브 지식산업센터인테리어 입주기업 리모델링 세련된 디자인 제안
화성 동탄 우미뉴브 지식산업센터인테리어 입주기업 리모델링 세련된 디자인 제안 안녕하세요. 916디자인 입니다. 화성 동탄에 위치한 우미뉴브 지식산업센터는 풍요로운 입지 환경과 실용적인
dopamine7.com
2023.06.18 - [사무실인테리어] - 당산 생각공장 지식산업센터인테리어 50평 대형평수 사무실 차별화된 디자인
당산 생각공장 지식산업센터인테리어 50평 대형평수 사무실 차별화된 디자인
당산 생각공장 지식산업센터인테리어 50평 대형평수 사무실 차별화된 디자인 안녕하세요 916디자인입니다. 미래를 이끌어나가는 제조업, 지식산업 및 정보통신산업을 비롯한 다양한 기업들이
dopamine7.com
2023.06.14 - [사무실인테리어] - 금천구 사무실인테리어 가산 대성디폴리스 지식산업센터 공사 세련된 디자인으로 완성
금천구 사무실인테리어 가산 대성디폴리스 지식산업센터 공사 세련된 디자인으로 완성
금천구 사무실인테리어 가산 대성디폴리스 지식산업센터 공사 세련된 디자인으로 완성 안녕하세요 916디자인입니다. 최근 사무실인테리어는 업무 공간 외에도 스튜디오, 쇼품, 카페테리아 등
dopamine7.com
2023.06.10 - [사무실인테리어] - 금천구 가산동 지식산업센터인테리어 스튜디오를 겸비한 50평사무실 비용
금천구 가산동 지식산업센터인테리어 스튜디오를 겸비한 50평사무실 비용
금천구 가산동 지식산업센터인테리어 스튜디오를 겸비한 50평사무실 비용견적 안녕하세요 지식산업센터인테리어 전문업체 916디자인입니다. 최근 사무실은 기본 업무 공간 외에도 휴게실, 대표
dopamine7.com
2023.06.06 - [사무실인테리어] - 강남 서초동 변호사사무실인테리어 법무법인 법률사무소 시공전문업체 916디자인
강남 서초동 변호사사무실인테리어 법무법인 법률사무소 시공전문업체 916디자인
강남 서초동 변호사사무실인테리어 법무법인 법률사무소 시공전문업체 916디자인 안녕하세요 법률사무소 시공전문업체 916디자인입니다. 오늘은 강남 서초동 변호사사무실인테리어 법무법인
dopamine7.com
'사무실인테리어' 카테고리의 다른 글
| 구리 갈매 서영아너시티 지식산업센터 인테리어 감성 가득한 입주기업 리모델링 비용 견적 (0) | 2023.07.01 |
|---|---|
| 인천 청라 더리브 티아모 지식산업센터 인테리어 트렌디함이 가득한 MZ느낌의 입주 오피스 (0) | 2023.06.29 |
| 광명 현대테라타워 지식산업센터 인테리어 트렌디한 분위기가 느껴지는 감성 입주 디자인 (0) | 2023.06.26 |
| 부천 레노부르크 지식산업센터 인테리어 공간감이 돋보이는 복층 디자인 입주 제안 (0) | 2023.06.24 |
| 화성 동탄 우미뉴브 지식산업센터인테리어 입주기업 리모델링 세련된 디자인 제안 (0) | 2023.06.20 |
| 당산 생각공장 지식산업센터인테리어 50평 대형평수 사무실 차별화된 디자인 (0) | 2023.06.18 |
| 금천구 사무실인테리어 가산 대성디폴리스 지식산업센터 공사 세련된 디자인으로 완성 (0) | 2023.06.14 |
| 금천구 가산동 지식산업센터인테리어 스튜디오를 겸비한 50평사무실 비용 (0) | 2023.06.10 |
- Total
- Today
- Yesterday
- 사무실인테리어잘하는곳
- 헤어샵인테리어
- 사무실리모델링
- 사무실인테리어전문
- 사무실인테리어공사
- 피티샵인테리어
- 3D사무실인테리어
- 사무실인테리어디자인
- 인테리어
- 사무실인테리어
- 회사인테리어
- 인테리어디자인
- 상가인테리어
- 미용실인테리어
- interior
- 사무실디자인
- 916디자인
- 사무실인테리어후기
- 학원인테리어디자인
- 인천사무실인테리어
- 3D디자인
- 사무실인테리어견적
- 사무실인테리어비용
- 사무실인테리어추천
- 학원인테리어
- 오피스인테리어
- 헬스장인테리어
- 병원인테리어
- 사무실인테리어업체
- 지식산업센터인테리어
| 일 | 월 | 화 | 수 | 목 | 금 | 토 |
|---|---|---|---|---|---|---|
| 1 | 2 | 3 | ||||
| 4 | 5 | 6 | 7 | 8 | 9 | 10 |
| 11 | 12 | 13 | 14 | 15 | 16 | 17 |
| 18 | 19 | 20 | 21 | 22 | 23 | 24 |
| 25 | 26 | 27 | 28 | 29 | 30 | 31 |
