티스토리 뷰
목차
금천구 사무실인테리어 가산 대성디폴리스 지식산업센터 공사 세련된 디자인으로 완성
안녕하세요 916디자인입니다.

최근 사무실인테리어는 업무 공간 외에도
스튜디오, 쇼품, 카페테리아 등 필요에 따라
다양한 공간을 구성하는 추세인데요.
특히, 지식산업센터의 경우 공간 활용도가
높아 기업에 따라 다양한 구성으로 설계를
도와드리고 있습니다.
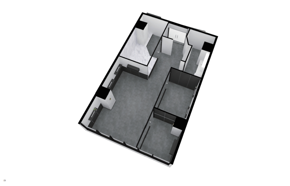
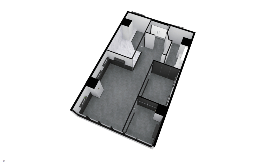
ISO 이미지

최근 진행했던 금천구 사무실인테리어 가산
대성디폴리스 지식산업센터 공사도 사무실
내 스튜디오&쇼룸을 구성 했는데요.
대형 평수의 구조는 아니였지만 ISO를 보면
여러 공간들이 효율적으로 설계 된 것을
확인할 수 있습니다.
그래서 이러한 구조를 더욱 실용적으로
살리기 위해 고민하여 3D 디자인을
먼저 완성하였는데요.
3D 이미지 제안




사무실 인테리어 컨셉은 클라이언트분의
니즈와 기업 이미지를 반영해
현대적이면서도 세련된 디자인으로
제안 드렸습니다.
전체적으로 모노톤 컬러가 메인으로 들어갔고
조명을 사용해 밝은 분위기를 연출 했는데요.
이번 현장은 제안 드렸던 3D디자인에서 수정
없이 그대로 최종 시안을 확정되었고 일정에
따라 현장 작업이 시작되었습니다.
시공 현장 스케치


내부뿐만 아니라 입구 파사드까지
인테리어 컨셉에 맞춰 시공 했습니다.
다른 업체들과는 차별화된 파사드 디자인으로
멀리서도 한 눈에 들어올 것 같은데요.😁


내부에서도 신속하게 공사가 진행되었으며
기존 마감재 일부를 깔끔하게 철거해준 후 기초
설비 작업을 하고 있는 모습입니다.
전문가들이 기초 단계부터 꼼꼼하게 작업하기
때문에 불편함 없이 사용하실 수 있습니다.


기초 설비 작업이 끝나면 사무공간, 회의실,
쇼룸 등 설계에 따라 공간을 구분해주는
작업을 진행합니다



공간을 구분해준 후 각각의 디자인에 따라
마감 공사를 하고있는 모습입니다.
트렌디한 요소들이 많이 들어가 인테리어가
주는 재미가 풍부한 공간으로
완성 된 것 같습니다.
그럼 지금부터 세련된 디자인으로 완성된
금천구 사무실인테리어 가산 대성디폴리스
지식산업센터를 함께 확인해볼까요?

금천구 사무실인테리어 가산 대성디폴리스 지식산업센터 공사 세련된 디자인으로 완성 현장



입구 파사드는 블랙&그레이의
모던한 디자인으로 완성 되었습니다.
그리고 상단과 좌측면으로는
주광색 간접등이 포인트로
들어가 입체감이 느껴지는데요.
출입문은 편의를 위해 자동문으로 설치 했고
시트 작업 없이 통유리로 개방감 있게
만들었습니다.


특색있고 강렬한 외부파사드를 지나
내부로 들어가면 세련된 파벽돌 디자인의
가벽이 가장 먼저 눈에 들어오는데요.
파벽돌 가벽에는 조명과 사인물로 심플하게
포인트를 주었습니다. 가벽이 입구 전체를
가리는 사이즈가 아니라서
적당한 개방감도 느껴지는데요.😍



가벽을 지나 사무실 내부로 들어가면 좌측에는
진열장과 카파테리아가 위치해 있습니다.
진열장은 916디자인에서 사이즈에 맞춰 직접
제작을 했습니다. 공간에 딱 맞게 빌트인 되어
활용도가 매우 높습니다.
안쪽으로는 은은한 컬러의 간접등까지
설치되어 있어 밝고 편안한 분위기로
연출 되었습니다.


전시장 바로 옆으로는 아늑한 사이즈의
카페테리아가 위치해 있습니다.
출입문은 투명 유리로 설치했고 사인도어는
깔끔하게 시트 작업으로 마무리 했습니다.
카페테리아 내부가 넓지는 않지만 싱크대,
상하부장, 수납장 등이 있어 실용성은
뛰어난 공간이기에 직원분들의 편의를
높일 수 있으리라 기대합니다.😎



카페테리아 맞은편은 이번 금천구 가산
대성디폴리스 지식산업센터의 포인트 공간인
쇼룸&스튜디오로 구성 했습니다.
쇼품이기 때문에 전면 글라스월로 설치해
개방감 있게 완성 시켰습니다.
글라스월 프레임을 그레이 컬러로 사용해
개방감과 동시에 확실하게 공간이 구분
되도록 만들었습니다.



쇼룸 내부에는 다수의 조명을 설치했고
세련된 마블 패턴을 사용 했는데요.
스튜디오로도 활용될 예정이라 전체적으로
밝고 깔끔하게 연출 시켰습니다.



다음으로 소개해드릴 공간은 업무 공간입니다.
가산 대성 디폴리스 지식산업센터가 새로로 긴
타입의 구조라 오피스 가구도 이에 맞춰
세로로 길게 배치 했습니다.
그리고 천장 조명에도 구조에 맞춰 직사각형으로
설치해주었는데요.
천장 조명이 크게 들어가있고 정면으로는
큰 창이 있어 평수 대비 공간감이 더 크게
느껴지는 효과를 느껴보실 수 있습니다.




컨퍼런스룸과 CEO룸은 이동 동선을 고려해
효율적으로 업무공간 좌측에 배치 했습니다.
카페테리아와 쇼룸처럼 입구면은 개방감 있게
글라스월로 시공 했고, 사인도어는 시트 작업으로
마무리 했습니다.
컨터런스룸에는 화이트 인테리어에 블랙 컬러를
더해 세련된 이미지를 더해주어
차분하면서도 업무에 집중할 수 있는
환경 조성에 큰힘이 되었다고 생각합니다.


#CEO룸은 블랙 컬러의 비중을
더 높여 무게감 있게 완성 했습니다.
전체적인 조도는 낮아졌지만 펴벽돌 디자인과
간접등이 곳곳에 설치되어 있고 큰 창이 있는
구조라 답답함이 느껴지지는 않으시리라 생각하는데요.
클라이언트분께서도 전체적으로
만족감이 매우 높았던
금천구 인테리어 현장이었습니다.
이번 금천구 사무실인테리어는 전체 인테리어
컨셉은 통일 시키고 각각의 공간마다 포인트
요소들을 다양하게 구성해 트렌디하게 마무리
되었습니다.
이처럼 916디자인에서는
공간과 기업의 특성에 따라
맞춤형 디자인을 제안 드리고 있는데요.
홈페이지와 블로그를 참고 하시면 다양한 시공
사례를 확인하실 수 있습니다.
사무실인테리어 시공이 고민이시라면 지금 바로
전문가와 상담 받아보세요!
공사문의 010-3235-8427
포트폴리오 바로가기▶916er.com
2023.06.10 - [사무실인테리어] - 금천구 가산동 지식산업센터인테리어 스튜디오를 겸비한 50평사무실 비용
금천구 가산동 지식산업센터인테리어 스튜디오를 겸비한 50평사무실 비용
금천구 가산동 지식산업센터인테리어 스튜디오를 겸비한 50평사무실 비용견적 안녕하세요 지식산업센터인테리어 전문업체 916디자인입니다. 최근 사무실은 기본 업무 공간 외에도 휴게실, 대표
dopamine7.com
2023.06.06 - [사무실인테리어] - 강남 서초동 변호사사무실인테리어 법무법인 법률사무소 시공전문업체 916디자인
강남 서초동 변호사사무실인테리어 법무법인 법률사무소 시공전문업체 916디자인
강남 서초동 변호사사무실인테리어 법무법인 법률사무소 시공전문업체 916디자인 안녕하세요 법률사무소 시공전문업체 916디자인입니다. 오늘은 강남 서초동 변호사사무실인테리어 법무법인
dopamine7.com
2023.06.02 - [사무실인테리어] - 가산동 지식산업센터 복층인테리어 효율적인 레이아웃의 50평 사무실
가산동 지식산업센터 복층인테리어 효율적인 레이아웃의 50평 사무실
가산동 지식산업센터 복층인테리어 효율적인 레이아웃의 50평 사무실 안녕하세요 916디자인입니다. 오늘은 효율적인 레이아웃의 50평 가산동 지식산업센터 사무실 복층인테리어 시공 현장을 소
dopamine7.com
2023.05.29 - [사무실인테리어] - 글로벌 기업의 트렌디한 업무환경이 돋보이는 인천 청라 티엔에스 대형 사무실 사옥인테리어 비용 견적
글로벌 기업의 트렌디한 업무환경이 돋보이는 인천 청라 티엔에스 대형 사무실 사옥인테리어 비
글로벌 기업의 트렌디한 업무환경이 돋보이는 인천 청라 티엔에스 대형 사무실 사옥인테리어 비용 견적 안녕하세요 916디자인입니다. 오늘은 글로벌 기업의 트렌디한 업무환경이 돋보이는 인천
dopamine7.com
2023.05.25 - [사무실인테리어] - 효율적인 동선과 트렌디한 사무실컨셉의 과천 지식산업센터인테리어 마감기
효율적인 동선과 트렌디한 사무실컨셉의 과천 지식산업센터인테리어 마감기
효율적인 동선과 트렌디한 사무실컨셉의 과천 지식산업센터인테리어 마감기 안녕하세요 916디자인입니다. 저희는 사무실 인테리어는 물론 다양한 상업 공간에 대한 트렌디한 디자인을 제안하
dopamine7.com
'사무실인테리어' 카테고리의 다른 글
| 부천 레노부르크 지식산업센터 인테리어 공간감이 돋보이는 복층 디자인 입주 제안 (0) | 2023.06.24 |
|---|---|
| 신목동역 LT삼보 MOK 지식산업센터 인테리어 시공 경험 풍부한 노하우 가득 담은 디자인 제안 (0) | 2023.06.22 |
| 화성 동탄 우미뉴브 지식산업센터인테리어 입주기업 리모델링 세련된 디자인 제안 (0) | 2023.06.20 |
| 당산 생각공장 지식산업센터인테리어 50평 대형평수 사무실 차별화된 디자인 (0) | 2023.06.18 |
| 금천구 가산동 지식산업센터인테리어 스튜디오를 겸비한 50평사무실 비용 (0) | 2023.06.10 |
| 강남 서초동 변호사사무실인테리어 법무법인 법률사무소 시공전문업체 916디자인 (0) | 2023.06.06 |
| 글로벌 기업의 트렌디한 업무환경이 돋보이는 인천 청라 티엔에스 대형 사무실 사옥인테리어 비용 견적 (0) | 2023.05.29 |
| 효율적인 동선과 트렌디한 사무실컨셉의 과천 지식산업센터인테리어 마감기 (1) | 2023.05.25 |
- Total
- Today
- Yesterday
- 인테리어디자인
- 지식산업센터인테리어
- 헤어샵인테리어
- 학원인테리어
- 사무실인테리어전문
- 사무실인테리어추천
- 인테리어
- 상가인테리어
- 오피스인테리어
- 916디자인
- 사무실인테리어후기
- 3D디자인
- 회사인테리어
- 사무실인테리어공사
- 사무실인테리어잘하는곳
- interior
- 사무실인테리어업체
- 헬스장인테리어
- 사무실인테리어
- 학원인테리어디자인
- 사무실디자인
- 미용실인테리어
- 사무실리모델링
- 인천사무실인테리어
- 사무실인테리어디자인
- 사무실인테리어비용
- 사무실인테리어견적
- 병원인테리어
- 피티샵인테리어
- 3D사무실인테리어
| 일 | 월 | 화 | 수 | 목 | 금 | 토 |
|---|---|---|---|---|---|---|
| 1 | 2 | 3 | ||||
| 4 | 5 | 6 | 7 | 8 | 9 | 10 |
| 11 | 12 | 13 | 14 | 15 | 16 | 17 |
| 18 | 19 | 20 | 21 | 22 | 23 | 24 |
| 25 | 26 | 27 | 28 | 29 | 30 | 31 |
