티스토리 뷰
목차
글로벌 기업의 트렌디한 업무환경이 돋보이는 인천 청라 티엔에스
대형 사무실 사옥인테리어 비용 견적
안녕하세요 916디자인입니다.
오늘은 글로벌 기업의 트렌디한 업무환경이
돋보이는 인천 청라 티엔에스 대형 사무실
사옥인테리어 현장 소개를 준비했습니다.
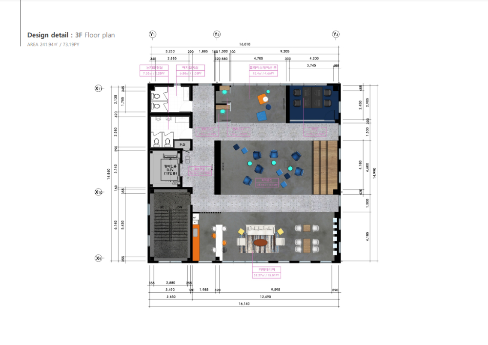
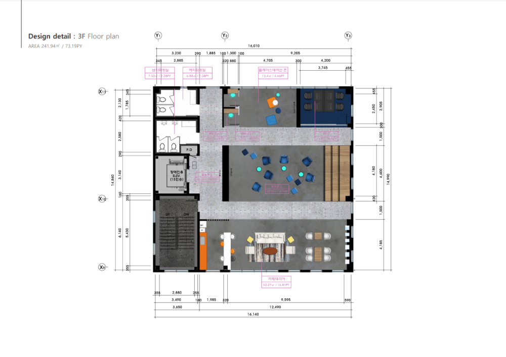
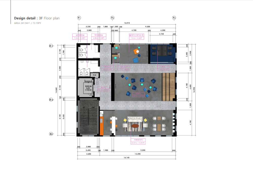
3D 디자인 제안



대형 평수의 규모에 맞춰 각 층별로 업무
공간과 휴게 공간을 구분해 설계를 진행
했습니다.
ISO를 보면 공간별로 충분한 여유 공간을
만들어주었고 각 층별로 인테리어 컨셉을
통일 시켰습니다.



3D디자인으로 인테리어를 자세히 살펴보면
전체적으로 기업의 아이덴티티를 반영한
인천 청라 티엔에스만의 공간으로 제안을
드렸는데요.



모던하고 현대적인 컨셉이 베이스라 크게
유행을 타지않고 공간마다 인테리어가
주는 재미를 찾아볼 수 있습니다.




업무 공간과 휴게 공간은 라이트한 색감을
이용해 밝게 연출 시켰습니다.
각각의 공간마다 새용된 색감이나 마감재
등이 모두 다르지만 이질감 없이 자연스럽게
이어집니다.
그리고 최종 시안 확정 후 일정에 따라 글로벌 기업의
인천 청라 티엔에스 사무실 사옥 인테리어
시공이 시작되었습니다.
시공 진행 현장


먼저 일부분 철거 후 기초 설비작업부터
꼼꼼하게 진행 합니다.



그 다음은 설계에 따라 목공, 철골로 기초
틀을 잡아주었습니다.
이번 현장은 대형 평수의 구조라 그만큼
작업량도 많았는데요. 916디자인에서는
각 공정별 전문가들이 직접 시공을 진행
하고있기 때문에 신속하고 완성도 높게
시공이 진행되었습니다.



틀을 잡아준 후에는 도장 및 시트 작업으로
공간에 색을 입혀줍니다. 이 과정에서 시공
퀄리티가 달라지는 만큼 작은 부분까지
섬세하게 작업합니다.



또한, 제안 드린 인테리어 컨셉에 따라 디테일한
포인트들을 작업하고 있는 모습입니다.
전문가들이 원팀으로 구성되어 오랜시간
손발을 맞춰온만큼 이번 인천 청라 사옥
시공 현장도 특별한 이슈 없이 마무리가
되었는데요.
그럼 지금부터는 916디자인의 손길로
어떻게 완성이 되었는지 공간별로 자세히
소개해드리겠습니다.
시공 마감 현장




먼저 사옥 외관 시공 완료 모습입니다. 외관은
심플하게 조명으로 포인트를 주었고 1층 입구
부분은 아트월 형식으로 시공 했습니다.



사옥 내부로 들어오면 그레이 계열의 모던한
디자인이 돋보입니다.
복도 천장에 조명과 간판을 설치해 층고가 더
높아보이도록 만들었습니다. 또한, 벽면은
글라스월 중앙에 그라데이션 시트지를
부착해 적당한 개방감이 느껴집니다.



안쪽으로는 화이트 컬러와 간접 조명의 비중을
높인 모던한 디자인으로 차분함을 더했습니다.
대형 평수의 구조답게 복도에도 충분한 여유
공간을 만들어줄 수 있었고 업무 및 휴게
공간과는 확실히 구분시켜 프라이빗한
업무환경으로 완성 되었습니다.


먼저 4층에 위치한 이사 및 대표실부터 함께
살펴보도록 하겠습니다.
첫 번째 공간은 고급스러운 월넛 우드&대리석
인테리어입니다. 전체적으로 무게감 있는 컬러로
시공이 되었으나 입구면이 글라스월이라 답답함이
느껴지지는 않는데요.




두 번째 공간은 탁 트인 개방감이 돋보이는데요.
화이트 컬러를 메인으로 사용했고 1면이 전체
통창이라 공간감이 더 크게 느껴집니다.
가벽으로 복도와 적당히 구분 해주었고,
업무 공간을 가장 안쪽으로 설정해 활용도
높게 완성 되었습니다.



다음은 트렌디한 업무 환경을 자랑하는
오피스 공간입니다.
업무 및 휴게 공간은 밝은 분위기였으면
좋겠다는 클라이언트분의 니즈를 반영해
라이트한 컬러들을 사용 했습니다.
천장도 노출형 시공에 바 조명을 설치해
높은 층고로 개방감이 느껴집니다.
일반 오피스 가구 외에도 한쪽을 카페처럼
구성해 보다 자유로운 환경에서 업무를 보실
수 있도록 만들었습니다.


업무 공간과 휴게 공간은 따로 문이나 가벽을
설치하지 않고 오픈형 구조로 설정했습니다.
단, 바닥 마감재를 우드 컬러로 설정해 두
공간을 가볍게 구분 시켰습니다.
우드 마감재와 함께 따뜻한 색감의 컬러로
시공되어 편안하고 아늑한 분위기가 연출
된 것 같습니다.



이 외 업무 공간들은 구조나 사용된 가구
디자인은 다르지만 전체적으로 모던한
인테리어 컨셉으로 통일감 있게 완성
되었습니다.



다음은 인천 청라 티엔에스 사옥 1층의 시공이
완료된 모습입니다.
1층은 업무 위주 보다는 외부 손님을 맞이하는
공간으로 기업의 이미지를 한 눈에 볼 수 있도록
신경 써서 시공을 했습니다.
그래서 먼저 확인해본 공간들에 비해 조명,
컬러감, 마감재 등이 다양하게 사용되어 특색
있는 공간으로 완성이 되었습니다.
또한, 곳곳에 기업 로고나 관련 이미지들을
넣어 가시성을 높여주었습니다.


가구 컬러들도 디테일하게 기업 로고 디자인에
맞춰 배치를 했습니다.
1층은 공간 자체가 티엔에스를 표현하고 있다고
볼 수 있습니다.



미팅룸은 입구에 조명과 아크릴 사인물을 이용해
포인트를 주었습니다.
화이트&블랙 인테리어에 조명이 적극적으로
활용되니 트렌디함이 확실하게 느껴집니다.
여기까지 각 층과 공간마다 다양한 인테리어로
다채로운 분위기가 연출된 글로벌 기업의 사옥
인테리어 현장이었습니다.
트렌디한 업무 환경, 활용도 높은 설계로 퀄리티
높게 완성 되었습니다.
916디자인 홈페이지와 블로그를 참고 하시면
다양한 시공 사례를 확인하실 수 있으며 시공
문의는 편안하게 연락 주시길 바랍니다.
공사문의 010-3235-8427
포트폴리오 바로가기▶916er.com
2023.05.25 - [사무실인테리어] - 효율적인 동선과 트렌디한 사무실컨셉의 과천 지식산업센터인테리어 마감기
효율적인 동선과 트렌디한 사무실컨셉의 과천 지식산업센터인테리어 마감기
효율적인 동선과 트렌디한 사무실컨셉의 과천 지식산업센터인테리어 마감기 안녕하세요 916디자인입니다. 저희는 사무실 인테리어는 물론 다양한 상업 공간에 대한 트렌디한 디자인을 제안하
dopamine7.com
2023.05.22 - [피티샵 헬스장인테리어] - 100평 150평 200평 피트니스센터 헬스장인테리어 고급스러움을 정점으로 시공완료
100평 150평 200평 피트니스센터 헬스장인테리어 고급스러움을 정점으로 시공완료
100평 150평 200평 피트니스센터 헬스장인테리어 고급스러움을 정점으로 시공완료 안녕하세요 916디자인입니다. 오늘은 고급스러움을 정점으로 완료된 피트니스센터 헬스장인테리어 시공 현장을
dopamine7.com
2023.05.19 - [DOPAMINE] - 정신의학과 병원인테리어 안정감과 세련됨이 나타는 공간연출
정신의학과 병원인테리어 안정감과 세련됨이 나타는 공간연출
정신의학과 병원인테리어 안정감과 세련됨이 나타는 공간연출 안녕하세요 916디자인입니다. 예전과는 다르게 마음의 병을 대하는 사람들의 자세가 달라지면서 더 나은 삶을 위해 정신의학과 병
dopamine7.com
2023.05.16 - [피티샵 헬스장인테리어] - 소형 PT샵인테리어 피티샵 창업을 준비한다면 확인하세요
소형 PT샵인테리어 피티샵 창업을 준비한다면 확인하세요
소형 PT샵인테리어 피티샵 창업을 준비한다면 확인하세요 안녕하세요 PT샵인테리어 전문업체 916디자인입니다. 상업 시설 중 다시 찾게 되는 곳은 단순히 좋은 서비스만 영향을 미치는 것이 아니
dopamine7.com
2023.05.12 - [피티샵 헬스장인테리어] - 하남 대형피트니스센터 200평 헬스장인테리어 각 공간마다 트렌드에 맞는 디자인으로 시공완료
하남 대형피트니스센터 200평 헬스장인테리어 각 공간마다 트렌드에 맞는 디자인으로 시공완료
하남 대형피트니스센터 200평 헬스장인테리어 각 공간마다 트렌드에 맞는 디자인으로 시공완료 안녕하세요 피트니스센터 인테리어 전문 시공 업체 916디자인입니다. 오늘은 하남에 위치한 200평
dopamine7.com
'사무실인테리어' 카테고리의 다른 글
| 당산 생각공장 지식산업센터인테리어 50평 대형평수 사무실 차별화된 디자인 (0) | 2023.06.18 |
|---|---|
| 금천구 사무실인테리어 가산 대성디폴리스 지식산업센터 공사 세련된 디자인으로 완성 (0) | 2023.06.14 |
| 금천구 가산동 지식산업센터인테리어 스튜디오를 겸비한 50평사무실 비용 (0) | 2023.06.10 |
| 강남 서초동 변호사사무실인테리어 법무법인 법률사무소 시공전문업체 916디자인 (0) | 2023.06.06 |
| 효율적인 동선과 트렌디한 사무실컨셉의 과천 지식산업센터인테리어 마감기 (1) | 2023.05.25 |
| 정신의학과 병원인테리어 안정감과 세련됨이 나타는 공간연출 (0) | 2023.05.19 |
| 성남 판교 지식산업센터인테리어 트렌디한 공간디자인으로 시공완료 (0) | 2023.05.07 |
| 요즘유행하는인테리어로 마감한 40평 사무실 공간 리모델링 비용견적 디자인 제안 (0) | 2023.05.04 |
- Total
- Today
- Yesterday
- 사무실인테리어잘하는곳
- 사무실인테리어디자인
- 사무실인테리어추천
- 인테리어디자인
- 사무실인테리어공사
- 인천사무실인테리어
- 학원인테리어디자인
- 헤어샵인테리어
- 사무실인테리어견적
- 미용실인테리어
- 지식산업센터인테리어
- interior
- 오피스인테리어
- 사무실리모델링
- 인테리어
- 3D사무실인테리어
- 사무실인테리어업체
- 상가인테리어
- 사무실인테리어비용
- 병원인테리어
- 사무실디자인
- 3D디자인
- 사무실인테리어후기
- 사무실인테리어
- 916디자인
- 사무실인테리어전문
- 피티샵인테리어
- 학원인테리어
- 회사인테리어
- 헬스장인테리어
| 일 | 월 | 화 | 수 | 목 | 금 | 토 |
|---|---|---|---|---|---|---|
| 1 | ||||||
| 2 | 3 | 4 | 5 | 6 | 7 | 8 |
| 9 | 10 | 11 | 12 | 13 | 14 | 15 |
| 16 | 17 | 18 | 19 | 20 | 21 | 22 |
| 23 | 24 | 25 | 26 | 27 | 28 | 29 |
| 30 |
