티스토리 뷰
목차
요즘유행하는인테리어로 마감한 40평 사무실 공간 리모델링 비용견적 디자인 제안
안녕하세요 916디자인입니다.
오늘은 소규모 사무실 인테리어이지만
알찬 리모델링과 구성으로 다시 태어난
현장을 소개해드리려고 하는데요.
깔끔하면서도 미니멀하게 다시 태어난
40평 인테리어 현장 함께 보실게요!
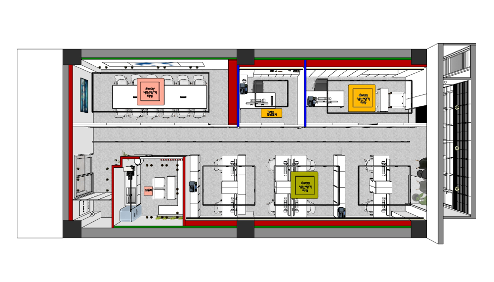
3D 디자인 제안


이번 현장은 직사각형 형태의 40평이었고
일직선으로 이어져있는만큼 간단한
동선을 위해 양쪽의 병렬배치로
진행되었습니다.



공간을 반쪽으로 나누어서 2열로
배치하다보니 깔끔하면서도 각자의
구역을 확실히 할 수 있었는데요.
어떻게보면 단순할 수 있지만,
넓게 활용하기에는 가장 최적의
배치도이기에 각 공간의 특성을 살리고
미니멀하게 구성하였습니다.



그리고 이렇게 3D디자인에도 각 소재의
느낌을 잘 살려 전체적인 조화로움을 미리
체크할 수 있도록 도와드렸는데요.
디테일한 부분까지 미리 확인하고 시공에
들어갈 수 있기에 시행착오를 줄이고
고객님 입장에서는 완성도 높은 공간을
마주하실 수 있습니다.
시공 진행 현장

현장에서는 모든 직원들이 협력하여
하나부터 열까지 꼼꼼한 디테일을 확인해가며
완성도 높은 현장을 만들어내었는데요.
좋은 재료를 바탕으로하여 프리미엄 노동력이
더해지니 더할나위 없는 인테리어 완성!



모든 작업마다 기초를 튼튼히하고
보양작업을 철저히하면서 어디 하나
상하거나 하자가 일어나지 않도록
많은 신경을 쓴
요즘유행하는인테리어로 마감한 40평 사무실 공간
리모델링 비용견적 디자인 제안 현장!
완성된 모습을 하나씩 살펴보며
더욱 디테일하게 알아보겠습니다.
시공 마감 현장


외관 파사드입니다.
중앙 현관을 기준으로 특이한
도형 모양의 타공이 되었습니다.
그리고 전체를 우드 템바보드가 한겹 더해져
감싸고 있어서 개성을 더하고 조명을
매립하여 중앙으로 시야를 집중시키는데요.
깔끔하면서도 현대적인 포인트가
요즘 트렌드에 맞는 디자인을
보여주고 있습니다,


내부로 들어서면 가장먼저 특이한 질감의
벽면에 새겨진 로고를 마주하게 됩니다.
미니멀한 스타일을 위해서 전체 컬러를
아이보리톤으로 통일하였는데, 모든 색감이
똑같기만하면 심심할 수 있으니 소재와
질감 표현으로 재미를 더했습니다.
그리고 은색 스틸에 새겨진 브랜드의 로고가
더욱 빛을 발하고 곡선 가벽이 부드러운
이미지를 만들어냅니다.


내부로 들어서서 가장 먼저 보이는 곳은
바로 대회의실인데요.
이번 요즘유행하는인테리어로 마감한 40평 사무실
공간 리모델링 비용견적 디자인 제안 현장은 전체
바탕 및 구조물은 화이트로 통일하였지만 가구로
색감 포인트를 주었습니다.

회의실도 마찬가지로 의자를 알록달록하게
구성하여서 포인트를 주었으며 한쪽벽면에는
진열대를 설치하여 수납공간을 확보했습니다.
그리고 천장에는 라인 조명을 설치하여
천고를 더욱 높아보이게 만들고,
바깥과의 시야는 블라인드로 자유자재로
조정할 수 있게 되었습니다.


그리고 중앙에 늘어진 테이블과 티비가
일직선으로 되어져있어 모두가 집중하기
편안한 환경을 구성하는데요.
평소에는 글라스월로 되어있는 벽면이
개방감을 주지만 필요에 따라
블라인드를 설치할 수 있기에 실용성 또한
놓치지 않은 곳입니다.


이번 인테리어 현장은 평수가 넓지않은만큼
개방감에 많은 초점을 두었는데요.
모든 공간을 분리하면서도 별도의 가벽이
아니라 통창으로 프레임을 만들어서
답답해보이지 않고 뚫린 시야를
확보하였습니다.
그래서 모든 곳이 나눠져 있으면서도
마치 하나의 공간이라는 느낌을
동시에 주고 있습니다.



특히 이곳은 대표님이 지내시는 곳임에도
불구하고 전체 통창으로 되어 서로간의
소통이 원활하게 진행될 수 있게 하였는데요.
깔끔한 내부와 수납장을 빌트인으로 마련하고
수납장 상부에는 조명을 매립하여 더욱 밝은
시야를 확보했습니다.
그리고 손님을 맞이할 수 있는 테이블과
공간이 함께 구성되어 있으면서도 베이지색
바닥과 화이트 컨셉에 어울리는 가구 구성으로
감각적인 연출을 보여드리고 있습니다.


이번 현장은 전체적으로 판조명이 하나도
사용되지 않고 라인 조명이 각각의 동선과
구조에 맞게 설치되었는데요.
그래서 더욱 미니멀한 느낌을 살릴 수 있고
천장과 구조물 사이사이에 매립된 조명이
밝기를 더욱 환하게 만들어주고 있습니다.


사무공간은 전체 컨셉과 어울리는 컬러의
가구를 배치하면서 정돈된듯한 배치로
간편한 동선을 만들어내었는데요.
동선이 전혀 꼬이지 않도록 중앙을 기점으로
오른쪽은 사무공간이고 왼쪽은 개별 공간이
마련되어져 있습니다.

또한 요즘유행하는인테리어로 마감한 40평
사무실 공간 리모델링 비용견적 디자인 제안하면
빼놓을 수 없는 곳이 바로 탕비실 및 휴게공간인데요.
워라밸을 중요시하는 사람이 늘어나고 있는만큼
트렌디한 인테리어에서는 늘 빠지지 않고
시공되는 공간이기도 합니다.
이번 현장에서는 프라이빗함을 강조하며 전체
통창이 아니라 한쪽은 우드 파티션으로 살짝
시야를 가려주고 내부에 아늑한 공간을 마련했습니다.

그리고 곳곳에 마음을 진정시킬 수 있는
플랜테리어까지 가미함으로써
감성적이고 아늑한 인테리어를
완성시켰는데요.
이렇게 916디자인은 주어진 환경속에서
최대한의 효율을 이끌어내는 방식으로
디자인을 제안드리고 있습니다.
합리적인 비용은 물론 원하시는 니즈를
갖춘 디자인을 제안하여 안내해드리고 있으니
걱정하지 마시고 언제든지 사무실인테리어에
대한 궁금증이 생기신다면 문의 부탁드립니다,
공사문의 010-3235-8427
포트폴리오 바로가기▶916er.com
2023.05.02 - [사무실인테리어] - 저비용으로 실용성을 살린 150평 대형 사무실 지식산업센터인테리어 시공 현장 견적
저비용으로 실용성을 살린 150평 대형 사무실 지식산업센터인테리어 시공 현장 견적
저비용으로 실용성을 살린 150평 대형 사무실 지식산업센터인테리어 시공 현장 견적 안녕하세요 916디자인입니다. 오늘은 가장 심플하면서도 사무실 본연의 느낌을 낸 현장을 소개해드리려고 합
dopamine7.com
2023.04.28 - [사무실인테리어] - 거품없는 합리적인 사무실인테리어비용으로 디자인까지 완벽하게 마무리
거품없는 합리적인 사무실인테리어비용으로 디자인까지 완벽하게 마무리
거품없는 합리적인 사무실인테리어비용으로 디자인까지 완벽하게 마무리 안녕하세요! 916디자인입니다. 오늘은 아기자기한 테마의 소형사무실 인테리어 현장을 준비해보았는데요. 작지만 알차
dopamine7.com
2023.04.24 - [사무실인테리어] - 경기도 강원도 양평 가평 원주 사무실인테리어 트렌디하고 고급스러운 디자인으로
경기도 강원도 양평 가평 원주 사무실인테리어 트렌디하고 고급스러운 디자인으로
경기도 강원도 양평 가평 원주 사무실인테리어 트렌디하고 고급스러운 디자인으로 안녕하세요 사무실인테리어 전문업체 916디자인입니다. 오늘은 최근 진행했던 경기도 강원도 양평 가평 원주
dopamine7.com
2023.04.20 - [DOPAMINE] - 썬팅샵 튜닝샵 카센터인테리어 컨셉선정부터 마무리까지 전체 시공과정을 확인하세요
썬팅샵 튜닝샵 카센터인테리어 컨셉선정부터 마무리까지 전체 시공과정을 확인하세요
썬팅샵 튜닝샵 카센터인테리어 컨셉선정부터 마무리까지 전체 시공과정을 확인하세요 안녕하세요 916디자인입니다. 오늘은 썬팅샵 튜닝샵 카센터인테리어 컨셉선정부터 마무리까지 전체 시공
dopamine7.com
2023.04.17 - [학원인테리어] - 구로구 신도림 수학학원인테리어 디자인과 공간활용을 모두 잡은 30평 현장 깔끔하고 미니멀한 컨셉
구로구 신도림 수학학원인테리어 디자인과 공간활용을 모두 잡은 30평 현장 깔끔하고 미니멀한
구로구 신도림 수학학원인테리어 디자인과 공간활용을 모두 잡은 30평 현장 깔끔하고 미니멀한 컨셉 안녕하세요 916디자인입니다. 오늘은 구로구 신도림 수학학원인테리어 디자인과 공간활용을
dopamine7.com
'사무실인테리어' 카테고리의 다른 글
| 글로벌 기업의 트렌디한 업무환경이 돋보이는 인천 청라 티엔에스 대형 사무실 사옥인테리어 비용 견적 (0) | 2023.05.29 |
|---|---|
| 효율적인 동선과 트렌디한 사무실컨셉의 과천 지식산업센터인테리어 마감기 (1) | 2023.05.25 |
| 정신의학과 병원인테리어 안정감과 세련됨이 나타는 공간연출 (0) | 2023.05.19 |
| 성남 판교 지식산업센터인테리어 트렌디한 공간디자인으로 시공완료 (0) | 2023.05.07 |
| 저비용으로 실용성을 살린 150평 대형 사무실 지식산업센터인테리어 시공 현장 견적 (0) | 2023.05.02 |
| 거품없는 합리적인 사무실인테리어비용으로 디자인까지 완벽하게 마무리 (0) | 2023.04.28 |
| 경기도 강원도 양평 가평 원주 사무실인테리어 트렌디하고 고급스러운 디자인으로 (0) | 2023.04.24 |
| 썬팅샵 튜닝샵 카센터인테리어 컨셉선정부터 마무리까지 전체 시공과정을 확인하세요 (0) | 2023.04.20 |
- Total
- Today
- Yesterday
- 사무실인테리어디자인
- 오피스인테리어
- 사무실인테리어잘하는곳
- 사무실리모델링
- 사무실인테리어견적
- 학원인테리어
- 지식산업센터인테리어
- 학원인테리어디자인
- 사무실인테리어업체
- 회사인테리어
- 사무실인테리어비용
- 상가인테리어
- 헬스장인테리어
- 사무실인테리어전문
- 사무실디자인
- 사무실인테리어공사
- 인테리어
- 3D사무실인테리어
- interior
- 사무실인테리어
- 피티샵인테리어
- 병원인테리어
- 인천사무실인테리어
- 916디자인
- 미용실인테리어
- 사무실인테리어추천
- 3D디자인
- 인테리어디자인
- 사무실인테리어후기
- 헤어샵인테리어
| 일 | 월 | 화 | 수 | 목 | 금 | 토 |
|---|---|---|---|---|---|---|
| 1 | ||||||
| 2 | 3 | 4 | 5 | 6 | 7 | 8 |
| 9 | 10 | 11 | 12 | 13 | 14 | 15 |
| 16 | 17 | 18 | 19 | 20 | 21 | 22 |
| 23 | 24 | 25 | 26 | 27 | 28 | 29 |
| 30 |
