티스토리 뷰
목차
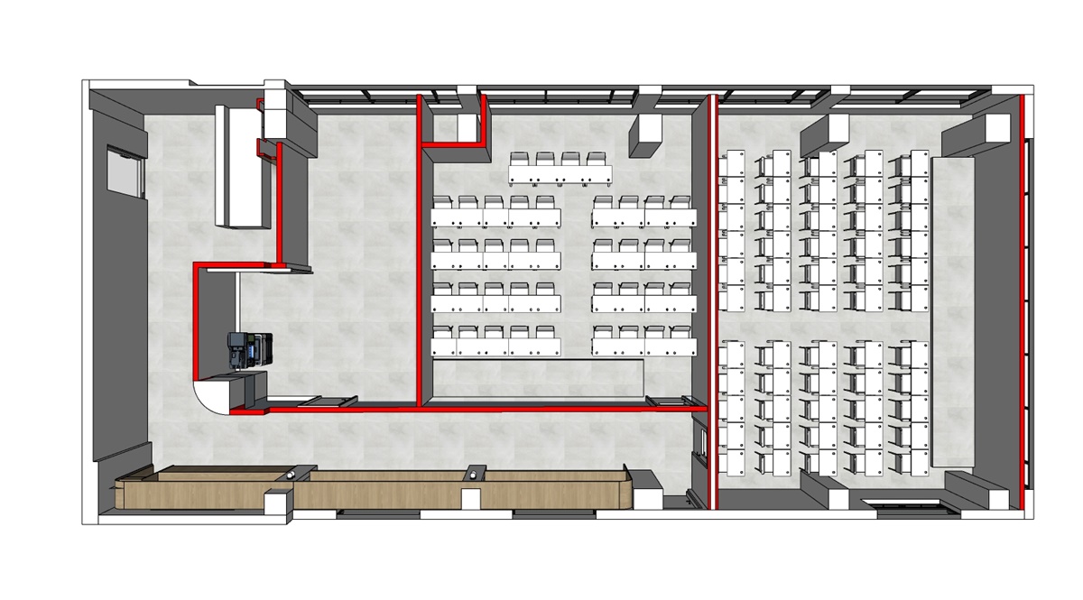
예전엔 딱딱하고 삭막한 분위기의 학원 이었다면 이제는 학생들이 편안하게 공부 할 수 있도록
카페 같은 느낌의 학원들을 많이 선호하시는데요.
그중에서도 과천인테리어업체가 시공한 우드로 포인트를 준 따뜻하고 고급스러운
국어 학원 아카데미 디자인 제안을 드리려고 합니다.







과천인테리어업체 트렌드와 우드 디자인의 매력







과천 지역의 인테리어 트렌드는 현대적이면서도 자연 친화적인 요소를 강조하는 방향으로 나아가고 있습니다.
이러한 트렌드에 부합하면서도 고급스럽고 따뜻한 분위기를 연출할 수 있는 우드 디자인은
국어 학원 아카데미 인테리어에 매우 적합한 선택지 중 하나 입니다.







우드 디자인은 자연스러운 질감과 색감으로 공간에 편안함과 안정감을 더해주며, 다양한 스타일과 조화롭게
어울리기 때문에 유연한 인테리어 디자인이 가능합니다. 또한, 우드 소재는 내구성이 뛰어나기 때문에
오랜 시간 동안 사용해도 처음의 아름다움을 유지할 수 있어 경제적이기도 합니다.







국어 학원이라는 특성상 차분하고 집중할 수 있는 분위기 조성이 중요한데, 우드톤의 벽과 바닥, 가구 등을 활용하면
학생들의 학업 성취도와 만족도를 높일 수 있을 것입니다. 더불어 우드는 친환경적인 소재이기 때문에
과천시의 자연 친화적인 인테리어 트렌드와도 일치하며 학부모와 학생들에게 좋은 인상을 심어줄 수 있습니다.







과천인테리어업체 국어 학원 아카데미를 위한 디자인 컨셉의 중요성







아카데미의 실내 디자인은 학생들의 학업 성과와 학원의 이미지 형성에 큰 영향을 미치므로
신중하게 계획되어야 합니다. 국어 학원의 경우, 따뜻하고 친근한 분위기를 조성하면서도 차분한 느낌을 주어야 하며,
이를 위해서는 명확한 디자인 컨셉이 필요합니다.







이번 프로젝트에서는 '고급스러움과 따뜻함'을 메인 디자인 컨셉으로 설정했습니다.
이를 위해 우드 소재를 적극적으로 활용하였으며, 브라운, 베이지, 그레이 등의 뉴트럴 컬러를 사용하여
아늑한 분위기를 연출하였습니다. 또, 간접 조명을 활용하여 공간에 부드러운 빛을 더하고,
포인트 조명으로 시선을 집중시켜 강의실 내부의 공간감을 높였습니다.







이런 디자인 컨셉은 학생들이 편안하게 공부하고, 선생님과 학생간의 소통과 상호작용을 촉진하는데 도움을 줄 것이며,
학부모와 학생들에게 신뢰감을 주어 학원의 이미지 향상에도 기여할 것입니다.







과천인테리어업체 우드 디자인을 활용한 고급스러움의 표현 방법







우드는 자연스러운 질감과 색감으로 인해 고급스러운 분위기를 연출하기에 적합한 소재입니다.
이번 국어 학원 아카데미 디자인에서는 우드 소재를 다양한 방식으로 활용하여 고급스러움을 표현하고자 했습니다.
우드 소재의 가구 역시 적절하게 배치되었는데, 책상과 의자는 물론, 책장, 선반, 파티션 등에도 우드 소재를 적용하여
통일감을 주었습니다. 또, 각 가구의 디자인은 간결하면서도 세련된 느낌을 주도록 설계하여 현대적인 감각을 더했습니다.







우드 소재와 어울리는 식물을 곳곳에 배치하여 자연 친화적인 분위기를 조성하였고,
이로 인해 공기 정화와 습도 조절 효과도 얻을 수 있었습니다.







과천인테리어업체 에서 제안하는 우드 디자인의 국어 학원 아카데미는 따뜻하면서도 고급스러운 분위기를 연출하며,
학생들의 집중력을 높일 수 있을 것입니다.







또한, 공간 활용도가 높아 다양한 수업 형태에 맞게 활용할 수 있으며, 효율적인 동선으로
학생들과 선생님의 편의성을 높일 수 있습니다. 국어 학원 개원을 준비 중이시라면
우드 디자인의 국어 학원 아카데미를 고려해 보시는 건 어떨까요?




☎시공문의
010-3235-8427
▼포트폴리오 더 보기 ▼
https://916er.com/category/%ED%95%99%EC%9B%90%EC%9D%B8%ED%85%8C%EB%A6%AC%EC%96%B4/
학원인테리어 - 사무실인테리어 디자인 공사 비용견적 플랫폼
학원인테리어 영어 수학 과학 논술 독서 교습소 보습 재수 예체능 스터디카페 컴퓨터 코딩 종합학원 공사 디자인 포트폴리오
916er.com
2024.12.24 - [학원인테리어] - 학원인테리어비용 가성비가 돋보이는 30평 영어교습소 시공사례
학원인테리어비용 가성비가 돋보이는 30평 영어교습소 시공사례
학원인테리어비용 가성비 높은 교습소 디자인 최근 교육 공간 창업을 준비하시는 원장님들의 문의가 많아졌는데요. 그 중에서도 가장 많은 비중을 차지하는 영어교습소 현장을 소개해드리
dopamine7.com
2025.01.07 - [학원인테리어] - 의왕인테리어 영상학원 시공기를 살펴보시고 아카데미 리모델링을 도전해보세요
의왕인테리어 영상학원 시공기를 살펴보시고 아카데미 리모델링을 도전해보세요
최근 저희 의왕인테리어 업체에서는 영상 학원 인테리어 시공을 맡아 진행하였습니다. 단순한 공간 분리와 배치 뿐만 아니라 영상 제작 및 편집에 용이한 조명과 색감 등을 고
dopamine7.com
2024.12.05 - [학원인테리어] - 은평구학원인테리어 꾸준히 인기 있는 파란색 컬러포인트 어학원 디자인
은평구학원인테리어 꾸준히 인기 있는 파란색 컬러포인트 어학원 디자인
컬러포인트가 있는 어학원 디자인은 단순한 학습 공간이 아니라,학생들이 창의력과 상상력을 발휘할 수 있는 장소로 탈바꿈하고 있어요. 요즘 학원인테리어는 단순히 공부할 수 있는 공간을
dopamine7.com
2024.12.09 - [학원인테리어] - 클래스인테리어 최상의 학습공간으로 꾸며진 어학원 교습소를 소개합니다
클래스인테리어 최상의 학습공간으로 꾸며진 어학원 교습소를 소개합니다
어학원교습소는 언어를 배우고자 하는 학생들에게 매우 중요한 클래스공간입니다.하지만 그 클래스인테리어가 어떻게 꾸며져 있는가에 따라 학습 효과는 크게 달라질 수 있죠. 특히, 인테리어
dopamine7.com
2024.12.13 - [학원인테리어] - 학원인테리어비용 다양한 테마디자인으로 운영자도 학생들에게도 만족도 높은 학습공간
학원인테리어비용 다양한 테마디자인으로 운영자도 학생들에게도 만족도 높은 학습공간
학원은 학생들이 지식을 쌓고 꿈을 키우는 중요한 공간입니다.그렇기 때문에 학원의 첫인상은 매우 중요하죠. 학생들이 편안하고 집중할 수 있는 환경을 제공하기 위해서는 인테리어가 필
dopamine7.com
'학원인테리어' 카테고리의 다른 글
| 과천상가인테리어 학원 공사 파사드 디자인 시공기 (0) | 2025.04.07 |
|---|---|
| 학원인테리어견적 비용 가성비까지 생각한 영어학원 포트폴리오 (0) | 2025.02.06 |
| 충주학원인테리어 색감을 활용한 중국 어학원 상가리모델링 시공 현장 소개 (0) | 2025.01.23 |
| 수학학원인테리어 포인트 컬러로 학생들의 마음을 사로잡은 최고의 학습공간을 디자인 업체 (1) | 2025.01.17 |
| 과천인테리어업체 수학 학원 아카데미 공부 능률을 올리는 디자인을 학생들에게 제공해보세요 (0) | 2025.01.09 |
| 의왕인테리어 영상학원 시공기를 살펴보시고 아카데미 리모델링을 도전해보세요 (1) | 2025.01.07 |
| 학원인테리어비용 가성비가 돋보이는 30평 영어교습소 시공사례 (1) | 2024.12.24 |
| 미술교습소인테리어 창의적이고 개성 있는 학원 리모델링을 진행해보세요 (3) | 2024.12.24 |
- Total
- Today
- Yesterday
- 사무실인테리어디자인
- 미용실인테리어
- 지식산업센터인테리어
- 3D사무실인테리어
- 피티샵인테리어
- 사무실인테리어
- 사무실리모델링
- 인천사무실인테리어
- 학원인테리어
- 사무실인테리어전문
- 헬스장인테리어
- 오피스인테리어
- 상가인테리어
- 3D디자인
- interior
- 인테리어디자인
- 사무실인테리어추천
- 사무실인테리어공사
- 헤어샵인테리어
- 사무실인테리어견적
- 병원인테리어
- 사무실인테리어비용
- 916디자인
- 학원인테리어디자인
- 사무실인테리어후기
- 인테리어
- 회사인테리어
- 사무실인테리어업체
- 사무실디자인
- 사무실인테리어잘하는곳
| 일 | 월 | 화 | 수 | 목 | 금 | 토 |
|---|---|---|---|---|---|---|
| 1 | 2 | 3 | 4 | 5 | 6 | 7 |
| 8 | 9 | 10 | 11 | 12 | 13 | 14 |
| 15 | 16 | 17 | 18 | 19 | 20 | 21 |
| 22 | 23 | 24 | 25 | 26 | 27 | 28 |
| 29 | 30 | 31 |







