티스토리 뷰
목차
안녕하세요. 지난해 연말에 진행했던 충주학원인테리어 시공 현장을 소개해 드리려고 합니다.
색감을 활용하여 디자인하였고 중국어 학원으로 운영될 상가리모델링 현장입니다.
지금부터 그 생생한 과정을 보여드리겠습니다.
충주학원인테리어 새로운 변신 중국 어학원 상가 리모델링 프로젝트 소개





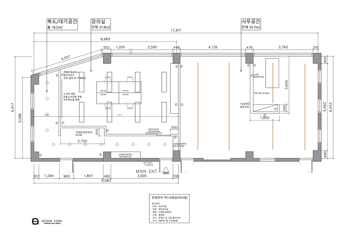
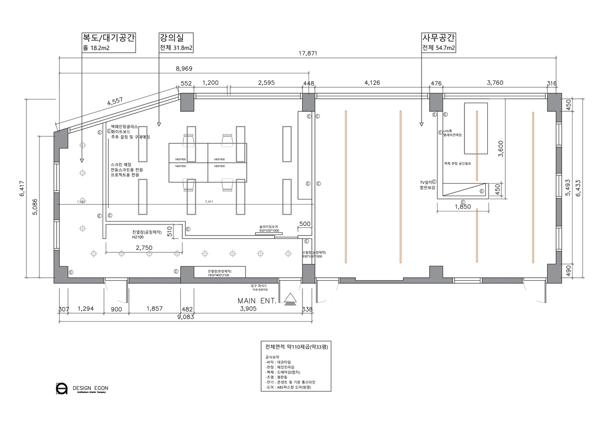
이번에 진행된 충주학원인테리어 프로젝트는 기존 학원 공간을 중국어 어학원으로 탈바꿈하는
상가리모델링 시공이었습니다.





클라이언트의 요구사항을 반영하면서도 세련되고 현대적인 분위기를 연출하기 위해 색감을 적극 활용하였습니다.
먼저, 메인 컬러로는 레드을 선택하였습니다. 노란색은 활기차고 밝은 느낌을 주는 색상으로, 학생들의 학습 동기를 유발하고 창의적인 사고를 촉진하는 데 도움이 됩니다. 또한, 화이트 컬러를 함께 사용하여 깔끔하고 모던한 분위기를
연출하였습니다.





각 공간에는 조명을 적절하게 배치하여 밝고 화사한 분위기를 연출하였습니다. 천장에는 레일 조명을 설치하여
자유롭게 조명의 위치를 조절할 수 있도록 하였으며, 데스크와 강의실에는 펜던트 조명을 달아 포인트를 주었습니다.
이렇게 색감을 활용하여 완성된 중국어 어학원은 학생들의 학습 의욕을 높이고, 편안하게 공부할 수 있는 환경을
제공하고 있습니다. 클라이언트께서도 높은 만족도를 보여주셨습니다.





충주학원인테리어 학습 효율을 높이는 내부 구조 설계





중국어 학원의 내부 구조 설계에서는 학습 효율을 높이는 데 중점을 두었습니다.
이를 위해 공간을 적절하게 분할하고, 각 공간을 효율적으로 활용하는 방안을 모색하였습니다.





강의실은 수강생의 인원수에 따라 크기를 다르게 구성하였으며,
대형 강의실에는 스크린과 프로젝터를 설치하여 멀티미디어 수업이 가능하도록 하였습니다.





충주학원인테리어 차별화된 학습 공간 조성을 위한 인테리어 소품 및 가구 선택





책상과 의자는 인체공학적으로 설계된 제품을 선택하여 학생들이 편안하게 앉아서 공부할 수 있도록 하였으며,
책꽂이는 넉넉한 수납공간을 제공하는 제품을 선택하여 교재와 참고서 등을 충분히 보관할 수 있도록 하였습니다.
조명은 눈의 피로를 덜어주는 LED 조명을 설치하여 학생들의 학습능률 향상에 도움을 주도록 하였습니다.




이렇게 이번에는 중국어 어학원으로 운영 될 충주학원인테리어 시공 현장을 소개해 드렸습니다.





상가리모델링이나 인테리어를 계획 중이시라면 언제든지 문의해 주세요. 친절하게 상담해 드리겠습니다.



☎시공 문의
010-3235-8427
▼포트폴리오 더 보기 ▼
https://916er.com/category/%ED%95%99%EC%9B%90%EC%9D%B8%ED%85%8C%EB%A6%AC%EC%96%B4/
학원인테리어 - 사무실인테리어 디자인 공사 비용견적 플랫폼
학원인테리어 영어 수학 과학 논술 독서 교습소 보습 재수 예체능 스터디카페 컴퓨터 코딩 종합학원 공사 디자인 포트폴리오
916er.com
2025.01.17 - [학원인테리어] - 수학학원인테리어 포인트 컬러로 학생들의 마음을 사로잡은 최고의 학습공간을 디자인 업체
수학학원인테리어 포인트 컬러로 학생들의 마음을 사로잡은 최고의 학습공간을 디자인 업체
안녕하세요, 916디자인입니다. 오늘은 여러분께 '수학학원인테리어' 포트폴리오를 소개해드릴까 하는데요. 수학학원인테리어는 학생들이 수학에 대한 흥미를 느끼고, 더 나아가 학습에 집
dopamine7.com
2025.01.17 - [학원인테리어] - 과천인테리어업체 우드 디자인으로 고급스럽고 따뜻한 국어 학원 아카데미 디자인 제안
과천인테리어업체 우드 디자인으로 고급스럽고 따뜻한 국어 학원 아카데미 디자인 제안
예전엔 딱딱하고 삭막한 분위기의 학원 이었다면 이제는 학생들이 편안하게 공부 할 수 있도록 카페 같은 느낌의 학원들을 많이 선호하시는데요. 그중에서도 과천인테리어업체가
dopamine7.com
2024.12.11 - [학원인테리어] - 영어학원인테리어 교습소 로비부터 강의실까지 리모델링 공사현장
영어학원인테리어 교습소 로비부터 강의실까지 리모델링 공사현장
영어학원은 학생들에게 언어를 배우는 중요한 공간이죠. 하지만, 단순히 강의만 듣는 곳이 아니라, 그 환경이 학생들의 학습 의욕에 큰 영향을 미친다는 사실은 잘 알려져 있습니다. 그래
dopamine7.com
2024.12.24 - [학원인테리어] - 미술교습소인테리어 창의적이고 개성 있는 학원 리모델링을 진행해보세요
미술교습소인테리어 창의적이고 개성 있는 학원 리모델링을 진행해보세요
안녕하세요구일육 디자인 입니다. 최근 예체능 계열에 관심을 가지는 학생들이 많아지면서미술 교습소 창업을 준비하시는 원장님들도 많아지고 있습니다.창업을 준비하면서 가장 고민되는 부
dopamine7.com
2024.11.20 - [학원인테리어] - 평택인테리어업체 즐겁게 수학을 배울 수 있는 공간을 생각한 학원 포트폴리오
평택인테리어업체 즐겁게 수학을 배울 수 있는 공간을 생각한 학원 포트폴리오
수학학원인테리어는 단순히 공간을 꾸미는 것을 넘어서, 학생들의 학습 환경과 직결되는 중요한 요소라는 생각이 듭니다. 많은 사람들이 수학을 어려워하는 이유 중 하나가 바로 지루한 학습
dopamine7.com
'학원인테리어' 카테고리의 다른 글
| 30평 40평 수학 영어 학원인테리어 학생을 위한 효율적인 레이아웃 동선 설정 (0) | 2025.06.02 |
|---|---|
| 청라상가인테리어 각 강의실마다 다른 컬러를 활용한 논술학원 디자인 (0) | 2025.04.07 |
| 과천상가인테리어 학원 공사 파사드 디자인 시공기 (0) | 2025.04.07 |
| 학원인테리어견적 비용 가성비까지 생각한 영어학원 포트폴리오 (0) | 2025.02.06 |
| 수학학원인테리어 포인트 컬러로 학생들의 마음을 사로잡은 최고의 학습공간을 디자인 업체 (1) | 2025.01.17 |
| 과천인테리어업체 우드 디자인으로 고급스럽고 따뜻한 국어 학원 아카데미 디자인 제안 (0) | 2025.01.17 |
| 과천인테리어업체 수학 학원 아카데미 공부 능률을 올리는 디자인을 학생들에게 제공해보세요 (0) | 2025.01.09 |
| 의왕인테리어 영상학원 시공기를 살펴보시고 아카데미 리모델링을 도전해보세요 (1) | 2025.01.07 |
- Total
- Today
- Yesterday
- 사무실리모델링
- 916디자인
- 헤어샵인테리어
- 병원인테리어
- 사무실인테리어추천
- 학원인테리어
- 인천사무실인테리어
- 오피스인테리어
- 사무실인테리어잘하는곳
- 헬스장인테리어
- 지식산업센터인테리어
- 사무실인테리어견적
- 사무실디자인
- 인테리어
- 사무실인테리어공사
- 사무실인테리어
- 회사인테리어
- 사무실인테리어디자인
- 사무실인테리어후기
- 피티샵인테리어
- 상가인테리어
- 사무실인테리어비용
- 사무실인테리어전문
- interior
- 미용실인테리어
- 3D디자인
- 사무실인테리어업체
- 인테리어디자인
- 학원인테리어디자인
- 3D사무실인테리어
| 일 | 월 | 화 | 수 | 목 | 금 | 토 |
|---|---|---|---|---|---|---|
| 1 | 2 | 3 | 4 | 5 | 6 | 7 |
| 8 | 9 | 10 | 11 | 12 | 13 | 14 |
| 15 | 16 | 17 | 18 | 19 | 20 | 21 |
| 22 | 23 | 24 | 25 | 26 | 27 | 28 |
| 29 | 30 | 31 |




