티스토리 뷰
목차
수학은 많은 학생들에게 도전적인 과목으로 인식되기 때문에 이 과목을 가르치는 공간은 특별히 신경써야 합니다.
학습 공간이 학생들에게 긍정적인 영향을 미친다면, 그들은 더 집중하고 적극적으로 수업에 참여할 수 있을 것입니다.
오늘은 광주학원인테리어의 수학학원 공간의 새로운 디자인을 적용한 인테리어 연출에 대해 알려드리겠습니다.
함께 보시죠.
광주학원인테리어 공간의 중요성


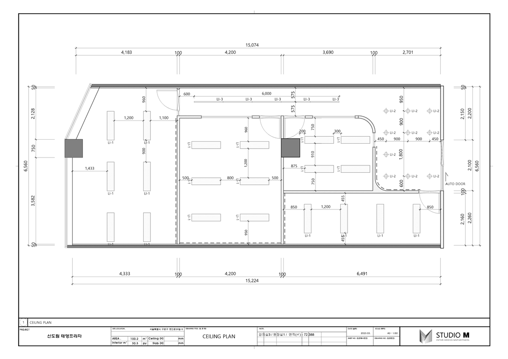
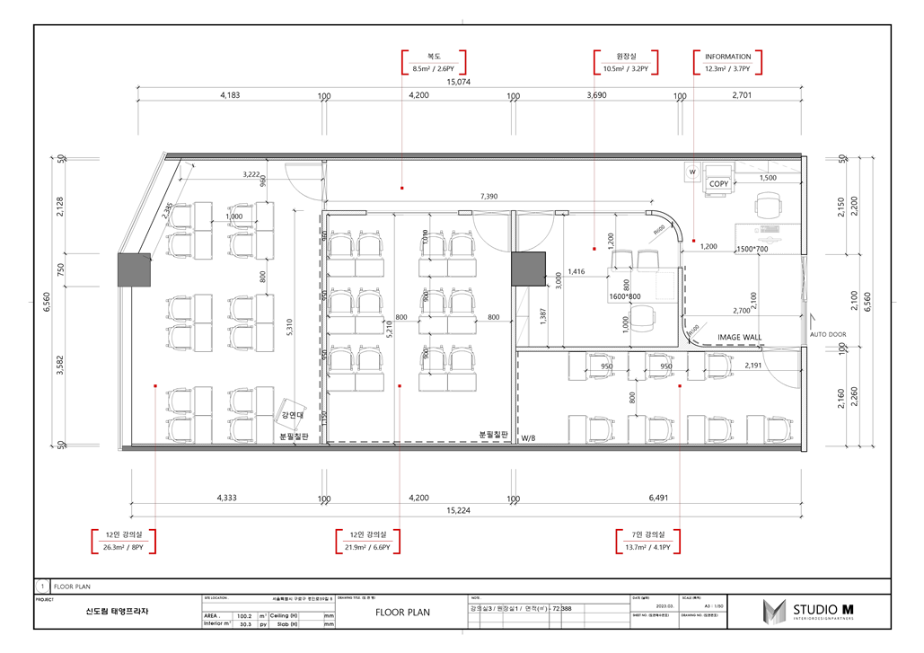
먼저 광주학원인테리어의 공간 레이아웃입니다. 학습 공간은 단순히 책상이 놓여 있고 칠판이 있는 공간이 아닙니다. 학생들이 공부하는 환경은 그들의 집중력과 학습 효과에 직결되죠. 특히 수학과 같은 과목은 문제 해결 능력과 창의성을 요구하기 때문에, 적절한 공간 디자인이 더욱 중요합니다. 광주학원인테리어는 이러한 점을 고려하여, 학생들이 편안하게 느끼고 창의력을 발휘할 수 있는 공간을 연출하였습니다.



이런 공간은 단순히 기능적인 면에서만 고려되는 것이 아니라, 학생들의 감성을 자극하는 요소도 포함됩니다.
밝고 따뜻한 색상, 자연광이 잘 들어오는 창문, 그리고 편안한 가구는 학생들이 학습하는데 긍정적인 영향을 미치기에
이러한 요소들을 고려하여 학원 디자인을 새롭게 완성하였습니다.
광주학원인테리어 맞춤형 공사 진행



공사는 먼저 학원 전체의 공간 배치를 확정하는 것으로 시작했습니다. 입구와 리셉션, 강의실, 공용 이동 동선을 포함한
학언 내부를 체계적으로 설계하여 학생들이 편리한 이동과 원활한 학습 환경이 가능하도록 시공하였습니다.



목공 공정은 학원의 전체적인 분위기와 공간의 통일감을 좌우하는 핵심 단계입니다.
벽면 하부에는 우드를 적용하여 아늑하고 폴근한 느낌을 주도록 하였으며,
강의실 창문과 문에도 동일한 우드 마감을 적용하여 공간의 연속성을 강조했습니다.






리셉션 데스크와 복도 주변에도 목공 작업이 이루어졌습니다. 학원의 밝고 따뜻한 분위기와 조화를 이루도록
마감 색상과 질감을 세심하게 선택하여 공사의 완성도를 높여주었습니다.
광주학원인테리어 새로운 공간 연출




완성된 광주학원인테리어 내부 모습입니다. 학원 내부에 들어서면 가장 먼저 따뜻하고 편안한 분위기가 느껴집니다.
벽면의 아래부분에는 우드를 적용하여 공간에 아늑함을 더해주었습니다.
아이보리톤의 벽과 우드 하부 마감의 조화는 단순히 따뜻함을 주는 것뿐만 아니라, 시각적으로 안정적인 비례감을 줍니다







리셉션은 학원에서 학생과 학부모가 가장 처음 마주하는 공간이자 학원의 이미지가 가장 잘 보여지는 공간입니다.
이번 시공에서는 우드 데스크를 중심으로 구성하여 내부 공간의 따뜻한 분위기를 이어갔습니다.





리셉션 공간에는 조명과 가구 배치를 고려하여 설계하였습니다. 우드 데스크와 바닥, 천장의 조화로운 컬러 배치는
단순한 아늑함을 넘어, 학부모에게 신뢰감과 안정감을 주는 효과도 함께 가져다 줍니다.
복도와 공용 공간은 부드러운 곡선 벽면과 우드 텍스처를 적용하여 아늑하게 연출하였습니다. 벽과 바닥, 천장 컬러는 전체적으로 아이보리 톤을 유지하면섣 우드 포인트를 곳곳에 배치해 통일감을 유지했습니다. 이렇게 설계함으로써 학생들이 이동 중에도 시각적 피로를 최소화하고 편안함을 느낄 수 있도록 하였습니다.





강의실은 학습의 핵심 공간으로 최대한 깔끔하고 집중할 수 있는 환경을 만드는 데 초첨을 두었습니다.
벽면과 천장은 화이트 톤으로 처리해 시각적인 방해 요소를 최소화하였으며, 창문 테두리와 벽면 테두리 공간은 우드를 적용하여
공간의 통일감과 시각적 포인트 효과를 극대화하였습니다.






이러한 작은 디테일이 공간 전체의 조화아 안정감을 높여주며, 강의실을 단순히 공부하는 공간이 아닌 편안하게 집중할 수 있는 홧학습 환경을 만들어 주는 효과까지 더해주었습니다.







칠판은 초록색으로 선택하여 학습 집중력을 높이고, 시각적으로도 강의실의 포인트 역할을 하도록 했습니다.
초록 칠판은 눈의 피로를 덜어주고, 오랜 시간 학습에 집중할 수 있는 색상으로 알려져 있어 실용성과 디자인 요소를 동시에 충족시켜주었답니다
.





마지막으로 광주학원인테리어 수학학원의 입구 파사드입니다.
학원의 첫인상인 입구는 무엇보다 밝고 개방감 있는 느낌을 주는 것이 중요했습니다. 그래서 통유리문을 적용하여 학원 내부가 보일수 있도록 연출했으며, 학원의 브랜드 컬러인 그린을 적용하여 시각적인 포인트 효과까지 주었습니다.
이번 광주학원인테리어는 단순히 아름다운 공간 연출이 아닌, 학생과 학부모가 모두 만족할 수 있는 학습 환경을 만드는 것을
목표로 진행하였습니다 .입구파사드에서부터 강의실 내부까지 모든 요소가 공간의 통일감과 아늑함을 강조한 연출입니다.
광주에서 학원인테리어를 고민하신다면, 학습 공간과 브랜드 이미지를 동시에 고려한 학원 공간 디자인을 추천드립니다.
916디자인의 풍부한 경험과 노하우로 학원의 공간을 한층 업그레이드 해 보시기 바랍니다.
📞상담 문의 📞
010-3235-8427
🔽 포트폴리오 더 보기 🔽
사무실인테리어 디자인 공사 비용견적 플랫폼 - 사무실인테리어 916
사무실인테리어 916
916er.com
2025.07.14 - [학원인테리어] - 입시학원인테리어 학습률 올려주는 맞춤형 포트폴리오
입시학원인테리어 학습률 올려주는 맞춤형 포트폴리오
안녕하세요. 916 디자인입니다. 최근 교육 시장에서는 단순 지식 전달뿐만 아니라 학생 개개인의 성향과 능력에 맞춘 맞춤형 교육 방식이 인기를 끌고 있습니다.이에 따라 학원인테리어 역시 기
dopamine7.com
2025.01.17 - [학원인테리어] - 수학학원인테리어 포인트 컬러로 학생들의 마음을 사로잡은 최고의 학습공간을 디자인 업체
수학학원인테리어 포인트 컬러로 학생들의 마음을 사로잡은 최고의 학습공간을 디자인 업체
안녕하세요, 916디자인입니다. 오늘은 여러분께 '수학학원인테리어' 포트폴리오를 소개해드릴까 하는데요. 수학학원인테리어는 학생들이 수학에 대한 흥미를 느끼고, 더 나아가 학습에 집
dopamine7.com
2024.12.12 - [학원인테리어] - 수학학원인테리어 10평 20평 소형평수 교습소 시공시 알아야 할 점
수학학원인테리어 10평 20평 소형평수 교습소 시공시 알아야 할 점
수학학원인테리어는 단순히 공간을 꾸미는 것 이상의 의미를 가지고 있어요.특히 10평에서 20평 사이의 소형평수 수학 교습소라면 더욱 그 중요성이 커질 수밖에 없죠. 학생들이 교실에서 보내
dopamine7.com
'학원인테리어' 카테고리의 다른 글
| 언어치료실인테리어 시공기 언어발달센터 디자인 반드시 유의해야 할 사항 (1) | 2025.09.26 |
|---|---|
| 군포학원인테리어 학습능률 올려주는 60평대 맞춤 디자인 제안 (0) | 2025.09.23 |
| 10평교습소인테리어 저렴한 비용으로 깔끔하고 효율적인 공간 시공후기 (0) | 2025.09.12 |
| 수학학원인테리어 다양한 강의실 컨셉으로 연출한 교습소디자인 (0) | 2025.09.12 |
| 청주학원인테리어 시공 비용 대비 디자인 효과를 극대화하는 방법 (0) | 2025.09.03 |
| 발레학원인테리어 예쁘고 탄탄하게 무용 댄스플로어 마루 시공한 후기 (2) | 2025.08.27 |
| 하남학원인테리어 집중력을 높일 수 있는 영어학원 디자인 소개 (0) | 2025.08.19 |
| 파주학원인테리어 라운드 유리가벽 디자인이 돋보이는 예쁜 영어 교습소 (0) | 2025.08.19 |
- Total
- Today
- Yesterday
- 사무실인테리어전문
- 사무실인테리어추천
- 학원인테리어디자인
- 인테리어디자인
- 사무실인테리어업체
- 사무실디자인
- 사무실인테리어비용
- 사무실인테리어
- 헬스장인테리어
- interior
- 회사인테리어
- 3D사무실인테리어
- 인테리어
- 헤어샵인테리어
- 미용실인테리어
- 사무실인테리어견적
- 916디자인
- 사무실인테리어공사
- 상가인테리어
- 학원인테리어
- 사무실인테리어잘하는곳
- 인천사무실인테리어
- 사무실리모델링
- 사무실인테리어후기
- 오피스인테리어
- 병원인테리어
- 피티샵인테리어
- 3D디자인
- 지식산업센터인테리어
- 사무실인테리어디자인
| 일 | 월 | 화 | 수 | 목 | 금 | 토 |
|---|---|---|---|---|---|---|
| 1 | 2 | 3 | 4 | 5 | 6 | 7 |
| 8 | 9 | 10 | 11 | 12 | 13 | 14 |
| 15 | 16 | 17 | 18 | 19 | 20 | 21 |
| 22 | 23 | 24 | 25 | 26 | 27 | 28 |
| 29 | 30 | 31 |




